Bildegalleri

Moderne fasade med store vindusflater og store terrasser
Bjønnavegen 12
Prosjektet er sluttsolgt!
Prisantydning
Solgt
Prosjektets status
Planlegging
2022
Salgsstart
2023
Byggestart
2023
Overtakelse
2024
Nøkkelinfo
- Eieform
- Eier (Selveier)
Fasiliteter
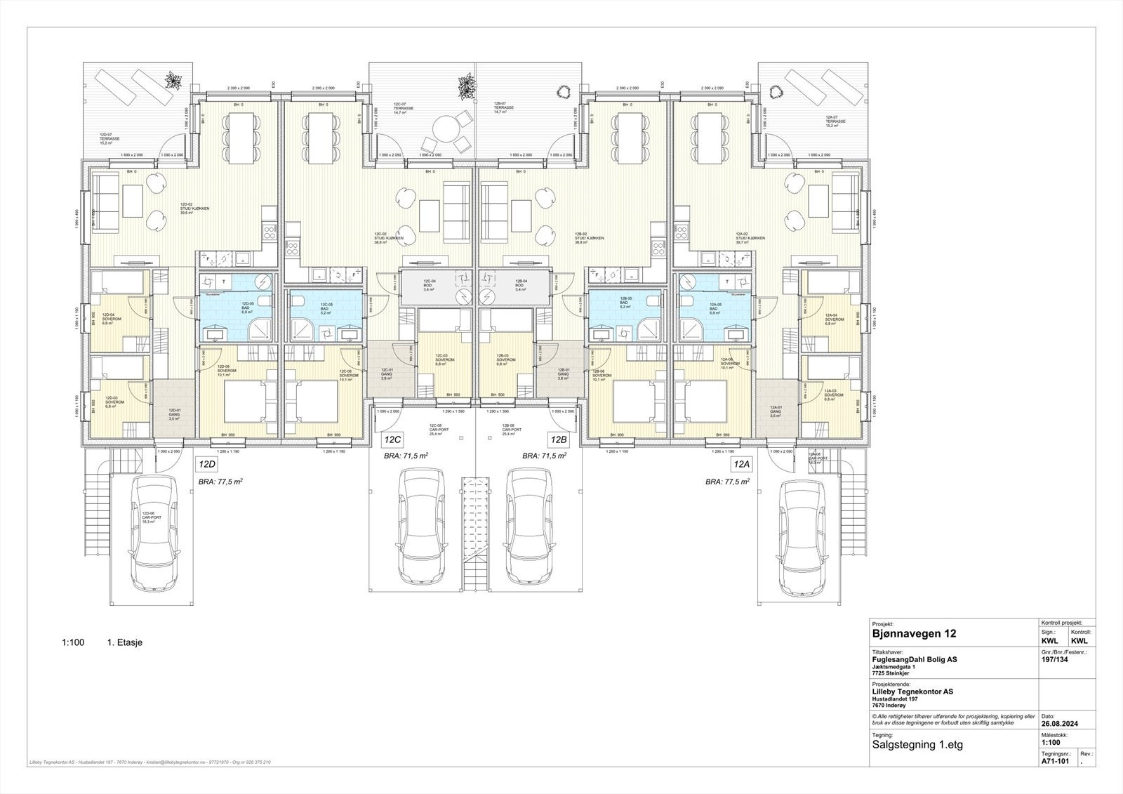
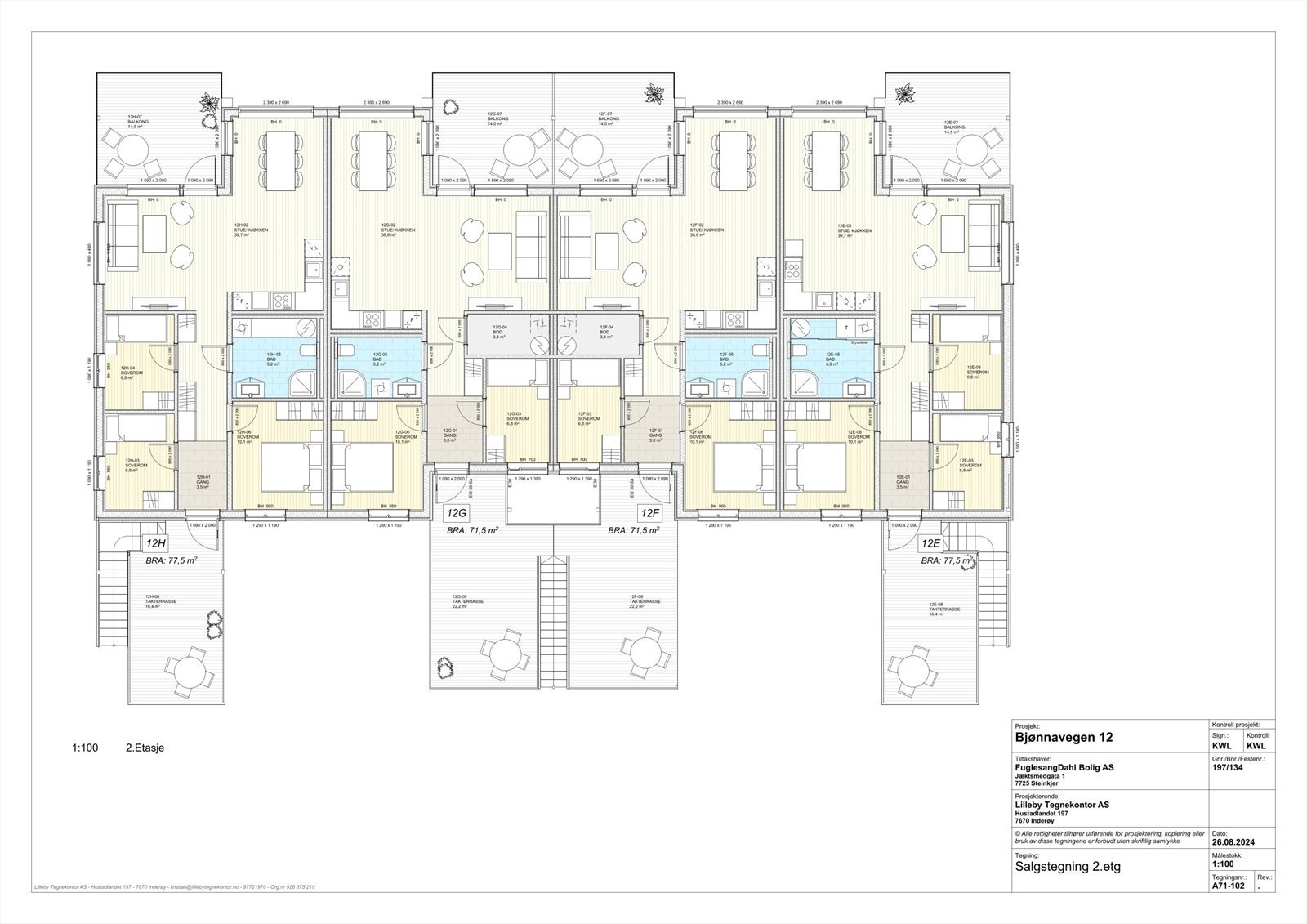
Enheter i prosjektet
| Enhet | BRA | Soverom | Totalpris |
|---|
Beskrivelse
8 prosjekterte selveierleiligheter på Gangstadhaugen i vakre Inderøy. Gangavstand til dagligvarebutikk. Fine turområder, lekeplasser, småbåtmarina og sjøen innenfor kort rekkevidde. Utsikt mot omkringliggende landområder og antatte gode solforhold. Ca. 11 km nord fra kommunesenteret på Straumen og ca. 11 km sør for Steinkjer.
Leilighetene blir på ca. 68-72 kvm og inneholder gang/entre med garderobe, bod/teknisk rom, bad/vaskerom, 2-3 soverom, kjøkken og stue. Utgang til romslig terrasse på bakkeplan fra stuen. Leilighetene i 1. etasje får tilknyttet carport med utvendig praktisk sportsbod. Leilighetene i 2. etasje får carport og sportsbod i felles anlegg, men får i tillegg en romslig takterrasse over carporten for leiligheten i første plan i tillegg til terrasse utenfor stuen. Dette blir lyse og moderne leiligheter med 2 soverom og god standard. Det kan nevnes kvalitetskjøkken fra Sigdal med innebygde hvitevarer, balansert ventilasjon med varmegjenvinning, varmekabler i deler av gulv i gang og på bad, parkettgulv type lys eik på tørrom (ikke bod) og flis på deler av gulv i gang og på bad/vaskerom, moderne bad/vaskerom med bla vegghengt toalett og dusjhjørne i glass.
Leilighetene leveres nøkkelferdig - klar til innflytting for kjøper.
Velkommen til en enklere hverdag i Gangstadtunet Sameie!
Prisinformasjon
Fastpris. Selger står fritt til å endre priser på usolgte enheter.
Omkostninger
Fra kr. 2.640.000,- til kr. 3.140.000,- (Prisantydning)
Omkostninger
1 560 (Andel dokumentavgift)
3 750 (Stiftelsesgebyr sameiet)
3 605 (Stiftelsesgebyr realsameie)
10 000 (Startkapital sameiet)
3 500 (Tilknytningsvgift TV/Internett)
500 (Tinglysningsgebyr skjøte)
500 (Tinglysningsgebyr pantedokument)
240 (Panteattest kjøper)
23 655 (Omkostninger totalt)
Fra kr. 2 663 655,- til kr.3 163 655,- (Totalpris inkl. omkostninger)
Ferdigstillelse
Beregnet ferdigstillelse er fra ca. 14 til 16 mnd fra byggestart. Eiendommen skal dog være ferdigstilt senest 16 måneder etter byggestart.
Dersom selger fullfører eiendommen i god tid før ovennevnte frist, kan selger kreve overtakelse inntil fire måneder før den avtalte fristen for overtakelse. Selger skal skriftlig varsle kjøper om dette minimum to måneder før det nye overtakelsestidspunktet. Det eksakte overtakelsestidspunktet skal gis med minst 14 dagers skriftlig varsel. Kopi av varsel om overtakelse skal selger sende megler.
Overtakelse skjer straks boligen er ferdigstilt og bør skje etter at ferdigattest foreligger, dog vil overtakelse skje ved midlertidig brukstillatelse dersom kommunen utsteder slik midlertidig brukstillatelse. Det er ulovlig å ta boligen i bruk uten ferdigattest/midlertidig brukstillatelse. Kjøper har heller ingen plikt til å overta eller innbetale oppgjør uten at ferdigattest/midlertidig brukstillatelse foreligger.
Eiendommen skal overtas ved overtakelsesforretning hvor begge parter deltar. Kjøper skal varsle om ev. forhold som påberopes som mangel ved eiendommen. Det påpekes at dette gjelder alle forhold kjøper avdekker eller med rimelighet burde avdekket ved gjennomgangen. Ev. reklamasjoner og selgers standpunkt til disse skal protokolleres og overtakelsesprotokollen skal signeres av begge parter.
Selger skal overlevere eiendommen i byggrengjort stand, og fellesarealer i ryddet stand.
Kjøper aksepterer at alle utbedringer, overtakelser og ettårsbefaringer avholdes innfor normal kontortid.
Kjøper kan nekte overtakelse dersom eiendommen på overtakelsestidspunktet har feil og/eller mangler som gir rimelig grunn for nektelsen. Selger forplikter seg da til innen rimelig tid å utbedre alle feil og/eller mangler som blir protokollert under befaringen.
Risikoen for eiendommen går over på kjøper når kjøper har overtatt eiendommen. Hvis eiendommen ikke overtas til avtalt tid, og årsaken ligger hos kjøper, har kjøper risikoen fra det tidspunkt eiendommen kunne vært overtatt. Når risikoen for eiendommen er gått over på kjøper, faller ikke kjøpers plikt til å betale kjøpesummen bort ved at eiendommen blir ødelagt eller skadet som følge av en hendelse som selger ikke svarer for.
Beskrivelse av tomt
Ca. 1.800 kvm felles eiet tomt for Sameiet. Tomtene vil disponeres av sameiet i felleskap. Tomten disponeres av seksjonseierne i henhold til sameiets vedtekter. Det gjøres oppmerksom på at oppgitte areal er et ca. areal da eiendommen ikke er fradelt eller oppmålt pr i dag.
Videre vil borettslaget være en del av et realsameie på øvrig tomteareal (felles tomteareal) som blir felles for sameiet og prosjekterte rekkehus på Bjønnavegen 10. Kostnader til drift av dette areal vil faktureres over de månedlige felleskostnadene. Kostnader til drift av dette areal fordeles mellom sameiet og rekkehusene iht. ideell andel.
Diverse
Etter eierseksjonsloven § 23 kan ingen kjøpe en boligseksjon hvis kjøpet fører til at man, direkte eller indirekte, blir eier av flere enn to boligseksjoner i eierseksjonssameiet. Begrensningen gjelder ikke kjøp av fritidsboliger. Det finnes også enkelte andre unntak i bestemmelsen.
Etter aksept av bud, vil eiendommens salgssum bli meddelt de som ev. måtte etterspørre denne. Eiendommens salgssum vil bli offentlig tilgjengelig ved overføring av hjemmel.
Det oppfordres til en grundig gjennomgang av utarbeidet salgsoppgave som må leses før eventuelt avgivelse av bindende kjøpsbekreftelse. Salgsoppgaven kan lastes ned fra nett eller fås hos megler.
Det forutsettes at skjøtet tinglyses på ny eier. Hvis kjøper ikke ønsker en hjemmelsoverføring av eiendommen til seg, må det tas forbehold om dette i budet.
Oppvarming
Elektrisk oppvarming i alle rom. Varmekabler i deler av gulv på gang og bad/vaskerom. Panelovn på stue og begge soverom.
Garasje/parkering
Parkering i carport ved leilighet for leiligheter i første etasje. For leiligheter i 2 etasje i felles carportanlegg. En parkeringsplass pr leilighet med tilhørende sportsbod i bakkant for leilighetene i første etasje. Leilighetene i 2. etasje får carport og sportsbod i fellesanlegg. Parkeringsplassene fastsettes i Sameiets vedtekter. Selger forbeholder seg retten til tildeling av parkeringsplasser og boder.
Organisasjonsform
Boligene selges som eierseksjoner, og vil bli organisert som et eierseksjonssameie. Sameiet er planlagt å bestå av totalt 8 boligseksjoner. Selger tar forbehold om antall seksjoner i sameiet. Det vil bli fastsatt en sameiebrøk for hver eierseksjon, som uttrykker sameieandelens størrelse. Selger vil besørge eiendommen seksjonert i eierseksjoner, senest før overtakelse.
Kjøpers rettigheter som medlem i et sameie følger av lov om eierseksjoner og vedtektene. Sameiet vil bli ledet av et styre som velges blant eierne. Sameiets styre skal ivareta alle saker av felles interesse for sameierne. Kjøperne vil bli innkalt til oppstartsmøte hvor nytt styre bli valgt, samt en gjennomgang av sameiets budsjett, vedtekter og eventuelle husordensregler.
Kjøper kan ikke kjøpe eller på annen måte erverve flere enn to boligseksjoner i sameiet, jf. eierseksjonsloven § 23.
Selger forbeholder seg retten til å etablere ett eller flere sameier, avhengig av hva som er hensiktsmessig i forhold til utbyggingstakt, salg, fremtidig drift og bruksrettigheter. Det gjøres oppmerksom på at vedtektene kan bli endret som følge av selgers valg av organisering av prosjektet.
Lånebetingelser fellesgjeld
Ingen fellesgjeld
Midlertidig brukstillatelse og ferdigattest
Det er ulovlig å ta boligen i bruk uten ferdigattest eller midlertidig brukstillatelse, og selger plikter å fremlegge minimum midlertidig brukstillatelse til kjøper og megler før overtakelse.
Selger skal sørge for ferdigattest. Dersom kommunen utsteder midlertidig brukstillatelse kan kjøper overta og bebo boligen. Gjenstående arbeider skal ferdigstilles av selger innen den frist som er satt av kommunen. Dersom gjenstående arbeider ikke blir utført innen fristen, kan kommunen gi selger pålegg om å ferdigstille, ev. gi tvangsmulkt og/eller forelegg.
Dersom overtakelse skjer ved midlertidig brukstillatelse, oppfordres kjøper til å sette seg inn i hva som gjenstår for at ferdigattest skal bli stilt. Kjøper har rett til å holde tilbake et beløp av oppgjøret på meglerforetakets klientkonto, som sikkerhet for utstedelse av ferdigattest. Beløpet kan frigis på bakgrunn av garanti etter bustadoppføringslova § 47, eller ved utstedelse av ferdigattest.
Adgang til utleie
Det følger av eierseksjonsloven § 24 at korttidsutleie av hele boligseksjonen i mer enn 90 døgn årlig ikke er tillatt. Bestemmelsen gjelder ikke for fritidsboliger. Med korttidsutleie menes utleie inntil 30 døgn sammenhengende. Grensen på 90 døgn kan fravikes i vedtektene og kan i så fall settes til mellom 60 og 120 døgn. Slik beslutning krever et flertall på minst to tredjedeler av de avgitte stemmene på årsmøtet. Ta kontakt med megler dersom du ønsker kopi av vedtektene for nærmere informasjon om hvilke vedtak som er fattet i dette sameiet om korttidsleie.
Forbehold fra utbygger
Selger tar forbehold om følgende:
" At, en for selger, tilfredsstillende offentlig godkjenning i form av igangsettingstillatelse innvilges for prosjektet.
" At 4 av 8 leiligheter forhåndsselges slik at, en for selger, tilfredsstillende byggelånsfinansiering innvilges for prosjektet.
" At, ingen uforutsette prisstigninger innenfor entreprisen oppstår, slik at prosjektets budsjett ikke lenger kan forsvares.
Selgers forbehold skal være avklart innen 01.09.2025.
Selger kan uavhengig av ovennevnte, selv velge å slette forbeholdene innen fristen selv om forbeholdene ikke er innfridd i form av tilfredsstillende salg og innvilget igangsettingstillatelse. Dette er ikke meglers avgjørelse og ansvar, og kjøper er innforstått med at det i et slikt tilfelle er selger som bærer all risiko for å få prosjektet realisert.
Særskilt forbehold vedrørende Covid-19 "koronavirus" pandemien
Den siste tids utvikling forårsaket av pandemien knyttet til Covid-19 har medført at flere land, herunder Norge, har iverksatt tiltak for å begrense smittespredning. Generelt sett har dette allerede forstyrret den globale logistikken og medført vanskeligheter kontaktskjedene. Selger vil kunne bli rammet direkte eller indirekte av det pågående utbruddet med den konsekvens at byggearbeidenes fremdrift kan bli påvirket. Om og i hvilken grad byggeprosjektets fremdrift vil kunne bli påvirket, er ukjent på kontraktinngåelsestidspunktet og er utenfor byggherres kontroll. "Forsinkelser" eller andre oppfyllelsesvanskeligheter som skyldes konsekvenser av koronavirus gir selger rett til forlenget byggetid og kan ikke gjøres gjeldende som forsinkelse av kjøper. Denne kontrakts bestemmelsen har forrang ved ev. motstrid med andre kontrakts bestemmelser.
Tilvalg og endringer
Kjøper har mulighet til å få utført endrings- og tilleggsarbeider etter særskilt avtale. Alle endrings- eller tilleggsarbeider skal avtales skriftlig mellom partene og i avtalen skal det redegjøre for pris og ev. fristforlengelse som følge av endringene. Kjøperes rett til å få utført endrings- eller tilleggsarbeid er begrenset til 15 % av kjøpesummen.
Kjøper kan endre spesifikasjoner for sin leilighet gjennom prosjektets fastsatte tilvalgsrutiner. Det vil bli utarbeidet en egen tilvalgsbrosjyre som viser hva man kan velge. Det er en forutsetning at endringene er i samsvar med kravene som fremkommer av gjeldende teknisk forskrift.
Partene kan kreve justering av det avtalte vederlag i henhold til bustadoppføringslovas regler om endringer og tilleggsarbeid, jf. bustadoppføringslova. § 9 og § 42. Selger kan kreve tilleggsvederlag for nødvendige kostnader som kommer av forhold på kjøpers side.
Betalingsbetingelser
Hele kjøpesummen sammen med omkostninger skal innbetales til meglers klientkonto ved overtakelse, forutsatt at selger har stilt lovpålagt garanti etter bustadoppføringslova § 12. I henhold til bustadoppføringslova vil kjøpers innbetaling være å anse som forskudd inntil eiendommen er overtatt og skjøtet er tinglyst.
Selger kan velge å stille garanti etter bustadoppføringslova § 47 som sikkerhet for forskuddsinnbetalingen. Dette innebærer at utbygger kan disponere forskuddsinnbetalingen fra kjøper fra det tidspunkt garantien foreligger. Eventuelle renter av forskuddsbeløpet tilfaller kjøper frem til garanti er stilt og til selger etter at garantien er stilt. Dersom selger ikke velger å stille garanti vil forskuddsbetalingen bero på meglers klientkonto inntil skjøte er tinglyst på kjøper.
Budgivning
Budgivning i forbrukerforhold
Budgivere oppfordres til å legge inn bud elektronisk. Dette gjøres på eiendommens hjemmeside på aktiv.no, ved å bruke «Gi bud»-knappen. Ved elektronisk budgivning, samtykker budgiver til elektronisk kommunikasjon. Eiendomsmegler skal legge til rette for en forsvarlig avvikling av budrunden og kan ikke videreformidle bud med en kortere akseptfrist enn kl. 12.00 første virkedag etter siste annonserte visning. Etter klokken 11:30 anbefaler vi akseptfrist på minimum 30 minutter. Bud bør legges inn i god tid før konkurrerende buds akseptfrist utløper. For øvrig henvises til forbrukerinformasjon om budgivning i salgsoppgaven. Oppdragsgiver er oppfordret til å ikke ta imot bud direkte fra budgiver, men å henvise budgiver videre til megler. Som kjøper vil du få forelagt kopi av budjournal. Alle bud vil bli gjort kjent for kjøper og selger i handelen. Øvrige budgivere kan be om å få en kopi av budjournal i anonymisert form.
Budgivning utenfor forbrukerforhold
Budgivere oppfordres til å legge inn bud elektronisk. Dette gjøres på eiendommens hjemmeside på aktiv.no, ved å bruke «Gi bud»-knappen. Ved elektronisk budgivning, samtykker budgiver til elektronisk kommunikasjon. Det anbefales at hvert bud har en akseptfrist som muliggjør en forsvarlig avvikling av budrunden. Vi anbefaler minimum 30 minutter akseptfrist. Oppdragsgiver er oppfordret til å ikke ta imot bud direkte fra budgiver, men å henvise budgiver videre til megler.
Opplysningene i salgsoppgaven er godkjent av selger. Alle interessenter oppfordres imidlertid til grundig besiktigelse av eiendommen, gjerne sammen med fagmann før bud inngis.
Ansvarlig megler
Tomas Høin
Nyttige lenker
Nærområdet
Annonseinformasjon
| FINN-kode | 300853816 |
|---|---|
| Sist endret | 26. aug. 2025 10:25 |
| Referanse | 1708235007 |
Annonsene kan være mangelfulle i forhold til lovpålagt opplysningsplikt. Før bindende avtale inngås oppfordres interessenter til å innhente komplett informasjon fra meglerforetaket, selger eller utleier.






