Bildegalleri

Halvpart av tomannsbolig sentralt beliggende på Ulve. Carport | 4 soverom | 2 stuer | Walk in garderobe | Skjermet hage
Ulvevegen 26
Kun 1 ledig! Tomannsbolig med sentral beliggenhet på Frol. 4 soverom, 2 stuer og parkering i carport.
Prisantydning
5 490 000 kr
Prosjektets status
Planlegging
Ferdig.
Salgsstart
Salget er igangsatt.
Byggestart
Bygging er igangsatt.
Overtakelse
Oktober 2023 - januar 2024.
Nøkkelinfo
- Boligtype
- Tomannsbolig
- Soverom
- 4
- Internt bruksareal
- 136 m² (BRA-i)
- Bruksareal
- 141 m²
- Eksternt bruksareal
- 5 m² (BRA-e)
- Balkong/Terrasse
- 61 m² (TBA)
- Eieform
- Eier (Selveier)
Enhet i prosjektet
Sorter etter
| Enhet | BRA-i | Soverom | Totalpris |
|---|---|---|---|
| B - Delikat bolig med mod... | 136 m² | 4 | 5 542 840 kr |
Beskrivelse
Kort om eiendommen
Velkommen til Ulvevegen 26!
På eiendommen er 2 nøkkelferdige boliger nylig ferdigstilt og klar for overtakelse. Her får du sentral beliggenhet med trygg og kort gange til Frol oppvekstsenter og Frol barnehage. Her er det tilrettelagt for en enkelt hverdag med nærhet til de fleste funksjoner man trenger i hverdagen, samt 4 soverom, 2 stuer og toalett i begge etasjer. Parkering i carport med takoverbygg inn til inngangsdøra. Boligene er oppgradert med blant annet spotter og ledskinner i himling på stue/kjøkken, parkett på gulv, kjøkken i eikefarge med sort benkeplate og integrerte hvitevarer, samt bad med beige fliser i ulike størrelser og veggfestet toalett. Royalimpregnerte terrassebord og utvendig kledning malt to strøk.
Boligen har energikarakter B som gir muligheten for Grønt Boliglån med svært gode rentebetingelser.
Innhold
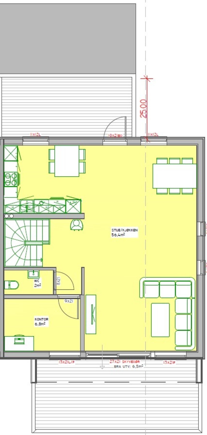
1. etasje: Gang, TV-stue, 3 soverom, bad/vaskerom og garderobe/bod.
2. etasje: Stue/kjøkken, wc og kontor/sov.
I tillegg kommer carport og utvendig sportsbod.
Bygningsinformasjon / byggemåte
Se selgers leveranse-/byggbeskrivelse.
Byggebeskrivelsen/leveransebeskrivelsen skal angi hvilken teknisk standard prosjektet leveres med, samt foreløpig angi hva komplett leveranse etter kjøpekontrakten innebærer. Dersom det ikke er tatt inn spesifiserte bestemmelser i kjøpekontrakten, gjelder følgende krav:
- De tekniske løsninger skal tilfredsstille plan- og bygningslovgivningen, herunder kravene i teknisk forskrift.
- Utført arbeid skal tilfredsstille avtalte toleranseklasser i henhold til kontrakt. Om ikke toleransekrav er avtalt i kontrakt vil krav til avvik være i henhold til normalkrav i standarden, jfr. Norsk Standard NS 3420-1:2008
Det gjøres oppmerksom på at iht. teknisk forskrift, så er det ikke krav om at alle vinduer leveres med åpningsmulighet.
Selger forbeholder seg retten til å foreta endringer i materialvalg og konstruksjonsløsninger, samt foreta tilpasninger som er nødvendig etter hvert som tiltaket detaljprosjekteres uten forhåndsvarsel til kjøperne. Dette gjelder også ev. sammenslåing eller oppdeling av leiligheter. Endringene skal ikke redusere byggets eller leilighetens kvalitet eller vesentlig endre innholdet i prosjektet som sådan. Slike endringer gir ikke rett til prisjustering fra noen av partene. Om det blir nødvendig å gjennomføre vesentlige endringer ut over de forannevnte bestemmelser, plikter selger å varsle kjøper om endringene uten ugrunnet opphold.
Oppvarming
Luft til luft varmepumpe, samt vedovn. Elektriske varmekabler i ytterste del i gang, samt på bad/vaskerom. Ellers oppvarming med panelovner.
Beliggenhet
Eiendommen ligger i ei rolig blindgate uten gjennomgangstrafikk. Her bor det barn i alle aldre, det er gode oppvekstsvilkår og et hyggelig og trygt bomiljø. Barnehage og barneskole i umiddelbar nærhet. Eiendommen ligger fint til på Frol med kort avstand til bl.a. Levanger sentrum med offentlige kontorer, banker, forretninger, jernbane, etc. Like i nærheten finner du også Nord Universitet. Trønderhallen med svømmehall, Frol oppvekstsenter, barnehager og Røstadlandet med fine turstier, Røstad legesentret og apotek.
Adkomst
Kjør nordover fra Levanger sentrum. Ta til høyre i første rundkjøring inn i Okkenhaugvegen. Hold denne veien et godt stykke, og ta etter hvert til høyre inn i Sommervegen og deretter første til venstre inn i Ulvevegen. Du vil da etter hvert få boligene på høyre hånd.
Parkeringsforhold
Parkering i carport med takoverbygg inn til inngangsdøra.
Regulering
Boligen ligger utenfor regulert område. Eiendommen ligger innenfor kommunens arealdel i et område avsatt til
Vei, vann og kloakk
Offentlig via private stikkanlegg.
Ferdigattest
Det er utstedt ferdigattest 06.12.2023.
Beskaffenhet
Flat eiet tomt som leveres med gruset gårdsplass og tilsådd plen.
Nyttige lenker
Nærområdet
EiendomsMegler 1 Levanger
Annonseinformasjon
| FINN-kode | 299789850 |
|---|---|
| Sist endret | 11. des. 2025 11:00 |
| Referanse | PFS-51220288 |
Annonsene kan være mangelfulle i forhold til lovpålagt opplysningsplikt. Før bindende avtale inngås oppfordres interessenter til å innhente komplett informasjon fra meglerforetaket, selger eller utleier.
































