Bildegalleri

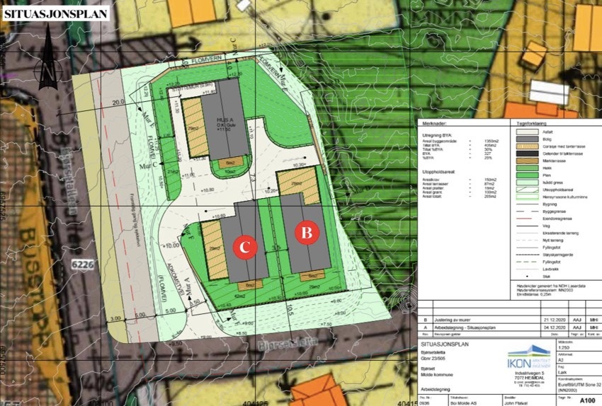
Bjørsetsletta 1C er gjenværende hus i prosjektet. Husetr vil bli reist sørvest på felles tomt.
Bjørset - 3 eneboliger under oppføring i attraktiv, bynært område - 4 sov - 2...
3 eneboliger under oppføring i attraktiv, bynært område - 4 sov - 2 bad - 1 IGJEN
Prisantydning
Solgt
Prosjektets status
Planlegging
-
Salgsstart
-
Byggestart
-
Overtakelse
-
Nøkkelinfo
- Eieform
- Eier (Selveier)
Visning
Beskrivelse
Prosjektets beskrivelse
Pa° Bjørsetsletta er det under oppføring 3 eneboliger pa° en solrik utsiktstomt. Bjørsetsletta ligger vest i Molde i gang- og sykkelavstand til sentrum. Dette er en sjelden anledning til a° flytte inn i en innholdsrik og nøkkelferdig enebolig.
Boligene i prosjektet fa°r et stilfullt og moderne utrykk. Videre vil boligene blant annet ha disse kvalitetene:
Store vindusflater i 2. etasje som gir gode utsikts- og lysforhold
Ekstra god takhøyde i 2. etasje
Kjøkken fra Sigdal med hvitevarer fra Siemens
4 soverom
2 bad
Separat vaskerom
Garasje med takterrasse
Fin utsikt som varierer fra bolig til bolig
Velkommen til Bjørsetsletta!
Oppdragsansvarlig
Privatmegleren Molde AS / Emil Hollingen
Selger/Utbygger
Boi Molde AS
Betegnelse
Gnr. 23 Bnr. 505 i Molde kommune
Tinglyste rettigheter og forpliktelser
Kommunen har legalpant som sikkerhet for betaling av kommunale avgifter. Legalpant er pant som følger av loven, og som ikke tinglyses. Legalpant følger derfor eiendommen ved salg. På eiendommen kan det være tinglyst erklæringer som f eks rett for kommunen til å vedlikeholde rørsystemer for vann- og kloakk. Disse erklæringene vil følge eiendommen ved salg. Kontakt megler for nærmere informasjon.
Øvrige sameiere har panterett i seksjonen for krav mot sameieren som følge av sameieforholdet, jf. eierseksjonsloven § 31. Pantekravet kan ikke overstige 2G (Folketrygdens grunnbeløp). Sameiet kan vedtektsfeste ytterligere panterett for sameiet. Vedtektsfestet pant tinglyses i seksjonene.
Servitutter / rettigheter
Eiendommen overdras fri for pengeheftelser, med unntak av eventuelle erklæringer, avtaler, servitutter og panteheftelser som fremgår av salgsoppgaven og skal følge med eiendommen ved salg. Kjøpers bank vil få prioritet etter disse.
Vei / Vann / Avløp
Adkomst frem til boligtunet ga°r over egen, privat vei hvor eiendommene øst/sør for tomten har tinglyst veirett. Adkomsten innad i boligtunet er privat. Boligene vil bli pa°koblet offentlig vann og avløp.
Verdi ved skattefastsetting
Verdien ved skattefastsetting er p.t. ikke fastsatt. Verdien ved skattefastsetting fastsettes av Ligningskontoret etter beregningsmodell som tar hensyn til om boligen er en såkalt "primærbolig" (der boligeieren er folkeregistrert bosatt) eller "sekundærbolig" (alle boliger man eier, men ikke bor fast i). Interessenter oppfordres til å sjekke www.skatteetaten.no eller kontakte ansvarlig megler for nærmere informasjon om verdien ved skattefastsetting.
Reguleringsforhold
Eiendommen er delvis regulert til boligbebyggelse, grønnstruktur/fornminne, gang-sykkelvei og kjørevei. Reguleringsplanen heter «Storvika, Bjørset» Kommuneplanen viser at eiendommen er avsatt delvis til boligbebyggelse og grønnstruktur. Reguleringsplan med kart og bestemmelser er vedlagt prospektet. Kommuneplan med kart og bestemmelser er innhentet av megler og kan fås ved henvendelse.
Det er planlagt et nytt leilighetsbygg i Skolevegen, like vest for eiendommen. Ta kontakt med megler for mer informasjon angående status i dette prosjektet.
Beskrivelse av sameiet
En sameier eier en andel i eiendommen, med tilknyttet enerett til bruk av sin bruksenhet, jf. eierseksjonsloven § 25.
Ingen kan erverve mer enn to boligseksjoner i et sameie, jf. eierseksjonsloven § 23 første ledd. Dersom et erverv har funnet sted i strid med eierseksjonslovens regler kan Kartverket nekte overskjøting.
Dersom overskjøting blir nektet, er kjøper likevel forpliktet til å gjennomføre handelen med selger, og oppgjør til selger vil finne sted tross manglende overskjøting.
Interessenter oppfordres til å sette seg inn i sameiets vedtekter, husordensregler, regnskap, budsjett, årsberetning m.m. Se særlig om vedtekter og husordensregler knyttet til husdyrhold, dugnader, trappevask o.l.
Finansiering
Kontakt megler for avklaring av finansielle forhold, herunder lån til kjøp av eiendom. Privatmegleren har avtale med Nordea om formidling av lån og andre finansielle tjenester. Privatmegleren mottar godtgjørelse for dette.
Adgang til utleie (boligformål)
Eneboligene kan leies ut i sin helhet til boligforma°l.
Sikkerhetsstillelse
Alle eiendomsmeglingsforetak har lovpålagt forsikring av klientmidler begrenset oppad til kr 45 mill. Enkeltsaker er forsikret inntil kr 15 mill. Dersom kjøpers låneinstitusjon krever tilleggsforsikring ved omsetning over 15 millioner, må kjøper selv eller dennes låneinstitusjon dekke utgiftene forbundet med dette.
Planlagt overtagelse
Hus C er estimert ferdigstilt Q3/Q4 2024 under forutsetning av at huset er solgt i løpet av Q3 2023.
Husene bygges fortløpende når de er solgt. Det er estimert oppstart på bygging ca. 1 måned fra
budaksept. Det er estimert byggetid på ca. 8-10 måneder fra byggestart
Solgt ihht bustadoppføringsloven
Boligene selges i henhold til Bustadoppføringslova som regulerer kjøpers (forbrukers) rettigheter og plikter ved avtale om oppføring av bolig og kjøp av fast eiendom der bygningen ikke er fullført når avtalen inngås. Ved salg til aksjeselskap legges Avhendingslovens bestemmelser til grunn. For øvrig gjelder Lov om eierseksjoner for eierseksjonssameiet og driften av dette.
Garantier
Selger stiller sikkerhet/garanti for oppfyllelse av sine forpliktelser iht kontrakten i samsvar med Bustadsoppføringslova § 12. Sikkerheten utgjør 3 % av kjøpesum fra heving av forbehold frem til overtakelse, deretter øker sikkerheten til 5 % og vil gjelde i fem a°r etter overtakelsen. Tilvalg/ endringer pa° et senere tidspunkt, vil ikke pa°virke størrelsen pa° selgers sikkerhetsstillelse. Selger kan stille garanti etter Bustadsoppføringslova § 47 for a° kunne disponere over innbetalt forskudd/ delinnbetaling/sluttoppgjør av kjøpesum før hjemmelsovergang. Renter av innbetalt forskudd/ delinnbetaling/sluttoppgjør tilfaller kjøper frem til den dato garanti etter §47 evt. blir stilt for det beløpet det gjelder. Etter denne dato vil renter av innbetalingen tilfalle selger.
Forsikring
Frem til overtagelse vil eiendommen være forsikret av selger. Etter overtagelse vil eiendommen forsikres gjennom sameiets fellesforsikring. Kjøper må selv besørge innboforsikring og forsikring av eventuelle særskilte påkostninger.
Budgiving
Se vedlagte prisliste med prisantydning. Selger sta°r fritt til na°r som helst a° endre priser pa° boliger som ikke er solgt. Prislisten er ikke a° anse som et tilbud og er derfor ikke bindende for selger. Avtalt kjøpesum kan ikke endres etter aksept.Nærmere info om budgiving finner du på egen side sammen med kjøpetilbud/budskjema.
Som budgiver hos Privatmegleren kan du kreve budjournal fremlagt så snart handel er gjennomført.
Innhold i budjournal er lovregulert, og innebærer at budgivere må akseptere at opplysninger om budet kan bli fremlagt for selger, kjøper og øvrige budgivere. Budgiver som ikke blir kjøper, kan kreve kopi av anonymisert budjournal.
Lov om hvitvasking
Megler er underlagt lov om hvitvasking som innebærer plikt til å melde ifra til Økokrim om mistenkelige transaksjoner
Nyttige lenker
Nærområdet
Privatmegleren Molde
Annonseinformasjon
| FINN-kode | 296766484 |
|---|---|
| Sist endret | 20. juli 2025 02:07 |
| Referanse | 45219001 |
Annonsene kan være mangelfulle i forhold til lovpålagt opplysningsplikt. Før bindende avtale inngås oppfordres interessenter til å innhente komplett informasjon fra meglerforetaket, selger eller utleier.










