Bildegalleri
Virtuell møblering av ledig leilighet, avvik kan forekomme.
Fokusgården
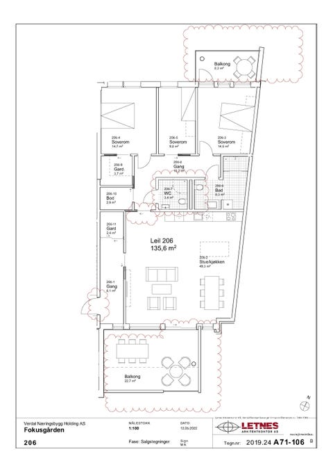
Fokusgården - Kun 1 ledig: ubebodd og lekker 4-roms på 136 kvm i 2. etasje. 2 balkonger. Ekstra toalettrom.
Prisantydning
2 380 000 kr
Kort om prosjektet
Velkommen til Fokusgården - et urbant og stilig leilighetsprosjekt beliggende i vest-enden av Nordgata - først ut i forbindelse med "fornyelsen" av Nordgata. Prosjektet har en god miks av leiligheter med et spenn fra 38m²-160m².
Prosjektets status
Planlegging
Vinteren 2022
Salgsstart
Vinteren 2022
Byggestart
Våren 2022
Overtakelse
Boligene er innflyttingsklare
Nøkkelinfo
- Boligtype
- Leilighet
- Soverom
- 3
- Antall etasjer
- 4
- Internt bruksareal
- 136 m² (BRA-i)
- Bruksareal
- 136 m²
- Eieform
- Andel
- Energimerking
- A - Oransje
Utvalgte enheter

Enhet i prosjektet
Sorter etter
| Enhet | Etasje | BRA-i | Soverom | Totalpris | |
|---|---|---|---|---|---|
| 206 | 2 | 136 m² | 3 | 5 975 353 kr |
Visning
Ta kontakt for å avtale visning.Beskrivelse
Kun 1 ledig leilighet: en romslig og ubebodd 4-roms leilighet på hele 136m² med god planløsning i 2. etasje:
- Vannbåren gulvvarme og forbruk varmtvann er inkludert i felleskostnadene - miljøvennlig, kostnadsbesparende og god komfort. Energimerke "Oransje A" underbygger dette.
- Leiligheten har 2 romslige balkonger: en mot sør og en mot nord.
- Gjennomgående høy standardleveranse både ut- og innvendig.
- Heis og egen p-plass i parkeringskjeller, samt bod.
- Innvendig heis, trapperom og ganger.
- Felles oppholdsrom/aktivitetsrom og takterrasse for beboerne i borettslaget.
- Meget sentral beliggenhet med kort veg til "alt".
Kontakt megler for privatvisning.
Se også hjemmeside for prosjektet på www.fokusgaarden.no
Historien
Det gamle Fokus bank-bygget ble tegnet av Trondheimskontoret Lien og Risan Arkitektkontor AS i 1985. Når bygget nå skal bli leiligheter har man forsøkt å ha respekt for både på fortid og fremtid, blant annet gjennom gjenbruk av en del av betongkonstruksjonene.
Fokusgårdens nye beboere vil vandre i den samme trappen som de bankansatte gjorde. Noen får bod i det gamle bankhvelvet, mens andre vil kunne ha middagsselskap i en nisje i den skrå himlingen, som forteller om det store, skrå taket, som en gang var.
I dag
Det nye Fokusbygget vil bli et flott tilskudd i sentrumsutviklingen. Bygget er tegnet spesielt med tanke på bærekraftige løsninger og god kvalitet.
Beliggende midt i smørøyet vil beboerne har kort vei til alle byens fasiliteter, i enden av Nordgata mot vest.
Beboerne kan nyte godt av en felles takterrasse på 100m², felles oppholdsrom på 150m² i første etasje, parkering i p-kjeller, heis, romslige, private balkonger og grøntarealer både i bakgården og på vest-siden av huset.
Arkitektens tanker
Å bo i den gamle banken
Fokus bank-bygget i Verdal ble tegnet av Trondheimskontoret Lien og Risan Arkitektkontor AS i 1985.
Å gjenbruke eksisterende bygninger vil være en stor og viktig del av byggebransjens oppgaver i årene som kommer. Å gjenbruke materialer og konstruksjoner er nødvendig for å begrense klimagassutslippene. I dette prosjektet er det valgt å benytte eksisterende betongkonstruksjon.
Fokusgårdens beboere vil vandre i den samme trappen som de bankansatte gjorde, noen får bod i det gamle bankhvelvet, mens andre vil kunne ha middagsselskap i en nisje i den skrå himlingen, som forteller om det store, skrå taket, som en gang var.
Å bo i byen
Fra Nordgata er det inngang til næringslokalet og inntrukket inngangsparti for boligene, der det er plass til å sette fra seg sykkelen eller barnevogna. Store vinduer i næringslokalet vil vise aktivitet ut mot gata. Dette vil også bidra til en urban følelse i en rolig bygate. Grønne lunger i Fokusparken og i bakgården bidrar til trivsel i området, og beboere i Fokusgården har felles takterrasse og disponibelt areal innendørs på bakkeplan.
Farger i omgivelsene
For å få plass til flere leiligheter blir det bygget en ekstra etasje oppå det gamle bankbygget. Dette 4-etasjes huset ligger inntil et 2-etasjes mellombygg, med terrasse på taket. I eksteriøret er det valgt fasadeplater og trekledning, og de to husene får forskjellige farger.
Varierte og fargerike omgivelser er viktig for mennesket. Dette påvirker vår trivsel og mentale helse. Fokusgården skal bidra til variasjon i fargebruk i området, og ønske velkommen inn i Nordgata fra Håkon den VII's allé.
Leiligheter for alle
Bygget har et stort spenn i leilighetsstørrelser. På denne måten tilbys boliger til mennesker med forskjellige behov og interesser, i ulik alder og livssituasjon. Dette virker ofte positivt på bomiljøet.
Alle leilighetene i prosjektet er tilgjengelige boenheter, som vil si at en kan bo der hele livsløpet, også om en har funksjonsnedsettelse. Dette innebærer blant annet tilstrekkelig areal og trinnfri tilkomst til rom og betjening av funksjoner.
Leilighetsplanene er litt annerledes enn det en ville fått i et nybygg. Det har vært viktig å gi størst mulig areal til stue/kjøkken. Det er her vi oppholder oss mest i den våkne tiden av døgnet, og dette arealet skal romme alle anledninger: Juleselskaper, vennekvelder, et godt sted å være alene, eller tacofredag med familie. Siktlinjer ut i det fri og ekstra god takhøyde bidrar til en luftig romfølelse i leilighetene.
Fra stue/kjøkken kan en ta med kaffekoppen ut på privat balkong eller takterrasse.
Letnes Arkitektkontor AS
Tor Arne Langdal, Arkitekt
Margunn Aksnes, Arkitekt MNAL
Nyttige lenker
Nærområdet
Lokalmegleren & Partners Verdal
Annonsene kan være mangelfulle i forhold til lovpålagt opplysningsplikt. Før bindende avtale inngås oppfordres interessenter til å innhente komplett informasjon fra meglerforetaket, selger eller utleier.




