Bildegalleri

4-mannsbolig Meling.
Meling- 4-mannsbolig på solrike tomt til salgs. Alle SOLGT
Prisantydning
Solgt
Kort om prosjektet
4-mannsboligen ligg like ved den gamle skulen på Meling med kort avstand til nye skulen, Melingsvågen, samt opp til Svortland sentrum. Det er sykkel og gongsti både til skulen og til sentrum. Naturen ligg rett utanfor døra der ein kan gå direkte ut i flotte turløyper.
Prosjektets status
Planlegging
2023
Salgsstart
2023
Byggestart
Januar 2025
Overtakelse
August 2025
Nøkkelinfo
- Eieform
- Eier (Selveier)
Fasiliteter
Enheter i prosjektet
| Enhet | BRA | Soverom | Totalpris |
|---|
Visning
Ta kontakt for å avtale visning.Beskrivelse
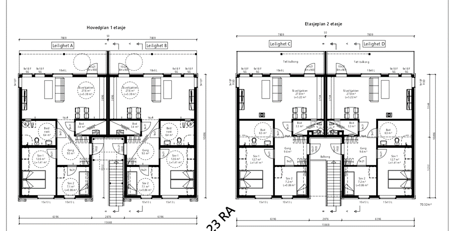
Bømlo Hus byggjer ut solrike tomter på Meling. Bustadfeltet består av 13 store einebustadtomter, samt 7 tomter til fleirmannsbustadar. Tomtene vert heva opp frå eksisterende terreng og ligg solrikt til. Dei får flott utsikt mot Siggjo. Feltet er gjort komplett ferdig med VA anlegg, asfalt, gatelys og leikeområde.
4-mannsboligen leveres med:
• Bad har flislagt golv med varmekabler og baderomsplater på vegg
• Balansert ventilasjon.
• 2 soverom
• Stue og kjøkken i lag
• Laminat på alle "tørre" gulv.
• Moderne kjøkken fra Aubo inkl. hvitevarer.
• Opplegg for El bil lader.
• Innvendig og utvendig bod.
•Alle leilighetene får eigen parkeringsplass. Dette arealet er også satt av til fremtidig carport.
• Stor moglegheit for å få husbank.
Nærområdet

Bømlo Hus AS
Annonsene kan være mangelfulle i forhold til lovpålagt opplysningsplikt. Før bindende avtale inngås oppfordres interessenter til å innhente komplett informasjon fra meglerforetaket, selger eller utleier.








