Bildegalleri

Vikavegen
Flott tomannsbolig med gode kvaliteter- 1 solgt
Prisantydning
3 650 000 kr
Prosjektets status
Planlegging
Bygging er i gang
Salgsstart
Fortløpende
Byggestart
Fortløpende
Overtakelse
Etter avtale
Nøkkelinfo
- Boligtype
- Tomannsbolig
- Soverom
- 3
- Antall etasjer
- 2
- Primærrom
- 99 m²
- Bruksareal
- 106 m²
- Eieform
- Eier (Selveier)
Fasiliteter
Enheter i prosjektet
Sorter etter
| Enhet | P-rom | Soverom | Totalpris |
|---|---|---|---|
| 1 | 99 m² | 3 | 3 741 250 kr |
| 2 | 99 m² | 3 | 3 741 250 kr |
Visning
Ta kontakt for å avtale visning.Beskrivelse
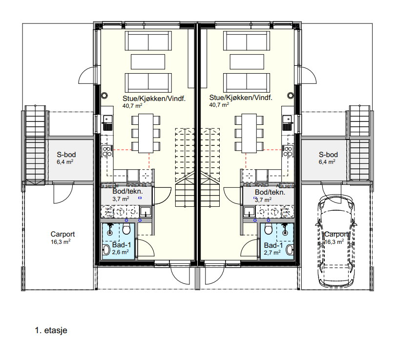
Flott tomannsbolig med eit moderne utrykk og gode kvaliteter. God planløsning og carport med sportsbod. Terrasse over carport.
Her er kan ein flytte rett inn, uten behov for egeninnsats.
Kvaliteter og leveranse
Oppvarming:
Ventilert stålpipe fra Shiedel med ovn av typen Sirius 1, varmekabler i stue og gang nede samt bad 1 og 2 etasje.
Vinduer:
3 lags energi, trevinduer med sort aluminiumskledning utvendig.
Dører:
Ytterdør Leirvik fra Bygg1 , innerdører ID Sletten Kompakt fra Bygg1
Fellesareal:
Felles opparbeidet gruset tilkomstvei.
Balkonger/terrasser:
Tekket dekke over carport/bod inngangsparti. Terassedekke i 28x120 Cuimp kvalitet over carport og platting ved kjøkken på bakkeplan.
Himling:
Gipset himling, ferdig sparklet og malt, i stue/kjøkken og gang 1 etasje, gang 2 etasje samt bad 1 og 2 etasje.
Himling av typen Agnes takess på soverom og teknisk rom.
Gulv:
Laminat room max beige SHE 370 10mm i alle rom. Gulvbelegg på bad og teknisk rom. I bod blir det levert støpt plate med 10 cm styropor i grunnen.
Vegger:
Skillevegg mellom enheter blir levert i dobbelt lag med gips, ferdig sparklet og malt. Alle andre veggflater forruten bad og vaskerom blir levert av typen Walls2paint, ferdig malt. Baderom og teknisk rom leveres med Fibo Trespo 2094-F00 S White. Fargevalg innvendig består av tre forskjellige farger. Vegger i utvendig bod leveres uinnredet.
Listverk:
Karmlister leveres i rund 12x058 hvitmalt, Fotlister i rund 12x058 hvitmalt, taklister i 20x044 RT09 hvitmalt. Alle foringer leveres ferdig hvitmalt.
Kjøkken:
Kjøkken leveres etter plantegning eksklusive hvitevarer. Ventilator medfølger. Kjøkkentypen er av IKEA Akersund i lyst askemønster.
Bad/Teknisk rom:
Bad leveres med innredning etter plantegning, av typen Lind Continental med speilskap. Vegghengte toalett på baderom med buede innfellbare glassdører i dusj. Armatur til baderomsinnredning og dusj medfølger. Opplegg for vaskemaskin på teknisk rom. Vask/innredning på teknisk rom følger ikke med i leveranser.
Sportsbod:
Leveres uinnredet/uisolert med ferdig støpt betongplate på gulv.
TV/internett/telefon:
Det blir lagt opp rør for tilkomst av fiber. Datakabel blir lagt opp til stue og mediakrok 2 etasje.
Elektriske installasjoner/Ventilasjon:
Utvendig tilknytningsskap etter Nek 399 for hver enhet, med 50mm rør til carport klart for eventuell fremtidig billader. Utelampe av typen SG Trio ved hver hovedinngangsdør. Noby 220I brannalarmsentral. Komfyrvakt. Varmekabler i gulv stue og kjøkken 1 etasje samt bad 1 og 2 etasje. Ringeklokke for hver enhet. Utvendig stikkontakt på terrasse og i carport. Takpunkt for lys i carport. Takpunkt for lampe i alle rom, dimmbare takpunkt på kjøkken, stue og mediakrok. Ventilasjonsanlegg av typen Flexit Uni4 (appstyrt), med hovedenhet plassert på teknisk rom. 300L varmtvannstank plassert på teknisk rom. Vannfordelingskap og Elskap plassert på teknisk rom.
Parkering:
Carport blir levert med ferdig støpt betongplate med plass til 1 stk bil. Innvendig mål carport: Bredde 327cm, lengde 500cm. Tomten vil ellers bli opparbeidet med plass til 1 ekstra biloppstillingsplass pr enhet.
Utomhus:
Tomten blir opparbeidet med stedlige masser, klart for videre opparbeiding for plen. Fellesområder/gjesteparkeringer blir levert ferdig gruset. Skillevegg utomhus i front mellom enheter blir montert, lengde 180cm, høyde 200cm.
Nøkkelsystem:
Begge enheter blir levert med 3 sett nøkler til alle dører som går ut. Dør til sportsbod blir også levert med 3 sett nøkler.
Nærområdet
Riksbygg AS
Annonsene kan være mangelfulle i forhold til lovpålagt opplysningsplikt. Før bindende avtale inngås oppfordres interessenter til å innhente komplett informasjon fra meglerforetaket, selger eller utleier.














