Bildegalleri
Illustrasjon stue. Boligen ligger nydelig til i Isdalstø, og vil være klar til innflytning i januar 2026.
Isdalstøbakken 34 A
Moderne tomannsbolig med egen takterrasse i Isdal - Ferdig i januar 2026.
Prisantydning
7 250 000 kr
Prosjektets status
Planlegging
2023
Salgsstart
Vår 2024
Byggestart
Høst 2024
Overtakelse
Januar 2026
Nøkkelinfo
- Boligtype
- Tomannsbolig
- Soverom
- 4
- Internt bruksareal
- 130 m² (BRA-i)
- Bruksareal
- 130 m²
- Eieform
- Eier (Selveier)
Utvalgte enheter
Enhet i prosjektet
| Enhet | BRA-i | Soverom | Totalpris | |
|---|---|---|---|---|
| 1 | 130 m² | 4 | 7 295 875 kr |
Visning
Ta kontakt for å avtale visning.Beskrivelse
Prosjektbeskrivelse
Ledig del av tomannsbolig med takterrasse - ferdigstilles i desember 2025/ Januar 2026. Boligen til høyre er ledig, sett forfra. Denne er sørvest-vendt og har gode solforhold og nydelig utsikt.
Vestvendt og solrik eiendom, sentralt i Isdal med stor takterrasse!
Nyt panorama-utsikt over Kvernafjorden fra stuen, eller rusle ned til kaien i Isdal og ta et kveldsbad.
Dette blir uten tvil et fantastisk sted å bo!
Høydepunkter
- Takterrasse med loftstue
- Flott utsikt mot fjorden!
- 4 soverom
- Ferdig opparbeidet tomt med plen + asfalt
- Huset leveres også med maling utvendig -to strøk
- 500m til SPAR Isdalstø
- 1,2 km til barne-ungdom og videregående skoler.
- 1,5 km til barnehage
- 1,8 km til Knarvik Senter med det meste av daglige servicetilbud.
- 30 minutter kjøring til Bergen
- Gode buss/båt -forbindelser til Bergen
Om boligen
Boligen er en moderne funkisbolig over tre plan med stor takterrasse! Boligen leveres nøkkelferdig, ferdig malt utvending - i tillegg med plen og asfalt.
I U-etg finner du inngangsparti/hall med god plass. To romslige soverom, bad, vaskerom og sportsbod. God plass til oppbevaring.
I hovedetasjen er det stor stue/kjøkkendel med kjøkken fra HTH.
Her er det også to soverom og wc.
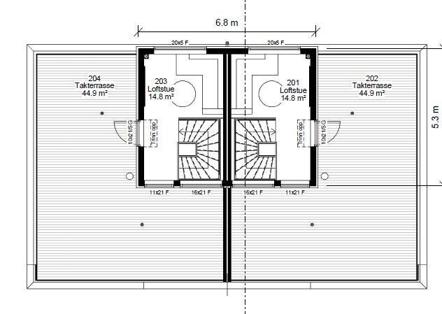
I tredje etasje, oppe på takterrassen kommer en eksklusiv stue på 15 m2. Denne kan også gjøres om til et soverom om det er ønskelig. Takterrassen er på hele 45m2, med glassrekkverk, og har nydelig utsikt over fjorden.
Ta kontakt med selger for visning og gjennomgang av prosjektbeskrivelsen!
Nyttige lenker
Nærområdet
Systemhus - MAJO AS
Annonsene kan være mangelfulle i forhold til lovpålagt opplysningsplikt. Før bindende avtale inngås oppfordres interessenter til å innhente komplett informasjon fra meglerforetaket, selger eller utleier.












