Bildegalleri

Roalkvamhagen
13 Solgt! Roalkvamhagen - velkommen til ditt nye hjem! Reserver din drømmeleilighet nå!
Prisantydning fra
2 550 000 kr
Prisantydning til
4 150 000 kr
Kort om prosjektet
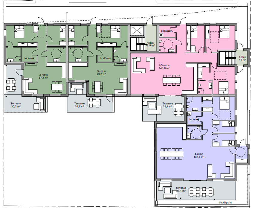
I Roalkvamhagen kan vi tilby 35 nye, lekre leiligheter med gode kvaliteter du vil ha glede av lenge! Vi tilbyr 2 til 5 roms leiligheter fra 55-148 kvm. Leilighetene er arealeffektive og alle har egne uteplasser i tillegg til flotte fellesområder, parkeringskjeller og heis.
Prosjektets status
Planlegging
31.12.2024
Salgsstart
01.01.2025
Byggestart
3 kvartal 2025
Overtakelse
2. kvartal 2026
Nøkkelinfo
- Boligtype
- Leilighet
- Soverom
- 1 - 3
- Antall etasjer
- 5
- Primærrom
- 46 - 79 m²
- Bruksareal
- 55 - 84 m²
- Eieform
- Eier (Selveier)
Fasiliteter
Enheter i prosjektet
Sorter etter
Visning
Ta kontakt for å avtale visning.Beskrivelse
Trenger du et nytt sted å bo? I Roalkvamhagen kan du velge mellom alt fra et passe stort nytt hjem med ett soverom og balkong, til en romslig toppleilighet med takterrasse.
Ved utviklingen av Roalkvamhagen har vi tatt på alvor behovet for effektive leiligheter med god kvalitet. Leilighetene har god plass til det du trenger – og alt er nytt!
Det planlegges også en ordning med utleie av både el-bil og el-sykler for beboerne, samt sykkelparkering både inne og ute. Så her ligger alt til rette for en enklere hverdag!
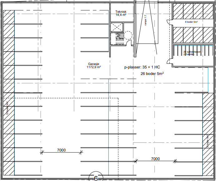
Garasjeplass kan kjøpes for 199 000 pr stk.
Hvilken leilighet passer for deg?
Ingen av våre boligkunder er like. Vil du ha litt større stue, eller er størrelsen på soverommet viktig for deg? I Roalkvamhagen velger du den leiligheten som passer best for deg!
Viktigst av alt er at du skal like stedet du bor. Derfor legger vi listen høyt når vi velger kvalitetene vi tilbyr. Leilighetene leveres med gulvvarme og kvalitetskjøkken i moderne stil. Eikeparkett på alle gulv og tidsriktige kvaliteter på badeværelset. Balkongen til leiligheten din er antakelig større enn du vil finne i andre nye boligprosjekter. Alle leilighetene får sin egen private uteplass i tillegg til felles opparbeidet uteområder.
På fasadene vil du finne trekledning, betong og glass som sammen gir prosjektet et elegant utseende og blir et positivt tilskudd til bebyggelsen i Bø sentrum. Sør Arkitekter er arkitekt for Roalkvamhagen.
Bø i Midt-Telemark - ditt nabolag!
Bøgata er hovedgaten i Bø og har sammen med Bøsenteret en viktig handelsfunksjon i Midt-Telemark.
Bøgata er en koselig gate der du har et rikt utvalg av butikker med blant annet dagligvare, klær, nisjeforretninger, ulike former for service og tjenester, caféer og serveringssteder.
Forøvrig er Midt-Telemark et aktivitetseldorado med spennende opplevelser sommer og vinter. Fra bading i Bø Sommarland, båttur og naturopplevelser langs Telemarkskanalen, til Lifjell med fjellturer, langrenn og alpint. Regionen er i hjertet av Vestfold og Telemark fylke og er et knutepunkt for tog og buss.
Nærområdet
OPPHEIMJORDET AS
Einar Forberg
Annonsene kan være mangelfulle i forhold til lovpålagt opplysningsplikt. Før bindende avtale inngås oppfordres interessenter til å innhente komplett informasjon fra meglerforetaket, selger eller utleier.












