Bildegalleri

Inaktiv
Byggeklare hyttetomter.
Prisantydning600 000 kr
- Totalpris
- 600 000 kr
Nøkkelinfo
Fasiliteter
Bilvei frem
Bredbåndstilknytning
Båtplass
Golfbane
Offentlig vann/kloakk
Utsikt
Fiskemulighet
Turterreng
Visning
Ta kontakt for å avtale visning.Adkomst
Tomtene ligger til fylkesveg mellom Eltravåg og Buavåg. Tomtene kan fritt besiktiges.
Henvendelse. Inge Olsen, tlf 900 39 344. eller Nils G. Staupe tlf.92638242
Henvendelse. Inge Olsen, tlf 900 39 344. eller Nils G. Staupe tlf.92638242
Beliggenhet
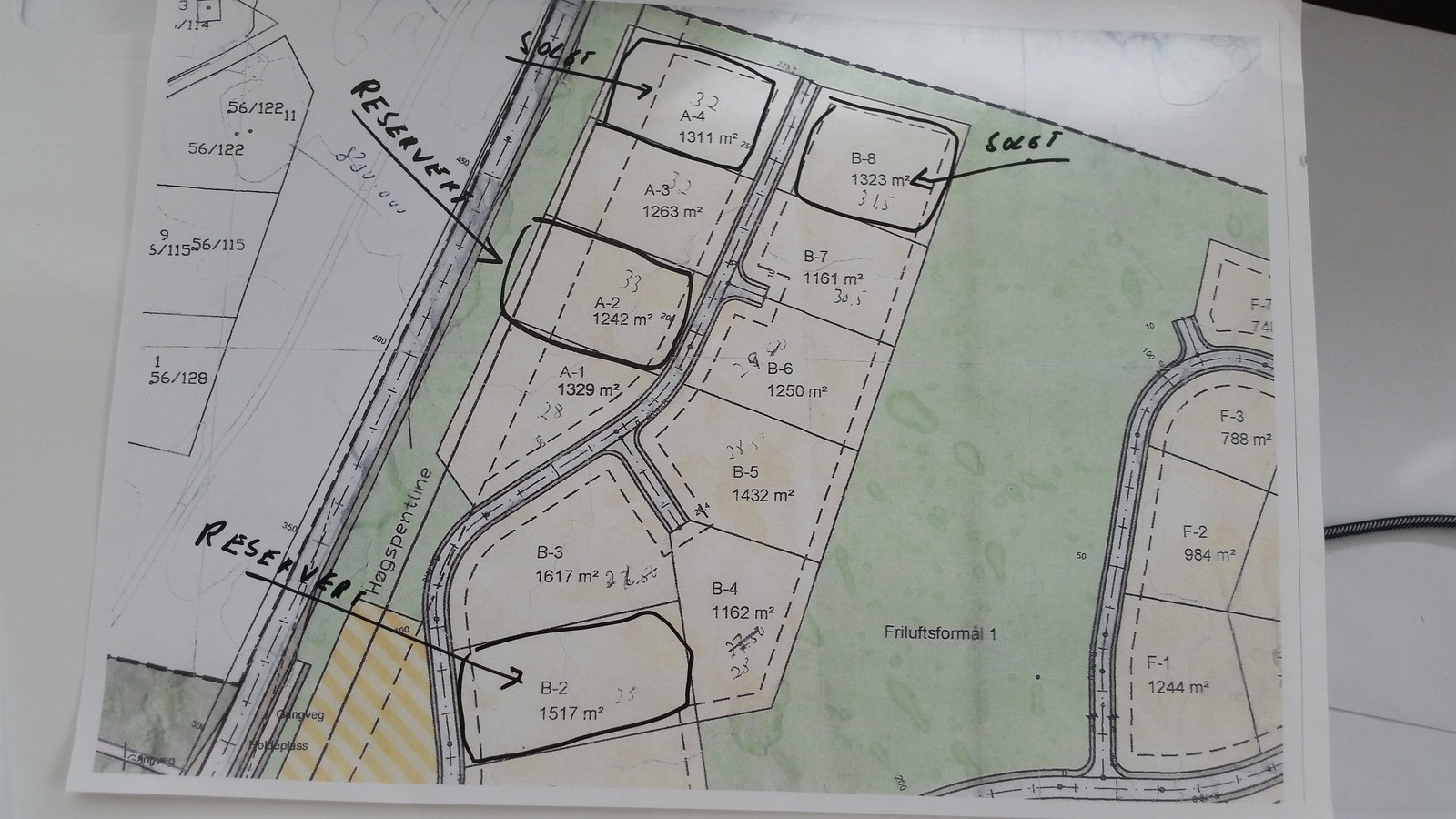
Sletto Aust er et nytt Hyttefelt med 12 tomter, hvorav 6 er solgt. Feltet er ferdig opparbeidet og tomtene er byggeklar. Tomtene ligger paa austsiden av fylkesveg på Sletto hyttefelt, ved innløpet til Bømlafjorden. Her er gode fiskeplasser. Store Naturområder. Kort vei til Sveio senter og Golfbane. 20 km. til Haugesund og 30 til Flyplass.
Vi har også en byggeklar hyttetomt på Sletto Vest nær sjø. Her medfølger båtplass i indre havnebasseng samt 10 m2 tomt til sjøbod. Gnr. 56. bnr. 171
Vi har også en byggeklar hyttetomt på Sletto Vest nær sjø. Her medfølger båtplass i indre havnebasseng samt 10 m2 tomt til sjøbod. Gnr. 56. bnr. 171
Beskaffenhet
Tomtene er ferdig opparbeidet med ledninngsnett i byggegrop. Til tomtene medfølger rett til batplass i ytre havnebasseng. Tomten er fra 1000 til 1400 m2. Alle har havutsikt.
På Sletto Hyttefelt er det totalt solgt 50 hyttetomter og 2 hustomter.
Pris kr. 600.000 til 800.000. Tomtene ligger inne paa Fonnakart. Gnr. 56 bnr. 187 193 194 195 196 197
På Sletto Hyttefelt er det totalt solgt 50 hyttetomter og 2 hustomter.
Pris kr. 600.000 til 800.000. Tomtene ligger inne paa Fonnakart. Gnr. 56 bnr. 187 193 194 195 196 197
Regulering
Fritidshus
NB: Knappen for å vise hele beskrivelsen har kun en visuell effekt.
NB: Knappen for å vise hele beskrivelsen har kun en visuell effekt.
Nærområdet
Annonsene kan være mangelfulle i forhold til lovpålagt opplysningsplikt. Før bindende avtale inngås oppfordres interessenter til å innhente komplett informasjon fra meglerforetaket, selger eller utleier.











