Bildegalleri

Nye tomter i Landamarka (Halsnøy)
Nøkkelinfo
Fasiliteter
Visning
Ta kontakt for å avtale visning.Adkomst
Fra Sæbøvik: Følg fylkesveg 544, ta til høgre i rundkjøringa og så innpå fylkesveg 62 mot Sydnes. Etter ca 400m svingar ein inn til høgre på Bjoanesvegen. Denne følger ein ca 200m før ein igjen tar inn til høgre. Da ligg tomtefeltet bortover langs høgre side av vegen heilt til vegs ende.
Beliggenhet
Tomtene har ein flott beliggenhet, med nydelig sjøutsikt og gode solforhold, og kort veg til sjø.
Kort avstand til Sæbøvik sentrum (5min i bil) og Husnes sentrum (10 min. i bil).
Tomtene er ein utvidelse av populært og barnevenlig byggjefelt.
Beskaffenhet
Regulert felt.
Byggeklare tomter.
Veg, vatn, avløp, fiber og straum er lagt fram til tomtegrensa.
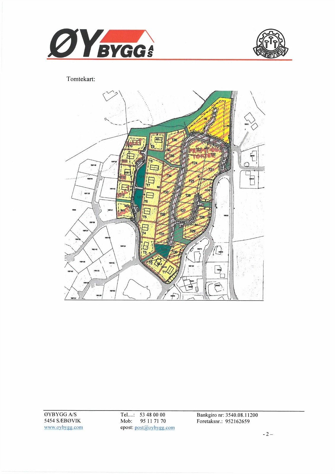
Det er for tida 9 ledige tomter i dette utbyggingstrinnet. Størrelsen varierer fra 800m2 til 1000m2. Prisene starter på 590.000,-
Kommunale tilkoplingsavgifter som må betales for å gjera tomten byggjeklar, er ikkje inkludert i kjøpesummen. Dei må betalast av kjøpar.
Regulering
Nyttige lenker

Nærområdet
Annonseinformasjon
| FINN-kode | 56017907 |
|---|---|
| Sist endret | 16. des. 2017 10:59 |
| Referanse | XLandamarka byggefeltX |
Annonsene kan være mangelfulle i forhold til lovpålagt opplysningsplikt. Før bindende avtale inngås oppfordres interessenter til å innhente komplett informasjon fra meglerforetaket, selger eller utleier.




























