Bildegalleri

Ta kontakt for en god husprat. Fast tomtepris og prosessen videre blir et felles utspill mot byggefirma.
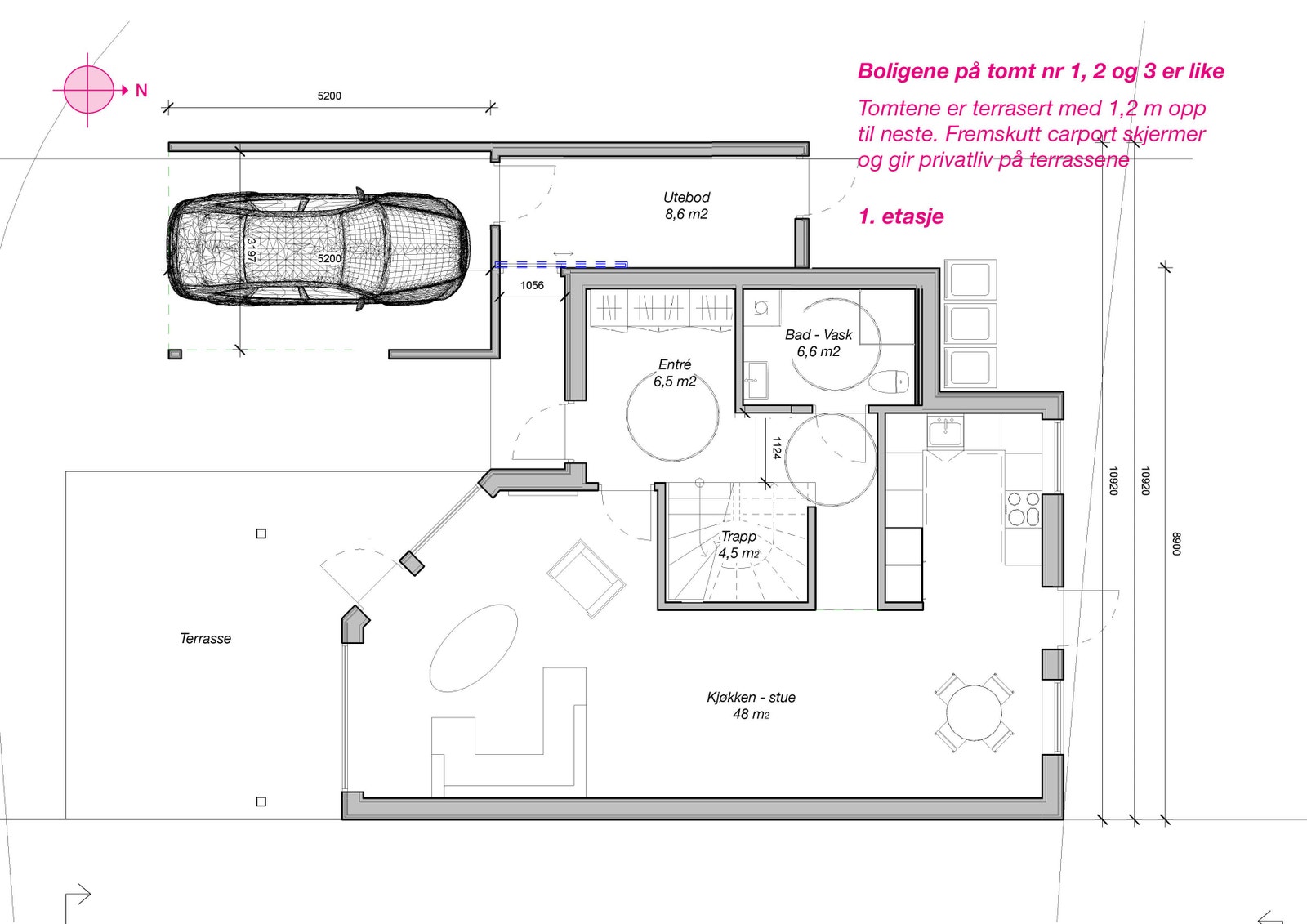
3 stk byggeklare TOMTER
- Totalpris
- 948 125 kr
- Omkostninger
- 23 125 kr
Nøkkelinfo
Fasiliteter
Visning
Ta kontakt for å avtale visning.Adkomst
Beliggenhet
Feltet ligger 500 m fra Coop butikk i Østhusvik.
Kun 100 m til barnehage - og til holdeplass for buss. 6 km med skolebuss til Vikevåg. Småbåthavn i Østhusvik og den større Rennesøy Marina på Gangenes (ca 1 km lenger sør).
Flotte heiområder med etablerte turstier. Rennesøyhodnet når du på ca 1 time til fots.
I Østhusvik finnes også 2 stk serveringsbedrifter/hoteller.
Beskaffenhet
Tomtene er ferdig opparbeidet, terrassert og med rør stukket opp inne på hver tomt.
Prisen er lik for alle = kr 925.000,- pr stk.
BOLIGENE SKAL BYGGES ETTER VISTE TEGNINGER.
Når vi har avtale om tomtekjøp for min. 2 stk tomter i tillegg til den som allerede er reservert for oss selv, blir det oppstart.
2-3 byggefirma vil da bli invitert til å levere anbud etter kravspesifikasjon som er lik
for alle boligene. Dette skal være en åpen prosess og alle tomteeiere forplikter seg
til å bygge etter valgt anbud.
Vi signerer hver for oss identiske, separate kontrakter for ferdig byggesett.
Eventuelle endringskontrakter for innvendige justeringer eller egeninnsats gjøres
av den enkelte direkte med byggefirma.
Dette tomteprosjektet har ligget på vendt i flere år i et dødt marked.
Her har vært tegninger der godkjenning nå er gått over tidsfristen.
De var godkjent med en dispensasjon rundt arealutnyttelse. Dette er det nå justert for.
Mao. disse tegningene skal ikke utfordre reguleringsbestemmelsene på noen måte.
Ny byggesøknad sendes umiddelbart etter at vi har landet avtale om bygging
med et valgt byggefirma. Tegninger klargjøres og søknad med nødvendig ansvarsrett administreres og bekostes av byggefirma iht rammen for anbudsforespørsel.
Vi kan vise tegninger også med fire soverom for boligene til tomt 2 og 3. Det er eventuelt tilpasninger som må tas i endringskontrakt direkte med byggefirma.
PROSSESSEN BLIR SLIK:
Vi møter dere for nærmere orientering og diskuterer eventualiteter.
Tomtekjøp signeres når vi har 2 kjøpere i tillegg til oss selv. Det sikrer igangsetting.
Betaling skal være bekreftet før vi i fellesskap kontakter byggefirma for anbud.
Vi inviterer 2-3 byggefirma for anbud etter tegninger og basis kravspesifikasjon.
Byggefirma gjør klar tegninger og håndterer og bekoster byggesøknad (iht. anbud).
Valgt tilbud deles likt på de fire tomtene og vi signerer hver for oss for bygging.
Endringskontrakter for invendige løsninger evt. egeninnsats avtales individuelt.
Utvendig skal alt utføres av byggefirma iht tegninger/anbudsspesifikasjon.
Utbygging skjer mest mulig samlet men med prioritet etter rekkefølge for signering.
TA KONTAKT FOR EN UFORPLIKTENDE PRAT.
BYGGEFIRMA INVITERES TIL SAMARBEID
Vi kan gjerne ta en direkte dialog med byggefirma om hvordan vi kan realisere
dette prosjektet i fellesskap. Litt ulike tilnærminger med ulike betingelser kan diskuteres.
Regulering
Nærområdet
Annonseinformasjon
| FINN-kode | 453558887 |
|---|---|
| Sist endret | 04. mars 2026 11:12 |
| Referanse | xKjetil Mehusx |
Annonsene kan være mangelfulle i forhold til lovpålagt opplysningsplikt. Før bindende avtale inngås oppfordres interessenter til å innhente komplett informasjon fra meglerforetaket, selger eller utleier.











