Bildegalleri

Utsikt fra tomten vestover mot elven og Rolvsøy
Utsiktstomt med rammetillatelse for oppføring av tomannsbolig
Prisantydning1 600 000 kr
- Totalpris
- 1 641 350 kr
- Omkostninger
- 41 350 kr
Nøkkelinfo
Fasiliteter
Bilvei frem
Offentlig vann/kloakk
Utsikt
Visning
Ta kontakt for å avtale visning.Adkomst
Det er adkomst via kommunal vei.
Beliggenhet
Tomten ligger innerst i en rolig blindvei på Torp. Vestvendt på en høyde med fin utsikt mot elva.
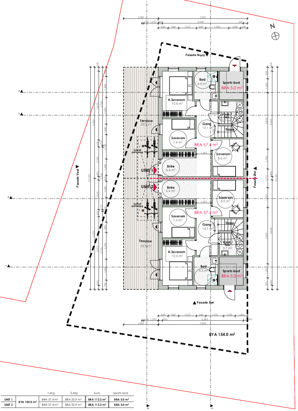
Det foreligger rammetillatelse for oppføring av tomannsbolig der hver halvpart er 113m2 i tillegg til sportsbod. Se plantegning for innhold.
Det foreligger rammetillatelse for oppføring av tomannsbolig der hver halvpart er 113m2 i tillegg til sportsbod. Se plantegning for innhold.
Beskaffenhet
Tomten er todelt. Det er mot Konvallveien et flatt parti som skal benyttes som parkering og adkomst. Selve tomannsboligen som er rammegodkjent ligger på en liten høyde med fjellgrunn.
Det står en kondemnabel enebolig og anneks/bod på tomten i dag.
Det står en kondemnabel enebolig og anneks/bod på tomten i dag.
NB: Knappen for å vise hele beskrivelsen har kun en visuell effekt.
NB: Knappen for å vise hele beskrivelsen har kun en visuell effekt.
RADIN EIENDOM AS
Amund Tvete Hermansen
Nærområdet
Annonsene kan være mangelfulle i forhold til lovpålagt opplysningsplikt. Før bindende avtale inngås oppfordres interessenter til å innhente komplett informasjon fra meglerforetaket, selger eller utleier.






