Bildegalleri

- Emera Eiendomsmegling v/ Erlend Stokmo har gleden av å presentere Vindskarvegen 7 og 9. OBS: Illustrasjon -
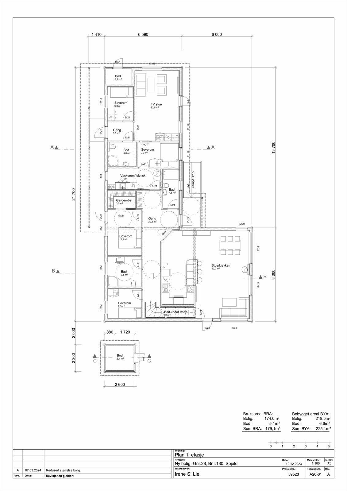
Bygg din drømmebolig! 3 739m² boligtomt med rammetillatelse på 179m² enebolig med hybel. Beliggende på høydrag mot sjø
- Totalpris
- 2 582 490 kr
- Omkostninger
- 82 490 kr
- Formuesverdi
- 2 000 000 kr
Nøkkelinfo
Visning
Om eiendommen
Kort om eiendommen
Emera eiendomsmegling v/Erlend Stokmo har gleden av å presentere Vindskarvegen 7 og 9! Kun 4 minutter fra Ågotnes finner du en solrik tomt på 3 739,8m² i et ettertraktet område på Spjeld. Her har du godkjent rammetillatelse på en lekker enebolig med hybel. Bygg drømmehjemmet ditt på usjenert tomt på høydrag i maritime omgivelser.
- Godkjent rammetillatelse for en lekker familiebolig med hybelleilighet
- Bygg en 179m² enebolig over to plan
- Tomten har flott beliggenhet på høydrag mot sjø
- Tomt på 3 739m² med stort utviklingspotensial
- Barnevennlig og etablert boområde
- 4 min til Ågotnes torg
- Ca. 10 min til Sotra Kystby
- Kort vei til barnehager og skoler
- Nærhet til flotte turområder
Beliggenhet
Vindskarvegen 7 og 9, en boligtomt i et naturnært og attraktivt område på Spjeld, kjent for sitt kystpreg og varierte landskap. Tomten har et sjeldent stort areal på hele 3 739,8m² og byr på et betydelig utviklingspotensial. Området preges av flotte turmuligheter, sjø og friluftsliv rett i nærheten, samtidig som Ågotnes har et godt utbygd lokalsenter med nødvendige servicetilbud.
Her får man en sjelden kombinasjon av ro, natur og praktisk hverdagsliv - Barnehage, skoler og dagligvarebutikk ligger bare en kort kjøretur unna. Kollektiv forbindelsene er svært god, med hyppige avganger i begge retninger. For den aktive byr Ågotnes på fantastiske idrettsanlegg og fritidstilbud. Ågotnes idrettshall og hele 4 fotballbaner ligger samlet, kun en 5 minutters kjøretur unna. For den som foretrekker innendørs trening er MOVA treningssenter også kun 5 minutter unna med bil.
Dagligvaretilbudet i området er meget godt. Fra tomten er rundt 4 minutter kjøring til Ågotnes torg, hvor også bussen stopper like utenfor. Her finner man Rema 1000, Kiwi og Europris, i tillegg til apotek og flere take-away steder, alle med kort nærhet til hverandre. På den velkjente CCB-basen er det mange populære arbeidsplasser innen offshoresektoren. Kollektivtilbudet i området er svært bra, der nærmeste busstopp er Spjeldbrekko, som ligger et steinkast unna tomten. Her går bussen mot både Ågotnes senter og Bergen sentrum, med hyppige avganger i begge retninger. Mot sentrum stopper bussen blant annet ved Straume terminal, som er et sentralt knyttepunkt for en haug med busslinjer. Til Sotra Kystby med Sartor Storsenter er det en kjøretid på ca. 10 minutter.
Eiendommen er omgitt av et variert naturlandskap der sjø og grønne områder danner rammen for fine naturopplevelser i hverdagen. Eiendommen ligger i umiddelbar nærhet til et mangfold av friluftsmuligheter. Her får du det beste fra to verdener med både sjø og fjell en kort spasertur fra boligen. Det er flere kyst- og turstier i området som blant annet Havutsikten og populære Spjeldsfjellet.
Beskrivelse av tomt
Eiet tomt med godkjent rammetillatelse for enebolig.
Ligningsverdi / formuesverdi
Formuesverdien for ubebygget tomt skal ved førstegangs verdsetting verken overstige 80% av eiendommens kostpris eller 80% av eiendommens markedsverdi. Ved senere år skal denne formuesverdien videreføres, men med en eventuell årlig fastsatt oppjustering.
Når bygg på eiendommen er påbegynt fastsettes formuesverdien etter andre regler. Se mer på Skatteetatens nettside.
Diverse
Faste, løpende kostnader:
Da eiendommen er ubebygd er det per i dag ikke faste løpende kostnader. Det må påregnes årlige utgifter til kommunale avgifter, renovasjon, energi/strøm, bygningsforsikring og fellesutgifter til drift og vedlikehold av vei, vann- og avløpsledninger.
Typiske utgifter for kjøp av tomt er:
Alle arbeider og gebyrer med søknader om bygging, opparbeidelse av tomt og vei, sikringsarbeider, vann- avløpsledninger og tilknytningsavgifter til kommunen og evt. private anlegg, teleledninger, oppføring av bygg, m.m. Kjøper og selger er forpliktet til å undertegne standard kjøpekontrakt utarbeidet av Emerai forbindelse med eiendomstransaksjonen. Kjøpekontrakt kan besiktiges hos eiendomsmegler før bud inngis. Kontakt eiendomsmegler for spørsmål.
Både kjøper og selger er forpliktet til å signere den standard kjøpekontrakten som er utarbeidet av Emera i forbindelse med eiendomshandler. Kjøpekontrakten kan gjennomgås hos eiendomsmegleren før budet legges inn. Ta kontakt med eiendomsmegler dersom det er spørsmål.
Adkomst
På høyre side i annonsen finner du et kartutsnitt. Ved å klikke på kartet kan du enkelt planlegge din rute fra valgt startpunkt og helt frem til boligen. Det vil være skiltet ved fellesvisninger for enkel orientering.
Overtakelse
Tidspunkt for overtakelse avtales mellom kjøper og selger.
Boligselgerforsikring
Selger har ikke tegnet boligselgerforsikring.
Lovanvendelse
Regelverk og generelle opplysninger
Boligen selges med det inventar og utstyr som i henhold til gjeldende lover, forskrifter eller offentlige pålegg skal følge med eiendommen, jf. avhendingsloven § 3-4. Fastmonterte eller spesialtilpassede installasjoner og innredning som anses som varig tilknyttet boligen, følger normalt med i handelen, med mindre det foreligger en særskilt avtale mellom partene om noe annet, jf. avhendingsloven § 3-5.
En standard tilbehørsliste utarbeidet av Norges Eiendomsmeglerforbund (NEF) følger salgsoppgaven, og gjelder som utgangspunkt for hva som inkluderes i salget med mindre avvik er tydelig avtalt mellom kjøper og selger.
Om informasjonsgrunnlaget
Opplysninger om boligens størrelse og utforming, både innvendig og utvendig, bygger på informasjon hentet fra vedlagte tilstands- og boligsalgsrapport. Innholdet i salgsoppgaven er basert på selgers informasjon, fagkyndig vurdering, samt opplysninger fra offentlige registre som kommunen og Kartverket. Det er viktig at kjøper setter seg grundig inn i alle salgsdokumentene, herunder salgsoppgave, tilstandsrapport og selgers egenerklæring. Kjøper anses for å være kjent med forhold som er tydelig beskrevet i salgsdokumentene, slike forhold kan ikke senere gjøres gjeldende som en mangel ved boligen. Dette gjelder uavhengig av om dokumentene er lest.
Det kan være forskjell mellom boligens faktiske bruk av rom og det som er godkjent av myndighetene. Alle interessenter anbefales derfor å undersøke eiendommen nøye, gjerne sammen med fagperson, før bud gis. Dersom kjøper velger å kjøpe uten å ha sett eiendommen, kan det ikke etter overtakelse reklameres på forhold som burde ha vært oppdaget ved en ordinær gjennomgang.
Dersom det oppstår behov for ytterligere avklaringer, oppfordres interessenter til å kontakte eiendomsmegler eller egne rådgivere før de gir bud.
Slitasje og bruk
Det må også forventes at eiendommer som har vært i bruk, vil kunne ha tegn til slitasje og eventuelle skader. Slik normal bruksslitasje og behov for vedlikehold må kjøper påregne, og dette vil normalt ikke gi grunnlag for reklamasjon eller prisavslag.
Avtalerettslig
Partenes rettigheter og plikter reguleres av avtalen mellom partene, og all tilgjengelig dokumentasjon som forelå for kjøper før handelen ble inngått. I tillegg gjelder avhendingsloven. Det gjelder ulike avtalevilkår avhengig av om kjøper er forbrukerkjøper eller ikke, og dette er nærmere forklart nedenfor.
Budgivning og selgers vurdering
På grunn av ulike ansvarsforhold kan selger velge å prioritere bud fra ikke-forbrukere, selv om budet er lavere enn et forbrukerbud. Når kjøper ikke er forbruker, kan selges ansvar begrenses ettersom boligen selges som den er , noe som kan være av verdi for selger. Det understrekes at selger står fritt til å velge hvilket bud som aksepteres, og er ikke forpliktet til å velge det høyeste.
Alle budgivere må ved inngivelse av bud opplyse om de opptrer som forbruker eller som næringsdrivende/person som handler hovedsakelig som ledd i næringsvirksomhet. Det vil opplyses hvis konkurrerende bud kommer fra en ikke-forbruker.
Forbrukerkjøp definisjon og vilkår:
Et forbrukerkjøp foreligger når en fysisk person kjøper eiendom uten at formålet hovedsakelig er knyttet til næringsvirksomhet.
En eiendom anses å ha en mangel dersom den ikke oppfyller kravene som følger av avtalen, eller ved brudd på bestemmelser i avhendingsloven §§ 3-2 til 3-8. Det samme gjelder hvis eiendommen ikke samsvarer med det som med rimelighet kunne forventes ut fra blant annet alder, type og synlig tilstand eller hvis det er tilbakeholdt, eller gitt feilaktige opplysninger, og dette har påvirket avtalen.
Dersom det er avvik mellom oppgitt og faktisk innvendig areal på minst 2 % og samtidig minst 1 kvadratmeter, kan dette utløse rett til kompensasjon etter § 3-3 i avhendingsloven.
Ved beregning av krav om prisavslag eller erstatning må kjøper selv dekke kostnader med inntil kr 10 000 (som en egenandel).
Ikke-forbruker definisjon og vilkår:
Dersom kjøper er en juridisk enhet, eller en fysisk person som handler i næringssammenheng, regnes kjøpet ikke som et forbrukerkjøp.
Ved slike kjøp selges eiendommen som den er , og selgers ansvar er begrenset til det som følger direkte av avtalen, jf. avhendingsloven § 3-9. I disse tilfellene fravikes § 3-3 andre ledd, og eventuelle arealavvik vurderes etter § 3-8.
Kjøperens plikt til å foreta grundige undersøkelser gjelder også fullt ut for kjøpere som ikke omfattes av forbrukerdefinisjonen.
Hvitvaskingsloven
Eiendomsmeglere er underlagt lov om hvitvasking, og er blant annet forpliktet til å gjennomføre kundetiltak av både selger og kjøper.
Hvis kjøper ikke bidrar til at megler får gjennomført kundetiltak og dette fører til at avtalen ikke kan gjennomføres eller blir forsinket, er dette et mislighold fra kjøpers side. Et vesentlig mislighold kan gi selger rett til å heve avtalen og til å gjennomføre dekningssalg for kjøpers regning.
Dersom selger ikke bidrar til at megler får gjennomført løpende kundetiltak underveis i oppdraget, må eiendomsmegler stanse gjennomføringen av transaksjonen. Selger vil i et slikt tilfelle ha misligholdt sine forpliktelser, og kjøper vil kunne ha et krav mot selger etter avhendingsloven.
Hvis kundetiltak ikke lar seg gjennomføre, vil Emera eiendomsmegling ikke kunne bistå med handelen eller foreta oppgjør.
Budgivning
Bud kan legges inn på nettannonsen på "gi bud" knappen eller via hjemmesiden. Ved elektronisk budgivning kan bud legges inn trygt og enkelt med bank-ID. Eiendomsmegler kan også kontaktes for tilsendelse av budkjema, og budskjema finnes også i salgsoppgaven.
Alle bud skal inngi skriftlig til eiendomsmegler. Kravet til skriftlighet gjelder også ved forhøyelse av bud, motbud og selgers aksept eller avslag. Før et bud kan formidles til selger må megler innhente gyldig legitimasjon og signatur fra budgiver. Kravet til legitimasjon og signatur er oppfylt dersom budgiver bruker e-signatur som f eks. bankID. Etter det første budet er inngitt, kan budgiver inngi bud pr e-post eller pr SMS til megler.
Hvis budgiver skal by på eiendommen i henhold til en kjøpsfullmakt må megler kontaktes og fullmakten oversendes før budgivning.
Et bud bør inneholde eiendommens adresse (eventuelt gnr/bnr), kjøpesum, budgivers kontaktinformasjon, finansieringsplan, akseptfrist, overtakelsesdato og eventuelle forbehold som for eksempel usikker finansiering, salg av nåværende bolig ol. Normalt vil ikke et bud med forbehold bli akseptert før forbeholdet er avklart. Konferer gjerne med megler før bud avgis.
Bud som har forbehold om konfidensialitet ("hemmelige bud") vil ikke bli formidlet til selger. Alle interessenter oppfordres til å inngi bud via eiendomsmegler.
Megler skal legge til rette for en forsvarlig avvikling av budrunden. I forbrukerforhold (dvs. der selger er forbruker) skal megleren ikke formidle bud med kortere akseptfrist enn til kl. 12.00 første virkedag etter siste annonserte visning. Senere bud må ha en akseptfrist som er lang nok til at budet og eventuelle forbehold kan videreformidles til alle involverte parter slik at disse får tid til å områ seg, jf. forskrift om eiendomsmegling § 6-3. Akseptfrist bør derfor være på minimum 30 minutter, og budforhøyelser bør skje senest 10 minutter før fristens utløp. Dersom bud inngis med en frist som åpenbart er for kort til at megleren kan avvikle budrunden på en forsvarlig måte, vil megler fraråde budet.
Eiendomsmegler skal så snart som mulig bekrefte skriftlig overfor budgivere at budene deres er mottatt, og vil uoppfordret gi sin vurdering av det enkelte bud overfor selgeren.
Etter at handel har kommet i stand, eller dersom en budrunde avsluttes uten at handel er kommet i stand, kan en budgiver kreve kopi av budjournalen i anonymisert form. Kopi av budjournal gis til kjøper og selger uten ugrunnet opphold etter at handel er kommet i stand.
Hvis budgiver ønsker å være anonym, kan bud fremmes via en fullmektig.
For mer informasjon om budgivningsprosessen, se Forbrukerinformasjon om budgivning , som er vedlagt salgsoppgaven, eller ta kontakt med megler.
Regulering
Nyttige lenker
Emera eiendomsmegling
Nærområdet
Annonseinformasjon
| FINN-kode | 449326442 |
|---|---|
| Sist endret | 04. feb. 2026 14:18 |
| Referanse | EMERA3.2614 |
Annonsene kan være mangelfulle i forhold til lovpålagt opplysningsplikt. Før bindende avtale inngås oppfordres interessenter til å innhente komplett informasjon fra meglerforetaket, selger eller utleier.


















