Bildegalleri

Flott og solrik naust-tomt i Røyksund
Prisantydning1 650 000 kr
- Totalpris
- 1 691 250 kr
- Omkostninger
- 41 250 kr
Nøkkelinfo
Fasiliteter
Bilvei frem
Båtplass
Utsikt
Fiskemulighet
Visning
Ta kontakt for å avtale visning.Adkomst
Bilveg helt frem til tomten via Varanesvegen, med mulighet for å anlegge veg innpå selve tomten fra sør/øst hjørne av tomten. Se vedagt bilde.
Beliggenhet
"Fantastisk naust-tomt til salgs i solrike og nydelige Røyksund!
Denne eiendommen tilbyr en unik mulighet til å skape ditt eget sjønære fristed. Med en flott beliggenhet og solrik atmosfære er dette stedet perfekt for de som ønsker ro og avslapning ved sjøen. Ta kontakt i dag for å sikre deg denne flotte sjøtomten.
Beskaffenhet
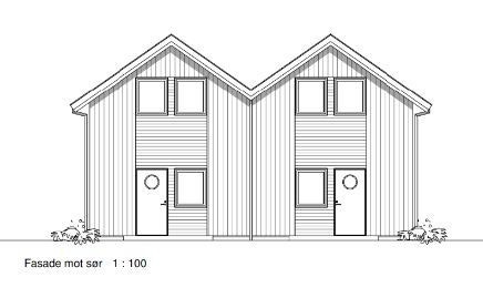
Mulighet for bygging av Naust. Vi har tegnet ett dobbelt naust som kan bygges her. Se vedlagte bilder
Regulering
naustbebyggelse
NB: Knappen for å vise hele beskrivelsen har kun en visuell effekt.
NB: Knappen for å vise hele beskrivelsen har kun en visuell effekt.
Mesterhus - Garvik Prosjekt AS
Nærområdet
Annonseinformasjon
| FINN-kode | 448670088 |
|---|---|
| Sist endret | 30. jan. 2026 13:32 |
| Referanse | Naust-tomt Varaneset |
Annonsene kan være mangelfulle i forhold til lovpålagt opplysningsplikt. Før bindende avtale inngås oppfordres interessenter til å innhente komplett informasjon fra meglerforetaket, selger eller utleier.
















