Bildegalleri

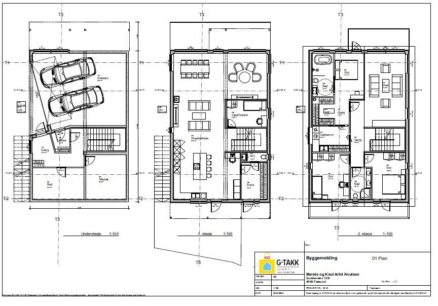
Eiendomsmegler MNEF Anita Cecilie Gabrielsen ved Eiendomsmegler Norge - viser tomt for salg i Farsund sentrum med rammetillatelse for oppføring av bolig på 3 plan.
Utsiktstomt med gitt rammetillatelse for oppføring av enebolig. Ingen boplikt.
- Totalpris
- 1 249 090 kr
- Omkostninger
- 49 090 kr
Nøkkelinfo
Om eiendommen
Om eiendommen
Fin utsiktstomt med gitt rammetillatelse (datert 31.10.2024) for oppføring av en enebolig over 3 plan med et BRA på 374 kvm.
Boligen er trukket godt frem på tomta, for å få panorama utsikt til fjorden.
Tomta har utsikt som spenner seg fra Kjørrefjord til Lyngdalsfjorden. Her kan man på sommeren nyte både soloppgang og solnedgang. De mange flotte solnedgangene er et skue fra eiendommen.
Tomta ligger meget sentralt til med kort avstand til byens mange fasiliteter.
Farsund kommune har ikke boplikt.
Beliggenhet
Fint beliggende tomt med et par minutters gange til Farsund sentrum, med byens mange fasiliteter og servicetilbud, som bl.a. barne- og ungdomsskole, videregående skole, barnehager, butikker, Amfi kjøpesenter, Ekko og badehuset med sauna. Fra boligen er det fin utsikt mot fjorden. Meget solrikt i sommerhalvåret.
Adkomst
Fra Farsund sentrum kjør opp Kirkegaten, ta til høyre inn i Sundeveien. Tomta ligger på venstre side merket med Til salgs skilt fra Eiendomsmegler Norge.
Tomt
Tomta består i dag av et plenlagt område med skrånet terreng mot nord og vest. Tomten er ikke byggeklar.
Regulering
Eiendommen ligger i et område som ikke er regulert. Eiendommen er i følgende plan: Kommunedelplan for Farsund-Lista 2018-2028.
Avsatt til: boligbebyggelse
Ansvarlig megler
Anita Cecilie Gabrielsen
Nyttige lenker
Eiendomsmegler Norge Lister
Nærområdet
Annonseinformasjon
| FINN-kode | 446097684 |
|---|---|
| Sist endret | 19. jan. 2026 14:19 |
| Referanse | 54250142 |
Annonsene kan være mangelfulle i forhold til lovpålagt opplysningsplikt. Før bindende avtale inngås oppfordres interessenter til å innhente komplett informasjon fra meglerforetaket, selger eller utleier.


























