Bildegalleri

Privatmegleren v/ Vetle Haug Kristensen har gleden av å presentere denne idylliske fritidstomten med rammetillatelse for oppføring av fritidsbolig over 3 etasjer, med 5 soverom, 3 bad, vaskerom, åpen stue/kjøkkenløsning og nydelig utsikt ut over Drammensf
Solrik fritidstomt med flott utsikt - Rammetillatelse for oppføring av fritidsbolig over 3 plan
- Kommunale avg.
- 4 002 kr per år
- Totalpris
- 2 655 840 kr
- Omkostninger
- 65 840 kr
Nøkkelinfo
Fasiliteter
Om eiendommen
Nøkkelinformasjon
Oppdragsnummer
83251179
Betegnelse
Matrikkel gnr. 308, bnr. 140 i Asker kommune
Oppdragsansvarlig
PrivatMegleren Drammen (Liavaag Eiendom AS) / Vetle Haug Kristensen
Eier
Saulius Orlovas og Ingrida Orloviené
Eiendomstype
Fritidstomt
Eierform
Fast
Tomtetype / areal
Tomtetype eiet / 1517,00 kvm
Beliggenhet
Beliggenhet / servicetilbud
Selvigfjellet 4 ligger attraktivt til i et veletablert og populært hytteområde med rolige og naturskjønne omgivelser. Området oppleves som stille og tilbaketrukket, med begrenset trafikk og bom inn til feltet, noe som bidrar til en trygg og privat atmosfære.
Eiendommen har en solrik beliggenhet med gode solforhold store deler av dagen, inkludert hyggelig kveldssol. Fra området er det flotte utsiktsforhold mot Drammensfjorden og omkringliggende natur, som gir en ekte fritidsfølelse året rundt.
Det er kort gangavstand ned til fjorden, hvor man finner gode bade- og fiskemuligheter. I hyttefeltet finnes også felles fasiliteter som blant annet volleyballbane og fotballbane, som gjør området godt tilrettelagt for både barnefamilier og sosialt samvær.
Med båt er det enkel adkomst til blant annet Svelvik og Holmsbu, samt videre inn fjorden mot Drammen. Bilvei går helt frem til eiendommen, noe som gir enkel tilgjengelighet hele sesongen.
Området har et lett tilgjengelig servicetilbud som dekker daglige behov. Nærmeste dagligvarebutikk er Kiwi Klokkarstua, som ligger en kort kjøretur unna. For et bredere utvalg av butikker og tjenester kan man enkelt ta fergen over Svelviksundet til Svelvik sentrum, hvor det finnes dagligvarebutikker, serveringssteder og øvrige servicetilbud.
Drammen sentrum ligger også innen kort kjøreavstand og byr på et omfattende tilbud av kjøpesentre, butikker, restauranter, kulturtilbud og øvrige bymessige fasiliteter.
Eiendom / Hage
Tomt
Tomten er eiet og måler 1517,00 kvm.
Adkomst
Se vedlagt kartskisse på høyre side i annonsen. Ved å trykke på kartet får du enkelt tilgang til en spesifisert reiserute fra din startdestinasjon og til eiendommen. På visningsdagen vil det bli satt opp visningsskilt fra PrivatMegleren.
Bebyggelse
Standard
Velkommen til Selvigfjellet 4 - en sjelden mulighet til å sikre seg en attraktiv fritidstomt med foreliggende rammetillatelse for oppføring av en moderne og innholdsrik fritidsbolig. Tomten ligger høyt og fritt til med en formidabel utsikt over fjorden og omkringliggende naturområder.
Eiendommen har en meget god beliggenhet i et etablert og ettertraktet hytteområde, med gode solforhold og en rolig atmosfære. Her får du det beste av to verdener - naturnære omgivelser kombinert med enkel adkomst og kort vei til sjø, turmuligheter og servicetilbud.
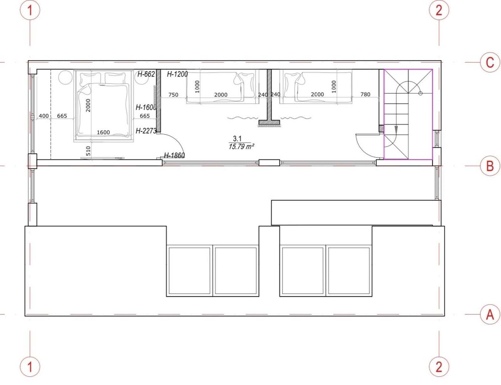
Det foreligger rammetillatelse for en gjennomtenkt fritidsbolig over flere plan, med romslige oppholdsrom, 5 soverom, 3 bad, vaskrom og utleiemulighet i underetasje samt gode løsninger for både familie og gjester. Prosjektet er tegnet med fokus på utsikt, funksjonalitet og moderne komfort, og store vindusflater gir maksimal utnyttelse av den unike beliggenheten.
Dette gir kjøper et godt utgangspunkt for videre gjennomføring av byggeprosjektet, uten å måtte starte prosessen med rammesøknad på nytt. Nærmere opplysninger om tillatelsen, herunder vilkår og forutsetninger, fremgår av salgsoppgaven.
Velkommen til visning - dette er en tomt med kvaliteter som sjelden kommer for salg.
Parkering / Garasje
Det er parkering etter områdets gjeldene bestemmelser.
Tilstandsgrader (TG2 og TG3) hentet fra tilstandsrapporten
Sammendrag av tilstandsrapport
Det foreligger ikke tilstandsrapport med arealoppmåling.
Tinglyste rettigheter og forpliktelser
Servitutter/rettigheter
Kommunen har legalpant som sikkerhet for betaling av kommunale avgifter. Legalpant er pant som følger av loven, og som ikke tinglyses. Legalpant følger derfor eiendommen ved salg. På eiendommen kan det være tinglyst erklæringer som f eks rett for kommunentil å vedlikeholde rørsystemer for vann- og kloakk. Disse erklæringene vil følge eiendommen ved salg. Kontakt megler for nærmere informasjon. Øvrige sameiere har panterett i seksjonen for krav mot sameieren som følge av sameieforholdet, jf. eierseksjonsloven § 31. Pantekravet kan ikke overstige 2G (Folketrygdens grunnbeløp). Sameiet kan vedtektsfeste ytterligere panterett for sameiet. Vedtektsfestet pant tinglyses i seksjonene.
Følgende tinglyste servitutter følger eiendommen ved overskjøting til ny hjemmelshaver:
Dagboknummer 402257, tinglyst 10.11.1938 - Erklæring/avtale
Rett til båtfeste.
Bestemmelse om vannrett
GJELDER DENNE REGISTERENHETEN MED FLERE
Dagboknummer 401718, tinglyst 31.08.1939 - Erklæring/avtale
Rett til båtfeste og bading.
GJELDER DENNE REGISTERENHETEN MED FLERE
Dagboknummer 400310, tinglyst 03.02.1955 - Jordskifte
Grensegangssak
GJELDER DENNE REGISTERENHETEN MED FLERE
Dagboknummer 402986, tinglyst 19.10.1955 - Erklæring/avtale
Bestemmelse om at stranden skal holdes åpen for vanlig
ferdsel.
GJELDER DENNE REGISTERENHETEN MED FLERE
Dagboknummer 400376, tinglyst 13.02.1956 - Bestemmelse om vannrett
GJELDER DENNE REGISTERENHETEN MED FLERE
Dagboknummer 403277, tinglyst 08.08.1967 - Bestemmelse om vannrett
Bestemmelse om båt/bryggeplass
Rett til bading.
Med flere bestemmelser
Bestemmelse om veg
GJELDER DENNE REGISTERENHETEN MED FLERE
Dagboknummer 403279, tinglyst 08.08.1967 - Bestemmelse om vannrett
Bestemmelse om båt/bryggeplass
Rett til bading
Med flere bestemmelser
GJELDER DENNE REGISTERENHETEN MED FLERE
Dagboknummer 403280, tinglyst 08.08.1967 - Bestemmelse om vannrett
Bestemmelse om båt/bryggeplass
Rett til bading
Med flere bestemmelser
GJELDER DENNE REGISTERENHETEN MED FLERE
Dagboknummer 403281, tinglyst 08.08.1967 - Bestemmelse om vannrett
Bestemmelse om båt/bryggeplass
Rett til bading
Med flere bestemmelser
GJELDER DENNE REGISTERENHETEN MED FLERE
Dagboknummer 403284, tinglyst 08.08.1967 - Bestemmelse om kloakkledning
Bestemmelse om kloakkledning
Dagboknummer 403284, tinglyst 08.08.1967 - Bestemmelse om veg
Bestemmelse om veg
Dagboknummer 403284, tinglyst 08.08.1967 - Bestemmelse om vannledning
Bestemmelse om vannledning
Dagboknummer 403284, tinglyst 08.08.1967 - Bestemmelse om deleforbud
Bestemmelse om deleforbud
Dagboknummer 403285, tinglyst 08.08.1967 - Bestemmelse om vannrett
Bestemmelse om båt/bryggeplass
Rett til bading
Med flere bestemmelser
GJELDER DENNE REGISTERENHETEN MED FLERE
Dagboknummer 403287, tinglyst 08.08.1967 - Bestemmelse om vannrett
Bestemmelse om båt/bryggeplass
Rett til bading
Med flere bestemmelser
GJELDER DENNE REGISTERENHETEN MED FLERE
Dagboknummer 403289, tinglyst 08.08.1967 - Bestemmelse om vannrett
Bestemmelse om båt/bryggeplass
Rett til bading
Med flere bestemmelser
GJELDER DENNE REGISTERENHETEN MED FLERE
Dagboknummer 403290, tinglyst 08.08.1967 - Bestemmelse om vannrett
Bestemmelse om båt/bryggeplass
Rett til bading
Med flere bestemmelser
GJELDER DENNE REGISTERENHETEN MED FLERE
Dagboknummer 403292, tinglyst 08.08.1967 - Bestemmelse om vannrett
Bestemmelse om båt/bryggeplass
Rett til bading.
Med flere bestemmelser
GJELDER DENNE REGISTERENHETEN MED FLERE
Dagboknummer 404393, tinglyst 01.11.1967 - Bestemmelse om vannrett
Bestemmelse om båt/bryggeplass
Rett til bading
Med flere bestemmelser
GJELDER DENNE REGISTERENHETEN MED FLERE
Dagboknummer 404524, tinglyst 08.11.1967 - Bestemmelse om vannrett
Bestemmelse om båt/bryggeplass
Rett til bading
Med flere bestemmelser
GJELDER DENNE REGISTERENHETEN MED FLERE
Dagboknummer 404693, tinglyst 17.11.1967 - Bestemmelse om vannrett
Bestemmelse om båt/bryggeplass
Rett til bading
Konferer dbnr.404692/1967.Gjelder ideell halvpart av
festetomt nr.2.
Med flere bestemmelser
GJELDER DENNE REGISTERENHETEN MED FLERE
Dagboknummer 400525, tinglyst 11.02.1969 - Bestemmelse om vannrett
Bestemmelse om båt/bryggeplass
Rett til bading
Med flere bestemmelser
GJELDER DENNE REGISTERENHETEN MED FLERE
Dagboknummer 400526, tinglyst 11.02.1969 - Bestemmelse om vannrett
Bestemmelse om båt/bryggeplass
Rett til bading
Med flere bestemmelser
GJELDER DENNE REGISTERENHETEN MED FLERE
Dagboknummer 400527, tinglyst 11.02.1969 - Bestemmelse om vannrett
Bestemmelse om båt/bryggeplass
Rett til bading
Med flere bestemmelser
GJELDER DENNE REGISTERENHETEN MED FLERE
Dagboknummer 400528, tinglyst 11.02.1969 - Bestemmelse om vannrett
Bestemmelse om båt/bryggeplass
Rett til bading
Med flere bestemmelser
GJELDER DENNE REGISTERENHETEN MED FLERE
Dagboknummer 400532, tinglyst 11.02.1969 - Bestemmelse om vannrett
Bestemmelse om båt/bryggeplass
Rett til bading
Med flere bestemmelser
GJELDER DENNE REGISTERENHETEN MED FLERE
Dagboknummer 400533, tinglyst 11.02.1969 - Bestemmelse om vannrett
Bestemmelse om båt/bryggeplass
Rett til bading
Med flere bestemmelser
GJELDER DENNE REGISTERENHETEN MED FLERE
Dagboknummer 400535, tinglyst 11.02.1969 - Bestemmelse om vannrett
Bestemmelse om båt/bryggeplass
Rett til bading
Med flere bestemmelser
GJELDER DENNE REGISTERENHETEN MED FLERE
Dagboknummer 400536, tinglyst 11.02.1969 - Bestemmelse om vannrett
Bestemmelse om båt/bryggeplass
Rett til bading
Med flere bestemmelser
GJELDER DENNE REGISTERENHETEN MED FLERE
Dagboknummer 400539, tinglyst 11.02.1969 - Bestemmelse om vannrett
Bestemmelse om båt/bryggeplass
Rett til bading
Med flere bestemmelser
GJELDER DENNE REGISTERENHETEN MED FLERE
Dagboknummer 400540, tinglyst 11.02.1969 - Bestemmelse om vannrett
Bestemmelse om båt/bryggeplass
Rett til bading
Med flere bestemmelser
GJELDER DENNE REGISTERENHETEN MED FLERE
Dagboknummer 400604, tinglyst 17.02.1969 - Bestemmelse om vannrett
Bestemmelse om båt/bryggeplass
Rett til bading
Med flere bestemmelser
GJELDER DENNE REGISTERENHETEN MED FLERE
Dagboknummer 400606, tinglyst 17.02.1969 - Bestemmelse om vannrett
Bestemmelse om båt/bryggeplass
Rett til bading
Med flere bestemmelser
GJELDER DENNE REGISTERENHETEN MED FLERE
Dagboknummer 400609, tinglyst 17.02.1969 - Bestemmelse om vannrett
Bestemmelse om båt/bryggeplass
Rett til bading
Med flere bestemmelser
GJELDER DENNE REGISTERENHETEN MED FLERE
Dagboknummer 400611, tinglyst 17.02.1969 - Bestemmelse om vannrett
Bestemmelse om båt/bryggeplass
Rett til bading
Med flere bestemmelser
GJELDER DENNE REGISTERENHETEN MED FLERE
Dagboknummer 400613, tinglyst 17.02.1969 - Bestemmelse om vannrett
Bestemmelse om båt/bryggeplass
Rett til bading
Med flere bestemmelser
GJELDER DENNE REGISTERENHETEN MED FLERE
Dagboknummer 402566, tinglyst 23.06.1969 - Bestemmelse om vannrett
Bestemmelse om båt/bryggeplass
Rett til bading
Med flere bestemmelser
GJELDER DENNE REGISTERENHETEN MED FLERE
Dagboknummer 402567, tinglyst 23.06.1969 - Bestemmelse om vannrett
Bestemmelse om båt/bryggeplass
Rett til bading
Med flere bestemmelser
GJELDER DENNE REGISTERENHETEN MED FLERE
Dagboknummer 402568, tinglyst 23.06.1969 - Bestemmelse om vannrett
Bestemmelse om båt/bryggeplass
Rett til bading
Med flere bestemmelser
GJELDER DENNE REGISTERENHETEN MED FLERE
Dagboknummer 402570, tinglyst 23.06.1969 - Bestemmelse om vannrett
Bestemmelse om båt/bryggeplass
Rett til bading
Med flere bestemmelser
GJELDER DENNE REGISTERENHETEN MED FLERE
Dagboknummer 402571, tinglyst 23.06.1969 - Bestemmelse om vannrett
Bestemmelse om båt/bryggeplass
Rett til bading
Med flere bestemmelser
GJELDER DENNE REGISTERENHETEN MED FLERE
Dagboknummer 403578, tinglyst 01.09.1969 - Bestemmelse om vannrett
Bestemmelse om båt/bryggeplass
Rett til bading
Med flere bestemmelser
GJELDER DENNE REGISTERENHETEN MED FLERE
Dagboknummer 403920, tinglyst 18.09.1969 - Bestemmelse om vannrett
Bestemmelse om båt/bryggeplass
Rett til bading
Med flere bestemmelser
GJELDER DENNE REGISTERENHETEN MED FLERE
Dagboknummer 400719, tinglyst 13.02.1970 - Bestemmelse om vannrett
Bestemmelse om båt/bryggeplass
Rett til bading
Med flere bestemmelser
GJELDER DENNE REGISTERENHETEN MED FLERE
Dagboknummer 400721, tinglyst 13.02.1970 - Bestemmelse om vannrett
Bestemmelse om båt/bryggeplass
Rett til bading
Med flere bestemmelser
GJELDER DENNE REGISTERENHETEN MED FLERE
Dagboknummer 400722, tinglyst 13.02.1970 - Bestemmelse om vannrett
Bestemmelse om båt/bryggeplass
Rett til bading
Med flere bestemmelser
GJELDER DENNE REGISTERENHETEN MED FLERE
Dagboknummer 401655, tinglyst 14.04.1970 - Bestemmelse om vannrett
Bestemmelse om båt/bryggeplass
Rett til bading
Med flere bestemmelser
GJELDER DENNE REGISTERENHETEN MED FLERE
Dagboknummer 402269, tinglyst 20.05.1970 - Bestemmelse om vannrett
Bestemmelse om båt/bryggeplass
Med flere bestemmelser
Bestemmelse om veg
GJELDER DENNE REGISTERENHETEN MED FLERE
Dagboknummer 404039, tinglyst 31.08.1970 - Bestemmelse om vannrett
Bestemmelse om båt/bryggeplass
Med flere bestemmelser
Bestemmelse om veg
GJELDER DENNE REGISTERENHETEN MED FLERE
Dagboknummer 404041, tinglyst 31.08.1970 - Bestemmelse om vannrett
Bestemmelse om båt/bryggeplass
Med flere bestemmelser
Bestemmelse om veg
GJELDER DENNE REGISTERENHETEN MED FLERE
Dagboknummer 404101, tinglyst 04.09.1970 - Bestemmelse om vannrett
Bestemmelse om båt/bryggeplass
Med flere bestemmelser
Bestemmelse om veg
GJELDER DENNE REGISTERENHETEN MED FLERE
Dagboknummer 404355, tinglyst 23.09.1972 - Bestemmelse om vannrett
Bestemmelse om båt/bryggeplass
Med flere bestemmelser
Bestemmelse om veg
GJELDER DENNE REGISTERENHETEN MED FLERE
Dagboknummer 404531, tinglyst 04.10.1972 - Bestemmelse om vannrett
Bestemmelse om båt/bryggeplass
Med flere bestemmelser
Bestemmelse om veg
GJELDER DENNE REGISTERENHETEN MED FLERE
Dagboknummer 404672, tinglyst 10.10.1972 - Bestemmelse om vannrett
Bestemmelse om båt/bryggeplass
Med flere bestemmelser
Bestemmelse om veg
GJELDER DENNE REGISTERENHETEN MED FLERE
Dagboknummer 404719, tinglyst 12.10.1972 - Bestemmelse om vannrett
Bestemmelse om båt/bryggeplass
Med flere bestemmelser
Bestemmelse om veg
GJELDER DENNE REGISTERENHETEN MED FLERE
Dagboknummer 404721, tinglyst 12.10.1972 - Bestemmelse om vannrett
Bestemmelse om båt/bryggeplass
Med flere bestemmelser
Bestemmelse om veg
GJELDER DENNE REGISTERENHETEN MED FLERE
Dagboknummer 404723, tinglyst 12.10.1972 - Bestemmelse om vannrett
Bestemmelse om båt/bryggeplass
Med flere bestemmelser
Bestemmelse om veg
GJELDER DENNE REGISTERENHETEN MED FLERE
Dagboknummer 406271, tinglyst 28.12.1972 - Bestemmelse om vannrett
Bestemmelse om båt/bryggeplass
Med flere bestemmelser
Bestemmelse om veg
GJELDER DENNE REGISTERENHETEN MED FLERE
Dagboknummer 401222, tinglyst 07.03.1973 - Jordskifte
Grensegangssak
GJELDER DENNE REGISTERENHETEN MED FLERE
Dagboknummer 405684, tinglyst 19.10.1973 - Bestemmelse om vannrett
Bestemmelse om båt/bryggeplass
Med flere bestemmelser
Bestemmelse om veg
GJELDER DENNE REGISTERENHETEN MED FLERE
Dagboknummer 405685, tinglyst 19.10.1973 - Bestemmelse om vannrett
Bestemmelse om båt/bryggeplass
Med flere bestemmelser
Bestemmelse om veg
GJELDER DENNE REGISTERENHETEN MED FLERE
Dagboknummer 405687, tinglyst 19.10.1973 - Bestemmelse om vannrett
Bestemmelse om båt/bryggeplass
Med flere bestemmelser
Bestemmelse om veg
GJELDER DENNE REGISTERENHETEN MED FLERE
Dagboknummer 405689, tinglyst 19.10.1973 - Bestemmelse om vannrett
Bestemmelse om båt/bryggeplass
Med flere bestemmelser
Bestemmelse om veg
GJELDER DENNE REGISTERENHETEN MED FLERE
Dagboknummer 405690, tinglyst 19.10.1973 - Bestemmelse om vannrett
Bestemmelse om båt/bryggeplass
Med flere bestemmelser
Bestemmelse om veg
GJELDER DENNE REGISTERENHETEN MED FLERE
Dagboknummer 400406, tinglyst 23.01.1974 - Elektriske kraftlinjer
Rettighetshaver:Hurum el-verk.
GJELDER DENNE REGISTERENHETEN MED FLERE
Dagboknummer 401534, tinglyst 03.03.1978 - Bestemmelse om vannrett
Bestemmelse om båt/bryggeplass
Med flere bestemmelser
Bestemmelse om veg
GJELDER DENNE REGISTERENHETEN MED FLERE
Dagboknummer 403574, tinglyst 21.05.1981 - Bestemmelse om vannrett
Bestemmelse om båt/bryggeplass
Med flere bestemmelser
Bestemmelse om veg
GJELDER DENNE REGISTERENHETEN MED FLERE
Dagboknummer 404745, tinglyst 09.07.1981 - Bestemmelse om vannrett
Bestemmelse om båt/bryggeplass
Med flere bestemmelser
Bestemmelse om veg
GJELDER DENNE REGISTERENHETEN MED FLERE
Dagboknummer 403997, tinglyst 22.05.1987 - Erklæring/avtale
Rettsforlik i sak nr.30/1986 A ved Lier,Røyken og Hurum
herredsrett vedr. forlik om grenser mellom gnr.8 bnr.13 og
17 med bestermmelse om bruksrett til bryggeområde og
båtplass for bnr.13.
GJELDER DENNE REGISTERENHETEN MED FLERE
Dagboknummer 412764, tinglyst 28.11.1989 - Erklæring/avtale
Rettsbok i sak.47/1988 A ved Lier Røyken og Hurum
Herredsrett om fastsettelse av grenser mellom eiendommene
mot sjøen på gnr.8 bnr.13 og 17.
GJELDER DENNE REGISTERENHETEN MED FLERE
Dagboknummer 401796, tinglyst 04.03.1991 - Jordskifte
Rettsbok for Nedre Buskerud jordskifterett i sak nr. 44/1982
ang. grensegang.
GJELDER DENNE REGISTERENHETEN MED FLERE
Dagboknummer 401800, tinglyst 04.03.1991 - Jordskifte
Rettsbok for Nedre Buskerud jordskifterett i sak nr.46/1982
ang. grensegang.
GJELDER DENNE REGISTERENHETEN MED FLERE
Dagboknummer 10775, tinglyst 07.07.2000 - Kjøpekontrakt
Bestemmelse om veg
Bestemmelse om rydding og vedlikehold
Med flere bestemmelser
GJELDER DENNE REGISTERENHETEN MED FLERE
Dagboknummer 2573, tinglyst 13.02.2001 - Erklæring/avtale
Bestemmelse om båt/bryggeplass
Rett til sommervann fra reservoar
Rett til naturlig bruk av arealet mellom eiendommen og
sjøen, herunder bruk av de installasjoner som er på arealet
og vedlikehold av disse.
Med flere bestemmelser
Bestemmelse om veg
GJELDER DENNE REGISTERENHETEN MED FLERE
Dagboknummer 2642, tinglyst 13.02.2001 - Bestemmelse iflg. skjøte
Bestemmelse om vegrett og kjøretillatelse
Rett til sommervann
Med flere bestemmelser
GJELDER DENNE REGISTERENHETEN MED FLERE
Dagboknummer 3407, tinglyst 26.02.2001 - Erklæring/avtale
Bestemmelse om vegrett
Rett til sommervann fra den brønn som det idag taes vann
fra.
Rett til felles brygge samt 2 fortøyningsbøyer i sjøen.
Ikke tillat å drive noen form for forretningsdrift
Med flere bestemmelser
GJELDER DENNE REGISTERENHETEN MED FLERE
Dagboknummer 162794, tinglyst 04.11.2005 - Bestemmelse om båtplass
Rett til båtfeste og bruk av badestarnd
GJELDER DENNE REGISTERENHETEN MED FLERE
Dagboknummer 162794, tinglyst 04.11.2005 - Bestemmelse om veg
Med flere bestemmelser
GJELDER DENNE REGISTERENHETEN MED FLERE
Dagboknummer 162794, tinglyst 04.11.2005 - Bestemmelse om vannrett
Bestemmelse om kloakkrenseanlegg
Med flere bestemmelser
GJELDER DENNE REGISTERENHETEN MED FLERE
Dagboknummer 135650, tinglyst 13.02.2006 - Bestemmelse om veg
GJELDER DENNE REGISTERENHETEN MED FLERE
Dagboknummer 135650, tinglyst 13.02.2006 - Bestemmelse om vannrett
GJELDER DENNE REGISTERENHETEN MED FLERE
Dagboknummer 1025576, tinglyst 12.12.2007 - Best. om adkomstrett
Bestemmelse om båtplass
Rett til å benytte "fellesstrand"
Med flere bestemmelser
Bestemmelse om vannrett
GJELDER DENNE REGISTERENHETEN MED FLERE
Dagboknummer 63091, tinglyst 23.01.2008 - Jordskifte
0600-2007-0016 Selvig
GJELDER DENNE REGISTERENHETEN MED FLERE
Dagboknummer 604709, tinglyst 23.07.2008 - Bestemmelse om veg
Bestemmelse om båtplass
Bruksrett til brygge
Med flere bestemmelser
GJELDER DENNE REGISTERENHETEN MED FLERE
Dagboknummer 184918, tinglyst 07.03.2011 - Bestemmelse om veg
GJELDER DENNE REGISTERENHETEN MED FLERE
Dagboknummer 184918, tinglyst 07.03.2011 - Bestemmelse om vannrett
GJELDER DENNE REGISTERENHETEN MED FLERE
Dagboknummer 184918, tinglyst 07.03.2011 - Bestemmelse om båtplass
Rett til bading
GJELDER DENNE REGISTERENHETEN MED FLERE
Dagboknummer 820697, tinglyst 10.10.2011 - Bestemmelse om veg
GJELDER DENNE REGISTERENHETEN MED FLERE
Dagboknummer 820697, tinglyst 10.10.2011 - Bestemmelse om vannrett
GJELDER DENNE REGISTERENHETEN MED FLERE
Dagboknummer 820697, tinglyst 10.10.2011 - Bestemmelse om båtplass
Bestemmelse om bading
GJELDER DENNE REGISTERENHETEN MED FLERE
Dagboknummer 830022, tinglyst 12.10.2011 - Bestemmelse om veg
GJELDER DENNE REGISTERENHETEN MED FLERE
Dagboknummer 830022, tinglyst 12.10.2011 - Bestemmelse om vannrett
GJELDER DENNE REGISTERENHETEN MED FLERE
Dagboknummer 830022, tinglyst 12.10.2011 - Bestemmelse om båtplass
Rett til å benytte "fellesstranden".
GJELDER DENNE REGISTERENHETEN MED FLERE
Dagboknummer 901119, tinglyst 02.11.2011 - Bestemmelse om vannrett
Bestemmelse om båtplass
Rett til bading.
Med flere bestemmelser
GJELDER DENNE REGISTERENHETEN MED FLERE
Dagboknummer 901119, tinglyst 02.11.2011 - Best. om adkomstrett
GJELDER DENNE REGISTERENHETEN MED FLERE
Dagboknummer 931536, tinglyst 10.11.2011 - Best. om adkomstrett
Med flere bestemmelser
GJELDER DENNE REGISTERENHETEN MED FLERE
Dagboknummer 931536, tinglyst 10.11.2011 - Bestemmelse om vannrett
GJELDER DENNE REGISTERENHETEN MED FLERE
Dagboknummer 931536, tinglyst 10.11.2011 - Bestemmelse om båtplass
Bestemmelse om strand/fellesstrand/strandlinje
GJELDER DENNE REGISTERENHETEN MED FLERE
Dagboknummer 1032494, tinglyst 09.12.2011 - Bestemmelse om veg
GJELDER DENNE REGISTERENHETEN MED FLERE
Dagboknummer 1032494, tinglyst 09.12.2011 - Bestemmelse om vannrett
GJELDER DENNE REGISTERENHETEN MED FLERE
Dagboknummer 1032494, tinglyst 09.12.2011 - Bestemmelse iflg. skjøte
Bestemmelse om benyttelse av strand.
GJELDER DENNE REGISTERENHETEN MED FLERE
Dagboknummer 195716, tinglyst 08.03.2012 - Best. om adkomstrett
GJELDER DENNE REGISTERENHETEN MED FLERE
Dagboknummer 195716, tinglyst 08.03.2012 - Bestemmelse om vannrett
GJELDER DENNE REGISTERENHETEN MED FLERE
Dagboknummer 195716, tinglyst 08.03.2012 - Bestemmelse om båtplass
GJELDER DENNE REGISTERENHETEN MED FLERE
Dagboknummer 195716, tinglyst 08.03.2012 - Bestemmelse iflg. skjøte
Rett til å benytte strand
GJELDER DENNE REGISTERENHETEN MED FLERE
Dagboknummer 196747, tinglyst 08.03.2012 - Best. om adkomstrett
GJELDER DENNE REGISTERENHETEN MED FLERE
Dagboknummer 196747, tinglyst 08.03.2012 - Bestemmelse om vannrett
Gjelder vannforsyning fra felles vannreservoar
GJELDER DENNE REGISTERENHETEN MED FLERE
Dagboknummer 196747, tinglyst 08.03.2012 - Bestemmelse om båtplass
Bestemmelse om rett til å benytte fellesstranden
Med flere bestemmelser
GJELDER DENNE REGISTERENHETEN MED FLERE
Dagboknummer 344575, tinglyst 03.05.2012 - Best. om adkomstrett
Bestemmelse om båtplass
Bestemmelse om fellesstranden
Med flere bestemmelser
Bestemmelse om vannrett
GJELDER DENNE REGISTERENHETEN MED FLERE
Dagboknummer 389868, tinglyst 18.05.2012 - Best. om adkomstrett
GJELDER DENNE REGISTERENHETEN MED FLERE
Dagboknummer 389868, tinglyst 18.05.2012 - Bestemmelse om vannrett
Gjelder felles vannreservoar
GJELDER DENNE REGISTERENHETEN MED FLERE
Dagboknummer 389868, tinglyst 18.05.2012 - Bestemmelse om båtplass
GJELDER DENNE REGISTERENHETEN MED FLERE
Dagboknummer 389868, tinglyst 18.05.2012 - Bestemmelse iflg. skjøte
Rett til å benytte fellesstranden
GJELDER DENNE REGISTERENHETEN MED FLERE
Dagboknummer 390006, tinglyst 18.05.2012 - Best. om adkomstrett
GJELDER DENNE REGISTERENHETEN MED FLERE
Dagboknummer 390006, tinglyst 18.05.2012 - Bestemmelse om vannrett
Gjelder felles vannreservoar
GJELDER DENNE REGISTERENHETEN MED FLERE
Dagboknummer 390006, tinglyst 18.05.2012 - Bestemmelse om båtplass
GJELDER DENNE REGISTERENHETEN MED FLERE
Dagboknummer 390006, tinglyst 18.05.2012 - Bestemmelse iflg. skjøte
Rett til å benytte fellesstranden
GJELDER DENNE REGISTERENHETEN MED FLERE
Dagboknummer 516031, tinglyst 27.06.2012 - Best. om adkomstrett
GJELDER DENNE REGISTERENHETEN MED FLERE
Dagboknummer 529967, tinglyst 02.07.2012 - Bestemmelse om veg
GJELDER DENNE REGISTERENHETEN MED FLERE
Dagboknummer 529967, tinglyst 02.07.2012 - Bestemmelse om vannrett
GJELDER DENNE REGISTERENHETEN MED FLERE
Dagboknummer 529967, tinglyst 02.07.2012 - Bestemmelse om båtplass
Rett til å benytte fellesstrand til opphold/bading
GJELDER DENNE REGISTERENHETEN MED FLERE
Dagboknummer 554133, tinglyst 06.07.2012 - Bestemmelse om veg
GJELDER DENNE REGISTERENHETEN MED FLERE
Dagboknummer 554133, tinglyst 06.07.2012 - Bestemmelse om vannrett
GJELDER DENNE REGISTERENHETEN MED FLERE
Dagboknummer 554133, tinglyst 06.07.2012 - Bestemmelse om båtplass
Rett til å benytte fellesstrand til opphold/bading
GJELDER DENNE REGISTERENHETEN MED FLERE
Dagboknummer 205233, tinglyst 12.03.2014 - Bestemmelse iflg. skjøte
Bestemmelse om adkomstrett
Bestemmelse om båtplass
Bruksrett til felles strand
Bestemmelse om vannrett
GJELDER DENNE REGISTERENHETEN MED FLERE
Dagboknummer 1215863, tinglyst 30.12.2015 - Best. om adkomstrett
GJELDER DENNE REGISTERENHETEN MED FLERE
Dagboknummer 1215863, tinglyst 30.12.2015 - Bestemmelse om vannrett
GJELDER DENNE REGISTERENHETEN MED FLERE
Dagboknummer 1215863, tinglyst 30.12.2015 - Bestemmelse om båtplass
Bestemmelse om rett til å benytte fellesstrand
GJELDER DENNE REGISTERENHETEN MED FLERE
Dagboknummer 1215909, tinglyst 30.12.2015 - Best. om adkomstrett
GJELDER DENNE REGISTERENHETEN MED FLERE
Dagboknummer 1215909, tinglyst 30.12.2015 - Bestemmelse om vannrett
GJELDER DENNE REGISTERENHETEN MED FLERE
Dagboknummer 1215909, tinglyst 30.12.2015 - Bestemmelse om båtplass
Bestemmelse om rett til å benytte fellesstrand
GJELDER DENNE REGISTERENHETEN MED FLERE
Dagboknummer 1216021, tinglyst 30.12.2015 - Best. om adkomstrett
GJELDER DENNE REGISTERENHETEN MED FLERE
Dagboknummer 1216021, tinglyst 30.12.2015 - Bestemmelse om vannrett
GJELDER DENNE REGISTERENHETEN MED FLERE
Dagboknummer 1216021, tinglyst 30.12.2015 - Bestemmelse om båtplass
Bestemmelse om rett til å benytte fellesstrand
GJELDER DENNE REGISTERENHETEN MED FLERE
Dagboknummer 1216197, tinglyst 30.12.2015 - Best. om adkomstrett
GJELDER DENNE REGISTERENHETEN MED FLERE
Dagboknummer 1216197, tinglyst 30.12.2015 - Bestemmelse om vannrett
GJELDER DENNE REGISTERENHETEN MED FLERE
Dagboknummer 1216197, tinglyst 30.12.2015 - Bestemmelse om båtplass
Bestemmelse om rett til å benytte fellesstrand
GJELDER DENNE REGISTERENHETEN MED FLERE
Dagboknummer 1216267, tinglyst 30.12.2015 - Best. om adkomstrett
GJELDER DENNE REGISTERENHETEN MED FLERE
Dagboknummer 1216267, tinglyst 30.12.2015 - Bestemmelse om vannrett
GJELDER DENNE REGISTERENHETEN MED FLERE
Dagboknummer 1216267, tinglyst 30.12.2015 - Bestemmelse om båtplass
Bestemmelse om rett til å benytte fellesstrand
GJELDER DENNE REGISTERENHETEN MED FLERE
Dagboknummer 111843, tinglyst 08.02.2016 - Bestemmelse om veg
GJELDER DENNE REGISTERENHETEN MED FLERE
Dagboknummer 111843, tinglyst 08.02.2016 - Bestemmelse om vannrett
GJELDER DENNE REGISTERENHETEN MED FLERE
Dagboknummer 111843, tinglyst 08.02.2016 - Bestemmelse om båtplass
Bestemmelse om benyttelse av strand
GJELDER DENNE REGISTERENHETEN MED FLERE
Dagboknummer 111881, tinglyst 08.02.2016 - Bestemmelse om veg
GJELDER DENNE REGISTERENHETEN MED FLERE
Dagboknummer 111881, tinglyst 08.02.2016 - Bestemmelse om vannrett
GJELDER DENNE REGISTERENHETEN MED FLERE
Dagboknummer 111881, tinglyst 08.02.2016 - Bestemmelse om båtplass
Bestemmelse om benyttelse av strand
GJELDER DENNE REGISTERENHETEN MED FLERE
Dagboknummer 297765, tinglyst 05.04.2016 - Best. om adkomstrett
GJELDER DENNE REGISTERENHETEN MED FLERE
Dagboknummer 297765, tinglyst 05.04.2016 - Bestemmelse om vannrett
GJELDER DENNE REGISTERENHETEN MED FLERE
Dagboknummer 297765, tinglyst 05.04.2016 - Bestemmelse om båtplass
Bestemmelse om benyttelse av fellesstrand
GJELDER DENNE REGISTERENHETEN MED FLERE
Dagboknummer 499870, tinglyst 06.06.2016 - Best. om adkomstrett
GJELDER DENNE REGISTERENHETEN MED FLERE
Dagboknummer 499870, tinglyst 06.06.2016 - Bestemmelse om vannrett
GJELDER DENNE REGISTERENHETEN MED FLERE
Dagboknummer 499870, tinglyst 06.06.2016 - Bestemmelse om båtplass
Rett til å benytte felles strand
GJELDER DENNE REGISTERENHETEN MED FLERE
Dagboknummer 621204, tinglyst 13.06.2017 - Bestemmelse om veg
GJELDER DENNE REGISTERENHETEN MED FLERE
Dagboknummer 621204, tinglyst 13.06.2017 - Bestemmelse om vannrett
GJELDER DENNE REGISTERENHETEN MED FLERE
Dagboknummer 621204, tinglyst 13.06.2017 - Bestemmelse om parkering
GJELDER DENNE REGISTERENHETEN MED FLERE
Dagboknummer 1167725, tinglyst 23.10.2017 - Bestemmelse om veg
GJELDER DENNE REGISTERENHETEN MED FLERE
Dagboknummer 1299323, tinglyst 21.11.2017 - Bestemmelse om veg
GJELDER DENNE REGISTERENHETEN MED FLERE
Dagboknummer 1299323, tinglyst 21.11.2017 - Bestemmelse om parkering
GJELDER DENNE REGISTERENHETEN MED FLERE
Dagboknummer 357922, tinglyst 24.01.2018 - Bestemmelse om veg
GJELDER DENNE REGISTERENHETEN MED FLERE
Dagboknummer 357922, tinglyst 24.01.2018 - Bestemmelse om parkering
GJELDER DENNE REGISTERENHETEN MED FLERE
Dagboknummer 562122, tinglyst 20.03.2018 - Bestemmelse om veg
GJELDER DENNE REGISTERENHETEN MED FLERE
Dagboknummer 562122, tinglyst 20.03.2018 - Bestemmelse om vannrett
GJELDER DENNE REGISTERENHETEN MED FLERE
Dagboknummer 562122, tinglyst 20.03.2018 - Bestemmelse om båtplass/bryggeplass
Bestemmelse om benyttelse av fellesstrand.
GJELDER DENNE REGISTERENHETEN MED FLERE
Dagboknummer 1255285, tinglyst 23.10.2019 - Bestemmelse om adkomstrett
GJELDER DENNE REGISTERENHETEN MED FLERE
Dagboknummer 1255285, tinglyst 23.10.2019 - Bestemmelse om vannrett
GJELDER DENNE REGISTERENHETEN MED FLERE
Dagboknummer 1255285, tinglyst 23.10.2019 - Bestemmelse om båtplass/bryggeplass
GJELDER DENNE REGISTERENHETEN MED FLERE
Dagboknummer 403284, tinglyst 08.08.1967 - Forbud mot næringsvirksomhet
Forbud mot næringsvirksomhet
Dagboknummer 1255285, tinglyst 23.10.2019 - Bestemmelse om strand
GJELDER DENNE REGISTERENHETEN MED FLERE
Dagboknummer 482083, tinglyst 01.01.2020 - Omnummerering ved kommuneendring
Omnummerering ved kommuneendring
Dagboknummer 198708, tinglyst 01.01.2024 - Omnummerering ved kommuneendring
Omnummerering ved kommuneendring
Utskrift av heftelser kan fås ved henvendelse til megler. Kjøpers bank vil få prioritet etter disse. For servitutter eldre enn fradelingsdato og eventuelle arealoppføringer som kan ha betydning for denne matrikkelenhet henvises det til avgivereiendommen. Ta kontakt med megler for mer informasjon.
Offentlige forhold
Vei / Vann / Avløp
Eiendommen er ikke tilknyttet offentlig vann eller avløp.
Adkomst via privat vei.
Privat vei og sommervannløsning som driftes av velforening og grunneier i
samarbeid. Hyttevelet jobber med framtidig mulighet for felles avløpsordning.
Iht reguleringsplanen skal den nye fritidsboligen tilkobles offentlig vann og avløp.
Verdi ved skattefastsetting
Verdien ved skattefastsetting er kr 1 700 000,00 pr. 2024. Verdien er satt ut ifra at fritidsboligen som sto der tidligere.
Reguleringsforhold
Eiendommen ligger i et område som berøres av "Kommuneplan for Asker 2023 - 2025"
Planid: 2020100
Plantype: Kommuneplanens arealdel
Status: Endelig vedtatt arealdelplan (13.06.2023)
Delarealer: Fritidsbebyggelse,Nåværende
BestemmelseOmrådenavn: #9 Nullvekst sør
KPBestemmelseHjemme:l byggegrenser, utbyggingsvolum og funksjonskrav
Det foreligger rammetillatelse til rivning av fritidsbolig og oppføring av ny bolig, datert 16.12.2024.
Tillatelsen bortfaller dersom tiltaket ikke er igangsatt innen 3 år etter at tillatelsen ble gitt, eller dersom byggearbeidene opphører i mer enn 2 år, jf. plan- og bygningsloven § 21-9.
Økonomi
Faste kostnader
Andre faste kostnader:
- Kommunale avgifter kr 4 002,- pr. år. Beløpet gjelder for 2024
- Det må påberegnes kostnader til bygnings-og innboforsikring.
- Det må påregnes kostnader til strøm, tv-signaler, internett og eventuelt velavgift. Evt. påkobling av tv/internett.
Oppgjør
Kjøpesum med tillegg av omkostninger skal være disponibelt på meglers klientkonto innen overtagelse. Normalt innebærer dette at fullt oppgjør må være innbetalt på meglers klientkonto senest to virkedager før avtalt overtagelsesdato. Eventuelle vilkår knyttet til innbetalingen, eksempelvis pantedokument som skal tinglyses til fordel for kjøpers bank, må være megler i hende i god tid før overtagelse kan finne sted.
Finansiering
Kontakt megler for avklaring av finansielle forhold, herunder lån til kjøp av eiendom. PrivatMegleren har avtale med Nordea om formidling av lån og andre finansielle tjenester. PrivatMegleren mottar godtgjørelse for dette.
Totale kostnader
Prisantydning kr 2 590 000,-
I tillegg til prisantydning og ev. fellesgjeld, påløper følgende omkostninger:
Dokumentavgift kr 64 750,00
Boligkjøperforsikring (stand alone) kr 1,00
Tingl.gebyr pantedokument kr 545,00
Tingl.gebyr skjøte kr 545,00
Totalpris inkl. omkostninger og ev. fellesgjeld kr 2 655 841,-.
Dokumentavgiften er på 2,5 % av salgssum. Regnestykket over forutsetter salg til prisantydning.
Diverse
Sammendrag fra selgers egenerklæring
Det er ingen bemerkninger i selgers egenerklæring. Selger egenerklæring ligger vedlagt i salgsoppgaven.
Konsesjon / Odel
Det er ingen konsesjon eller odel på eiendommen. Siden tomten er ubebygd, kreves det signert egenerklæring om konsesjonfrihet.
Sikkerhetsstillelse
Alle eiendomsmeglingsforetak har lovpålagt forsikring av klientmidler begrenset oppad til kr 45 mill. Enkeltsaker er forsikret inntil kr 15 mill. Dersom kjøpers låneinstitusjon krever tilleggsforsikring ved omsetning over 15 millioner, må kjøper selv eller dennes låneinstitusjon dekke utgiftene forbundet med dette.
Øvrige kjøpsforhold
Boligkjøperforsikring
I produktark om boligkjøperforsikring bak i salgsoppgaven, finner du informasjon samt priser på produktene.
Overtagelse
Etter nærmere avtale. Angi ønsket overtagelse i forbindelse med budgivning.
Boligselgerforsikring
Selger har ikke tegnet boligselgerforsikring, og interessenter oppfordres til å sette seg inn i selgers egenerklæring før det inngis bud på eiendommen.
Forsikring
Frem til overtagelse vil eiendommen være forsikret av selger. Det er kjøpers ansvar å påse at eiendommen er fullverdiforsikret etter overtagelse.
Budgiving
Bud kan legges inn trygt og enkelt via Privatmeglerens "gi bud-knapp" som finnes på Privatmegleren.no/eiendommens hjemmeside og i nettannonsen. Trykk "gi bud" og følg instruks med innlogging/opprettelse av bruker. For mer informasjon om budgivning, se "Viktig informasjon" i salgsoppgaven.
Lovanvendelse
Eiendommen selges etter reglene i avhendingsloven (avhl.). Eiendommen skal overleveres kjøper i tråd med det som er avtalt. Det er viktig at kjøper setter seg grundig inn i alle salgsdokumentene, herunder salgsoppgave, tilstandsrapport og selgers egenerklæring. Kjøper anses kjent med forhold som er tydelig beskrevet i salgsdokumentene. Forhold som er beskrevet i salgsdokumentene kan ikke påberopes som mangler. Dette gjelder uavhengig av om kjøper har lest dokumentene. Alle interessenter oppfordres til å undersøke eiendommen nøye, gjerne sammen med fagkyndig før bud inngis. Kjøper som velger å kjøpe usett kan ikke gjøre gjeldende som mangel noe han burde blitt kjent med ved undersøkelsen. Dersom det er behov for avklaringer, anbefaler vi at kjøper rådfører seg med eiendomsmegler eller en bygningssakyndig før det legges inn bud.
Hvis eiendommen ikke er i samsvar med det kjøperen må kunne forvente ut ifra type og synlig tilstand, kan det være en mangel. Det samme gjelder hvis det er holdt tilbake eller gitt uriktige opplysninger om eiendommen. Dette gjelder likevel bare dersom man kan gå ut i fra at det virket inn på avtalen at opplysningen ikke ble gitt, eller at feil opplysninger ikke ble rettet i tide på en tydelig måte. Det er kun mangel for arealavvik dersom vilkårene i avhl. § 3-3 første ledd er oppfylt. Ved beregning av et eventuelt prisavslag eller erstatning, må kjøper selv dekke tap/kostnader opptil et beløp på kr 10 000 (egenandel), jf. avhl. § 3-1 fjerde ledd.
Dersom kjøper ikke er forbruker selges eiendommen som den er , og selgers ansvar er da begrenset, jf. avhl. § 3-9, første ledd 2. punktum. Informasjon om kjøpers undersøkelsesplikt, herunder oppfordringen om å undersøke eiendommen nøye, gjelder også for kjøpere som ikke anses som forbrukere. Med forbrukerkjøp menes kjøp av eiendom når kjøperen er en fysisk person som ikke hovedsakelig handler som ledd i næringsvirksomhet.
Meglers vederlag og utlegg
Fastpris 45 000 inkl. mva
Markedspakke: 18 490,00
Oppgjørskostnad: 11 990,00
Innhenting kommunale opplysninger: 4 990,00
Visninger: 2 990,00
Factoring/ Betalingsutsettelse: 3 450,00
Fotograf: 5 990,00
Innhenting servitutter: 2 990,00
Nettgebyr: 4 990,00
Dersom eiendommen ikke blir solgt skal selger betale et rimelig honorar stort kr 19 000,- + dokumenterte utlegg og tillegg. Alle beløpene er inkl. mva.
Vedlegg til salgsoppgaven
Meglers verdivurdering
Kommunal informasjon;
- Matrikkelbrev/målebrev
- Kommunale avgifter
- Veg, Vann og avløp
- Reguleringskart og bestemmelser
- Evt. velforeningsdokumenter
Tinglyste erklæringer
Budskjema
Nyttige lenker

PrivatMegleren Drammen
Nærområdet
Annonseinformasjon
| FINN-kode | 445818019 |
|---|---|
| Sist endret | 13. jan. 2026 16:29 |
| Referanse | 83251179 |
Annonsene kan være mangelfulle i forhold til lovpålagt opplysningsplikt. Før bindende avtale inngås oppfordres interessenter til å innhente komplett informasjon fra meglerforetaket, selger eller utleier.



















