Bildegalleri

DNB Eiendom v/Tobias Sture har gleden av å presentere Sanktehansveien 15 - Et meget spennende prosjekt!
ENDETOMT M. FANTASTISK UTSIKT OG SOL | STØPT M. GODKJENTE TEGNINGER/TILLATELSE | MULIGHET FOR 2 UTLEIEDELER|DBL. GARASJE
- Totalpris
- 2 963 340 kr
- Omkostninger
- 73 340 kr
- Formuesverdi
- 1 160 000 kr
Pris på lån: fra 11 697 kr/mnd
Eff.rente 5,00 %. 2 023 000 o/25 år. Kostnad: 1 486 100 kr. Totalt 3 509 100 kr.
LånekalkulatorNøkkelinfo
Visning
Om eiendommen
Beskrivelse
DNB Eiendom v/Tobias Sture har gleden av å presentere Sanktehansveien 15 - ditt nye drømmehjem? Her får du en en fantastisk tomt i enden av blindvei i et populært område vest i Søgne med nydelig utsikt og solforhold!
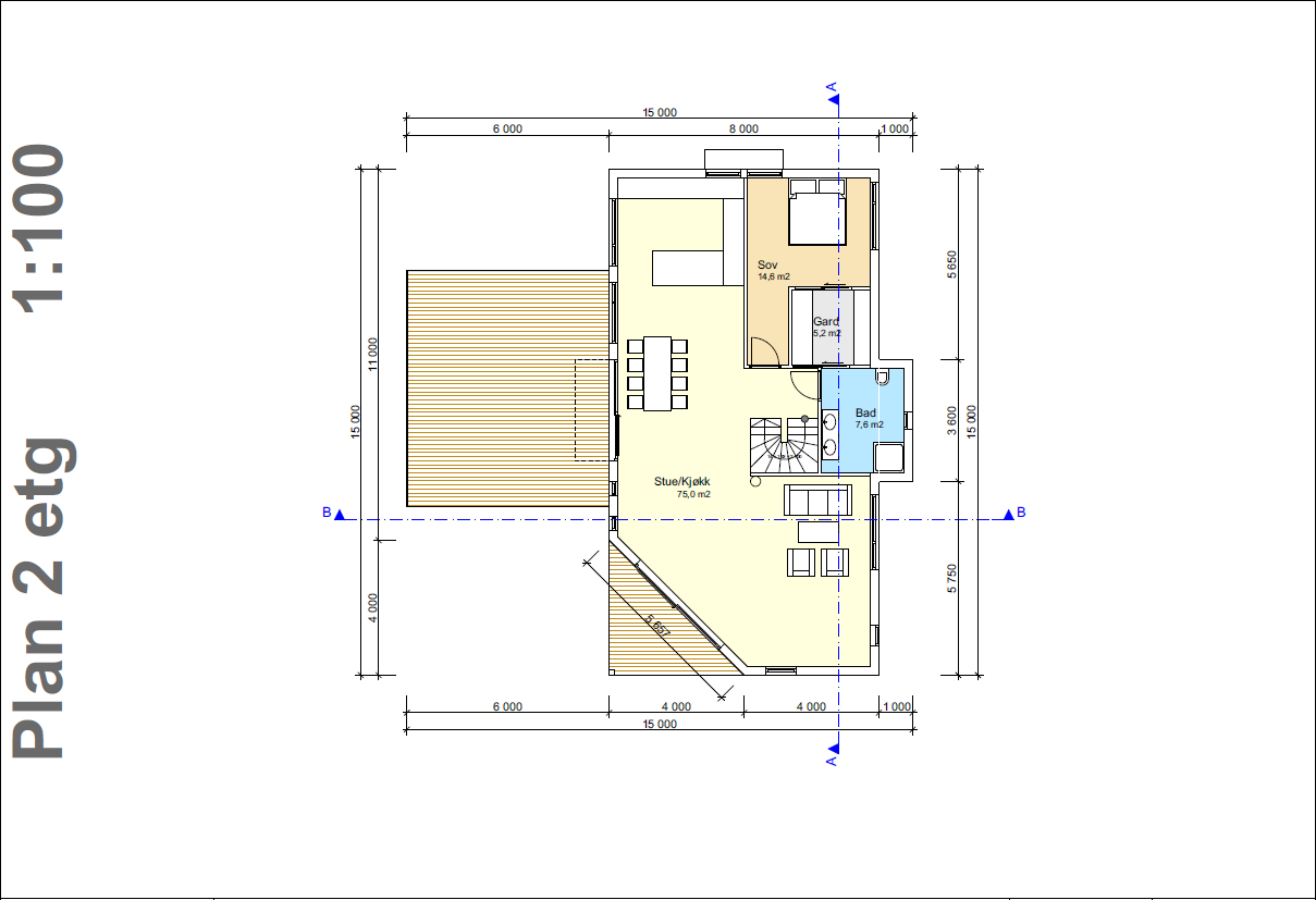
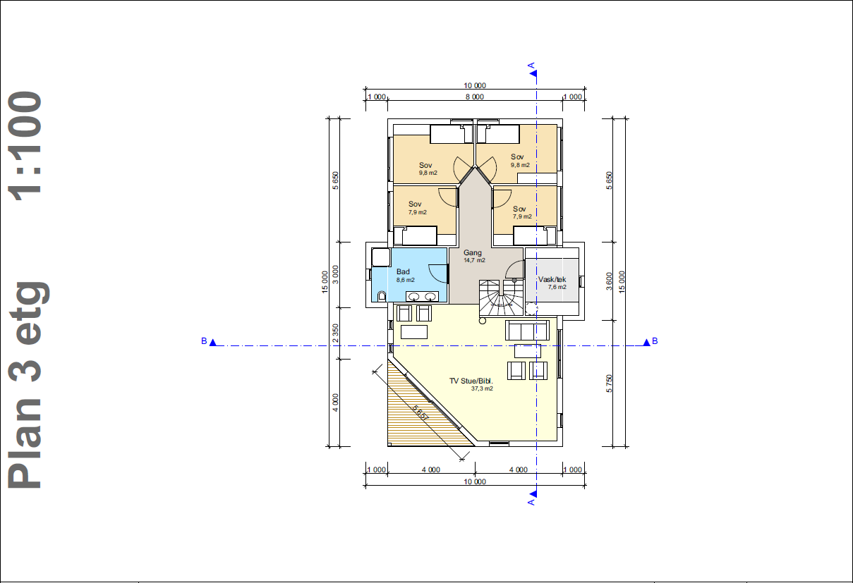
Det foreligger godkjente tegninger datert 28.11.2024 til oppføring av enebolig over 3 etasjer med integrert garasje og 2 praktikantdeler for meget god leieinntekter! Ellers er det godkjent med meget romslig stue og kjøkkenløsning i 2. etasje med store vindusflater som slipper inn flott sjøutsikt og sol, samt hovedsoverom og bad. I 3. etasje er det godkjent med hele 4 soverom, baderom, vaske/teknisk rom og ekstra stue.
Her får du muligheter til å sette ditt eget preg på en helt fantastisk tomt med prima beliggenhet i enden av populær blindvei!
Velkommen til visning!
Bebyggelse
Primært boligbebyggelse i området.
Beliggenhet
Eiendommen ligger plassert i enden av blindvei i et nyetablert boligfelt, vest i Søgne. Et meget barnevennlig og populært område, men nærhet til sjøen med båthavn, badestrand. Flotte turområder like ved, som f.eks Kjellandsvannet med sine mange turløyper og bademuligheter. Lekeplass, ballbinge og sandvolleybane ligger også i umiddelbar nærhet.
Gang- og sykkelsti til barne- og ungdomsskole på Lunde, hvor du også finner butikker, bensinstasjoner, Slakteren m.m. Kort vei til Tangvall sentrum med alle sine fasiliteter. Ca. 20 minutter til Kristiansand Sentrum.
Lovanvendelse
Generelle bestemmelser
Salgsoppgaven er basert på de opplysningene selger har gitt til megler, den bygningssakyndiges tilstandsrapport, samt opplysninger innhentet fra kommunen, Kartverket og andre tilgjengelige kilder. Det er viktig at kjøper setter seg grundig inn i alle salgsdokumentene, herunder salgsoppgave, tilstandsrapport og selgers egenerklæring. Kjøper anses kjent med forhold som er tydelig beskrevet i salgsdokumentene, og slike forhold kan ikke påberopes som mangler. Dette gjelder uavhengig av om kjøper har lest dokumentene. Alle interessenter oppfordres til å undersøke eiendommen nøye, gjerne sammen med fagkyndig før bud inngis. Kjøper som velger å kjøpe usett kan ikke gjøre gjeldende som mangel noe han burde blitt kjent med ved undersøkelsen.
Dersom det er behov for avklaringer, anbefaler vi at interessenter rådfører seg med eiendomsmegler eller egne rådgivere før det legges inn bud.
Kjøper og selgers rettigheter og plikter reguleres av avtalen mellom partene, samt informasjonen som har vært tilgjengelig for kjøperen i forbindelse med handelen. Avtalen utfylles av avhendingsloven, og det gjelder ulike avtalevilkår avhengig av om kjøper er forbrukerkjøper eller ikke. Dette er nærmere beskrevet nedenfor.
På grunn av ulike avtalevilkår kan selger vurdere bud fra en som ikke er forbruker, ulikt fra en forbrukers bud. Dersom kjøper ikke er forbruker, er selger sitt mulige mangelsansvar begrenset fordi eiendommen selges "som den er". Selger kan ikke ta som den er forbehold ovenfor en forbrukerkjøper. Selv et lavere bud fra en som ikke er forbruker kan foretrekkes fordi begrensningen i mulig mangelsansvar kan ha egenverdi for selger. Selger står fritt til å forkaste eller akseptere ethvert bud, og er for eksempel ikke forpliktet til å akseptere høyeste bud.
Budgiver skal i budskjema avgi egenerklæring om budgiver er forbruker eller næringsdrivende/ person som hovedsakelig handler som ledd i næringsvirksomhet. Budgivere får informasjon dersom andre bud er inngitt av en som ikke er forbruker.
Forbrukerkjøp - definisjon
Med forbrukerkjøp menes kjøp av eiendom når kjøperen er en fysisk person som ikke hovedsakelig handler som ledd i næringsvirksomhet.
Forbruker avtalevilkår
Eiendommen har en mangel dersom den ikke er i samsvar med kravene som følger av avtalen, eller det foreligger brudd på bestemmelsene i avhendingsloven §§ 3-2 til 3-8. Hvis eiendommen ikke er i samsvar med det kjøperen må kunne forvente ut ifra alder, type og synlig tilstand, kan det være grunnlag for mangelskrav. Det samme gjelder hvis det er holdt tilbake eller gitt uriktige opplysninger om eiendommen. Dette gjelder likevel bare dersom man kan gå ut ifra at det virket inn på avtalen at opplysningen ikke ble gitt eller at uriktige opplysninger ikke blir rettet i tide på en tydelig måte.
Dersom eiendommen har et mindre grunnareal (tomt) enn kjøperen har regnet med, er det likevel ikke en mangel hvis ikke arealet er vesentlig mindre enn det som fremkommer av salgsdokumentene, jf. avhl-3-3.
Ved beregning av et eventuelt prisavslag eller erstatning må kjøper selv dekke tap/kostnader opptil et beløp på kr 10 000 (egenandel).
Ikke-forbruker (næringsdrivende) definisjon
Hvis kjøper er en juridisk person, eller en fysisk person som hovedsakelig handler som ledd i næringsvirksomhet, vil kjøpet ikke anses som et forbrukerkjøp.
Ikke-forbruker avtalevilkår
Eiendommen har en mangel dersom den ikke er i samsvar med kravene som følger av avtalen. Eiendommen selges som den er , og selgers ansvar utover det konkret avtalte er da begrenset etter avhendingsloven § 3-9, første ledd andre setning.
Informasjon om kjøpers undersøkelsesplikt, herunder oppfordringen om å undersøke eiendommen nøye, gjelder også for kjøpere som ikke anses som forbrukere.
Adkomst
Se kart.
Budgivning
Bud kan legges inn på nettannonsen via "gi bud"- lenken. Ved elektronisk budgivning kan bud legges inn trygt og enkelt med Bank-ID. Megler kan også kontaktes for tilsendelse av budskjema. Budskjema finnes også i salgsoppgaven.
All budgivning må foregå skriftlig. Kontakt megler dersom det er behov for bistand for å gi bud.
Tomt
Planert og romslig ende-tomt i blindgate med flott utsikt mot Torvfjorden og Søgnes vakre skjærgård. Tomten grenser mot fjell på baksiden. Fantastiske solforhold.
Diverse
Vedtaket om tillatelse har gyldighet i 3 år fra vedtaksdato. Etter den tid faller tillatelsen bort, jamfør plan- og bygningsloven §21-9.
Vedtaket ble godkjent 28.11.2024.
Omkostninger
Mange kjøpere har anledning til å tegne boligkjøperforsikring. Vedlagt i salgsoppgaven følger informasjon om Boligkjøperforsikring fra HELP Forsikring AS. Boligkjøperforsikring er en rettshjelpsforsikring som gir trygghet og profesjonell juridisk hjelp dersom det oppdages uventede feil eller mangler ved boligen de neste fem årene. Les mer om Boligkjøperforsikring i vedlagte materiell eller på help.no. Det gjøres oppmerksom på at meglerforetaket mottar kr 4 700,- / 5 200,- / 6 800,- i kostnadsgodtgjørelse for Boligkjøperforsikring (avhengig av boligtype).
Ansvarlig megler
Tobias Sture
Regulering
Nyttige lenker
DNB Eiendom AS
Nærområdet
Annonseinformasjon
| FINN-kode | 440049749 |
|---|---|
| Sist endret | 05. des. 2025 10:59 |
| Referanse | 665250156 |
Annonsene kan være mangelfulle i forhold til lovpålagt opplysningsplikt. Før bindende avtale inngås oppfordres interessenter til å innhente komplett informasjon fra meglerforetaket, selger eller utleier.





















