Bildegalleri

Velkommen til Snorres gate 18 - her bor man i rolige og etablerte omgivelser, med utsikt mot fjord og fjell fra alle plan.
Sjelden mulighet m/fantastisk beliggenhet og slående panorama over fjorden! Godkjent for flott funkishus med 3 etasjer.
- Kommunale avg.
- 21 526 kr per år
- Totalpris
- 9 194 340 kr
- Omkostninger
- 244 340 kr
- Formuesverdi
- 1 519 325 kr
Pris på lån: fra 36 224 kr/mnd
Eff.rente 5,00 %. 6 265 000 o/25 år. Kostnad: 4 602 200 kr. Totalt 10 867 200 kr.
LånekalkulatorNøkkelinfo
Fasiliteter
Visning
Om eiendommen
Kort fortalt
- Sjelden mulighet på meget attraktive Madla.
- Fantastisk beliggenhet med panoramautsikt mot fjord og fjell.
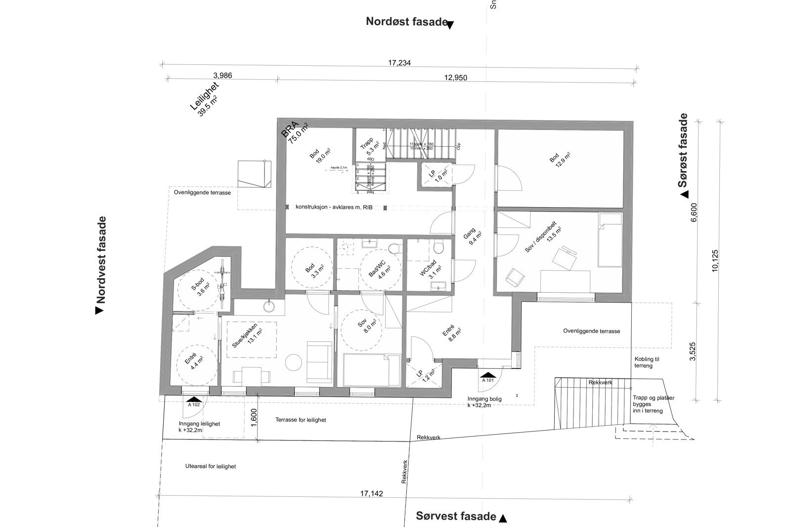
- Spennende tomt med stort potensiale, det er gitt igangsettelsestillatelse for funkishus.
- Ny bolig kan oppføres i tre plan, og ha utleieleilighet og tilhørende garasje.
- Tegnet inn med heiser mellom garasjen og etasjene for livsløpsstandard.
- Her kan man bo her livet ut, like enkelt som i en leilighet, men uten å miste fordelen med å selv bestemme hvordan ting skal være.
- Planlangt to nye, lune uteplasser for optimal utnyttelse av utsikten.
- Godkjent vinterhage i 2. etasje.
- Fine solforhold på uteplassene.
- Kjøkkenet har utgang til terrassen.
- Lys stue med store vindusflater fra gulv til tak.
Oppdragsnummer
301-24-0258
Eier
Torbjørn Sterri
Anne Brit Børresen Sterri
Eiendomstype
Boligtomt
Eierform
Selveier
Betegnelse
Gnr. 38 Bnr. 2154 i Stavanger kommune
Ideell andel: 1/1
Byggeår
1970. Leilighet er etablert 1986.
Arealer og fordeling per etasje
Totalt BRA 209 kvm består av:
- BRA-i (internt bruksareal): 209 kvm
- TBA (terrasse-/balkongareal) 47 kvm
Det totale bruksarealet fordeler seg som følger:
Første etasje:
- BRA: 88 kvm
- BRA-i: 88 kvm (Entre, trappegang og 4 boder)
Første etasje hybel:
- BRA: 35 kvm
- BRA-i: 35 kvm (Bad, kjøkken, stue og sovealkove)
Andre etasje:
- BRA: 86 kvm
- BRA-i: 86 kvm (Gang, stue, kjøkken, bad og 3 soverom)
- TBA: 47 kvm
Vedlagte plantegninger er ikke målbare, og oppgitte arealer er hentet fra vedlagte tilstandsrapport.
Arealene er plassmålt og beregnet med utgangspunkt i NS 3940:2023.
Det gjøres oppmerksom på følgende avvik mellom godkjente tegninger og dagens bruk:
1.etasje: Mat er omgjort til bod. Redskap er omgjort til bod, og gjort mindre for et større bad. Hobby er omgjort til to boder. Disp er omgjort til kjellerstue.
I andre etasje stemmer tegninger overens med dagens bruk. Det er tegnet inn tre soverom, bad, kjøkken, gang og stue.
Areal
Primærrom: 141 kvm, Bruksareal: 209 kvm, BRA-i: 209 kvm , TBA: 47 kvm
Antall rom
7
Tomtetype/areal
Eiet tomt / 731 kvm
Beliggenhet
Eiendommen ligger i et svært attraktivt og veletablert område på Madla i Stavanger kommune. Området er familievennlig med en rekke lekeplasser og grøntområder så og si rett utenfor døren. Det er også kort gangavstand til skoler, barnehager, Universitetet i Stavanger og det nye sykehuset på Ullandhaug som skal åpne 15. november 2025.
Den populære badestranden i Møllebukta ligger kun en kort spasertur fra boligen. Her kan du nyte sola på en nydelig sandstrand med statuen Sverd i fjell. Fra Møllebukta kan du følge den prisbelønte kyststien til Håhammaren. Det er også en rekke turstier rundt Stokkavatnet og i Sørmarka.
For den sportsinteresserte er det kort vei til flotte ballbaner, aktivitetspark og friidrettsanlegg på Gosen og Madla. Det er også tennisbane, skøytebane, ishockey senter og Curlingbane i nærheten. 10 minutter unna ligger Sola racketsenter med blant annet squash og badminton.
Madlamark barneskole har svømmehall og UiS har et eget sportssenter som er åpent for alle. Det er ca. 6 minutters kjøretur til ishallen DNB Arena, hjemmearena til Stavanger Oilers. Like ved finner du også Stavanger idrettshall.
Beskrivelse av nærområdet / fasiliteter
Dagligvarehandelen kan gjøres på blant annet Kiwi, Coop Mega og Rema 1000. Det er ca. 3 minutters kjøring til Amfi Madla som inneholder 85 butikker og forretninger. Det er ellers kort kjørevei til OBS Bygg på Madla, samt alt av bymessige fasiliteter i sentrum av Stavanger.
Området byr på offentlig kommunikasjon i form av buss. Nærmeste holdeplass er Madlaleiren, som er rundt 2 minutters gange unna. Her går det buss mot Stavanger sentrum. Ellers har man også busstopp ved Madlamark kirke, her går det hele 3 busser som går til Madla Amfi, Stavanegr sentrum, Universitetet, Forus, Sandnes eller over Ullandhaug. Ved å benytte bil tar det ca. 11 min til Stavanger sentrum, 13 min til Forus og 14 min til Stavanger Lufthavn, samt 15 min til Sandnes.
Fra eiendommen er det gangavstand til anerkjente Madlamark og Madlavoll barneskole. For elever i ungdomstrinnene er det en kort spaserstur til Gosen ungdomsskole. Det finnes flere videregående skoler i nærliggende områder, samt et godt utvalg av gode barnehager. Det er rundt 20 minutters gange til Universitetet i Stavanger og det nye SUS.
Byggemåte
Boligen er bygget med grunnmur i betong-stein og tilbygg fra 1986 har delvis leca-blokker med isolasjon. Vegger ellers er bygget i bindingsverk med stående/liggende bordkledning fra byggeår og 1986. Vinduer/dører er i trevirke med isolerglass fra byggeår og 1986. Takkonstruksjon er bygget som saltak og flatt tak over tilbygg. Taket er bygget med sperr som er tekket med sutaksbord, papp, strø og lekter. Boligen har bjelkelag av tre, fra byggeår, tilbygg har siporeks elementer med påstøp. Det er anlagt tak-overheng fra terrasse mot 1. etasje (svalgang). Boligen har pipe i leca-element fra byggeår, oppmurt og pusset, og forblendet med teglstein. 1. etasje er delvis under terreng.
Det er gitt tilstandssvekkelser TG2 og TG3 på følgende elementer som det gjøres særlig oppmerksom på:
Takstmannens vurdering ved TG 3:
Byggegrunn, fundamenter og grunnmur
-Hoveddel av bolig har en sprekk i grunnmur i opprinnelig stue 1 etasje mot sørvest, dette er en mindre skade som trolig kan forklares med utgravinger av terreng utside. Det er ikke påvist skader av grov karakter i hoveddel av boligen ellers. Entre hoveddel som er en del av tilbygg fra 1986 har store skjevheter i gulvflate, entre har skjevheter på ca. 30 mm. på et par meter. Registrert sprekk flere steder på fundament som er synlig fra utside. Det er i tillegg også tegn til skader innvendig. Gulvet i hybel har store bruddskader i fliser, bom i fliser og svært skjeve gulv, som er et resultat av mangelfullt fundament. U-fagmessig utførelse. Fundament for yttervegg er synlig mot sørvest og har mangelfull oppbygging, Leca-blokker er lagt direkte på grunnen med kun et lag betong under. Mistenker utførelse på resterende tilbygg har samme oppbygging. Resultat av dette avviket medfører til sprekker og omfattende settningskader i hele tilbygget. Avviket innebærer en betydelig kostnad for utbedring. Anbefales ytterligere undersøkt og utbedret av autorisert entreprenør.
Takstmannens prisvurdering ved utskiftning antas mer enn Kr. 300 000
Drenering
-Tiltak for re-drenering rundt boligen må påregnes, dette gjelder drenering som ikke er utskiftet/fornyet i sin helhet.
-Etablere bedre fall fra grunnmur, kan være utfordrende mot bakside.
-Det anbefales ytterligere undersøkelser.
Takstmannens prisvurdering ved utskiftning antas over 300 000,-
Yttervegger og veggkonstruksjon
Det anbefales utskifting av all bordkledning, det må etableres vindtetting, lufting og musetetting ved rehabilitering. Overgang mellom grunnmur og kledning må etableres med beslag. Innvendige overflater med skader etter fukt må utbedre/fornyes. Takstmannens prisvurdering ved utskiftning antas mer enn Kr. 300 000.
Vinduer og ytterdører
Utskifting av gamle og slitte vinduer/dører må påregnes i hele boligen.
Takstmannens prisvurdering ved utskiftning antas mer enn Kr. 300 000.
Undertak, lekter og yttertekking (taktekkingen)
-Undertak må fjernes i sin helhet.
-Yttertak/papp har passert sin levetid og må skiftes ut med nytt.
-Sutak, duk, strø, lekter og takstein må monteres, samt nytt beslag rundt pipe.
-Innvendig gulv på loftet må uttørkes når nytt yttertak er skiftet, isolasjon mot 2. etasje må også erstattes med nytt. Loftsluke må også isoleres. Ved utskifting av yttertak vil også problemer med fukt lekkasjer i etasjene under elimineres bort. Yttertak og undertak må totalt rehabiliteres før boligen eventuelt renoveres ellers.
Takstmannens prisvurdering ved utskiftning antas mer enn Kr. 300 000.
Renner, nedløp og beslag
-Renner, nedløp og beslag må skiftes ut i sin helhet, tilkobling av avløpsnett for takvann må etableres/ferdigstilles.
Takstmannens prisvurdering ved utskiftning antas mellom Kr. 50.000. - og 100.000.-
Terrasser, balkonger, trapper o.l.
-Det må etableres membran/duk (tettesjikt) på overflate, for å forhindre fremtidige skader av fukt mot tilstøtende rom.
-Konstruksjon må tørkes ut før innvendig utbedring kan utføres, dette kan medføre utfordringer og tidkrevende.
-Lufting mellom kald og varm side må etableres for å forhindre kondens-skader.
-Forskriftsmessig rekkverk må etableres.
-Estimerte kostnader gjelder kun utvendig tekking, innvendige kostnader omhandles i punkt 9.1.1
Takstmannens prisvurdering ved utskiftning antas mellom Kr. 50.000. - og 100.000.-
Etasjeskillere
Målt høydeforskjell på over 30 mm. gjennom hele rommet.
Tilstandsgrad 3 gis med bakgrunn i standardens krav til godkjente måleavvik.
-For å få tilstandsgrad 0 eller 1 må høydeforskjeller rettes opp. Det vil i midlertid sjelden være økonomisk rasjonelt som et enkeltstående tiltak i en bolig som dette. Dersom boligen en gang skal renoveres, kan man vurdere slike tiltak.
Viktig å merke seg at konstruksjoner i eldre boliger ikke nødvendigvis tilfredsstiller dagens krav til stivhet da disse er bygget etter eldre forskrifter.
Takstmannens prisvurdering ved utskiftning antas mellom Kr. 100 000. - og 300.000.-
Bad/kjøkken Veggenes og himlingens overflater
-Årsak kan sees i sammenheng med mangelfull fuktsikring/drens av grunnmur utvendig. Og lekkasjer fra utett terrasse.
-Vegger og innvendig tak må rives i sin helhet og fornyes.
-Utvendige problemer med drenering og fuktsikring av grunnmur samt tettesjikt terrasse må fornyes før ny oppbygging kan starte.
-Det anbefales montert flere ventiler i vegger for å forbedre ventilasjonen i kjeller.
Takstmannens prisvurdering ved utskiftning antas mellom Kr. 100 000. - og 300.000.-
Bad 1. etasje. Overflate vegger og himling
-Våtrommet har overskredet sin forventede levetid og må totalrenoveres for å oppfylle dagens forskriftskrav til våtrom.
Takstmannens prisvurdering ved utskiftning antas mellom Kr. 100 000. - og 300.000.-
Bad 2. etasje. Overflate vegger og himling
-Gulvet har to forskjellige nivåer, uten tett oppbrett ved terskler.
-Fliser på gulv har store bruddskader.
-Ikke ventilert, våtrom skal ha mekanisk avtrekk.
-Jernsluk uten tett/synlig membran.
-Synlig og delvis innstøpt avløpsrør fra kabinett.
-Det mangler tilluft-spalte under dør.
-U-fagmessig utførelse, usikker oppbygging.
-Alder på våtrom.
-Våtrommet har overskredet sin forventede levetid og må totalrenoveres for å oppfylle dagens forskriftskrav til våtrom.
Takstmannens prisvurdering ved utskiftning antas mellom Kr. 100 000. - og 300.000.-
Andre rom
-Innvendige overflater må påregnes utskiftet med nytt, dette gjelder vegger, tak og gulv.
Arbeid kan ikke påbegynnes før yttertak er rehabilitert og uttørket.
Takstmannens prisvurdering ved utskiftning antas mellom Kr. 100 000. - og 300.000.-
Takstmannens vurdering ved TG 2:
Støttemurer
-Støttemur anbefales holdt under oppsikt.
-Monter rekkverk for å forhindre fallskader.
Takkonstruksjon, taktekking og skorstein over tak
-Alder og normal slitasje.
-Utvendig tekking må fornyes, estimerte kostnader for tiltaket fremkommer på neste punkt.
Piper og ildsteder
-Alder/slitasje på pipe.
Kjøkken 1. etasje Kjøkken 1. etasje
-Slitasje/alder som anført og alder på innredning.
-Avvik i vegger, gulv og himlinger er allerede omhandlet og tas ikke med.
Kjøkken 2. etasje Kjøkken 2. etasje
-Slitasje/alder på innredning/hvitevarer.
WC og innvendige vann- og avløpsrør
Røropplegg får TG 2 grunnet alder. Tidspunkt for utskiftning av vannledninger nærmer seg. Det er ikke behov for utbedringstiltak siden anlegget fungerer i dag, men ut ifra alder kan skader plutselig oppstå på eldre anlegg.
Varmtvannsbereder
-En utskifting av gammel bereder som følge av oppnådd alder/over 20 år, er påregnelig i tiden som kommer.
Ventilasjon
-Tilluft spalte på dør mangler i begge våtrom.
-Mekanisk ventilasjon må etableres i bad 2. etasje ved rehabilitering.
-Ventilasjon i hybel må forbedres ved rehabilitering.
Rapporten baseres i hovedsak på visuell besiktelse av tilgjengelige overflater og deler. Boligens elektriske anlegg er ikke vurdert. Interessenter anbefales å sette seg godt inn i innholdet i rapporten.
For nærmere beskrivelse av byggemåte og byggeteknisk tilstand, se vedlagt tilstandsrapport utført av Ørjan Samland datert 19.12.2024.
Standard
Velkommen til Snorres gate 18 - en sjelden mulighet på Madla! Eiendommen har unik beliggenhet, fint plassert i høyden slik at både sol og panoramautsikt ivaretas på beste måte. Her bor man i rolige og etablerte omgivelser, med utsikt mot fjord og fjell fra alle plan. Mulighetene med eiendommen er mange, så her har man en gyllen anledning til å realisere boligdrømmen. Dagens eiere har investert tanke, tid og penger i godkjente arkitekttegninger for et nytt familiehjem. Tegningene viser et flott funkishus over tre plan, der den nye etasjen får en stor og sosial sone med stue og kjøkken. Det er gitt igaangsettelsestilltelse for prosjektet, så her kan man videreføre det som allerede er påbegynt. Det er satt opp stillas på eiendommen slik at man kan få et inntrykk av utsikten fra det tiltenkte tredje planet.
Soverommene er planlagt å ligge sammen i andre etasje, og i den prosjekterte eneboligen er det godkjent heiser mellom garasjen og alle boarealene. Dermed kan man bo her livet ut, like enkelt som i en leilighet, men uten å miste fordelen med å selv bestemme hvordan ting skal være. Den nye boligen vil ha høy funksjonalitet, med god plass til både storfamilien og vennebesøk. I tillegg er det planlagt leilighet i 1. etasje, slik at man har muligheten både til generasjonsbolig eller utleie.
Logistikkmessig er plasseringen ypperlig, enten det er den korte avstanden til Madla Amfi eller for å ta direkte buss til Stavanger flyplass Sola, til sentrum eller andre steder. Den korte avstanden til "Nye SUS" på Ullandhaug og universitetet på Ullandhaug gjør plasseringen attraktiv, kun en kort sykkeltur eller en spasertur unna.
Eiendommen markedsføres som tomt, men det presiseres at det allerede står oppført et hus på eiendommen. Dagens eier har søkt om og fått godkjent en totalombygging på huset. Det er gitt igangsettingstillatelse datert 22.09.2021. Ny eier vil få tilgang til alle selgers tegninger og dokumenter knyttet til søknadsprosessen. Selv om eiendommen nå markedsføres som tomt, presiseres det at dagens eier ikke tidligere har søkt om rivningstillatelse av nåværende hus, men en totalombygging. Det gis ingen garanti for at ny eier får lov til å rive huset som står på eiendommen i dag. Ny eier er selv ansvarlig for videre dialog med kommunen og alle prosesser knyttet til evt. rivning, byggesøknader og tillatelser. Spørsmål om selve søknadsprosessen må rettes til Stavanger kommune.
Utstyr
Ventilasjonen er naturlig, med mekanisk avtrekk fra hovedkjøkkenet og badet i første etasje. Varmtvannstanken rommer ca. 200 liter og er plassert på det nederste planet. Sikringsskapet har skrusikinger og er montert i gangen i andre etasje. En ny jordfeilbryter er installert på el-anlegget i senere tid.
Møblering
Eiendommen selges umøblert. Integrerte hvitevarer medfølger handelen.
Selger kan ikke garantere for varighet og funksjon, og det blir ikke satt inn nye hvitevarer dersom noe blir defekt i perioden mellom budaksept og overtagelse.
Oppvarming
Eksisterende bolig oppvarmes elektrisk med stedvis panelovner og gulvvarme på badene, supplert av en vedovn og en åpen teglsteinspeis i kjellerstuen.
Parkering / Garasje
Tomten har et støpt betongdekke for garasje, og det foreligger tegninger av en garasje til det nye funkishuset.
Adkomst
På finn.no kan du se vedlagt kartskisse på høyre side i annonsen. Ved å trykke på kartet får du enkelt tilgang til en spesifisert reiserute fra din startdestinasjon til boligen. Det vil bli skiltet med PrivatMegleren visningsskilt på visningsdagen.
Beskrivelse av tomt
Nabolaget er stille og rolig, nær sjøen og alt man trenger i hverdagen. Beliggenheten er unik; høyt i terrenget med storslått panoramautsikt over Hafrsfjord og magiske solnedganger. Her bor man med kort vei til en rekke arbeidsplasser, og gode sykkelveier gir en sikker og behagelig transport fra boligen. Tomten er skrånende, noe som muliggjør den gode utsikten over annen bebyggelse og landskapet. Tomten består av synlige fjellpartier mot sør og på baksiden av huset er det et stort område for videre utvikling av eiendommen med nye spennende prosjekter.
Her er fuktsikringen og dreneringen delvis skiftet i senere tid. På fremsiden av huset har tomten fyllmasser og en trapp i lødd naturstein tar deg opp til inngangen. Fra kjøkkenet og hovedsoverommet er det utgang til en terrasse på ca. 47 kvm, der utsikten gir et vakkert bakteppe for dagene utendørs.
Med eiendommen foreligger det arkitekttegninger av en delvis ny bolig, og her vil en ny tredje etasje ha direkte utgang til en stor, lun og avskjermet terrasse/uteplass. Uterommet blir unikt og solrikt, med uslåelig panoramautsikt over Hafrsfjord - helt fra Sandnes til Revheim. Etasjen under er planlagt med vinterhage og tilhørende terrasse, et lunt uterom der sjø og himmel flyter sammen for en storslått utsikt.
Eiendommen markedsføres som tomt, men det presiseres at det allerede står oppført et hus på eiendommen. Dagens eier har søkt om og fått godkjent en totalombygging på huset. Det er gitt igangsettingstillatelse datert 22.09.2021. Ny eier vil få tilgang til alle selgers tegninger og dokumenter knyttet til søknadsprosessen. Selv om eiendommen nå markedsføres som tomt, presiseres det at dagens eier ikke tidligere har søkt om rivningstillatelse av nåværende hus, men en totalombygging. Det gis ingen garanti for at ny eier får lov til å rive huset som står på eiendommen i dag. Ny eier er selv ansvarlig for videre dialog med kommunen og alle prosesser knyttet til evt. rivning, byggesøknader og tillatelser. Spørsmål om selve søknadsprosessen må rettes til Stavanger kommune.
For videre detaljer og vilkår for igangsettingstillatelse, se under punktet ferdigattest eller midl. brukstillatelse.
Tinglyste rettigheter og forpliktelser
Kommunen har legalpant som sikkerhet for betaling av kommunale avgifter. Legalpant er pant som følger av loven, og som ikke tinglyses. Legalpant følger derfor eiendommen ved salg. På eiendommen kan det være tinglyst erklæringer som f eks rett for kommunen til å vedlikeholde rørsystemer for vann- og kloakk. Disse erklæringene vil følge eiendommen ved salg. Kontakt megler for nærmere informasjon.
Servitutter / rettigheter
Eiendommen overdras fri for pengeheftelser, med unntak av eventuelle erklæringer, avtaler, servitutter og panteheftelser som fremgår av salgsoppgaven og skal følge med eiendommen ved salg. Kjøpers bank vil få prioritet etter disse.
1970/9553-2/102 Erklæring/avtale
22.10.1970
FELLES SEPTIKTANK SKAL TILHØRE BNR. 293
Den felles septiktank som er plassert i nordvestre hjørne på gnr 38, bnr 2154 skal fortsatt være gnr 38, bnr 293, s eiendom.
1978/15158-1/102 Erklæring/avtale
17.11.1978
RETT FOR STAVANGER KOMMUNE TIL Å HA LIGGENDE PUMPELEDNING MED BOREGROP FOR BORING AV TUNNEL
Rettigheter på andre eiendommer
Rettigheter på 1103-38/3665
Rettigheter i eiendomsrett
2017/1280519-1/200 Bestemmelse om veg
16.11.2017 21:00
rettighetshaver:Knr:1103 Gnr:38 Bnr:2154
Gnr 38, bnr 2154 gis rett til uhindret adkomst over eiendom med gnr 38, bnr 3665 med veirett i 3 meters bredde frem til Snorres gate.
Drift og vedlikeholdsansvar, herunder snøbrøyting deles likt mellom eiendommene med gnr. 38, bnr 2154/3665.
Det tillates ikke parkering i veien.
Skal veien benyttes til anleggstrafikk skal skadevolder sette veien i stand igjen. det gjelder veidekke så vel som murer, kantstein og beplantning som måtte bli skadet.
Tinglyste heftelser ligger vedlagt til prospektet. Interessenter oppfordres til å lese dokumentet.
Vei / Vann / Avløp
Offentlig vann og avløp. Tilkomst til eiendommenskjer via offentlig og privat vei (38/3665). Se punktet servitutter for ytterligere informasjon om veirett.
Ferdigattest eller midl. brukstillatelse
Det foreligger igangsettingstillatelse - gnr/bnr 38/2154 - Totalombygging - enebolig med sokkelleilighet - nedgravd garasje, datert 22.09.2021 iflg Stavanger kommune.
Betingelsen for igangsettingstillatelsen er at disse punktene blir oppfylt:
1. Ansvarlig søker skal sørge for at alle oppgaver er belagt med ansvar og koordinere overlappende ansvarsområder.
2. Eventuelle tiltak knyttet til fordrøyning av overvann må avklares med Vann- og avløpsetaten i kommunen før oppstart (post.vamyndighet@stavanger.kommune.no).
3. Du må melde fra om alle ildsteder til feiervesenet før de installeres.
4. Ansvarlig søker skal sørge for søknad om midlertidig brukstillatelse/ferdigattest. Byggverket, eller deler av det, kan ikke tas i bruk før det er gitt ferdigattest eller midlertidig brukstillatelse etter plan- og bygningsloven (pbl) § 21-10, jf. § 32-8.
5. Hvis ikke arbeidet er satt i gang innen tre år etter at rammetillatelsen er gitt, faller tillatelsen bort. Det samme gjelder hvis arbeidet innstilles i mer enn to år.
Det foreligger rammetillatelse for gnr/bnr 38/2154 - Enebolig med sokkeleilighet og nedgravd garasje - dispensasjon, datert 09.07.2018 iflg Stavanger kommune.
Betingelsen for rammetillatelsen er at disse punktene blir oppfylt:
1. Plan- og bygningsloven (pbl) med forskrifter må følges.
2. Arbeidet kan ikke starte før dere har søkt om - og vi har gitt - igangsettingstillatelse.
3. Hvis ikke arbeidet er satt i gang innen tre år etter at tillatelsen er gitt, faller tillatelsen bort. Det samme gjelder hvis arbeidet innstilles i mer enn to år.
Det foreligger ferdigattest for bygningen som er anmeldt på eiendommen gnr. 38, bnr. 2154, Snorres gate 18 datert 11.01.1971 iflg Stavanger kommune.
Verdi ved skattefastsetting
Verdien ved skattefastsetting som primærbolig kr 1 519 325,- pr 31.12.23
Verdien ved skattefastsetting som sekundærbolig kr 6 077 299,- pr 31.12.23
Ligningsverdi er innhentet fra Skatteetaten.no og må kun sees på som et estimat.
Reguleringsforhold
Eiendommen er regulert til bolig. Området reguleres av plan 2629 reguleringskart m/bestemmelser er tilgjengelig hos megler.
Kommuneplaner:
Id: KP 2023-2040
Navn: Kommuneplanens arealdel 2023-2040
Plantype: 20 - Kommuneplanens arealdel
Status: 3 - Endelig vedtatt arealplan
Ikrafttredelse: 11/11/2022 00:00:00
Bestemmelser: KPA bestemmelser og retningslinjer vedtatt 28.06.2024.pdf
Delarealer: Areal: 731.62 kvm. Hensynsonenavn: H190_1. Kpsikring: 190 - Andre sikringssoner
Reguleringsplaner:
Id: 2629
Navn: Detaljregulering for Snorres gate 30. Madla bydel
Plantype: 35 - Detaljregulering
Status: 3 - Endelig vedtatt arealplan
Ikrafttredelse: 06/18/2018 00:00:00
Bestemmelser: 2629 bestemmelser.pdf
Delarealer:
Areal 0.0 kvm. Feltnavn f_AU1. Rparealformal 1690 - Annet uteoppholdsareal
Areal 0 kvm. Feltnavn BK2. Rparealformal 1112 - Boligbeb. - konsentrert småhusbebyggelse
Areal 0.0 kvm. Feltnavn BK1. Rparealformal 1112 - Boligbeb. - konsentrert småhusbebyggelse
Id: 1174
Navn: Madlaveien på strekningen Snorres gt. - Madlakrossen, samt tilhørende del av felt A i Madlamark.
Plantype: 30 - Eldre reguleringsplan
Status: 3 - Endelig vedtatt arealplan
Ikrafttredelse: 03/21/1988 00:00:00
Bestemmelser: 1174.pdf
Delarealer:
Areal 731.63 kvm. Feltnavn. Regform 110 - Boliger
Tomt i nærområdet gnr/bnr 38/3664 er regulert til bolig, her foreligger det igangsettingstillatelse for enebolig med garasje og forstøtningsmur.
Energimerking
Oppvarmingskarakter Oransje - Energikarakter F
Andre faste løpende kostnader
Forsikring, strøm / nettleie, tv / internett.
Valg av leverandør og avtaletype som kan gi ulik pris.
Kommunale avgifter Kr. 21 526 pr. år
Inkluderer: Renovasjon, vann og avløp, feiing og tilsyn og eiendomsskatt.
Forsikring i Tryg Forsikring, (polisenummer 7125710)
Oppgjør
Kjøpesum med tillegg av omkostninger skal være disponibelt på meglers klientkonto innen overtagelse. Normalt innebærer dette at fullt oppgjør må være innbetalt på meglers klientkonto senest to virkedager før avtalt overtagelsesdato.
Eventuelle vilkår knyttet til innbetalingen, eksempelvis pantedokument som skal tinglyses til fordel for kjøpers bank, må være megler i hende i god tid før overtagelse kan finne sted.
Finansiering
Kontakt megler for avklaring av finansielle forhold, herunder lån til kjøp av eiendom. Privatmegleren har avtale med Nordea om formidling av lån og andre finansielle tjenester. Privatmegleren mottar godtgjørelse for dette.
Annen nyttig informasjon
Alle innvendige og utvendige arealangivelser er hentet fra vedlagte tilstandsrapport.
Det gjøres oppmerksom på at megler ikke har innhentet særskilte opplysninger om det finnes pålegg fra brann/feiervesen på eiendommen. Det er ikke foretatt undersøkelse av det elektriske anlegget.
Med mindre annet er uttrykkelig avtalt gjelder NEFs normgivende liste over løsøre og tilbehør.
Adgang til utleie
Eiendommen kan i sin helhet fritt leies ut til boligformål. Det vil normalt være anledning til utleie av hele eiendommen eller enkeltrom, så fremt arealet er godkjent for varig opphold iht. plan- og bygningsloven og har forsvarlig radonnivå.
Konsesjon / Odel
Eiendommen er ikke konsesjonspliktig.
Det hefter ikke odel på eiendommen.
Sikkerhetsstillelse
Alle eiendomsmeglingsforetak har lovpålagt forsikring av klientmidler begrenset oppad til kr 45 mill. Enkeltsaker er forsikret inntil kr 15 mill. Dersom kjøpers låneinstitusjon krever tilleggsforsikring ved omsetning over 15 millioner, må kjøper selv eller dennes låneinstitusjon dekke utgiftene forbundet med dette.
Kjøpsforsikring
I produktark om Kjøpsforsikring bak i salgsoppgaven finner du informasjon om Boligkjøperforsikring, Hus-/hytteforsikring med superdekning, Innboforsikring med superdekning, samt priser på produktene.
Overtagelse
Etter nærmere avtale.
Boligselgerforsikring
Selger har tegnet boligselgerforsikring, og interessenter oppfordres til å sette seg inn i selgers egenerklæring før det inngis bud på eiendommen.
Budgiving
Bud kan legges inn via Privatmeglerens "gi bud-knapp" som finnes på Privatmegleren.no/eiendommens hjemmeside og i nettannonsen. Bud legges inn trygt og enkelt med bank-ID.
For mer informasjon om budgivning, se "Viktig informasjon" i salgsoppgaven.
Lovanvendelse
Eiendommen selges etter reglene i avhendingsloven.
Eiendommen skal overleveres kjøper i tråd med det som er avtalt. Det er viktig at kjøper setter seg grundig inn i alle salgsdokumentene, herunder salgsoppgave, tilstandsrapport og selgers egenerklæring. Kjøper anses kjent med forhold som er tydelig beskrevet i salgsdokumentene. Forhold som er beskrevet i salgsdokumentene kan ikke påberopes som mangler. Dette gjelder uavhengig av om kjøper har lest dokumentene. Alle interessenter oppfordres til å undersøke eiendommen nøye, gjerne sammen med fagkyndig før bud inngis. Kjøper som velger å kjøpe usett kan ikke gjøre gjeldende som mangel noe han burde blitt kjent med ved undersøkelsen.
Dersom det er behov for avklaringer, anbefaler vi at kjøper rådfører seg med eiendomsmegler eller en bygningssakyndig før det legges inn bud.
Hvis eiendommen ikke er i samsvar med det kjøperen må kunne forvente ut ifra alder, type og synlig tilstand, kan det være en mangel. Det samme gjelder hvis det er holdt tilbake eller gitt uriktige opplysninger om eiendommen. Dette gjelder likevel bare dersom man kan gå ut i fra at det virket inn på avtalen at opplysningen ikke ble gitt eller at feil opplysninger ikke ble rettet i tide på en tydelig måte. En bolig som har blitt brukt i en viss tid, har vanligvis blitt utsatt for slitasje og skader kan ha oppstått. Slik bruksslitasje må kjøper regne med, og det kan avdekkes enkelte forhold etter overtakelse som nødvendiggjør utbedringer. Normal slitasje og skader som nødvendiggjør utbedring, er innenfor hva kjøper må forvente og vil ikke utgjøre en mangel.
Boligen kan ha en mangel dersom det er avvik mellom opplyst og faktisk areal, forutsatt at avviket er på 2% eller mer og minimum 1 kvm.
Ved beregning av et eventuelt prisavslag eller erstatning må kjøper selv dekke tap/kostnader opptil et beløp på kr 10 000 (egenandel).
Dersom kjøper ikke er forbruker selges eiendommen som den er , og selgers ansvar er da begrenset jf. avhl. § 3-9, 1. ledd 2. pktm. Avhendingsloven § 3-3 (2) fravikes, og hvorvidt en innendørs arealsvikt karakteriseres som en mangel vurderes etter avhendingsloven § 3-8. Informasjon om kjøpers undersøkelsesplikt, herunder oppfordringen om å undersøke eiendommen nøye, gjelder også for kjøpere som ikke anses som forbrukere. Med forbrukerkjøp menes kjøp av eiendom når kjøperen er en fysisk person som ikke hovedsakelig handler som ledd i næringsvirksomhet.
Lov om hvitvasking
Megler er underlagt lov om hvitvasking som innebærer plikt til å melde ifra til Økokrim om mistenkelige transaksjoner
Meglers vederlag og utlegg
Boligstyling (Kr.1 300)
Fotografering/video (utlegg) (Kr.5 300)
Visning (Kr.1 490)
Grunnpakke markedsføring (Kr.26 100)
Panterett med urådighet - Statens Kartverk (Kr.545)
Betalingsutsettelsesgebyr (Kr.3 450)
Innhentingsgebyr (Kr.6 450)
Oppgjørsgebyr (Kr.5 500)
Tilrettelegging (Kr.13 900)
Totalt kr. (Kr.64 035)
Dersom eiendommen ikke omsettes, faktureres selger utlegg til fotograf, innhenting av opplysninger og tilretteleggingsgebyr.
Vedlegg til salgsoppgaven
Tilstandsrapport
Egenerklæringsskjema
Energiattest
Regulering
Kommunale opplysninger
Tegninger
Igangsettingstillatelse -?Totalombygging
Rammetillatelse - Enebolig med sokkeleilighet og nedgravd garasje
Nye tegninger
Servitutter
Løsøre og tilbehør
Bud og budgivning
Salgsoppgaven er ikke komplett uten alle vedlegg.
Nyttige lenker

PrivatMegleren Haferkamp & Partnere
Nærområdet
Annonseinformasjon
| FINN-kode | 436625692 |
|---|---|
| Sist endret | 14. nov. 2025 03:08 |
| Referanse | 301240258 |
Annonsene kan være mangelfulle i forhold til lovpålagt opplysningsplikt. Før bindende avtale inngås oppfordres interessenter til å innhente komplett informasjon fra meglerforetaket, selger eller utleier.














