Bildegalleri

Ubebygd boligtomt med fanastisk beliggenhet ved sjøen på Nesøya
Sjelden anledning på Nesøya! Solrik boligtomt v/sjøen - Rammetillatelse for lekker enebolig med garasje og svømmebasseng
- Totalpris
- 14 369 590 kr
- Omkostninger
- 369 590 kr
Nøkkelinfo
Fasiliteter
Visning
Om eiendommen
Oppdragsnummer
18-25-0187
Eier
Erik Tynes
Lise Maren Brock Tynes
Eiendomstype
Boligtomt
Eierform
Selveier
Betegnelse
Gnr. 40 Bnr. 1943 i Asker kommune
Med eiendommen tilhører ideell 1/3 andel i realsameie gnr. 40 bnr. 1814 på 330,4 kvm (adkomstvei) og ideell 1/2 andel i realsameie gnr. 40 bnr. 1944 på 744 kvm (strandparsell).
Tomtetype/areal
Eiet tomt / 854 kvm. I tillegg medfølger ideell 1/3 andel i gnr. 40 bnr. 1814 (adkomst) på 330 kvm og ideell 1/2 andel i gnr. 40 bnr. 1944 (strandparsell) på 744 kvm.
Beliggenhet
Ubebygd boligtomt ved sjøen i Øverbergveien på Nesøya. Med eiendommen tilhører ideell 1/2-part av tilgrensende strandeiendom (bnr. 1944) med ca. 26 meter strandlinje mot idylliske Halsbukta med god, sydvendt beliggenhet og flott utsikt til sjøen samt områdene rundt.
Tomten ligger meget fredelig og barnevennlig i blindvei, samtidig er det gangavstand til bl.a. bussholdeplass, barneskole, barnehager, nærbutikk (Kiwi) og til fine turområder både på Nesøya i naturreservatet og på idylliske Brønnøya, som er et yndet tur- og friluftsområde.
Området er meget barnevennlig, på Nesøya er det flere kommunale og private barnehager samt gangavstand for skolebarna til Nesøya barneskole - en topp moderne skolebygning fra 2015 med idrettshall. Nesøya idrettslag (NIL) har et stort idrettsanlegg på søndre Nesøya med et bredt utvalg av idrettsaktiviteter som passer både store og små. NIL kan blant annet by på 2 kunstgressbaner, løpebane, skatepark, 6 tennisbaner og Tuftepark m.m.
Nærmeste dagligvarehandel (Kiwi Nesøya) sørger også for at det daglige behovet for matvarer og andre nødvendigheter blir dekket. For den shoppinglystne er både Slependen senter, Holmen senter, Sandvika sentrum og Sandvika Storsenter en kort kjøretur unna.
Gode muligheter for offentlig kommunikasjon med buss, med ca. 900 meters gange til nærmeste bussholdeplass i Broveien (Hals) hvor det går ekspressbuss direkte til Oslo om morgenen. Ekspressbussen bruker ca. 25 min. til Aker Brygge.
Bygninger
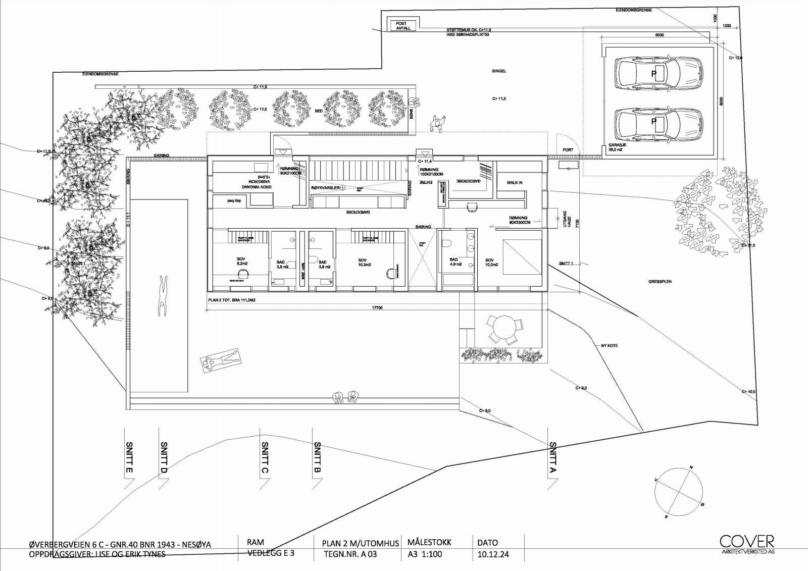
Tomten er ubebygd, men det foreligger rammetillatelse fra juni 2025 for oppføring av nybygg enebolig med garasje og svømmebasseng.
Bygningen det er gitt rammetillatelse for på eiendommen har BRA på tilsammen 272 kvm, hvorav:
- Plan 1 utgjør 125 kvm
- Plan 2 utgjør 111 kvm
- Garasje utgjør 36 kvm.
I tillegg er det tegnet inn store terrasser og et utvendig svømmebasseng som ikke er inkludert i ovennevnte arealer.
Se kopi av rammetillatelse fra Asker kommune og tegninger utarbeidet av arkitekt Nils Erik Joneid i Cover Arkitektverksted AS vedlagt i salgsoppgaven. Kjøper velger selv om man ønsker å gå videre med de godkjente tegningene eller om man ønsker å utarbeide nye tegninger. Det antas i begge tilfeller å være hensiktsmessig for interessenter å opprette kontakt med arkitekt Joneid som allerede har vært igjennom en søknadsprosess for denne aktuelle eiendommen.
Rammetillatelse
Det foreligger rammetillatelse datert 19.06.2025, for oppføring av nybygg enebolig med garasje og svømmebasseng.
Se kopi av rammetillatelse (delegasjonssak 1187/25) fra Asker kommune samt tegninger utarbeidet av arkitekt Nils Erik Joneid i Cover Arkitektverksted AS vedlagt i salgsoppgaven.
I rammetillatelsen har Kommunedirektøren gjort følgende vurdering av byggesøknaden:
"Kommunedirektørens vurdering av søknaden:
Den omsøkte boligen og garasje er utformet i tradisjonell stil med saltak og grønn kledning med spill i trepanelet, noe som gir et spennende uttrykk, men som også faller godt inn i det frodige og grønne miljøet. Boligen og garasjen plasseres etter kotelinjene på kote 11, som er høyeste kote på tomten, med en sokkeletasje og utearealer lavere i terrenget på kote 8. Området er i reguleringsplanen avsatt til bevaringsmiljø.
Boligens plassering på tomten følger eksisterende bebyggelsesstruktur, og det er mer enn 50 % av tomten som ikke berøres. Den sammenhengende bygningskroppen skaper en offentlig og en privat sone på tomten.
Det er ikke registrert spesielle naturtyper eller arter (naturmangfold) i området rundt tiltaket, og prinsippene i naturmangfoldloven §§ 8-12 er dermed ivaretatt.
Boligen med tilhørende garasje, utearealer og gjerder vurderes som godt tilpasset miljøet, med et beskjedent volum og god tilpasning til terrenget. Vår vurdering er at tiltaket har gode visuelle kvaliteter i seg selv, i forhold til dets funksjon og i forhold til dets omgivelser, og at plan- og bygningsloven § 29-2 dermed er oppfylt.
Byggesaken er ikke oversendt Akershus fylkeskommune for høring, med bakgrunn i vedlagte brev om oversendelsesrutiner, men det sendes kopi av vedtaket til dem.
Konklusjon: Tiltaket er i samsvar med plan- og bygningslovens bestemmelser og vi godkjenner søknaden om rammetillatelse."
Parkering / Garasje
Parkering/garasje må opparbeides på eiendommen.
Beskrivelse av tomt
Eiendommen ligger i svakt skrånende terreng mot syd, fredelig og hyggelig til, innerst i en privat stikkvei fra Øverbergveien. Eiendommen har adkomst i den nordvestre del av tomten og skråner derfra ned mot syd, mot strandparsellen (bnr. 1944) som går helt ned til sjøen i Halsbukta.
Med eiendommen tilhører ideell 1/3 andel i realsameie gnr. 40 bnr. 1814 på 330,4 kvm (adkomstvei) og ideell 1/2 andel i realsameie gnr. 40 bnr. 1944 på 744 kvm (strandparsell).
Mot nord grenser eiendommen til gnr. 40 bnr. 1942, en ubebygd boligtomt. Bnr. 1942 eier den andre halvparten av strandparsellen, bnr. 1944.
Se kart og matrikkelbrev vedlagt i salgsoppgaven for angivelse av eiendomsgrenser, kotehøyder m.m. samt kopi av tinglyst avtale om bruk og vedlikehold av fellesarelet Gnr. 40 Bnr. 1944 fra 06.07.2020 (dagboknr. 2702731) vedlagt i salgsoppgaven.
Servitutter / rettigheter
Eiendommen overdras fri for pengeheftelser, med unntak av eventuelle erklæringer, avtaler, servitutter og panteheftelser som fremgår av salgsoppgaven og skal følge med eiendommen ved salg. Kjøpers bank vil få prioritet etter disse.
Andel i realsameie:
- 2020/2121079-1/200 Opprettelse av realsameie. 18.02.2020. Denne matrikkelenhet har 1/2 andel i Gnr: 40 Bnr: 1944 (strandparsell).
- 2020/2121079-2/200 Endring av realsameie. 18.02.2020. Denne matrikkelenhet har 1/3 andel i Gnr: 40 Bnr: 1814 (adkomstvei).
Heftelser:
- 1899/909031-1/100 Bestemmelse om deleforbud. 01.09.1899. Bestemmelse om gjerde. Bestemmelse om benyttelse. Overført fra: 3203-40/7/0/1,2. Gjelder denne registerenheten med flere.
- 1902/990173-1/100 Bestemmelse om vannrett. 23.05.1902. Bestemmelse om veg. Bestemmelse om deleforbud. Bestemmelse om benyttelse. Bestemmelse om gjerde. Overført fra: 3203-40/7/0/1,2. Gjelder denne registerenheten med flere.
- 1921/900683-1/100 Bestemmelse om veg. 16.09.1921. Overført fra: 3203-40/7/0/1,2. Gjelder denne registerenheten med flere.
- 1984/33934-1/100 Erklæring/avtale. 28.11.1984. Vedr. privat felles vann- og spillvannsledning. Overført fra: 3203-40/7/0/1,2. Gjelder denne registerenheten med flere.
- 1988/24651-1/100 Best. om vann/kloakkledn. 03.08.1988. Med flere bestemmelser. Overført fra: 3203-40/7/0/1,2. Gjelder denne registerenheten med flere.
- 2002/23239-1/100 Best. om vann/kloakkledn. 07.08.2002. Kan ikke slettes uten samtykke fra kommunen. Overført fra: 3203-40/7/0/1,2. Gjelder denne registerenheten med flere.
- 2020/2702731-1/200 Erklæring/avtale. 06.07.2020. Felles avtale om bruk og vedlikehold av fellesarealet gnr. 40 bnr. 1944. Gjelder denne registerenheten med flere.
Rettigheter på andre eiendommer:
Rettigheter på 3203-40/7/0/1,2.
- 2020/2121053-1/200 Bestemmelse om vann/kloakk. 18.02.2020. Kan ikke slettes uten samtykke fra:ASKER KOMMUNE. Org.nr: 920125298. Rettighetshaver:Knr:3203 Gnr:40 Bnr:1942. Rettighetshaver:Knr:3203 Gnr:40 Bnr:1943. Gjelder denne registerenheten med flere.
Vei / Vann / Avløp
Det ligger en overvannsledning fra Øverbergveien over eiendommen og videre ned til sjøen. I tillegg går det private vann- og avløpsledninger over eiendommen fra naboeiendommene i vest til naboeiendommene i øst. Se kart vedlagt i salgsoppgaven. Det må tas hensyn til ledningenes plassering ved bebyggelse på eiendommen.
Det foreligger en tinglyst avtale fra 2020 som gir bnr. 1943 rett til å tilknytte seg vann- og avløpsledningene. Det vil kreves betaling (refusjonskrav) til eiere/de andre tilknyttede eiendommene, i henhold til tinglyst avtale fra 1988, for tilkobling til vann-/avløpsledningene. Refusjonsbeløpet som ny eier må påregne å betale til ledningseiere ved tilknytningstidspunktet var i 2010 oppgitt til kr. 19.025, som skal prisjusteres i henhold til SSB sin byggekostnadskalkulator for rørleggerarbeid. Pr. juni 2025 utgjør beløpet kr 37.617.
Se kopi av de tinglyste avtalene vedlagt i salgsoppgaven. Se også ledningskart vedlagt i salgsoppgaven som viser hvor ledninger er.
Eiendommen har adkomst fra kommunal vei via privat stikkvei. Den private adkomstveien er opparbeidet til eiendomsgrensen og er etablert som et realsameie for eiendommene Gnr. 40, Bnr.1813, 1942 og 1943 hvor disse tre eiendommene eier en ideell 1/3 hver.
Kjøper må påregne normale tilknytningsgebyrer til Asker kommune for vann og avløp. Tilknytningsgebyrer for privatboliger er ifølge tilgjengelig prisliste på Asker kommunes nettsider følgende pr. 2025.:
- Vann pr. kvm: kr 153,- inkl. mva.
- Avløp pr. kvm: kr 153,- inkl. mva.
Tilknytningsgebyrene blir beregnet ut i fra bruksareal (BRA) og faktureres ved igangsettingstillatelse.
For informasjon og priser for tilkobling til strømnettet, vennligst ta direkte kontakt med Elvia AS på tlf 02024 eller se elvia.no.
Elvia svarer også på spørsmål om jordkabler, transformatorkiosker, luftledninger eller skap plassert på eller ved eiendommen.
Kjøper bærer selv ansvar og risiko for at tilkoblingspunkt for vann- og avløpsledninger o.l. tilfredsstiller krav fra kommunen, brannvesenet o.l. og for at tilkobling kan gjennomføres. I Asker tillates normalt ikke oppført nye boliger i områder som ikke kan tilknyttes ledningsnettet. Ved tilknytning skal rørlegger søke om dette til kommunen.
Megler har ikke fått bekreftet fra Asker kommune hvor det er brannkum, men det antas at avstanden er mer enn 100 meter og at det må søkes alternativ løsning for slukkevann. Følgende informasjon er kopiert fra Asker kommunes nettsider vedrørende tiltak og regler for avstand/tilknytning til brannkum ved oppføring av nye boliger i kommunen (https://www.asker.kommune.no/plan-bygg-og-eiendom/byggesaker/utvidet-veiledning/#spesielle-tiltak-og-regler):
Følgende føringer gjelder for småhusbebyggelse i Asker kommune:
- I tettbygd område skal avstand fra brannkum til hovedangrepsvei (ofte hovedinngangen) ikke overstige 100m langs vinterbrøytet vei.
- I brannkummen må også vanntrykk og vannmengde være over et visst minimum.
I områder som ikke er tettbygd, ikke planlagt for fortetting, hvor tiltaket ikke fører til fortetting, og når brannvesenet har samtykket til det; kan det legges til grunn at brannslukking foregår med tankbil.
Hva om det planlagte huset står for langt brannkummen?
Dersom man ikke klarer å opprettholde avstandskravet til brannkum må man finne en alternativ løsning. Det er ansvarlige søkers ansvar å vurdere om brannvannsdekning skal ansvarsbelegges og problematikken utredes.
Om ansvarlig søker ansvarsbelegger slokkevann, så må den som prosjekterer innhente opplysninger om vannmengde, vanntrykk fra kommunens vann- og avløpsavdeling og uttalelser om beredskap, utrykningstid, m.m. fra det lokale brannvesenet.
Analysene basert på ovennevnte og byggets utforming, materialbruk, rømningsveier m.m. skal komme fram til en brannfaglig vurdering (brannkonsept) som ivaretar brannsikkerheten.
I utgangspunktet skal en slik analyse utføres av foretak med ansvarsrett i tiltaksklasse 3 og det skal også utføres uavhengig kontroll i samme tiltaksklasse.
For detaljert informasjon om krav til slokkevann henvises til gjeldende TEK med veileder.
Verdi ved skattefastsetting
Eiendommens formuesverdi som ubebygd tomt for inntektsåret 2023 var kr 4 500 000,-. Etter salg av eiendommen til ny eier og etter ferdig oppført bygg vil oppdatert formuesverdi fastsettes. Formuesverdien fastsettes med utgangspunkt i en kvadratmeterpris som beregnes av Statistisk Sentralbyrå (SSB). Kvadratmeterprisen skal gi uttrykk for en estimert markedsverdi pr. kvadratmeter og bygger på statistiske opplysninger om omsatte boliger (boligtype, areal, geografisk beliggenhet og alder). Ut fra kvadratmeterprisene til SSB fastsetter Skatteetaten årlige kvadratmetersatser. Formuesverdien er ulik for primærbolig og sekundærbolig. For primærbolig (der boligeier er folkeregistrert pr 1. januar) utgjør formuesverdien 25% av kvadratmeterprisene og 100% for sekundærboliger (alle andre boliger).
Reguleringsforhold
Eiendommen er regulert til frittliggende småhusbebyggelse og bevaringsområde, ihht. reguleringsplanID 022088C, Herrodd, vedtatt 09.09.1998, med tilhørende bestemmelser i plan 88b fra 04.07.1996.
Det gjøres blant annet oppmerksom på at eiendommen ligger i et regulert spesialområde for bevaringsverdig bebyggelse. Ny bebyggelse skal derfor, i henhold til § 3.5 første ledd i reguleringsplanen for Herodd, være tilpasset det verneverdige miljøet i størrelse, form, materialbruk, farge og detaljering. Videre følger det av bestemmelsens annet ledd at §§ 1, 2, 3, 5 og 6 i reguleringsplan for Østre deler av Nordre Nesøya (plan 88b) gjelder der disse har en relevans. Sistnevnte reguleringsplan oppstiller nærmere regler for blant annet tillatt bebygd areal.
I bestemmelsene til plan 88b (vedlagt i salgsoppgaven) står bl.a. følgende i §2 vedrørende utnyttelse, høyder, takvinkel m.m:
"2.1. Tomtene kan innenfor plangrensen bebygges med frittliggende boliger med en hovedbruksenhet.
Maks. tillatt bebygd areal, BYA = 15 % av tomtens nettoareal.
Frittliggende garasje med brutto grunnflate på inntil 36 m2 regnes ikke med i tillatt bebygd areal.
For garasje med brutto grunnflate på mer enn 36 m2 medregnes det overskytende areal i tillatt bebygd areal.
2.2 Gesimshøyden må ikke på noe punkt langs fasaden overstige 3,5 m regnet fra ferdig planert terreng.
I hellende terreng kan det på husets nedside tillates en gesimshøyde på inntil 6 m over ferdig planert terreng. Gesimshøyden på garasje må ikke på noe punkt langs fasaden overstige 2,5 m, regnet fra planert terreng. I hellende terreng kan det på garasjens nedside tillates en gesimshøyde på inntil 3,5 m over ferdig planert terreng.
2.3 Bebyggelsen skal ha skråtak.
Takvinkelen skal være mellom 22 og 40 grader.
Bygningsrådet forbeholder seg å stå fritt til å bestemme takvinkel mellom disse grenser avhengig av topografi og annen bebyggelse.
2.4 Bebyggelsens plassering og møneretning skal være som vist på planen.
2.5 Ved byggemelding skal det på situasjonskart og fasadetegninger være inntegnet eksisterende og framtidige terrenghøyder, eventuelle støttemurer, garasjeplassering, biloppstillingsplass, adkomst til tomt og bolig, samt eksisterende vegetasjon som forutsettes bevart."
Interessenter oppfordres til å lese planene i sin helhet, begge vedlagt i salgsoppgaven.
I Kommuneplan for Asker 2023 - 2035, Kommuneplanens arealdel fra 13.06.2023, ligger eiendommen i område for Nåværende Boligbebyggelse - Bestemmelse områdenavn #8 Null vekst nord. KP Bestemmelse Hjemmel: byggegrenser, utbyggingsvolum og funksjonskrav.
I følge til opplysninger hentet fra Asker kommunes kartsider, ligger eiendommen i et område med feltnavn SB i Boligkartet til kommuneplanen ("Boligområder med spesielle kvaliteter (felt SB) (pbl. § 11- 9, nr. 5, 6 og 7). For regulerte områder med reguleringsplan vedtatt før 01.01.2005, og som ikke er regulert til spesialområde bevaring, gjelder blant annet bestemmelsene i kommuneplanens punkt 14.4:
"14.4.1 Tilpasning til eksisterende bebyggelse
Plassering av ny bebyggelse skal følge eksisterende bebyggelsesstruktur. Ny bebyggelse skal tilpasses eksisterende bebyggelse i området i byggestil, utforming, materialbruk, farge, skala og form.
14.4.2 Boenheter
I områder som er regulert til frittliggende boliger og der ikke annet er bestemt i den enkelte reguleringsplan vedrørende antall boenheter, tillates én frittliggende enebolig og én integrert sekundær boenhet. Sekundær boenhet kan etableres i frittliggende bygg på eiendommen i tråd med bestemmelse 11.1.4 om kulturminne som sekundær boenhet.
14.4.3 Utnyttelse
I boligområder der den enkelte reguleringsplan ikke angir BYA (% eller m2), skal grad av utnyttelse ikke overstige %-BYA = 20 % av tomtens nettoareal. Krav til biloppstillingsplasser utover garasjeplasser tillates i tillegg til angitt %-BYA, forutsatt at parkeringsplassene ligger på terreng og ikke er overbygd. I beregningen av BYA/BRA skal krav til antall garasjeplasser medtas med 18 m² pr. plass, jf. bestemmelse 8.2 Parkeringsnorm,
uavhengig av om garasje bygges eller ikke.
Avfallshus for oppbevaring av avfallsbeholdere på inntil 3 m² BYA per hovedbruksenhet tillates i tillegg til angitt BYA.
14.4.4 Høyder
Der høyde ikke er bestemt i den enkelte reguleringsplan gjelder følgende:
a. Høyden skal tilpasses eksisterende bebyggelse.
b. Gesimshøyde tillates inntil 6,5 meter, og mønehøyde tillates inntil 8,5 meter. Målt fra ferdig planert terrengs gjennomsnittsnivå rundt bygningen.
Der reguleringsplan angir etasjebegrensing, med unntak av hensynsone bevaringsområder for kulturminne, gjelder følgende:
a. Der reguleringsplanen tillater mindre enn 2 etasjer tillates gesimshøyde inntil 4,5 meter, og mønehøyde inntil 6,5 meter. Gesimshøyden skal ikke på noe punkt overstige 5,5 m fra laveste punkt på ferdig planert terreng.
b. Der reguleringsplanen tillater 2 etasjer eller mer, tillates gesimshøyde inntil 5,5 meter, og mønehøyde inntil 8,0 meter. Gesimshøyden skal ikke på noe punkt overstige 6,5 m fra laveste punkt på ferdig planert terreng.
c. På tomter der eksisterende terreng er flatt (maks. 0,5 meter høydeforskjell innenfor husets fotavtrykk) tillates både gesims- og mønehøyde inntil 0,5 meter høyere enn angitt i punktene a og b.
d. Høyder måles fra ferdig planert terrengs gjennomsnittsnivå rundt bygningen.
14.4.5 Garasje bod, uthus og andre lignende bygninger
Der annet ikke er bestemt i den enkelte reguleringsplan vedrørende garasje og andre lignende bygninger som ikke er bolig, gjelder følgende:
a. Gesimshøyde tillates inntil 3,0 meter, og mønehøyde tillates inntil 5 meter.
b. Høyder måles fra ferdig planert terrengs gjennomsnittsnivå rundt bygningen. Gesimshøyden skal likevel ikke på noe punkt overstige 4m fra laveste punkt på ferdig planert terreng.
c. Garasje skal være visuelt tilpasset hovedhuset.
Garasjer kan være frittliggende eller integrert i boligen, uavhengig av hva reguleringsplanen angir.
Dersom det fremgår av reguleringsplan at det kan oppføres frittliggende garasje på inntil 36 m² BYA i tillegg til fastsatt utnyttelse, så gjelder dette tilsvarende også hvor garasjen integrert i boligen (én bygning). I det tilfellet garasjen er integrert i boligens hovedvolum(én bygning) vil de høydebestemmelser som gjelder for garasje gjelde for den del av bygget som utgjør garasje.
14.4.6 Parkering
Der ikke annet er bestemt i den enkelte reguleringsplan vedrørende garasje og biloppstillingsplasser og dimensjonering av parkeringsareal, gjelder bestemmelse 8.2 Parkeringsnorm. Dimensjonering/utforming av parkeringsarealene skal være i henhold til kommunens til enhver tid gjeldende vei- og gatenorm. I
Innenfor planer som tillater garasje på 35 m2 BYA tillates denne oppført på 36 m2 BYA.
14.4.7 Tak
Takform og takvinkel følger av reguleringsplan. Takterrasse er kun tillat der dette fremgår av reguleringsplan."
Videre har Asker kommune, i byggesøknaden som nylig er behandlet og godkjent for denne eiendommen, også lagt vekt på Kommuneplanens bestemmelse pkt 14.1.2:
"14.1.1 Terrengendringer utenfor byggverkets fotavtrykk
Bygg skal plasseres i forhold til terreng i tråd med bestemmelse 12.2.1. Såfremt ikke annet er bestemt i reguleringsplan skal minimum 50 % av tomtens areal holdes fri for terrenginngrep, herunder også byggegroper og andre inngrep i terreng i bygge- og anleggsfasen. Se planrapport med reguleringskart og bestemmelser samt bestemmelser til Kommuneplan vedlagt i salgsoppgaven."
Se planrapport, reguleringskart og reguleringsbestemmelser samt bestemmelser til kommuneplanen i sin helhet vedlagt i salgsoppgaven.
Andre faste løpende kostnader
Dersom eiendommen bebygges må eier, etter ferdigstilt bolig på eiendommen, påregne kommunale avgifter og andre kostnader forbundet med å eie bolig. Løpende kostnader vil variere ut i fra leverandør og forbruk.
Vann-/kloakkavgift til Asker kommune etter målt vannforbruk. Priser for 2025, inkl. mva:
Vann per m3: kr. 35,67,-
Avløp per m3: kr. 37,99,-
Vann fastledd: kr. 2.781,-
Avløp fastledd: kr. 2.862,-
Renovasjon:
Renovasjonsgebyret er delt opp i et grunnbeløp/fastledd per boenhet og et variabelt beløp basert på volumet på restavfallsbeholderen.
Pris grunnbeløp 1 boenhet: kr. 2484,- pr år.
Variabelt beløp; kr. 23,30 pr. liter pr. år. F.eks. 140 liter til restavfall = kr. 5746,- pr år.
Se detaljert prisliste på Asker kommune sine nettsider: asker.kommune.no
Utgifter til drift/vedlikehold av privat adkomstvei må påregnes i tillegg. I tillegg må andre kostnader som bl.a. strøm, forsikring, tv/internett, evt. alarm o.l. påregnes. Strømforbruk vil være avhengig av boligen som oppføres, antall personer i husholdningen og bruken av eiendommen. Strøm- og forsikringskostnader vil variere ut fra valg av leverandør og avtaletype.
Oppgjør
Kjøpesum med tillegg av omkostninger skal være disponibelt på meglers klientkonto innen overtagelse. Normalt innebærer dette at fullt oppgjør må være innbetalt på meglers klientkonto senest to virkedager før avtalt overtagelsesdato.
Eventuelle vilkår knyttet til innbetalingen, eksempelvis pantedokument som skal tinglyses til fordel for kjøpers bank, må være megler i hende i god tid før overtagelse kan finne sted.
Finansiering
Kontakt megler for avklaring av finansielle forhold, herunder lån til kjøp av eiendom. Privatmegleren har avtale med Nordea om formidling av lån og andre finansielle tjenester. Privatmegleren mottar godtgjørelse for dette.
Sammendrag fra selgers egenerklæring
Ingen bemerkninger, se egenerklæringsskjema vedlagt i salgsoppgaven.
Selger har ikke tegnet boligselgerforsikring.
Annen nyttig informasjon
Markering av eiendommen i bildene brukt i annonse og salgsoppgave er kun ment som en omtrentlig markering av eiendommen, dette viser ikke nøyaktige eiendomsgrenser. Se kartgrunnlag vedlagt i salgsoppgaven for nøyaktige angivelser.
Meglers standard kjøpekontrakt legges til grunn for avtalen. Standardkontrakt kan fås ved henvendelse til meglers kontor.
Alle arealangivelser er hentet fra eiendomsopplysninger opplysninger mottatt fra Asker kommune.
Konsesjon / Odel
Kjøper må fylle ut egenerklæring om konsesjonsfrihet ved kjøp av ubebygd eiendom. Egenerklæring må signeres av kjøper og bekreftes av kommunen for at skjøtet kan tinglyses.
Sikkerhetsstillelse
Alle eiendomsmeglingsforetak har lovpålagt forsikring av klientmidler begrenset oppad til kr 45 mill. Enkeltsaker er forsikret inntil kr 15 mill. Dersom kjøpers låneinstitusjon krever tilleggsforsikring ved omsetning over 15 millioner, må kjøper selv eller dennes låneinstitusjon dekke utgiftene forbundet med dette.
Boligkjøperforsikring
I produktark om boligkjøperforsikring bak i salgsoppgaven, finner du informasjon samt priser på produktene.
Overtagelse
Etter nærmere avtale.
Boligselgerforsikring
Selger har ikke tegnet boligselgerforsikring, og interessenter oppfordres til å sette seg inn i selgers egenerklæring før det inngis bud på eiendommen.
Budgiving
Bud kan legges inn via Privatmeglerens "gi bud-knapp" som finnes på Privatmegleren.no/eiendommens hjemmeside og i nettannonsen. Bud legges inn trygt og enkelt med bank-ID.
For mer informasjon om budgivning, se "Viktig informasjon" i salgsoppgaven.
Lovanvendelse
Eiendommen selges etter reglene i avhendingsloven (avhl.).
Eiendommen skal overleveres kjøper i tråd med det som er avtalt. Det er viktig at kjøper setter seg grundig inn i alle salgsdokumentene, herunder salgsoppgave, tilstandsrapport og selgers egenerklæring. Kjøper anses kjent med forhold som er tydelig beskrevet i salgsdokumentene. Forhold som er beskrevet i salgsdokumentene kan ikke påberopes som mangler. Dette gjelder uavhengig av om kjøper har lest dokumentene. Alle interessenter oppfordres til å undersøke eiendommen nøye, gjerne sammen med fagkyndig før bud inngis. Kjøper som velger å kjøpe usett kan ikke gjøre gjeldende som mangel noe han burde blitt kjent med ved undersøkelsen.
Dersom det er behov for avklaringer, anbefaler vi at kjøper rådfører seg med eiendomsmegler eller en bygningssakyndig før det legges inn bud.
Eiendommen selges etter reglene i avhendingsloven (avhl.).
Eiendommen skal overleveres kjøper i tråd med det som er avtalt. Det er viktig at kjøper setter seg grundig inn i alle salgsdokumentene, herunder salgsoppgave, tilstandsrapport og selgers egenerklæring. Kjøper anses kjent med forhold som er tydelig beskrevet i salgsdokumentene. Forhold som er beskrevet i salgsdokumentene kan ikke påberopes som mangler. Dette gjelder uavhengig av om kjøper har lest dokumentene. Alle interessenter oppfordres til å undersøke eiendommen nøye, gjerne sammen med fagkyndig før bud inngis. Kjøper som velger å kjøpe usett kan ikke gjøre gjeldende som mangel noe han burde blitt kjent med ved undersøkelsen.
Dersom det er behov for avklaringer, anbefaler vi at kjøper rådfører seg med eiendomsmegler eller en bygningssakyndig før det legges inn bud.
Dersom kjøper ikke er forbruker selges eiendommen som den er , og selgers ansvar er da begrenset, jf. avhl. § 3-9, første ledd 2. punktum. Informasjon om kjøpers undersøkelsesplikt, herunder oppfordringen om å undersøke eiendommen nøye, gjelder også for kjøpere som ikke anses som forbrukere. Med forbrukerkjøp menes kjøp av eiendom når kjøperen er en fysisk person som ikke hovedsakelig handler som ledd i næringsvirksomhet.
Lov om hvitvasking
Megler er underlagt lov om hvitvasking som innebærer plikt til å melde ifra til Økokrim om mistenkelige transaksjoner
Meglers vederlag og utlegg
Innhenting kommunale opplysninger (Kr.4 000)
Markedspakke (Kr.17 500)
Provisjon (forutsatt salgssum: 14 000 000,-) (Kr.140 000)
Digital annonsering (Kr.4 950)
Factoring/ Betalingsutsettelse (Kr.3 850)
Godtgjørelse oppgjør (Oppgjørskostnad) (Kr.12 500)
Panterett med urådighet - Statens Kartverk (Kr.545)
Tilrettelegging (Kr.14 990)
Visning / Overtagelse per stk. (Kr.2 950)
Totalt kr. (Kr.201 285)
Dersom eiendommen ikke omsettes, faktureres selger kr 19500 + utlegg.
Vedlegg til salgsoppgaven
- Meglers verdivurdering
- Kommunale opplysninger med bl.a. oversiktskart, grunnkart, ledningskart, matrikkelrapport, planrapport, reguleringsplankart og reguleringsbestemmelser, bestemmelser til kommuneplanen m.m.
- Anonymisert grunnboksutskrift og tinglyste dokumenter
- Budskjema
Nyttige lenker

PrivatMegleren Solli & Partnere
Nærområdet
Annonseinformasjon
| FINN-kode | 434295816 |
|---|---|
| Sist endret | 01. nov. 2025 03:11 |
| Referanse | 18250187 |
Annonsene kan være mangelfulle i forhold til lovpålagt opplysningsplikt. Før bindende avtale inngås oppfordres interessenter til å innhente komplett informasjon fra meglerforetaket, selger eller utleier.

















