Bildegalleri

Velkommen til Golbergsgutu 20B - flott beliggende boligtomt i landlige omgivelser. Tomten er markert med pil.
Velkommen til denne flotte tomten i øvre del av Golbergsgutu
- Totalpris
- 1 118 600 kr
- Omkostninger
- 28 600 kr
Nøkkelinfo
Om eiendommen
Om tomten
Beskrivelse av tomten
Velkommen til Golberggutu 20B.
Boligtomten er beliggende i området rundt Golbergremmen Boligfelt. Fra eiendommen er det kort vei til sentrum via gang- og sykkelveier.
Området rundt eiendommen består i hovedsak av spredt boligbebyggelse og landbrukseiendommer.
Fra eiendommen har man tilgang til et flott turområde med mange fine turmuligheter.
Ellers er det kort vei opp til Gol Skisenter som er åpent hele vinteren.
På eiendommen er det god plass for oppføring av en enebolig. Tomten kan bebygges med inntil 20% BYA og med garasje/uthus på inntil 50 kvm BRA.
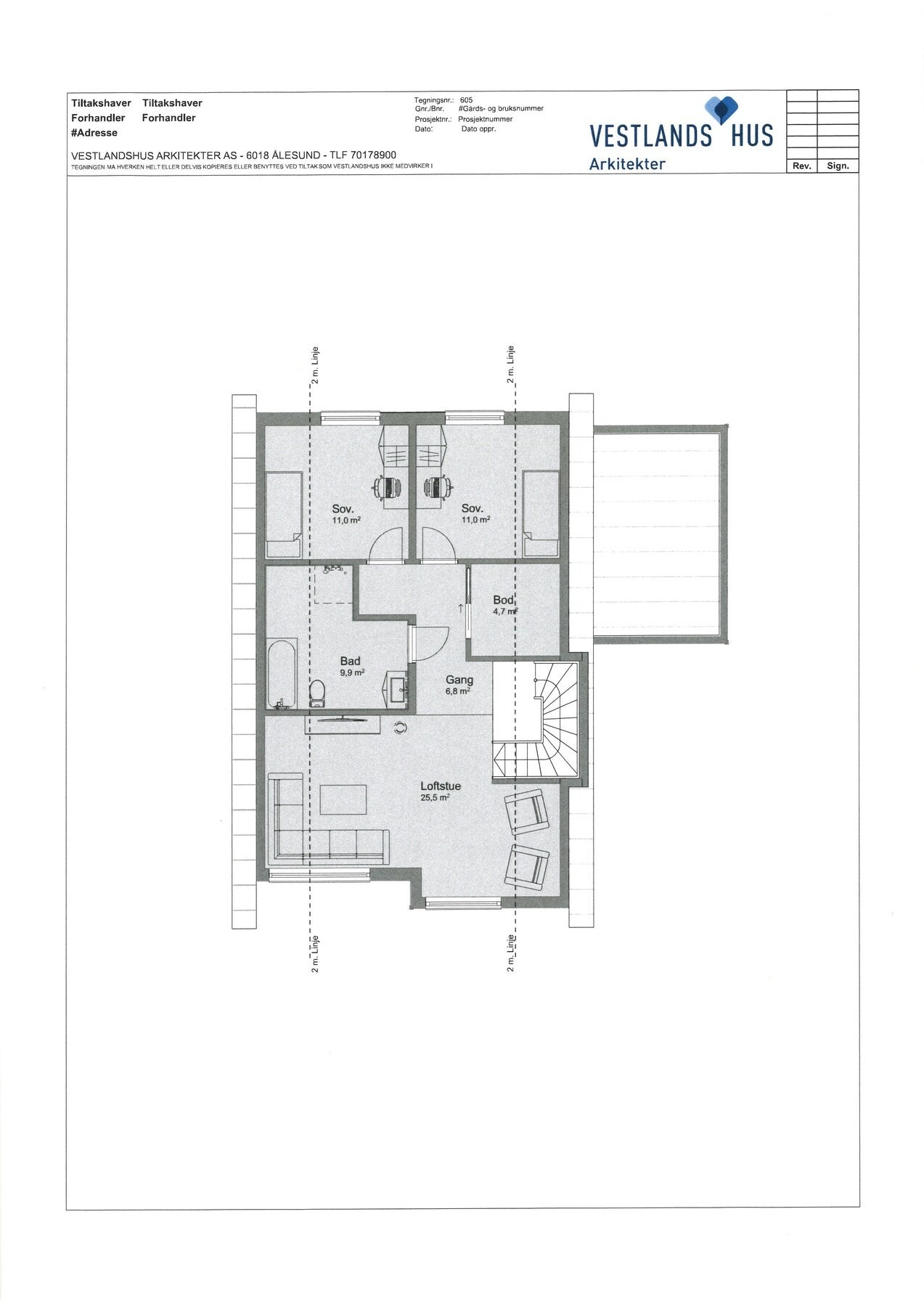
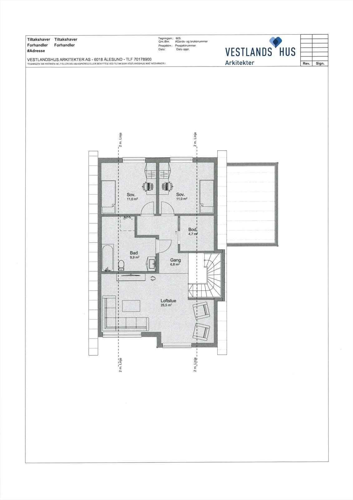
Vestlandshus har tegnet en boligmodell som kan passe fint på tomten. Pris på boligen er ca. kr. 4 490 000,- (tillegg for graving og kjøp av tomt). Kontakt megler for mer info om denne boligen. Bilde av boligen ligger vedlagt i annonse
BEBYGGELSE
Området består av boliger og småbruk - og grenser inntil Golbergsgutu Boligfelt.
Areal
924,00 m² eiet
Reguleringsbestemmelser og utnyttelsesgrad
Tomten ligger i område avsatt til boligformål -i øvre del av Golbergsgutu. Gjeldene plan er kommuneplan for Gol. I uregulerte område er maksimum % BYA = 20 %, men BYA kan ikkje vere større enn 250 m2. Maksimum byggehøgde er 9 meter.
Det kan oppførast ein bustad på kvar eigedom. Unnataket er sekundærleilegheit/ utleigedel og oppføring av kårbustad på landbrukseigedomar.
Garasje/ uthus kan vere opptil 50 m2, med mønehøgde på opptil 4,5 m.
Eiendommen er omfattet av kommuneplan for Gol kommune.
Bygging i område med kommuneplan forutsetter søknad om dispensasjon for oppføring av bolig på eiendommen. Kontakt Gol kommune for ytterligere info om saken.
Diverse
NYTTIG INFORMASJON OM KJØP AV TOMT
Vi anbefaler at du gjøre en grundig gjennomgang av eiendommen før du bestemmer deg for å legge inn bud. Forhold som kunne vært oppdaget på visning, er normalt ikke en mangel.
Det er viktig at du setter seg grundig inn i alle salgsdokumentene, herunder salgsoppgave, evt. tilstandsrapport og selgers egenerklæring. Du anses å være kjent med forhold som er tydelig beskrevet i salgsdokumentene. Forhold som er beskrevet i salgsdokumentene kan ikke påberopes som mangler. Dette gjelder uavhengig av om du har lest dokumentene eller ikke. Du oppfordres til å undersøke eiendommen nøye. Ta gjerne med en fagkyndig på visning, før bud inngis. Åpenbare og synlige feil og mangler behøver ikke være beskrevet i salgsoppgaven eller i vedleggene til denne. Kjøper du eiendommen usett kan du ikke reklamere på forhold som du ville blitt kjent med ved visningen.
Det kan foreligge en mangel dersom selger har holdt tilbake eller gitt uriktige opplysninger, og dette har innvirket på avtalen. Dersom du oppdager forhold du mener kan være mangel, stiller avhendingsloven krav om at du reklamerer snarlig og innen rimelig tid overfor boligselgerforsikringsselskapet/ selger.
Vi anbefaler at du reklamerer umiddelbart etter at du oppdaget eller burde oppdaget mangelen. Ta kontakt med megler eller forsikringsselskapet straks du oppdager forhold du mener kan være en mangel.
Beliggenhet
Skole og barnehage
Gol har tre kommunale barnehager; Vesterhuset, Herad og Breidokk m/ underavd. Hallingmo. I tillegg til en privat barnehage; Klaras familiebarnehage. Gol fikk ny barne- og ungdomsskole i 2017 beliggende sentralt like ved sentrum i tillegg til ny flerbrukshall plassert ved idrettsbanen. Ved skolen tilbys også SFO for barn i 1.-4. klasse. Gol har også en videregående skole med 5 utdanningsprogram, både studieforberedende og yrkesfaglige. Det er ca. 365 elevplasser fordelt på 18 klasser.
Områdebeskrivelse
Denne eiendommen/ tomten ligger sentralt i Golbergsgutu. Fra eiendommen er det kort vei til sentrum samt lekeplass i Golbergsgutu Boligfelt - som ligger like ved. Tomten ligger landlig til.
Gol med sin sentrale beliggenhet i Hallingdal er et naturlig knutepunkt både for nabokommunene og veifarende mellom Øst- og Vestlandet. Avstand til Oslo er ca. 17 mil og Bergen ca. 30 mil. Både Bergensbanen og diverse ekspressbusser har stopp i Gol. Gol er et handelssentrum i Hallingdal. Her finnes bla kjøpesenter, restauranter, kafeer, butikker, apotek, bank, post, offentlige servicetilbud, bilforretninger, byggevareutsalg, møbelhus, Gol skisenter, Tropicana Badeland ved Pers Hotell, Hallingstampen ved Gol Camping, Gol motor- og fritidspark, legesenter, Mattilsynet, NAV m.m. Bo- og oppvekstmiljøet i kommunen er svært godt, og tilbyr bred dekning av både barnehager, skoler og helse- og omsorgstjenester. Det er også et rikt utvalg av kulturelle tilbud gjennom kulturskole og idrettsanlegg (turn, klatring, friidrett, treningssenter, fotball, håndball, skøyter, sykling, langrenn, skiskyting, svømming, alpint osv.) og fritidsklubber. Det er også fokusert mye på å utvikle området "Hallingmo idrettspark" hvor det i dag finnes kunstgressbane, stisenter med flere sykkelløyper for ulike ferdigheter, 12-hulls frisbeegolfbane, boccia-bane, lysløype mm. Et spennende trailsenter stod ferdig sensommeren 2023 - det er også planlagt mye annet spennende her fremover. Herfra er det også kort vei til skatepark og pumptrack, tennisbane, sandvolleyballbane og Renslotunet. Med bakgrunn i at Gol er i ferd med å utvikle seg til å bli et sterkt og naturlig sentrum i Hallingdal, er det også gode muligheter for å få jobb i kommunen. Gol er et veldig godt utgangspunkt for den aktive og friluftsinteresserte. En svipptur fra sentrum ligger Golsfjellet hvor du bl.a. finner flere alpinanlegg, over 20 mil med preparerte skiløyper, mange fjellområder og fjellveier for fot- og sykkelturer, golfbane, bade- og fiskemuligheter i flere fjellvann m.m. Gol er med andre ord et godt sted å være både for fastboende og besøkende!
Faktainformasjon om Gol: Innbyggere ca. 4.600, Barnehager: 3 kommunale - 1 privat, Skoler: 1 barne- og ungdomsskole, 1 videregående og 1 folkehøgskole. På landstoppen i detalj- og varehandel i forhold til innbyggertallet. Nabokommuner: Ål, Nesbyen, Hemsedal, Nord-Aurdal. For ytterligere informasjon se www.golinfo.no og www.gol.kommune.no
Offentlige forhold
Vei, vann og kloakk
Det ligger offentlig vann og avløp like ved. Her er det mulighet for påkobling.
Påkobling vann, kr. 12 000 + mva
Påkobling avløp, kr. 12 000 + mva
I tillegg kommer graving fra tomtegrensen og frem til nærmeste kum, ca. 15-20 meter (se vedlagt kart i salgsoppgaven)
Rettigheter og heftelser
Eiendommen overdras fri for pengeheftelser. Kommunen har lovbestemt legalpant i eiendommen som sikkerhet for betaling av kommunale gebyr.
For servitutter eldre enn fradelingsdato og eventuelle arealoppføringer som kan ha betydning for denne matrikkelenhet henvises det til avgivereiendommen. Ta kontakt med megler for mer informasjon.
Kjøpsvilkår
Totalpris inkl. omkostninger
Prisantydning kr 1 090 000,-
I tillegg til prisantydning og ev. fellesgjeld, påløper følgende omkostninger:
Dokumentavgift kr. 27 250,00
Pantattest kjøper kr. 260,00
Tingl.gebyr pantedokument kr. 545,00
Tingl.gebyr skjøte kr. 545,00
Totalpris inkl. omkostninger og fellesgjeld kr. 1 118 600
Det ovenstående forutsetter at eiendommen selges til prisantydning og at det kun tinglyses ett pantedokument. Det tas forbehold om endringer i offentlige gebyr.
Kjøpekontrakt og overtakelse
Partene er forpliktet til å signere kjøpekontrakt utarbeidet av eiendomsmeglerforetaket rett etter aksept av bud. Kjøpekontrakten kan besiktiges hos eiendomsmegler før bud inngis.
Budgivning
Eiendomsmegler skal legge til rette for en forsvarlig avvikling av budrunden. Vi gjør oppmerksom på at det i forbrukerforhold ikke kan inngis bud med kortere akseptfrist enn kl. 12.00 første virkedag etter siste annonserte visning. Eiendomsmegler kan ikke formidle bud med kortere akseptfrist enn dette. Hos EIE stiller vi strengere krav til frister ved budgivning enn det som følger av Forbrukerinformasjon om budgivning, vedlagt i salgsoppgaven. Bud skal ikke ha en akseptfrist på mindre enn 30 minutter fra budet inngis. Bud med kortere akseptfrist enn 30 minutter kan bli avvist.
Eiendomsmegler har ikke ansvar for forsinkelser som skyldes tekniske feil. Akseptfristen er absolutt, det vil si at selger må akseptere budet og kjøper meddeles aksepten innen utløpet av akseptfristen. Dersom du utsetter inngivelse av bud til tett opp mot akseptfristen på et annet bud er det en reell fare for at eiendommen kan bli solgt før ditt bud kommer frem til megler og/eller megler rekker å bringe budet videre til selger. Husk alltid å ringe megler etter at du har sendt et bud eller budforhøyelse, for å forsikre deg om at budet er mottatt og kan formidles til selger. For øvrig vises det til vedlagte forbrukerinformasjon om budgivning.
Alle bud og budforhøyelser skal være skriftlig. I tillegg må legitimasjon være fremlagt, og budet skal signeres av budgiver. Eiendomsmegler kan ikke formidle bud før disse kravene er oppfylt. Vi oppfordrer til å inngi bud elektronisk, ved å trykke på "Gå til budgivning" på eiendommens hjemmeside på eie.no eller ved å trykke på knappen "Gi bud" i hjem/finn-annonsen. Ved å benytte denne tjenesten vil vilkårene om legitimasjon og signatur fra budgiver være oppfylt.
Eiendomsmegler kan ikke formidle bud med forbehold om at bud eller forhold i bud skal holdes skjult for andre budgivere og interessenter.
Eiendomsmegler skal kontrollere budgiverens finansiering før handel sluttes.
Som kjøper og selger hos EIE vil du få tilsendt budjournalen etter at handel er inngått. Dette innebærer at alle bud vil bli gjort kjent for partene i den endelige kjøpsavtalen. Øvrige budgivere kan be om å få en kopi av budjournalen i anonymisert form.
Det er viktig at du gjør deg kjent med all informasjon om boligen, og at du har spurt om det du eventuelt lurer på, før du legger inn et bud.
Betalingsbetingelser
Fullstendig kjøpesum inkludert omkostninger, samt eventuelt pantedokument tilknyttet lån, skal kunne disponeres over hos megler senest 2 virkedager før overtagelse. Kjøpesummen skal innbetales fra norsk finansinstitusjon og eventuell egenkapital skal innbetales i én samlet betaling fra kjøpers egen konto i norsk finansinstitusjon.
Lovanvendelse
Generelle bestemmelser
Salgsoppgaven er basert på de opplysningene selger har gitt til megler, den bygningssakyndiges tilstandsrapport, samt opplysninger innhentet fra kommunen, Kartverket og andre tilgjengelige kilder. Det er viktig at kjøper setter seg grundig inn i alle salgsdokumentene, herunder salgsoppgave, tilstandsrapport og selgers egenerklæring. Kjøper anses kjent med forhold som er tydelig beskrevet i salgsdokumentene, og slike forhold kan ikke påberopes som mangler. Dette gjelder uavhengig av om kjøper har lest dokumentene. Alle interessenter oppfordres til å undersøke eiendommen nøye, gjerne sammen med fagkyndig før bud inngis. Kjøper som velger å kjøpe usett kan ikke gjøre gjeldende som mangel noe han burde blitt kjent med ved undersøkelsen.
Dersom det er behov for avklaringer, anbefaler vi at interessenter rådfører seg med eiendomsmegler eller egne rådgivere før det legges inn bud.
En bolig som har blitt brukt i en viss tid, har vanligvis blitt utsatt for slitasje og skader kan ha oppstått. Slik bruksslitasje må kjøper regne med, og det kan avdekkes enkelte forhold etter overtakelse som nødvendiggjør utbedringer. Normal slitasje og skader som nødvendiggjør utbedring, er innenfor hva kjøper må forvente og vil ikke utgjøre en mangel.
Kjøper og selgers rettigheter og plikter reguleres av avtalen mellom partene, samt informasjonen som har vært tilgjengelig for kjøperen i forbindelse med handelen. Avtalen utfylles av avhendingsloven, og det gjelder ulike avtalevilkår avhengig av om kjøper er forbrukerkjøper eller ikke. Dette er nærmere beskrevet nedenfor.
På grunn av ulike avtalevilkår kan selger vurdere bud fra en som ikke er forbruker, ulikt fra en forbrukers bud. Dersom kjøper ikke er forbruker, er selger sitt mulige mangelsansvar begrenset fordi eiendommen selges "som den er". Selger kan ikke ta som den er forbehold ovenfor en forbrukerkjøper. Selv et lavere bud fra en som ikke er forbruker kan foretrekkes fordi begrensningen i mulig mangelsansvar kan ha egenverdi for selger. Selger står fritt til å forkaste eller akseptere ethvert bud, og er for eksempel ikke forpliktet til å akseptere høyeste bud.
Budgiver skal i budskjemaet avgi egenerklæring om budgiver er forbruker eller næringsdrivende/ person som hovedsakelig handler som ledd i næringsvirksomhet.
Forbrukerkjøp - definisjon
Med forbrukerkjøp menes kjøp av eiendom når kjøperen er en fysisk person som ikke hovedsakelig handler som ledd i næringsvirksomhet.
Forbruker - avtalevilkår
Eiendommen har en mangel dersom den ikke er i samsvar med kravene som følger av avtalen, eller det foreligger brudd på bestemmelsene i avhendingsloven §§ 3-2 til 3-8. Hvis eiendommen ikke er i samsvar med det kjøperen må kunne forvente ut ifra alder, type og synlig tilstand, kan det være grunnlag for mangelskrav. Det samme gjelder hvis det er holdt tilbake eller gitt uriktige opplysninger om eiendommen. Dette gjelder likevel bare dersom man kan gå ut ifra at det virket inn på avtalen at opplysningen ikke ble gitt eller at feil uriktige opplysninger ikke blir rettet i tide på en tydelig måte.
Boligen kan ha en mangel etter avhendingsloven § 3-3 dersom det er avvik mellom opplyst og faktisk innvendig areal, forutsatt at avviket er på 2% eller mer og minimum 1 kvm.
Ved beregning av et eventuelt prisavslag eller erstatning må kjøper selv dekke tap/kostnader opptil et beløp på kr 10 000 (egenandel).
Ikke-forbruker (næringsdrivende) - definisjon
Hvis kjøper er en juridisk person, eller en fysisk person som hovedsakelig handler som ledd i næringsvirksomhet, vil kjøpet ikke anses som et forbrukerkjøp.
Ikke-forbruker - avtalevilkår
Eiendommen har en mangel dersom den ikke er i samsvar med kravene som følger av avtalen. Eiendommen selges som den er , og selgers ansvar utover det konkret avtalte er da begrenset etter avhendingsloven § 3-9, første ledd andre setning.
Avhendingsloven § 3-3 andre ledd fravikes, og hvorvidt boligens arealsvikt utgjør en mangel vurderes etter avhendingsloven § 3-8.
Informasjon om kjøpers undersøkelsesplikt, herunder oppfordringen om å undersøke eiendommen nøye, gjelder også for kjøpere som ikke anses som forbrukere.
Uautorisert kopiering eller gjenbruk av all tekst og alle bilder i denne annonse/salgsoppgave er ikke tillatt.
Personvern
Som interessent, budgiver og kjøper vil dine personopplysninger bli registrert og lagret for videre oppfølging. Som eiendomsmeglingsforetak har vi plikt til å oppbevare kontrakter og dokumenter i minst 10 år, jf. eiendomsmeglingsforskriften. Mulighetene for å få slettet personopplysninger er derfor begrenset. Les mer om EIE`s behandling av personopplysninger i vår personvernerklæring på eie.no/personvern
Hvitvasking
Eiendomsmeglere er underlagt lov om hvitvasking og tilhørende forskrift, som pålegger oss å gjennomføre kundekontroll av selger og kjøper, herunder fullmektiger. Slike kontrolltiltak vil i praksis gjøres ved å bekrefte våre kunders og reelle rettighetshaveres identitet, samt å innhente informasjon knyttet til handelens formål og tilsiktede art.
Dersom kjøper ikke bidrar til dette, og det medfører at transaksjonen ikke kan gjennomføres eller blir forsinket, misligholder kjøper avtalen. Dette vil kunne gi selger rettigheter etter avhendingsloven, herunder rett til å heve kjøpet og gjennomføre dekningssalg for kjøpers regning dersom misligholdet er vesentlig.
I tilfeller der det er selger som ikke bidrar til at megler får gjennomført løpende kontrolltiltak underveis i oppdraget må megler stanse gjennomføringen av transaksjonen. Selger vil i så fall ha misligholdt sine forpliktelser, og kjøper vil kunne ha krav mot selger etter avhendingslovens bestemmelser om mislighold og forsinkelse.
Dersom nødvendige kontrolltiltak ikke lar seg gjennomføre vil EIE eiendomsmegling ikke kunne bistå med handelen eller foreta oppgjør.
Meglers vederlag
Følgende er avtalt om meglers vederlag, og skal betales av selger:
Fastpris 30 000 inkl. mva
Markedspakke stor pakke: kr. 23 900,00,-
Oppgjørsgebyr: kr. 6 900,00,-
Samlet skal selger betale ca. kr. 60 800 for vederlag og utlegg ved salg til prisantydning.
Dersom handel ikke kommer i stand eller oppdraget sies opp, har oppdragstaker krav på rimelig vederlag for medgått tid/utført arbeid og avtalte utgifter (utgifter til påløpte visninger, innhenting av opplysninger, markedspakke og tilrettelegging), samt eventuelle utlegg. Alle priser er inkl. mva.
Om oppdraget
Oppdr.nr: 28250023
Ansvarlig megler: Håkon Wøllo
EIE Fjellmegleren Gol
Fjellmegleren AS
NO 982 082 161 MVA
Produkter eller tjenester som tilbys partene i forbindelse med oppdraget
Meglerforetaket og EIE-kjeden har flere samarbeidspartnere som tilbyr produkter eller tjenester i forbindelse med gjennomføring av megleroppdraget.
Dette gjelder følgende:
- Gjensidige forsikring tilbyr boligselger- og boligkjøperforsikring samt forsikringsløsninger til selger og kjøper
- Overo leverer oppgjørsskjema og overtakelsesprotokoll for EIE. Kunder tilbys ulike leverandører for strøm, alarm og bredbånd avhengig av tilbydere i kundens nærområde
- EIE AS (morselskap for franchisegiver i EIE-kjeden) og enkelte meglerkontor i EIE-kjeden har indirekte eierinteresser i Bomega AS (Hjem.no) i ulike eierkonstellasjoner gjennom EIE Hjem AS
- EIE eiendomsmegling samarbeider med ulike bankforbindelser om formidling av finansielle tjenester. Meglerforetaket kan motta godtgjørelse for dette
- Finit Deleie tilbyr deleie på enkelte objekter
- Secundo er en markedsplass for salg av bruktgjenstander
Les mer om våre samarbeid og investeringer her: eie.no/eiendom/eie-investerer
Nyttige lenker
EIE Fjellmegleren Gol / Nesbyen / Flå
Nærområdet
Annonseinformasjon
| FINN-kode | 430837469 |
|---|---|
| Sist endret | 13. jan. 2026 12:05 |
| Referanse | 28250023 |
Annonsene kan være mangelfulle i forhold til lovpålagt opplysningsplikt. Før bindende avtale inngås oppfordres interessenter til å innhente komplett informasjon fra meglerforetaket, selger eller utleier.















