Bildegalleri

EiendomsMegler 1 ved Trude Gunnlaugsson har gleden av å presentere Fjelltunvegen. Foto: eier. Illustrasjon: abchus.
Realiser boligdrømmen på Follese - byggeklar tomt med tillatelse til moderne enebolig i barnevennlig område
- Totalpris
- 1 323 340 kr
- Omkostninger
- 33 340 kr
- Formuesverdi
- 960 000 kr
Nøkkelinfo
Om eiendommen
Kort om eiendommen
Tomt beliggende i et meget trivelig område på Follese. Barnevennlig beliggenhet uten gjennomgangstrafikk.
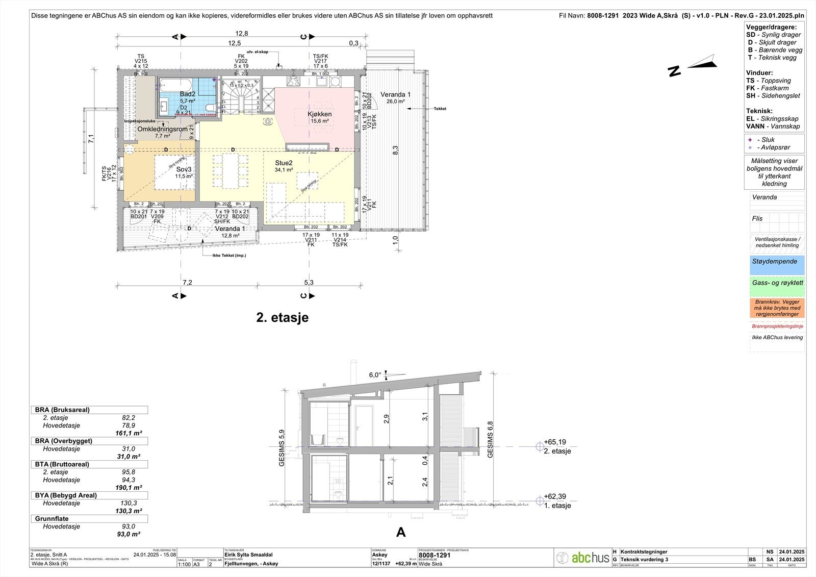
Det foreligger tillatelse for oppføring av enebolig med utenomhusanlegg, tillatelse til søknad om vann- og avløpsarbeid foreligger fra Askøy kommune, skredfarevurdering og arkitekttegninger medfølger.
Det foreligger en klausul på tomten til bygging av ABCHus. Vedlagte tegninger er av godkjent hus. Leveransebeskrivelse kan fås fra megler ved forespørsel.
Pris fra Abchus kr 5.450.000,- for nøkkelferdig hus.
Ta kontakt med megler for evt bruddgebyr.
Grunnarbeid er det gitt tilbud på kr 500.000,- fra Inges Fjellsprengning AS.
Off.påkoblingsavgifter tilkommer.
Gode solforhold på eiendommen. Follese Barneskole, ballbinge, butikk og bussholdeplass like ved. Gangavstand til to barnehage.
Beliggenhet
Tomten ligger fint til i terrenget. Nærområdet er i hovedsak bebygget av eneboliger. Turområde i umiddelbar nærhet med bla Follesemarka, Brenneklubben med flere.
Meget trivelig område på Follese. Barnevennlig område uten gjennomkjøringstrafikk. Tomten har også badeområdet i Træ som har utendørs badebasseng og stupebrett hvor det ofte holdes sosiale arrangement.
Barneskole, ballbinge og bussholdeplass like ved. Gangavstand til to barnehager og nærbutikken Spar Follese med post i butikk. Rett ved Spar er Follese heimbygdalag, FOLK; som nylig ble tatt over av de lokale. Dette kultursenteret har allerede blitt brukt til sosiale samlinger for barn i alle aldre, samt voksne. Dette er blitt et samlingspunkt og for å treffe nye mennesker. Samtidig som eiendommen ligger i en fredelig blindgate med kort vei til vakre naturområder, er alt du trenger av fasiliteter og servicetilbud lett tilgjengelig. Ca. 5 min kjøretid til Kleppestø sentrum / senter med de fleste servicetilbud samt ungdomskole, bussterminal og hurtigbåt til Bergen. Ca 15 min kjøretid til Bergen. Tomten kan besiktiges på egenhånd eller ta kontakt med megler på 48 88 84 01. Tegninger fra arkitekt kan medfølge handelen etter nærmere avtale.
Trygg vei for barna - det er utbedret bredere fortau v/Follese skole samt hele veien inn til Strusshamn. Her kan barna gå eller sykle trygt mellom bygdene. Veldig positivt med tanke på den lokale fotballbanen Skogen idrettspark som ligger midt mellom, der veldig mange barn er på trening ukentlig!
Tomten ligger i fareområde for ras, på grunn av bratt terreng. Tomten har vært undersøkt av geolog. Kommunen har gitt byggetillatelse på bakgrunn av rapporten fra geolog.
Leveransen fra ABChus inkluderer blant annet:
-Smarthus-løsning for styring av lys og varme
-Parkett i alle oppholdsrom
-Flis på bad, entré, sportsbod og vaskerom
-Kjøkken fra Drømmekjøkkenet
-Komplett nøkkelferdig leveranse klart til innflytting
Leveransebeskrivelse kan fås fra megler ved forespørsel.
Tomt
Tomten er ubebygd. Tomten er godkjent til boligformål.
Bebyggelse
Hovedsakelig et område som er bebygd av eneboliger, veldig rolige nabolag rundt.
Radonmåling
Det er ikke utført radonmåling og det er heller ikke krav til dette. Kjøper overtar eiendommen slik og er selv ansvarlig for å utføre eventuelle tiltak. For mer informasjon vedrørende radon se www.dsa.no.
Adkomst
For veibeskrivelse henvises det til vedlagte kart i salgsoppgaven. Det vil bli skiltet med EiendomsMegler 1-skilt ved fellesvisning.
Offentlig kommunikasjon
Buss nr. 402 til Kleppestø terminal.
Her er det svært gode båtforbindelser inn til Bergen sentrum v/Strandkaien. Kun 8 min over m/båt.
Ellers er Kleppestø terminal et knutepunkt som stadig har bussavganger til alle steder på øyen, og til Bergen.
Boligselgerforsikring
Selger har ikke tegnet boligselgerforsikring, men fylt ut egenerklæringsskjema som kjøper må sørge for å sette seg inn i før budgivning.
Overtakelse
Etter nærmere avtale med selger. Vær vennlig å angi ønsket overtagelsesdato i vedlagte budskjema.
Sentrale lover
Eiendommen selges etter reglene i avhendingsloven.
Salgsoppgaven er basert på de opplysningene selger har gitt til bygningssakkyndig og megler, samt opplysninger innhentet fra kommunen, Statens kartverk og andre tilgjengelige kilder.
Eiendommen skal overleveres kjøper i tråd med det som er avtalt. Det er viktig at kjøper setter seg grundig inn i alle tilgjengelige salgsdokumenter, herunder salgsoppgave, tilstandsrapport og selgers egenerklæring. Kjøper anses kjent med forhold som er tydelig beskrevet i salgsdokumentene. Forhold som er beskrevet i salgsdokumentene kan ikke påberopes som mangler. Dette gjelder uavhengig av om kjøper har lest dokumentene. Alle interessenter oppfordres til å undersøke eiendommen nøye, gjerne sammen med fagkyndig før bud inngis. Kjøper som velger å kjøpe usett kan ikke gjøre gjeldende som mangel noe kjøper burde blitt kjent med ved undersøkelsen. Dersom det er behov for avklaringer, anbefaler vi at kjøper rådfører seg med eiendomsmegler eller en sakyndig før det legges inn bud.
Dersom kjøper ikke er forbruker selges eiendommen som den er , og selgers ansvar er da begrenset jf.avhendingsloven § 3-9 1. ledd 2. pkt. Informasjon om kjøpers undersøkelsesplikt, herunder oppfordringen om å undersøke eiendommen nøye, gjelder også for kjøpere som ikke anses som forbrukere.
På grunn av ulike avtalevilkår kan selger vurdere bud fra en som ikke er forbruker, ulikt fra en forbrukers bud. Dersom kjøper ikke er forbruker, er selger sitt mulige mangelsansvar begrenset fordi eiendommen selges "som den er". Selger kan ikke ta som den er forbehold ovenfor en forbrukerkjøper. Selv et lavere bud fra en som ikke er forbruker kan foretrekkes fordi begrensningen i mulig mangelsansvar kan ha egenverdi for selger. Selger står fritt til å forkaste eller akseptere ethvert bud, og er for eksempel ikke forpliktet til å akseptere høyeste bud.
Budgivere får informasjon dersom andre bud er inngitt av en som ikke er forbruker.
Forbrukerkjøp definisjon
Med forbrukerkjøp menes kjøp av eiendom når kjøperen er en fysisk person som ikke hovedsakelig handler som ledd i næringsvirksomhet.
Forbruker avtalevilkår
Eiendommen har en mangel dersom den ikke er i samsvar med kravene som følger av avtalen, eller det foreligger brudd på bestemmelsene i avhendingsloven §§ 3-2 til 3-8. Hvis eiendommen ikke er i samsvar med det kjøperen må kunne forvente ut ifra alder, type og synlig tilstand, kan det være grunnlag for mangelskrav. Det samme gjelder hvis det er holdt tilbake eller gitt uriktige opplysninger om eiendommen. Dette gjelder likevel bare dersom man kan gå ut ifra at det virket inn på avtalen at opplysningen ikke ble gitt eller at feil uriktige opplysninger ikke blir rettet i tide på en tydelig måte.
Utendørs arealavvik utgjør en mangel dersom avviket anses "vesentlig mindre", jf. avhl. § 3-3 (1).
Ved beregning av et eventuelt prisavslag eller erstatning må kjøper selv dekke tap/kostnader opptil et beløp på kr 10 000 (egenandel).
Ikke-forbruker (næringsdrivende) definisjon
Dersom kjøper er en juridisk person, eller en fysisk person som hovedsakelig handler som ledd i næringsvirksomhet, vil kjøpet ikke anses som et forbrukerkjøp.
Ikke-forbruker avtalevilkår
Eiendommen har en mangel dersom den ikke er i samsvar med kravene som følger av avtalen. Eiendommen selges som den er , og selgers ansvar utover det konkret avtalte er da begrenset etter avhendingsloven § 3-9, første ledd andre setning.
Avhendingsloven § 3-3 andre ledd fravikes, og hvorvidt boligens arealsvikt utgjør en mangel vurderes etter avhendingsloven § 3-8.
En forutsetning for salget er at skjøtet for eiendommen tinglyses på kjøper. Interessenter og kjøper må godta at selger og megler bruker elektronisk kommunikasjon i salgsprosessen.
I tråd med eiendomsmeglingsforskriften vil informasjon om oppdragsgiver, salgsobjektet, interessenter og kjøper bli lagret av meglerforetaket i min. 10 år. Se em1.no for mer informasjon om vår behandling av personopplysninger.
Hvitvaskingsregelverk
I henhold til Hvitvaskingsloven har meglerforetaket plikt til å gjennomføre kundetiltak (ID kontroll, kontroll av reelle rettighetshavere, mv). Kundetiltak skjer løpende og vil blant annet gjennomføres når handel inngås og ved gjennomføring av oppgjøret, samt dersom det foreligger mistanke om hvitvasking eller terrorfinansiering.
Dersom kundetiltak ikke kan gjennomføres, skal meglerforetaket ikke gjennomføre transaksjonen med kjøper. Ved meglerforetakets avvikling av kundeforholdet, vil avtalen mellom partene være bindende, men meglerforetaket kan ikke bidra i gjennomføringen av handelen. Det kan ikke gjøres ansvar gjeldende mot meglerforetaket som følge av at meglerforetaket overholder sine plikter etter Hvitvaskingsloven.
Meglerforetaket er forpliktet til å rapportere mistenkelige transaksjoner til Økokrim.
Budgivning
Megler kan ikke formidle bud med kortere akseptfrist enn klokken 12:00 første virkedag etter siste annonserte visning, dersom selger er forbruker. Det kan hende at fristene for å akseptere bud blir kortere etter hvert som det kommer inn nye bud. Det er budgiver som setter fristen for når et bud må være akseptert og denne fristen er absolutt. Det betyr at selger må akseptere budet og kjøper må ha mottatt aksepten innen fristens utløp. Dersom du legger inn bud tett opp mot akseptfristen, er det en reell fare for at eiendommen blir solgt før budet når frem til megler.
Husk å ringe til megler etter du har sendt et bud eller budforhøyelse, for å forsikre deg om at budet er mottatt av megler. Megler tar ikke ansvar for forsinkelser på el- eller telenettet, eller andre tekniske feil.
Alle bud og budforhøyelser med eventuelle forbehold, opplysning om finansiering og ønsket overtakelse, skal sendes skriftlig til megler.
Megler kan ikke formidle bud med forbehold om at budet eller forbehold i budet (hemmelige bud og/eller hemmelige forbehold) skal holdes skjult for andre budgivere og interessenter.
Megler skal sende skriftlig varsel om bud og budforhøyelser, som kan formidles, til budgiver, selger og interessenter. Når et bud aksepteres, skal megler sende skriftlig beskjed om det til både budgiver og selger.
Megler skal kontrollere budgivers finansiering før handel inngås. Dersom slik kontroll ikke lar seg gjennomføre, skal selger motta skriftlig informasjon om dette, og mulige konsekvenser. Dersom megler ikke får kontrollert budgivers finansiering, kan det derfor medføre at en annen budgiver også en med lavere bud anbefales overfor selger.
For å legge inn bud kan du enkelt legge inn bud via EiendomsMegler 1s gi bud -knapp i nettannonsen, eller benytte budskjema, elektronisk budgivning, skannet budskjema sendt på e-post eller annen godkjent skriftlig metode.
Skal du legge inn bud må du legitimere deg med kopi av legitimasjon og signatur. Kravet til legitimasjon og signatur er oppfylt dersom budgiver benytter e-signatur, for eksempel BankID.
Ta en prat med megler om hvordan du legger inn bud.
Vedlegg til salgsoppgaven
Videre i denne salgsoppgaven ligger vedlegg. Disse inneholder viktig informasjon om eiendommen og må gjennomgås før bud gis.
Regulering
Eiendommen ligger i et område regulert til boligbebyggelse - nåværende. Kopi av situasjonskart, målebrev, reguleringsplaner m/bestemmelser etc. ligger vedlagt i salgsoppgaven eller kan fås ved henvendelse til megler. Vi oppfordrer interessenter til å gjøre seg kjent med disse.
Kommuneplaner:
Besøk kommunens hjemmeside for mer informasjon.
Id 9001 (https://www.arealplaner.no/4627/gi?funksjon=VisPlan&kommunenummer=4627&planidentifikasjon=9001)
Navn KOMMUNEPLANENS AREALDEL 2012- 2023
Plantype Kommuneplanens arealdel
Status Endelig vedtatt arealplan
Ikrafttredelse 13.12.2012
Bestemmelser - https://www.arealplaner.no/4627/dokumenter/12452/Bestemmelser%20Kommuneplanens%20arealdel%202012-2023%2C%20revidert%2018.02.16.pdf
Delarealer Delareal 926 m
Arealbruk Boligbebyggelse, nåværende
Områdenavn_
Kommuneplaner under arbeid:
Besøk kommunens hjemmeside for mer informasjon.
Id 9002 (https://www.arealplaner.no/4627/gi?funksjon=VisPlan&kommunenummer=4627&planidentifikasjon=9002)
Navn Kommuneplanens arealdel 2024-2036
Status Planforslag
Plantype Kommuneplanens arealdel
Reguleringsplaner:
Besøk kommunens hjemmeside for mer informasjon.
Id 24 (https://www.arealplaner.no/4627/gi?funksjon=VisPlan&kommunenummer=4627&planidentifikasjon=24)
Navn Løype, Follese
Plantype Eldre reguleringsplan
Status Endelig vedtatt arealplan
Ikrafttredelse 20.04.1970
Delarealer Delareal 52 m
Formål Gangvei
Delareal 828 m
Formål Boliger
Delareal 6 m
Formål Kjørevei
Id 16 (https://www.arealplaner.no/4627/gi?funksjon=VisPlan&kommunenummer=4627&planidentifikasjon=16)
Navn Plan 16-00 - Follese
Plantype Eldre reguleringsplan
Status Endelig vedtatt arealplan
Ikrafttredelse 07.07.1967
Bestemmelser - https://www.arealplaner.no/4627/dokumenter/16756/Plan%2016%20-%20Bestemmelser%20sist%20revidert%2016.11.2022.pdf
Delarealer Delareal 39 m
Formål Boliger.
Reguleringsplaner under arbeid i nærheten (50 meter):
Besøk kommunens hjemmeside for mer informasjon
Ingen reguleringsplaner under arbeid innenfor 50 meter fra eiendommen.
Nyttige lenker
EiendomsMegler 1 Bergen Vest
Nærområdet
Annonseinformasjon
| FINN-kode | 429927422 |
|---|---|
| Sist endret | 05. des. 2025 08:02 |
| Referanse | 2712250197 |
Annonsene kan være mangelfulle i forhold til lovpålagt opplysningsplikt. Før bindende avtale inngås oppfordres interessenter til å innhente komplett informasjon fra meglerforetaket, selger eller utleier.
























