Bildegalleri

Oversikt - beliggende ved fotballbane, grendehus og barnehage
Kjølvikstølen - Byggeklar boligtomt - Støpt plate (påbegynt tomannsbolig) med vann, avløp og strøm klar - Barnevennlig
- Totalpris
- 708 600 kr
- Omkostninger
- 18 600 kr
- Formuesverdi
- 60 000 kr
Nøkkelinfo
Om eiendommen
Kort om eiendommen
Boligtomt med igangsettingstillatelse og tegninger for en vertikaldelt tomannsbolig og dobbel garasje. Tomten er ferdig planert og med støpt plate for boligen. Innlagt vann, avløp og strøm.
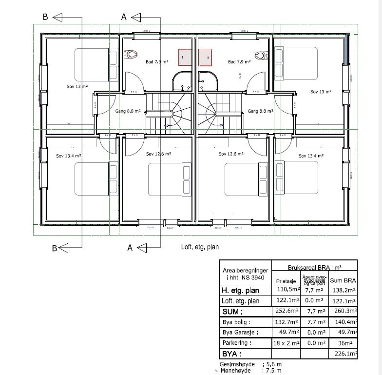
Tegninger medfølger; Tomannsbolig vertikaldelt, sum BRA 260 kvm (130kvm hver enhet). Garasje 49,7 kvm. Arealer er hentet fra byggetegning.
Endringer krever byggesøknad til kommunen.
Ingen byggeklausul - her kan benytte det byggefirma en ønsker.
Tomten er i utgangspunktet eneboligtomt som en har fått dispensasjon til å bygge tomannsbolig. Eiendommen overtas som den står.
Tomten kan fritt besiktiges.
Beliggenhet
Kjølvikstølen på Ropeidhalvøya i Suldal kommune. Her har en flott natur med turmuligheter i umiddelbar nærhet. Det er kort veg til både fjord og fjell, samt barnehage, fotballbane og Grendehus. Grendehuset er i stor aktivitet hele året. Den lokale Joker butikken i Vatlandsvåg er bare 1 km i fra. Her har en også pumpestasjon drivstoff samt båtplasser. Tursti til Grytenuten (862 moh) starter fra tomten, ca 5,4 km opp.
For barn i skolealder kommer skolebussen like nedenfor. Marvik skole (1-7) ligger ca. 10km fra Kjølvikstølen (skulebruksplan/endringer er på høring). Ungdomsskolen ligger i kommunesenteret på Sand.
Adkomst
Se finn-kart for nærmere beskrivelse
Omkostninger
690 000 (Prisantydning)
--------------------------------------------------------
Omkostninger
17 250 (Dokumentavgift)
260 (Panteattest kjøper)
545 (Tinglysningsgebyr pantedokument)
545 (Tinglysningsgebyr skjøte)
15 900 (Boligkjøperforsikring fem års varighet (valgfritt))
2 800 (Boligkjøperforsikring Help Pluss - ett års varighet (valgfritt))
--------------------------------------------------------
18 600 (Omkostninger totalt)
34 500 (med Boligkjøperforsikring - fem års varighet)
37 300 (med Boligkjøperforsikring inkludert ett år med Help Pluss)
--------------------------------------------------------
708 600 (Totalpris. inkl. omkostninger)
724 500 (Totalpris. inkl. omkostninger (med Boligkjøperforsikring - fem års varighet))
727 300 (Totalpris. inkl. omkostninger (med Boligkjøperforsikring inkludert ett år med Help Pluss))
--------------------------------------------------------
Regnestykket forutsetter at det kun tinglyses ett pantedokument og at eiendommen selges til prisantydning. Det tas forbehold om endringer i offentlige avgifter/gebyrer.
Overtakelse
Overtakelse etter nærmere avtale med selger.
Dersom annet ikke avtales, sendes skjøte/hjemmelsdokument for tinglysing i etterkant av overtakelse.
Beskrivelse av tomt
Tomten er sprengt ut og planert. Støpt plate , klar til videre byggeprosess
Diverse
Kjøper har selv ansvaret for å sette seg inn i salgsoppgaven med vedlegg, reguleringsplaner, øvrig beskrivelse og annen dokumentasjon som kjøper har fått tilgang til. Dersom utfyllende/supplerende opplysninger er ønskelig, bes kjøper henvende seg til megler. Det presiseres at det er viktig at slike avklaringer finner sted før bindende avtale om kjøp inngås.
Foretaket samarbeider med følgende foretak som tilbyr produkter eller tjenester i forbindelse med oppdraget:
- Help forsikring
- Södeberg & Partners
- Banker i Eika-alliansen
- Leverandører knyttet til Aktiv pluss (for eksempel flyttehjelp)
- Leverandører knyttet til Visma Meglerfront (for eksempel strømleverandører)
Budgivning
Budgivning i forbrukerforhold
Budgivere oppfordres til å legge inn bud elektronisk. Dette gjøres på eiendommens hjemmeside på aktiv.no, ved å bruke Gi bud -knappen. Ved elektronisk budgivning, samtykker budgiver til elektronisk kommunikasjon. Eiendomsmegler skal legge til rette for en forsvarlig avvikling av budrunden og kan ikke videreformidle bud med en kortere akseptfrist enn kl. 12.00 første virkedag etter siste annonserte visning. Etter klokken 11:30 anbefaler vi akseptfrist på minimum 30 minutter. Bud bør legges inn i god tid før konkurrerende buds akseptfrist utløper. Megler kan ikke formidle bud med forbehold om at budet, eller forbehold i budet (hemmelige bud/hemmelige forbehold), skal holdes skjult for andre budgivere og interessenter.
For øvrig henvises til forbrukerinformasjon om budgivning i salgsoppgaven. Oppdragsgiver er oppfordret til å ikke ta imot bud direkte fra budgiver, men å henvise budgiver videre til megler. Som kjøper vil du få forelagt kopi av budjournal. Alle bud vil bli gjort kjent for kjøper og selger i handelen. Øvrige budgivere kan be om å få en kopi av budjournal i anonymisert form.
Budgivning utenfor forbrukerforhold
Budgivere oppfordres til å legge inn bud elektronisk. Dette gjøres på eiendommens hjemmeside på aktiv.no, ved å bruke Gi bud -knappen. Ved elektronisk budgivning, samtykker budgiver til elektronisk kommunikasjon. Det anbefales at hvert bud har en akseptfrist som muliggjør en forsvarlig avvikling av budrunden. Vi anbefaler minimum 30 minutter akseptfrist. Oppdragsgiver er oppfordret til å ikke ta imot bud direkte fra budgiver, men å henvise budgiver videre til megler. Megler kan ikke formidle bud med forbehold om at budet, eller forbehold i budet (hemmelige bud/hemmelige forbehold), skal holdes skjult for andre budgivere og interessenter.
Opplysningene i salgsoppgaven er godkjent av selger. Alle interessenter oppfordres imidlertid til grundig besiktigelse av eiendommen, gjerne sammen med fagmann før bud inngis.
Etter aksept av bud, vil eiendommens salgssum bli meddelt de som ev. måtte etterspørre denne. Eiendommens salgssum vil bli offentlig tilgjengelig ved overføring av hjemmel.
Regulering
Aktiv Sauda
Nærområdet
Annonseinformasjon
| FINN-kode | 428319438 |
|---|---|
| Sist endret | 25. sep. 2025 12:21 |
| Referanse | 1402250065 |
Annonsene kan være mangelfulle i forhold til lovpålagt opplysningsplikt. Før bindende avtale inngås oppfordres interessenter til å innhente komplett informasjon fra meglerforetaket, selger eller utleier.





























