Bildegalleri

Skjermbilde 2025-09-15 123426.jpg
Godkjent rammesøknad | Flott hjørnetomt på Fredheimvn 2 | Godkjente tegninger for tomannsbolig | Solrikt & barnevennlig.
Nøkkelinfo
Visning
Om eiendommen
Kort om eiendommen
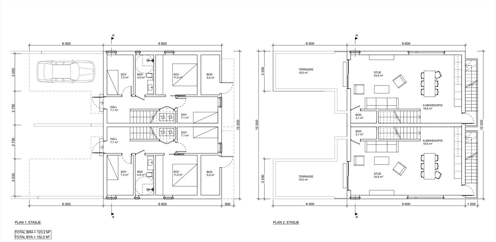
Boligtomt for oppføring av tomannsbolig med carport. Ingen byggeklausul. Det foreligger imidlertid godkjent rammetillatelse på tegninger og IG for oppføring av tomannsbolig fordelt over 2 etasjer og carport. Tiltaket må være igangsatt innen 3 år. Det samme gjelder om tiltaket instilles lengre enn 2 år. Da faller godkjennelsen bort. Tegninger medfølger i kjøpesummen. 608 kvm. eiet tomt. Barnevennlig beliggende i attraktivt strøk i Askim. Vann og avløp i nærhet til tomten. Fredheimveien er privat.
Beliggenhet
Fredheimveien 2 ligger attraktivt til med god plassering på feltet. Eiendommen har en fin beliggenhet i et koselig og sjarmerende boligområde. Fredheimveien er en blindgate med rundkjøring i enden av veien. Til Askim sentrum er det ca. 5 minutters gange. Gangavstand til både skoler og barnehager, og til sentrum. Her finner du bl.a. Askimtorget som har et bredt utvalg av forretninger. I sentrum finner du i tillegg banker, postkontor (post i butikk), kafèer, spisesteder, leger, kino og Østfoldbadet.
Adkomst
Det vil bli satt opp Aktiv-visningsskilt under visning.
Overtakelse
Overtakelse etter nærmere avtale med selger.
Dersom annet ikke avtales, sendes skjøte/hjemmelsdokument for tinglysing i etterkant av overtakelse.
Beskrivelse av tomt
Lett skrånende hjørnetomt i et meget barnevennlig område. Tomta er på 608 kvm.
Diverse
Tomannsboligen er nøye planlagt, prosjektert og utformet etter
eiendommens skrånede terreng og kotehøyder. Derfor trappes/tilpasses
tiltaket i terrenget med en differanse mellom boligene på 70cm.
Arkitekten har fokusert på gode siktlinjer, lysforhold og
uteoppholdsareal i forhold til tomannsboligens utforming.
Tomannsboligen er planlagt oppført som trekonstruksjon med vekt på høy
kvalitet og et renskåret og detaljert uttrykk som danner samspill med
de naturlige omgivelsene, samt de omkringliggende boligene.
Kledning av yttervegger planlegges som stående, tradisjonell d-falls
av trebord, malt sort. Rammeverk av vinduer og dør-overflater vil være
utført i trevirke av høy kvalitet i samme palette som yttervegger. (Se
illustrasjon). Adkomst til eneboligen og parkering følger terrengets
situasjon pa tomten.
Budgivning
Budgivning i forbrukerforhold
Budgivere oppfordres til å legge inn bud elektronisk. Dette gjøres på eiendommens hjemmeside på aktiv.no, ved å bruke Gi bud -knappen. Ved elektronisk budgivning, samtykker budgiver til elektronisk kommunikasjon. Eiendomsmegler skal legge til rette for en forsvarlig avvikling av budrunden og kan ikke videreformidle bud med en kortere akseptfrist enn kl. 12.00 første virkedag etter siste annonserte visning. Etter klokken 11:30 anbefaler vi akseptfrist på minimum 30 minutter. Bud bør legges inn i god tid før konkurrerende buds akseptfrist utløper. Megler kan ikke formidle bud med forbehold om at budet, eller forbehold i budet (hemmelige bud/hemmelige forbehold), skal holdes skjult for andre budgivere og interessenter.
For øvrig henvises til forbrukerinformasjon om budgivning i salgsoppgaven. Oppdragsgiver er oppfordret til å ikke ta imot bud direkte fra budgiver, men å henvise budgiver videre til megler. Som kjøper vil du få forelagt kopi av budjournal. Alle bud vil bli gjort kjent for kjøper og selger i handelen. Øvrige budgivere kan be om å få en kopi av budjournal i anonymisert form.
Budgivning utenfor forbrukerforhold
Budgivere oppfordres til å legge inn bud elektronisk. Dette gjøres på eiendommens hjemmeside på aktiv.no, ved å bruke Gi bud -knappen. Ved elektronisk budgivning, samtykker budgiver til elektronisk kommunikasjon. Det anbefales at hvert bud har en akseptfrist som muliggjør en forsvarlig avvikling av budrunden. Vi anbefaler minimum 30 minutter akseptfrist. Oppdragsgiver er oppfordret til å ikke ta imot bud direkte fra budgiver, men å henvise budgiver videre til megler. Megler kan ikke formidle bud med forbehold om at budet, eller forbehold i budet (hemmelige bud/hemmelige forbehold), skal holdes skjult for andre budgivere og interessenter.
Opplysningene i salgsoppgaven er godkjent av selger. Alle interessenter oppfordres imidlertid til grundig besiktigelse av eiendommen, gjerne sammen med fagmann før bud inngis.
Etter aksept av bud, vil eiendommens salgssum bli meddelt de som ev. måtte etterspørre denne. Eiendommens salgssum vil bli offentlig tilgjengelig ved overføring av hjemmel.
Ansvarlig megler
Erik Andersson
Aktiv Askim
Nærområdet
Annonseinformasjon
| FINN-kode | 427907190 |
|---|---|
| Sist endret | 04. feb. 2026 14:29 |
| Referanse | 1102250062 |
Annonsene kan være mangelfulle i forhold til lovpålagt opplysningsplikt. Før bindende avtale inngås oppfordres interessenter til å innhente komplett informasjon fra meglerforetaket, selger eller utleier.








