Bildegalleri

En unik mulighet for ny bolig i Br.Dal sentrum
Sentral boligtomt i Br.Dal sentrum
- Totalpris
- 1 090 115 kr
- Omkostninger
- 75 115 kr
Nøkkelinfo
Fasiliteter
Visning
Ta kontakt for å avtale visning.Beliggenhet
Avstander:
- Sentrum 300
- Buss/ Jernbane 300 til 700 m
- Barne- og ungdomskole 1,5 km
- Mjøsa og Mjøsparken 1,5- 2 km
Beskaffenhet
Omkostander:
Dok.avgift 25 375
Tinglysning 1 240
Salgskostnader 20 000
Målebrev 28.500
SUM 75 115
Det tas forbehold om prisendringer
Tomtekontrakt enebolig
Kjøpesummen skal betales i sin helhet ved overlevering av heftefritt skjøte. Hele kjøpesummen, inkludert omkostninger, skal betales til eier senest 4 uker etter avtalt tomtekjøp. Det er byggeplikt med HESTIA Bolig as som er din lokale forhandler av Lindehus.
Mulighetene!
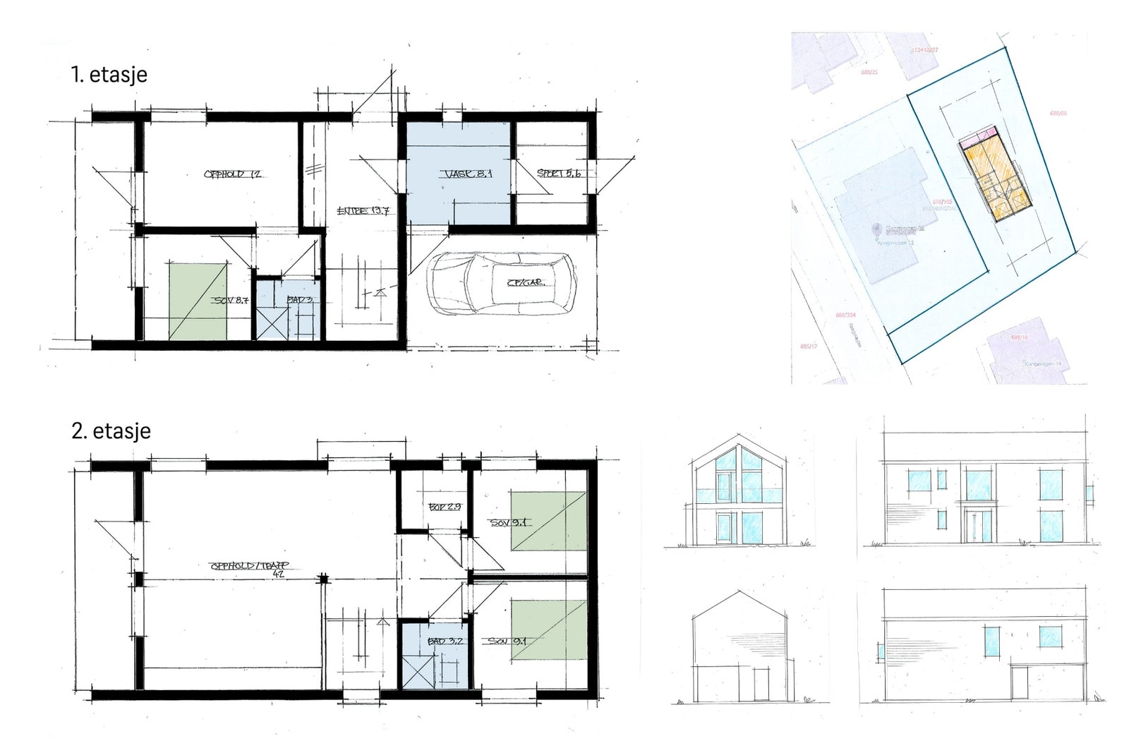
Hos Lindehus finner du et stort utvalg av ferdighus på våre hjemmesider. Der kan du utforske forskjellige boligtyper og finne inspirasjon til ditt nye hjem. Ønsker du noe unikt? Vi tilbyr også muligheten til å skreddersy boligen etter dine behov. Sammen med Lindehus sin arkitekt har vi skissert ut et forslag til bolig som vi mener passer godt til eiendommen med tanke på andkomst, solforhold og uteplasser.
Reguleringsforhold:
Denne eiendommen ligger innenfor den utdaterte reguleringsplanen for Brumunddal fra 1948. I kommuneplanens arealdel er området avsatt til boligformål, og i kulturminneplanen og kommuneplanens arealdel er bebyggelsen langs Kongsvegen vist som hensynssone for kulturmiljø. Den fradelte parsellen er i samsvar med alle krav til fortettingstomter i kommuneplanens arealdel.
Ta kontakt med oss om du ønsker en prat.

NORDBOLIG | Hestia Bolig as
Nærområdet
Annonseinformasjon
| FINN-kode | 425558198 |
|---|---|
| Sist endret | 05. sep. 2025 08:06 |
| Referanse | Kongsvegen 12 |
Annonsene kan være mangelfulle i forhold til lovpålagt opplysningsplikt. Før bindende avtale inngås oppfordres interessenter til å innhente komplett informasjon fra meglerforetaket, selger eller utleier.




