Bildegalleri

Velkommen til Fannestrandvegen!
Lergrovik- Sjønær tomt med tillatelse til arkitekttegnet, terrengtilpasset enebolig - Sjelden mulighet m/tilgang til sjø
- Totalpris
- 4 049 840 kr
- Omkostninger
- 99 840 kr
Nøkkelinfo
Fasiliteter
Om eiendommen
Nøkkelinformasjon
Oppdragsnummer
45251050
Betegnelse
Matrikkel gnr. 31, bnr. 732 i Molde kommune
Oppdragsansvarlig
PrivatMegleren Molde (Privatmegleren Molde AS) / Emil Hollingen
Eier
Jan Fredrik Aarøe og Mari Olga Fageraas Aarøe
Eiendomstype
Boligtomt
Eierform
Fast
Tomtetype/areal
Tomtetype eiet / 676,20 kvm i henhold til matrikkelutskrift.
Se vedlagt matrikkelkart for angivelse av tomtegrenser.
Dagens garasje som er oppført mellom 31/732 og 31/26 er under riving.
Det er ikke fremført strøm til tomten. Kjøper må selv bekoste strømtilførsel og tar risikoen for denne prosessen, herunder søknad, eventuelle privatrettslige forhold etc. Les mer om vei, vann og avløp under "Vei/vann/avløp".
Rammetillatelse for enebolig
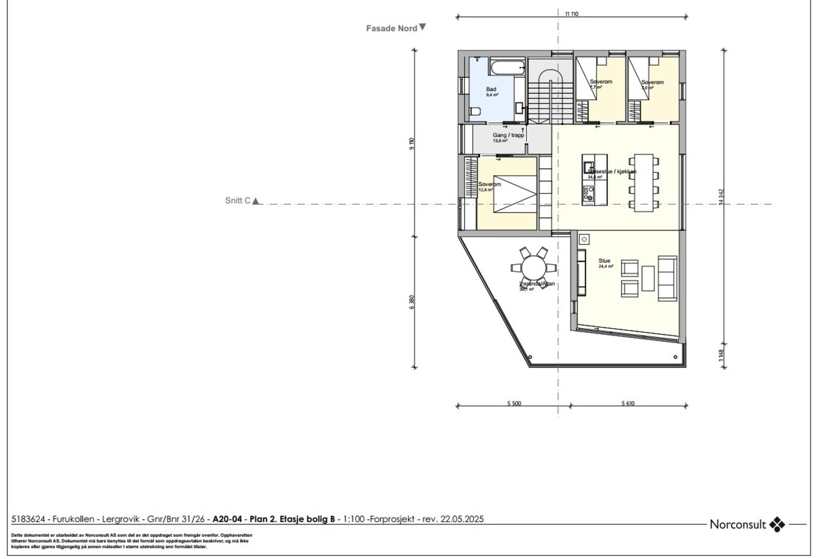
Det ble 05.05.2024 gitt rammetillatelse for oppføring av enebolig nr. 2.
Kjøper plikter å oppføre godkjent bygg iht til tillatelsen.
Plassering av tiltaket skal utføres i henhold til vedtaket og godkjente tegninger. For plassering gjelder toleransegrenser for områdetype 2, jf. Standarden "Plassering ogbeliggenhetskontroll.
Vedlegg til tillatelsen følger vedlagt salgsoppgaven.
Kjøper er selv ansvarlig for å søke om igangsettelsestillatelse for grunnarbeid og bygging, samt ansvarlig for å engasjere nødvendige ansvarlige søkere.
På nabotomten, 31/26, ble det gitt rammetillatelse for riving og oppføring av enebolig den 05.04.2024. Plassering av tiltaket følger av situasjonsplan datert 16.09.2022. Tegninger av fasade og snitt følger vedlagt salgsoppgaven.
Det ble gitt igangsettelsestillatelse for riving av tomannsbolig og grunnarbeider datert 09.04.2025.
Kjøper av tomten må påregne bygging med tilhørende ulemper i byggefasen.
Rettigheter til sjø
Eiendommen har adkomstrett til sjø langs den østre del av 31/26.
Eiendommen har rett til å legge ut et utfar for fortøyning av båt. Retten til utfar og fortøyng av båt til begrenses oppad til båt på maksimalt 25 fot. Den til enhver tid eier av 31/26 har rett til å bestemme plassering av utfar.
Overnevnte rettigheter vil bli tinglyst på eiendommens grunnboksblad. Se vedlagt erklæring til salgsoppgaven.
Beliggenhet
Beskrivelse av nærområdet/fasiliteter
Eiendommen ligger i umiddelbar nærhet til sjø. Eiendommen har tilgang til sjø og rett til å ha båt på utfar, ref. "Rettigheter til sjø".
Fra eiendommen er det gangavstand til det aller meste, herunder følgende:
- Kviltorp barneskole.
- Bergmo ungdomsskole.
- Katthola friluftsområde.
- Retiro - En populær og trivelig badeplass med strand, stort gressareal, stupetårn og treningsapparat
- Molde båthavnelag: Båthavn med ca. 930 båtplasser
- Gode bussforbindelser til Molde sentrum og til det nye sykehuset på Hjelset. Busstop i Kviltorpvegen og langs Fannestrandvegen.
- Kunstgressbane.
- Dagligvarebutikk med ferskvareavdeling og café.
- Molde lufthavn Årø.
Molde sentrum ligger kun en sykkeltur unna ca. 4 km vest for eiendommen.
Det nye sykehuset på Hjelset ligger ca. 15 km øst for eiendommen.
Eiendom / Hage
Adkomst
Se vedlagt kartskisse på høyre side i annonsen. Ved å trykke på kartet får du enkelt tilgang til en spesifisert reiserute fra din startdestinasjon og til eiendommen. På visningsdagen vil det bli satt opp visningsskilt fra PrivatMegleren.
Bebyggelse
Parkering / Garasje
Tomten må bearbeides iht vedlagt situasjonsplan datert 16.09.2022 mtp parkering. Iht vedlagt situasjonsplan er det avsatt areal til parkering på tomten. I tillegg er det parkering i fremtidig garasje iht vedlagte tegninger til rammetillatelsen.
Sammendrag av tilstandsrapport
Sammendrag av tilstandsrapport
Selger har i forbindelse med salget innhentet en tilstandsrapport fra med dato: .
Rapporten er en teknisk gjennomgang av boligen og angir eventuelle byggetekniske avvik, samt kostnadsoverslag for eventuelle oppgraderinger. Tilstandsrapporten og selgers egenerklæring er en del av denne salgsoppgaven og må leses nøye av interessenter før det legges inn bud. Kjøper anses kjent med de opplysninger som tydelig gis i en offentlig godkjent tilstandsrapport, og kan følgelig ikke reklamere på belyste forhold. Vi vil gjøre spesielt oppmerksom på viktigheten av å lese igjennom rapportens TGIU (tilstandsgrad ikke undersøkt), samt TG2 og TG3 som angir avvik fra normal slitasje, høy alder, bygningsdel som må utbedres, og lignende. Det følgende er hentet fra den bygningssakkyndiges beskrivelse av boligen:
TGIU:
TG2:
TG3:
Tinglyste rettigheter og forpliktelser
Servitutter/rettigheter
Kommunen har legalpant som sikkerhet for betaling av kommunale avgifter. Legalpant er pant som følger av loven, og som ikke tinglyses. Legalpant følger derfor eiendommen ved salg. På eiendommen kan det være tinglyst erklæringer som f eks rett for kommunentil å vedlikeholde rørsystemer for vann- og kloakk. Disse erklæringene vil følge eiendommen ved salg. Kontakt megler for nærmere informasjon. Øvrige sameiere har panterett i seksjonen for krav mot sameieren som følge av sameieforholdet, jf. eierseksjonsloven § 31. Pantekravet kan ikke overstige 2G (Folketrygdens grunnbeløp). Sameiet kan vedtektsfeste ytterligere panterett for sameiet. Vedtektsfestet pant tinglyses i seksjonene.
Følgende tinglyste servitutter følger eiendommen ved overskjøting til ny hjemmelshaver:
1946/605-1/60 ERKLÆRING/AVTALE
24.04.1946
Grensegangssak
GJELDER DENNE REGISTERENHETEN MED FLERE
Overført fra: KNR: 1506 GNR: 31 BNR: 26
-Det ble foretatt grenseregulering, hvor byttestenene har blitt flyttet 4 meter østover. Plassens areal blir altså tilsvarende bredere, idet tillegget utgjør 240 kvm.
2024/1941308-1/200 REGISTRERING AV GRUNN
12.09.2024 10:02
Denne matrikkelenhet utskilt fra: KNR: 1506 GNR: 31 BNR: 26
Utskrift av heftelser kan fås ved henvendelse til megler. Kjøpers bank vil få prioritet etter disse. For servitutter eldre enn fradelingsdato og eventuelle arealoppføringer som kan ha betydning for denne matrikkelenhet henvises det til avgivereiendommen. Ta kontakt med megler for mer informasjon.
Offentlige forhold
Vei / Vann / Avløp
Adkomst fra E39 via privat vei som tilhører gnr. 31, bnr. 13. Det foreligger ingen tinglyst veirett. Det må påregnes kostnad til bruk, vedlikehold og brøyting av vei på bnr. 13.
Videre adkomst i krysset mellom gnr. 31 bnr. 13, gnr. 31. bnr. 732 og gnr. 31 bnr. 26 deles mellom gnr. 31 bnr. 26 og gnr. 31 bnr. 732. Her har eiendommene felles ansvar og risiko for vedlikehold og brøyting. Se også vedlagt driftsavtale mellom bnr. 26 og bnr. 732 som regulerer drift og vedlikehold av felles infrattruktur. Kjøper aksepter denne avtalen ved kjøp av eiendommen.
Eiendommen er i dag ikke tilkoblet vann og avløp. Det er offentlig vann- og avløpsledninger som ligger ved tilgrensende offentlig vei. Se kart angående offentlig vann- og avløpsledninger. Kjøper må påregne å søke om påkobling på vann- og avløpsledninger og gebyr tilknyttet søkeprosess og påkobling.
Det er inngått avtale med eier av bnr. 32 vedrørende avløpsledning:
"Gbnr. 31/26 og 732 skal ha rett til å koble seg på, legge, ha liggende, drifte, vedlikeholde og reparere egen og felles privat stikkledning for avløp over gbnr. 31/32. Gbnr. 31/26 og 732 skal ha rett til å koble seg på gbnr. 31/32 sin eksisterende private avløpsledning via inntakskum nr. 29691 og bruke stikkledningen som går fra kummen, under RV-E39, og frem til det kommunale avløpssystemet nord for RV-E39.
Eier av gbnr. 31/32 forplikter seg til ikke å utføre arbeider som kan skade eller gjøre ledningen utilgjengelig. Dersom eier av gbnr. 31/32 ønsker å gjennomføre tiltak som gjør det nødvendig å beskytte eller flytte ledningen, plikter eier av gbnr. 31/32 i samarbeid med eier av gbnr. 31/26 og 732 å finne en løsning som fortsatt gir eiendommene tilknytning til ledning og kum.
Eier av gbnr. 31/26 og 732 forplikter seg ved arbeid på vei og med ledningen å sette terrenget i traseen i den stand det var før arbeidet ble satt i gang, så langt som mulig. Eier av gbnr. 31/26 og 732 forplikter seg til å erstatte mulige skader som anlegget eller driften av ledningen måtte påføre gbnr. 31/32.
Rettighetene gjelder for bruk av gbnr. 31/26 og 732 til boligformål, og skal gjelde for den som til enhver tid er eier av eiendommene. Rettigheten gjelder for én enebolig på bnr. 26 og én enebolig på bnr. 732.
Rettigheten kan ikke påberopes av eiere av nye eiendommer fradelt fra bnr. 26 eller 732, eller for flere boenheter på gbnr. 31/26 og 732. Rettigheten har en utstrekning som vist i vedlagt kaWskisse. Erklæringen tinglyses på egne og fremtidige eieres vegne som en heftelse på ovennevnte eiendommer og kan ikke slettes uten skriftlig samtykke fra Molde kommune med organisasjonsnummer 921.221.967."
Kjøper har kostnad og risiko for tilkobling av strøm og fiber.
Følgende vil bli tinglyst på eiendommens grunnboksblad før overtakelse:
Gnr. 31 bnr. 26 skal ha rett til å legge, ha liggende, drifte, vedlikeholde og reparere privat stikkledning for vann og avløp over gnr. 31 bnr. 732.
Gnr. 31 bnr. 26 skal ha rett til å legge, ha liggende, drifte, vedlikehold og reparere ledning for strøm og data over gnr. 31. bnr. 732.
Eier av gnr. 31 bnr. 732 forplikter seg til ikke å utføre tiltak på gnr. 31 bnr. 732 som kan skade eller gjøre ledningene utilgjengelige.
Verdi ved skattefastsetting
Ved førstegangs verdsetting skal formuesverdi av ubebygget tomt verken overstige 80 prosent av eiendommens kostpris eller 80 prosent av eiendommens markedsverdi.
Reguleringsforhold
Ifølge Kommuneplanens arealdel for Molde - del 1, 2015-2025 ligger eiendommen i område avsatt til boligbebyggelse. Eiendommen ligger også i hensynsonen "byggeforbud rundt veg, bane og flyplass" og "andre støysoner". Se vedlagt kommuneplankart og utdrag av kommuneplan.
Gjeldende reguleringsplan er "Tøndergård - Furukollen " med planid 1683, som trådte ikraft 22.07.1987. Eiendommen er regulert til villamessig boligbebyggelse. Et delareal av eiendommen på 5 kvm med formål om boligbebyggelse omfattes også av "E39 Kviltorp - Lergrovika " med planid.: 201127. Ikrafttredelse 20.03.2014.
Se vedlagt reguleringskart og bestemmelser med nærmere bestemmelser om utnytting av eiendommen.
Nærområde
Det er to godkjente byggesaker i eiendommens nærområde.
- 31/26 Fannestrandvegen 168: Opphør av vedtak om oppføring av enebolig 1 og ny tillatelse til oppføring av enebolig 1. Sak BYGG-22/01834.
- 31/7 Fannestrandvegen 158: Rammetillatelse for riving av eksisterende bolig og bygging av ny (2023). Sak BYGG-23/00164
For flere opplysninger om de ulike sakene, må kommunen kontaktes og det må bes om å få innsyn.
Økonomi
Andre løpende kostnader
Kommunale avgifter er ikke beregnet på eiendommen enda. Det må påregnes eiendomsskatt på tomten.
Ved bebyggelse og påkobling på kommunalt vann- og avløpsanlegg, må det påregnes gebyr til vann, avløp, renovasjon og eventuelt feiing og branntilsyn.
Oppgjør
Kjøpesum med tillegg av omkostninger skal være disponibelt på meglers klientkonto innen overtagelse. Normalt innebærer dette at fullt oppgjør må være innbetalt på meglers klientkonto senest to virkedager før avtalt overtagelsesdato. Eventuelle vilkår knyttet til innbetalingen, eksempelvis pantedokument som skal tinglyses til fordel for kjøpers bank, må være megler i hende i god tid før overtagelse kan finne sted.
Finansiering
Kontakt megler for avklaring av finansielle forhold, herunder lån til kjøp av eiendom. PrivatMegleren har avtale med Nordea om formidling av lån og andre finansielle tjenester. PrivatMegleren mottar godtgjørelse for dette.
Totale kostnader
Prisantydning kr 3 950 000,-
I tillegg til prisantydning og ev. fellesgjeld, påløper følgende omkostninger:
Dokumentavgift kr 98 750,00
Tingl.gebyr skjøte kr 545,00
Tingl.gebyr pantedokument kr 545,00
Totalpris inkl. omkostninger og ev. fellesgjeld kr 4 049 840,-.
Dokumentavgiften er på 2,5% av salgssum. Regnestykket over forutsetter salg til prisantydning.
Diverse
Konsesjon / Odel
Kjøper må fylle ut egenerklæring om konsesjonsfrihet. Egenerklæring må signeres av kjøper og bekreftes av kommunen for at skjøtet kan tinglyses.
Det hefter ikke odel på eiendommen.
Sikkerhetsstillelse
Alle eiendomsmeglingsforetak har lovpålagt forsikring av klientmidler begrenset oppad til kr 45 mill. Enkeltsaker er forsikret inntil kr 15 mill. Dersom kjøpers låneinstitusjon krever tilleggsforsikring ved omsetning over 15 millioner, må kjøper selv eller dennes låneinstitusjon dekke utgiftene forbundet med dette.
Øvrige kjøpsforhold
Boligkjøperforsikring
I produktark om boligkjøperforsikring bak i salgsoppgaven, finner du informasjon samt priser på produktene.
Overtagelse
Etter nærmere avtale. Angi ønsket overtagelse i forbindelse med budgivning.
Forsikring
Frem til overtagelse vil eiendommen være forsikret av selger. Det er kjøpers ansvar å påse at eiendommen er fullverdiforsikret etter overtagelse.
Budgiving
Bud kan legges inn trygt og enkelt via Privatmeglerens "gi bud-knapp" som finnes på Privatmegleren.no/eiendommens hjemmeside og i nettannonsen. Trykk "gi bud" og følg instruks med innlogging/opprettelse av bruker. For mer informasjon om budgivning, se "Viktig informasjon" i salgsoppgaven.
Lovanvendelse
Eiendommen selges etter reglene i avhendingsloven (avhl.). Eiendommen skal overleveres kjøper i tråd med det som er avtalt. Det er viktig at kjøper setter seg grundig inn i alle salgsdokumentene, herunder salgsoppgave, tilstandsrapport og selgers egenerklæring. Kjøper anses kjent med forhold som er tydelig beskrevet i salgsdokumentene. Forhold som er beskrevet i salgsdokumentene kan ikke påberopes som mangler. Dette gjelder uavhengig av om kjøper har lest dokumentene. Alle interessenter oppfordres til å undersøke eiendommen nøye, gjerne sammen med fagkyndig før bud inngis. Kjøper som velger å kjøpe usett kan ikke gjøre gjeldende som mangel noe han burde blitt kjent med ved undersøkelsen. Dersom det er behov for avklaringer, anbefaler vi at kjøper rådfører seg med eiendomsmegler eller en bygningssakyndig før det legges inn bud.
Hvis eiendommen ikke er i samsvar med det kjøperen må kunne forvente ut ifra type og synlig tilstand, kan det være en mangel. Det samme gjelder hvis det er holdt tilbake eller gitt uriktige opplysninger om eiendommen. Dette gjelder likevel bare dersom man kan gå ut i fra at det virket inn på avtalen at opplysningen ikke ble gitt, eller at feil opplysninger ikke ble rettet i tide på en tydelig måte. Det er kun mangel for arealavvik dersom vilkårene i avhl. § 3-3 første ledd er oppfylt. Ved beregning av et eventuelt prisavslag eller erstatning, må kjøper selv dekke tap/kostnader opptil et beløp på kr 10 000 (egenandel), jf. avhl. § 3-1 fjerde ledd.
Dersom kjøper ikke er forbruker selges eiendommen som den er , og selgers ansvar er da begrenset, jf. avhl. § 3-9, første ledd 2. punktum. Informasjon om kjøpers undersøkelsesplikt, herunder oppfordringen om å undersøke eiendommen nøye, gjelder også for kjøpere som ikke anses som forbrukere. Med forbrukerkjøp menes kjøp av eiendom når kjøperen er en fysisk person som ikke hovedsakelig handler som ledd i næringsvirksomhet.
Meglers vederlag og utlegg
Provisjon 1,500 % av salgssummen inkl. mva (minimum 55 000 inkl. mva)
Markedspakke digital: 16 900,00
Tilrettelegging: 12 500,00
Godtgjørelse oppgjør (Oppgjørskostnad): 5 900,00
Innhenting kommunale opplysninger fast eiendom: 3 000,00
Visninger/ overtagelse pr. stk.: 2 500,00
Innhenting grunnbok og servitutter: 1 500,00
Dersom eiendommen ikke blir solgt skal selger betale et rimelig honorar stort kr 19 000,- + dokumenterte utlegg og tillegg. Alle beløpene er inkl. mva.
Vedlegg til salgsoppgaven
Meglers verdivurdering
Kommunal informasjon;
- Matrikkelbrev/målebrev
- Kommunale avgifter
- Veg, Vann og avløp
- Reguleringskart og bestemmelser
- Evt. velforeningsdokumenter
Tinglyste erklæringer
Budskjema
Nyttige lenker
Privatmegleren Molde
Nærområdet
Annonseinformasjon
| FINN-kode | 411605138 |
|---|---|
| Sist endret | 12. des. 2025 12:58 |
| Referanse | 45251050 |
Annonsene kan være mangelfulle i forhold til lovpålagt opplysningsplikt. Før bindende avtale inngås oppfordres interessenter til å innhente komplett informasjon fra meglerforetaket, selger eller utleier.




















