Bildegalleri

Næringsbygg m/ rammetillatelse for rivning og oppføring av 4-mannsbolig. Fotograf Silje Holte / @frksuper
Næringsbygg m/ rammetillatelse for rivning og oppføring av 4-mannsbolig. Enkel adkomst. Kort vei til barnehage og skole.
- Kommunale avg.
- 999 kr per år
- Totalpris
- 2 153 590 kr
- Omkostninger
- 53 590 kr
Nøkkelinfo
Visning
Om eiendommen
Kort om eiendommen
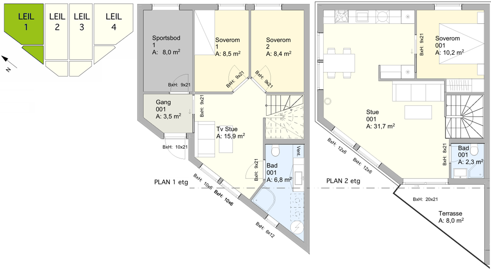
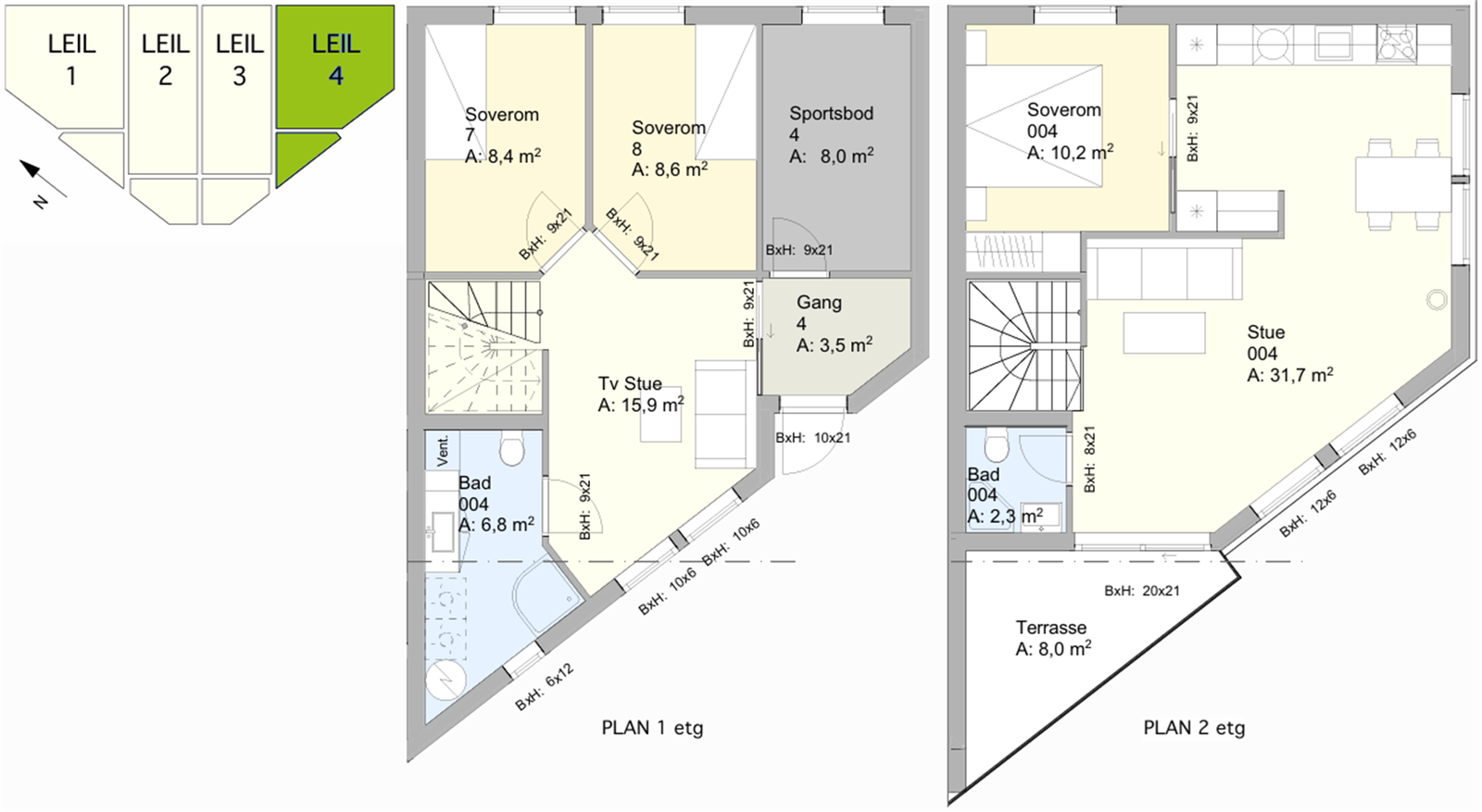
Eiendommen består i dag av et næringsbygg over en etasje med tilhørende stor parkering. Samlet areal her er 336 m² BRA-I.
Det foreligger imidlertid rammetillatelse datert 27.05.2024, til riving av eksisterende bygg og oppføring av nytt bygg i form av 4-mannsbolig på Gnr.30, Bnr.80.
Tiltaket godkjennes i de tiltaksklasser som kommer frem av gjennomføringsplan datert 18.03.2022, versjon nummer 1.
Det er gitt dispensasjon fra punkt 7-1- avstand til fylkesveg for riving av eksisterende bygg og oppføring av nytt bygg.
Dispensasjonen er gitt på vilkår. Tiltaket må være lovlig satt i gang innen tre år, ellers faller tillatelsen bort.
Beliggenhet
Eiendommen ligger sentralt til på Kjerrgarden. Her er det kort gangavstand til barnehage og barneskole. Kort avstand også til dagligvarebutikk, post i butikk, frisør, legekontor osv. på Fromritoppen handlesenter.
Ellers er område landlig med kort avstand til sjø og flotte turområder. Eiendommen har også gode solforhold.
Adkomst
Se Google maps - det er enkelt å finne frem i kartet.
Tomten
Eiertomt på 1967 kvm.
Eiendommen består i dag av et næringsbygg over en etasje med tilhørende stor parkering. Samlet areal her er 336 m² BRA-I.
Det foreligger imidlertid rammetillatelse datert 27.05.2024, til riving av eksisterende bygg og oppføring av nytt bygg på Gnr.30, Bnr.80.
Tiltaket godkjennes i de tiltaksklasser som kommer frem av gjennomføringsplan datert 18.03.2022, versjon nummer 1.
Det er gitt dispensasjon fra punkt 7-1- avstand til fylkesveg for riving av eksisterende bygg og oppføring av nytt bygg.
Dispensasjonen er gitt på vilkår.
Tiltaket må være lovlig satt i gang innen tre år regnet fra 27.05.2024, ellers faller tillatelsen bort. Kostnad ved eventuell rivning av eksisterende bygg er kjøpers ansvar og risiko.
Det er foretatt en tilstandsrapport på næringsbygget slik det foreligger i dag, denne er datert 22.05.2025 og utført av Jarle Johan Larsen og er vedlagt i salgsoppgave. Næringsbygget har behov for omfattende rehabilitering, og det oppfordres til å sette seg grundig inn i vedlagte tilstandsrapport dersom eiendommen skal beholdes som næringseiendom.
Vei, vann og avløp
Tomten grenser til kommunal vei. Eiendommen har vannforsyning fra en liten brønn.
Vannledning fra offentlig er ført inn i bygget, men ikke tilkoblet. Privat avløp, til septiktank.
Avløpsledning til offentlig er ført inn i bygget, men ikke tilkoblet.
Eiendommens utgifter
Kommunale avgifter er kr 999,- for inneværende år. (prognose). I dette inngår tilsynsgebyr avløp for kr 203,- og eiendomsskatt næring kr 796,-
Tinglyste heftelser og rettigheter
Eiendommen overdras fri for pengeheftelser.
Eiendommen har ingen tinglyste heftelser og ingen tinglyste rettigheter.
Eiendommen er seksjonert 02.07.2010, dagboknr 493318
SNR: 1
Formål: Næring
Sameiebrøk: 2/3
SNR: 2
Formål: Næring
Sameiebrøk: 1/3
Seksjoneringen er opphevet 28.01.2020, dagboknr 2036425
Reguleringsbestemmelser
Eiendommen ligger i et uregulert område, men er i kommuneplan datert 13.12.2012 er avsatt til: Boligbebyggelse, nåværende.
Delareal på 14 kvm er avsatt til veg og 308 kvm er avsatt til LNFR.
Kommuneplaner under arbeid:
ID 9002
Navn: Kommuneplanens arealdel 2024-2036
Status: Planforslag
Plantype: Kommuneplanens arealdel
Reguleringsplaner under arbeid i nærheten (50 meter):
Ingen reguleringsplaner under arbeid innenfor 50 meter fra eiendommen.
Utsnitt av plan med tilhørende bestemmelser kan fås ved henvendelse til megler.
Lovanvendelse
Generelle bestemmelser
Salgsoppgaven er basert på de opplysningene selger har gitt til megler, den bygningssakyndiges tilstandsrapport, samt opplysninger innhentet fra kommunen, Kartverket og andre tilgjengelige kilder. Det er viktig at kjøper setter seg grundig inn i alle salgsdokumentene, herunder salgsoppgave, tilstandsrapport og selgers egenerklæring. Kjøper anses kjent med forhold som er tydelig beskrevet i salgsdokumentene, og slike forhold kan ikke påberopes som mangler. Dette gjelder uavhengig av om kjøper har lest dokumentene. Alle interessenter oppfordres til å undersøke eiendommen nøye, gjerne sammen med fagkyndig før bud inngis. Kjøper som velger å kjøpe usett kan ikke gjøre gjeldende som mangel noe han burde blitt kjent med ved undersøkelsen.
Dersom det er behov for avklaringer, anbefaler vi at interessenter rådfører seg med eiendomsmegler eller egne rådgivere før det legges inn bud.
En bolig som har blitt brukt i en viss tid, har vanligvis blitt utsatt for slitasje og skader kan ha oppstått. Slik bruksslitasje må kjøper regne med, og det kan avdekkes enkelte forhold etter overtakelse som nødvendiggjør utbedringer. Normal slitasje og skader som nødvendiggjør utbedring, er innenfor hva kjøper må forvente og vil ikke utgjøre en mangel.
Kjøper og selgers rettigheter og plikter reguleres av avtalen mellom partene, samt informasjonen som har vært tilgjengelig for kjøperen i forbindelse med handelen. Avtalen utfylles av avhendingsloven, og det gjelder ulike avtalevilkår avhengig av om kjøper er forbrukerkjøper eller ikke. Dette er nærmere beskrevet nedenfor.
På grunn av ulike avtalevilkår kan selger vurdere bud fra en som ikke er forbruker, ulikt fra en forbrukers bud. Dersom kjøper ikke er forbruker, er selger sitt mulige mangelsansvar begrenset fordi eiendommen selges "som den er". Selger kan ikke ta som den er - forbehold overfor en forbrukerkjøper. Selv et lavere bud fra en som ikke er forbruker kan foretrekkes fordi begrensningen i mulig mangelsansvar kan ha egenverdi for selger. Selger står fritt til å forkaste eller akseptere ethvert bud, og er for eksempel ikke forpliktet til å akseptere høyeste bud.
Budgiver skal i budskjema avgi egenerklæring om budgiver er forbruker eller næringsdrivende/ person som hovedsakelig handler som ledd i næringsvirksomhet. Budgivere får informasjon dersom andre bud er inngitt av en som ikke er forbruker.
Forbrukerkjøp - definisjon
Med forbrukerkjøp menes kjøp av eiendom når kjøperen er en fysisk person som ikke hovedsakelig handler som ledd i næringsvirksomhet.
Forbruker avtalevilkår
Eiendommen har en mangel dersom den ikke er i samsvar med kravene som følger av avtalen, eller det foreligger brudd på bestemmelsene i avhendingsloven §§ 3-2 til 3-8. Hvis eiendommen ikke er i samsvar med det kjøperen må kunne forvente ut ifra alder, type og synlig tilstand, kan det være grunnlag for mangelskrav. Det samme gjelder hvis det er holdt tilbake eller gitt uriktige opplysninger om eiendommen. Dette gjelder likevel bare dersom man kan gå ut ifra at det virket inn på avtalen at opplysningen ikke ble gitt eller at mangelskravet ikke blir rettet i tide på en tydelig måte.
Boligen kan ha en mangel etter avhendingsloven § 3-3 andre ledd, dersom det er avvik mellom opplyst og faktisk innvendig areal, forutsatt at avviket er på 2% eller mer og minimum 1 kvm.
Ved beregning av et eventuelt prisavslag eller erstatning må kjøper selv dekke tap/kostnader opptil et beløp på kr 10 000 (egenandel).
Ikke-forbruker (næringsdrivende) definisjon
Hvis kjøper er en juridisk person, eller en fysisk person som hovedsakelig handler som ledd i næringsvirksomhet, vil kjøpet ikke anses som et forbrukerkjøp.
Ikke-forbruker avtalevilkår
Eiendommen har en mangel dersom den ikke er i samsvar med kravene som følger av avtalen.
Eiendommen selges som den er , og selgers ansvar utover det konkret avtalte er da begrenset etter avhendingsloven § 3-9, første ledd andre setning.
Avhendingsloven § 3-3 andre ledd fravikes, og hvorvidt boligens arealsvikt utgjør en mangel vurderes etter avhendingsloven § 3-8.
Informasjon om kjøpers undersøkelsesplikt, herunder oppfordringen om å undersøke eiendommen nøye, gjelder også for kjøpere som ikke anses som forbrukere.
Det forutsettes at hjemmel overføres til kjøper. Hvis kjøper ikke ønsker hjemmelsoverføring av eiendommen, må det tas forbehold om dette i budet.
Nyttige lenker
Krogsveen Askøy
Nærområdet
Annonseinformasjon
| FINN-kode | 410252658 |
|---|---|
| Sist endret | 20. feb. 2026 09:29 |
| Referanse | KR75.2533 |
Annonsene kan være mangelfulle i forhold til lovpålagt opplysningsplikt. Før bindende avtale inngås oppfordres interessenter til å innhente komplett informasjon fra meglerforetaket, selger eller utleier.




















