Bildegalleri

Gravdalstunet, Gravdal, Lofoten
- Totalpris
- 1 486 750 kr
- Omkostninger
- 36 750 kr
Nøkkelinfo
Visning
Ta kontakt for å avtale visning.Adkomst
Fra Leknes kjører du retning Gravdal. Når du kommer til Gravdal er første innkjøring til høyre Industriveien. Følg denne til du får Haugsongelen på din høyre side like før krysset.
Beliggenhet
Tomten ligger sentralt plassert på Gravdal. Her har du en fin og barnevennlig beliggenhet med naturen som en av de nærmeste naboer. Er du opptatt av mosjon og friluftsliv, så kan du utfolde deg i umiddelbar nærhet. Boligfeltet ligger i fint terreng for gåturer om sommeren og ski/ake-turer om vinteren.
Samtidig kort vei til Nordlandssykehuset Lofoten, skole, barnehage, fotballbane, butikk, café og noe industri.
Kommunesentret i Vestvågøy kommune er Leknes, som ligger ca. 5 km øst for Gravdal. Her er flyplass og flere handel- og servicetilbud.
Beskaffenhet
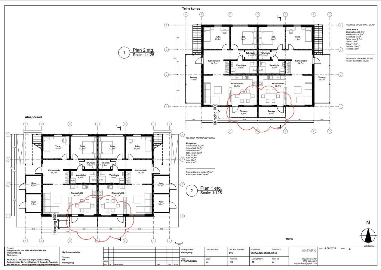
Søknaden omfatter oppføring av frittliggende bolighus i to etasjer med fire boenheter samt tilhørende carport og biloppstillingsplasser på gnr 2 bnr 76
FORZA EIENDOM AS
Nærområdet
Annonsene kan være mangelfulle i forhold til lovpålagt opplysningsplikt. Før bindende avtale inngås oppfordres interessenter til å innhente komplett informasjon fra meglerforetaket, selger eller utleier.









