Bildegalleri

Peter Rønning v/DNB Eiendom har gleden av å presentere Utgårdsveien 42B!
Solrik boligtomt på ca. 688 kvm med ferdig støpt plate | Beliggende v/Utgårdskilen | Garasjeplass i dobbel garasje
- Totalpris
- 1 692 340 kr
- Omkostninger
- 42 340 kr
Nøkkelinfo
Visning
Om eiendommen
Beskrivelse
Utgårdsveien 42B er en ubebygget tomt med en isolert garasje og støpt såle. Nærhet til Hvalers vakre sjølandskap, inkludert holmer og skjær, samt flotte tur- og rekreasjonsmuligheter. I tillegg er det kort vei til diverse butikker, apotek, fiskehandler og restauranter.
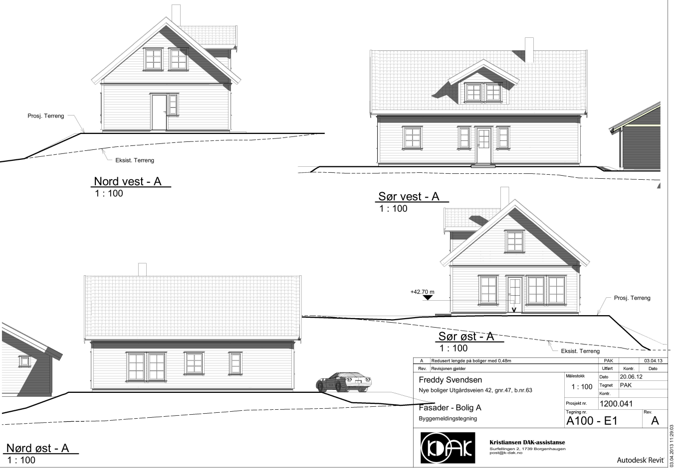
Tomten er allerede klargjort. Pælet til fjell, armering, isolasjon og betongarbeider som ble utført i 2013. Det er viktig å merke seg at kjøper må søke på nytt om byggetillatelse, da den forrige søknaden er utløpt. Opprinnelige søknaden ble sendt inn sammen med nybygg i 42A, som to identiske boliger med felles garasje.Tomten har en utnyttelsesgrad på 20% (%BYA) i henhold til reguleringsplanen.
V/A, bredbånd og elektrisk arbeid er lagt frem til toppen av betongplaten.
Kontakt megler ved evt. spørsmål.
Byggemåte
ENEBOLIG
Innvendig:
Etasjeskille/gulv mot grunn: Gulv mot grunn av betongdekke.
Tomteforhold:
Byggegrunn: Det er byggegrunn av leirholdige masser.
Eier opplyser at bygningen er plassert på pæler.
Fuktsikring og drenering: Dreneringen er fra 2013.
Grunnmur og fundamenter: Bygningen har betonggrunnmur.
Fundamentering bestående av pæler ned i bakken.
Terrengforhold: Terreng bestående av gruset gårdsplass. Plenarealer rundt boligen. Tomten er flat rundt boligen, for øvrig skrånende terreng med fjell i dagen på én side.
Utvendige vann- og avløpsledninger: Utvendige avløpsrør er av plast. Utvendige vannledninger er av plast (PEL).
Det er offentlig avløp og vannforsyning via private stikkledninger.
GARASJE
Utvendig:
Taktekking: Taktekkingen er av betongtakstein. Taket er besiktiget fra bakkenivå.
Nedløp og beslag: Takrenner og nedløp i metall, men utkast på tomten.
Øvrige beslag i metall.
Veggkonstruksjon: Veggene har bindingsverkskonstruksjon fra byggeår. Fasade/kledning har liggende bordkledning.
Yttervegger er isolert.
Kommentar:
Det er stedvis dårlig musetetting bak trekledningen.
Takkonstruksjon/Loft: Takkonstruksjon i treverk, type saltak.
Vinduer: Bygningen har vinduer med tolags isolerglass, montert i garasjerom og loft.
Dører: Garasjerommet har adkomst via leddport.
Gangadkomst til garasjerommet via isolert ytterdør med glassfelt.
Innvendig:
Etasjeskille/gulv mot grunn: Støpt betongdekke i garasjerommet.
Tomteforhold:
Byggegrunn: Det er byggegrunn av leirholdige masser.
Eier opplyser at bygningen er plassert på pæler.
Grunnmur og fundamenter: Bygningen har betonggrunnmur.
Fundamentering bestående av pæler ned i bakken.
TG2
Elektrisk anlegg
Generell kommentar: Tilstandsgrad 2 er satt i sammenheng med manglende fremvist dokumentasjon.
TGIU
Branntekniske forhold
Røykvarsler montert.
Beliggenhet
Landlig og solrikt beliggende i idylliske omgivelser like ved Utgårdskilen på Vesterøy. Her er det umiddelbar nærhet til Hvalers vakre sjølandskap med alle sine holmer og skjær, samt flotte tur- /rekreasjonsmuligheter. Badeplass fra blankskurte svaberg og badeplattform m/ stupebrett i Utgårdskilen.
Kort avstand (ca. 5 km.) til diverse butikker, apotek, fiskehandler og restaurant ved Ødegården (innkjøringen til Vesterøy), eller gangavstand til Utgårdskilen med fiskebutikk og mulighet for forfriskninger. Ca. 10 min til populære Kuvauen og Guttormsvauen med bade-,fiske- og flotte turområder. 1,4 km. til barnehage og barneskole, 9,5 km. til ungdomsskole på Hvaler og 18,8 km. til videregående skole.
Skjærhalden, den ytterste av øyene, er administrasjonssenter for Hvaler kommune og har både et mangfold av butikker, vinmonopol, marina, gjestehavn og restauranter. Herfra er det også fergesamband til Nordre og Søndre Sandøy, Herføl og Lauer samt rutebåt til Strømstad i Sverige om du ønsker en tur i Kosterfjorden.
Ca. 25 min til Fredrikstad sentrum med bil.
Lovanvendelse
Generelle bestemmelser
Salgsoppgaven er basert på de opplysningene selger har gitt til megler, den bygningssakyndiges tilstandsrapport, samt opplysninger innhentet fra kommunen, Kartverket og andre tilgjengelige kilder. Det er viktig at kjøper setter seg grundig inn i alle salgsdokumentene, herunder salgsoppgave, tilstandsrapport og selgers egenerklæring. Kjøper anses kjent med forhold som er tydelig beskrevet i salgsdokumentene, og slike forhold kan ikke påberopes som mangler. Dette gjelder uavhengig av om kjøper har lest dokumentene. Alle interessenter oppfordres til å undersøke eiendommen nøye, gjerne sammen med fagkyndig før bud inngis. Kjøper som velger å kjøpe usett kan ikke gjøre gjeldende som mangel noe han burde blitt kjent med ved undersøkelsen.
Dersom det er behov for avklaringer, anbefaler vi at interessenter rådfører seg med eiendomsmegler eller egne rådgivere før det legges inn bud.
Kjøper og selgers rettigheter og plikter reguleres av avtalen mellom partene, samt informasjonen som har vært tilgjengelig for kjøperen i forbindelse med handelen. Avtalen utfylles av avhendingsloven, og det gjelder ulike avtalevilkår avhengig av om kjøper er forbrukerkjøper eller ikke. Dette er nærmere beskrevet nedenfor.
På grunn av ulike avtalevilkår kan selger vurdere bud fra en som ikke er forbruker, ulikt fra en forbrukers bud. Dersom kjøper ikke er forbruker, er selger sitt mulige mangelsansvar begrenset fordi eiendommen selges "som den er". Selger kan ikke ta som den er forbehold ovenfor en forbrukerkjøper. Selv et lavere bud fra en som ikke er forbruker kan foretrekkes fordi begrensningen i mulig mangelsansvar kan ha egenverdi for selger. Selger står fritt til å forkaste eller akseptere ethvert bud, og er for eksempel ikke forpliktet til å akseptere høyeste bud.
Budgiver skal i budskjema avgi egenerklæring om budgiver er forbruker eller næringsdrivende/ person som hovedsakelig handler som ledd i næringsvirksomhet. Budgivere får informasjon dersom andre bud er inngitt av en som ikke er forbruker.
Forbrukerkjøp - definisjon
Med forbrukerkjøp menes kjøp av eiendom når kjøperen er en fysisk person som ikke hovedsakelig handler som ledd i næringsvirksomhet.
Forbruker avtalevilkår
Eiendommen har en mangel dersom den ikke er i samsvar med kravene som følger av avtalen, eller det foreligger brudd på bestemmelsene i avhendingsloven §§ 3-2 til 3-8. Hvis eiendommen ikke er i samsvar med det kjøperen må kunne forvente ut ifra alder, type og synlig tilstand, kan det være grunnlag for mangelskrav. Det samme gjelder hvis det er holdt tilbake eller gitt uriktige opplysninger om eiendommen. Dette gjelder likevel bare dersom man kan gå ut ifra at det virket inn på avtalen at opplysningen ikke ble gitt eller at uriktige opplysninger ikke blir rettet i tide på en tydelig måte.
Dersom eiendommen har et mindre grunnareal (tomt) enn kjøperen har regnet med, er det likevel ikke en mangel hvis ikke arealet er vesentlig mindre enn det som fremkommer av salgsdokumentene, jf. avhl-3-3.
Ved beregning av et eventuelt prisavslag eller erstatning må kjøper selv dekke tap/kostnader opptil et beløp på kr 10 000 (egenandel).
Ikke-forbruker (næringsdrivende) definisjon
Hvis kjøper er en juridisk person, eller en fysisk person som hovedsakelig handler som ledd i næringsvirksomhet, vil kjøpet ikke anses som et forbrukerkjøp.
Ikke-forbruker avtalevilkår
Eiendommen har en mangel dersom den ikke er i samsvar med kravene som følger av avtalen. Eiendommen selges som den er , og selgers ansvar utover det konkret avtalte er da begrenset etter avhendingsloven § 3-9, første ledd andre setning.
Informasjon om kjøpers undersøkelsesplikt, herunder oppfordringen om å undersøke eiendommen nøye, gjelder også for kjøpere som ikke anses som forbrukere.
Adkomst
Tomten merkes med til salgs -plakat fra DNB Eiendom.
Åpner du annonsen på finn.no eller dnbeiendom.no, finner du en kartskisse. Ved å trykke på kartet får du enkelt tilgang til en reiserute fra din startdestinasjon til eiendommen.
Budgivning
Bud kan legges inn på nettannonsen via "gi bud"- lenken. Ved elektronisk budgivning kan bud legges inn trygt og enkelt med Bank-ID. Megler kan også kontaktes for tilsendelse av budskjema. Budskjema finnes også i salgsoppgaven.
All budgivning må foregå skriftlig. Kontakt megler dersom det er behov for bistand for å gi bud.
Tomt
Boligen ligger på felles eiet tomt, og deles med to andre boliger. Den naturlige del av tomten som ligger rundt boligen er 688 kvm og er opparbeidet med plenarealer og noen busker og trær.
Denne seksjon har tomtareal ihht vedtekter på 668 kvm.
Diverse
Tomten selges som en seksjon og det er kjøpers ansvar mht til å søke kommunen for byggemelding, godkjenning, tilkobling til vann og avløp samt tilkobling til strøm etc. og alle kostnader forbundet med dette.
Det gjøres oppmerksom på at kjøper må søkes på nytt da forrige søknad nok er utgått. Søknaden ble ifølge eier søkt sammen med nybygg i 42A som er ferdigstilt, og det mangler ferdigattest på begge eiendommene, da denne eiendommen må ferdigstilles for å få ferdigattest.
Vedtekter i sameiet er vedlagt i salgsoppgaven.
Omkostninger
Mange kjøpere har anledning til å tegne boligkjøperforsikring. Vedlagt i salgsoppgaven følger informasjon om Boligkjøperforsikring fra HELP Forsikring AS. Boligkjøperforsikring er en rettshjelpsforsikring som gir trygghet og profesjonell juridisk hjelp dersom det oppdages uventede feil eller mangler ved boligen de neste fem årene. Les mer om Boligkjøperforsikring i vedlagte materiell eller på help.no. Det gjøres oppmerksom på at meglerforetaket mottar kr 4 700,- / 5 200,- / 6 800,- i kostnadsgodtgjørelse for Boligkjøperforsikring (avhengig av boligtype).
Ansvarlig megler
Peter Rønning
Regulering
Nyttige lenker
Nærområdet
Annonseinformasjon
| FINN-kode | 404145316 |
|---|---|
| Sist endret | 28. jan. 2026 11:04 |
| Referanse | 203250150 |
Annonsene kan være mangelfulle i forhold til lovpålagt opplysningsplikt. Før bindende avtale inngås oppfordres interessenter til å innhente komplett informasjon fra meglerforetaket, selger eller utleier.














