Bildegalleri

Kolsås - NY PRIS! Stor, solrik tomt i attraktivt bomiljø på Kolsås - 1.244 kvm
- Totalpris
- 7 688 700 kr
- Omkostninger
- 188 700 kr
Nøkkelinfo
Fasiliteter
Visning
Ta kontakt for å avtale visning.Beliggenhet
Beskrivelse
Solrik utsiktstomt til salgs i attraktivt og etablert bomiljø på Kolsås.
Ta kontakt med Maren Hulbak på tlf.: 954 71 821/ mail: maren.hulbak@gmail.com for visning .
Beliggenhet
Meget attraktivt beliggende eiendom i hyggelig bomiljø på Kolsås. Tomten ligger fint og solrikt til ved foten av Kolsåstoppen. Her har du marka med Kolsås-Dælivann landskapsvernområde i umiddelbar nærhet, og Bærum idrettspark med ny svømmehall, flerbrukshall, ishall og en mengde utendørsanlegg i gangavstand fra boligen.
Det er gangavstand til barneskole, ungdomsskole og videregående skoler.
Området har gode forbindelser med offentlig kommunikasjon. Det er kun 5-8 minutters gangavstand til Toppåsveien busstasjon i Brynsveien og Hauger T-banestasjon.
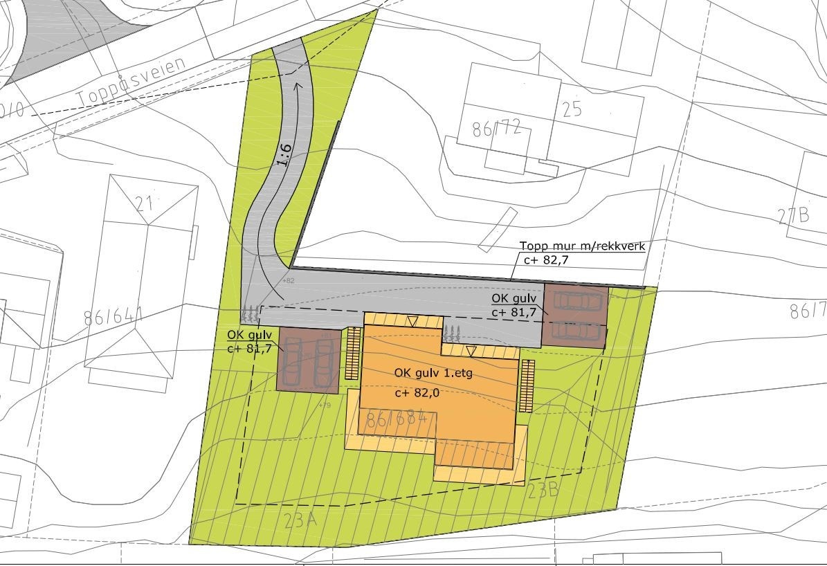
Utviklingsmulighet
Tomten på 1 244 kvm ble i 1988 fradelt for at det skulle bygges en tomannsbolig på den.
Tomten er uregulert, og det er kommuneplanens arealdel (KPA) som gjelder. Ihht. KPA (§ 3.1) er det krav til reguleringsplan for bygging av tomannsbolig. Selger har søkt om dispensasjon fra plankravet, men fått avslag. Selger som har hatt en intensjon om å bygge en tomannsbolig har derfor avbrutt prosessen. (Søknad er utarbeidet og oversendt kommunen, men ikke behandlet ferdig grunnet krav til reguleringsplan).
KPA har en retningslinje at tomter for tomannsboliger skal være på minimum 1 400 kvm, og ikke 1 200 kvm slik det var da tomten ble fradelt i 1988.
På nåværende tidspunkt ligger naboeiendommen (Toppåsveien 27a) også ute til salgs. Til informasjon vil disse to eiendommene til sammen utgjøre 2 516 kvm, noe som kan være tilstrekkelig for utvikling av tre eneboliger.
Adkomst
Se vedlagt kartskisse i annonsen. Ved å trykke på kartet får du enkelt tilgang til en spesifisert reiserute fra ønsket startsted til den aktuelle boligen.
Skole/barnehage
Det er et godt tilbud av skoler og barnehager i kort avstand fra tomten. Dersom skole- og barnehagetilbud er av betydning for handelen, må interessenten selv sjekke kapasitet med barnehagekontor og skolekontor for det aktuelle området.
Totalpris inkl. omkostninger
kr 7 500 000,- (Prisantydning)
Omkostninger:
kr 200,- (Pantattest kjøper)
kr 500,- (Tingl.gebyr pantedokument)
kr 500,- (Tingl.gebyr skjøte)
kr 187 500,- (Dokumentavgift (forutsatt salgssum: 8 500 000,-))
--------------------------------------------------------
kr 188 700,- (Omkostninger totalt ved prisantydning)
--------------------------------------------------------
kr 7 688 700,- (Totalpris inkl omkostninger)
Regulering
Mjøsli AS
Nærområdet
Annonsene kan være mangelfulle i forhold til lovpålagt opplysningsplikt. Før bindende avtale inngås oppfordres interessenter til å innhente komplett informasjon fra meglerforetaket, selger eller utleier.














