Bildegalleri

BRANTHAUGEN- Store og solrike tomter i Døsvika, Opphaug. Sjelden mulighet! Bare 3 av 13 tomter igjen!
- Omkostninger
- 23 590 kr
Nøkkelinfo
Om eiendommen
Generell informasjon om prosjektet
________________________________________________________________________
Beskrivelse av prosjektet
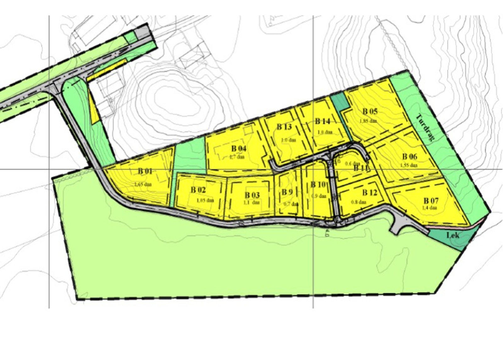
Tomtefeltet består av totalt 13 tomter.
Nå er det bare 3 tomter igjen!
Beliggenhet
Velkommen til vakre Opphaug og Døsvika!
Har du lenge vært på utkikk etter en tomt utenfor Brekstad sentrum?
Bort fra flystøy og tette nabolag.
Ja, nå har du endelig muligheten til å sikre deg den tomta du alltid har drømt om.
For det blir ikke bedre enn dette!
Store gode og romslige tomter hvor sola alltid skinner så lenge den er oppe.
Kort vei til både butikk, skole, barnehage og marina m.m.
Her får du tomter i mange forskjellige størrelser. Fra 600 kvm og helt opp til den største som er på over 1,6 mål.
Dette er en mangelvare i markedet i dag. Men nå er de her!
Eiendommen ligger i et nyere boligfelt i Døsvika på Opphaug. Boligfeltet har store gode tomter og man slipper å ha naboene helt tett innpå seg. Her kan man velge om man vil trekke seg litt tilbake, være for seg selv. Eller om man vil ut å møte naboene. Valget er ditt. Tomtene vil være meget solrike. I tillegg til at området er veldig lunt til å være på Ørlandet.
Dette er et koselig, stille og rolig område som passer perfekt til familier.
Her har du kort vei til alt av fasiliteter på Opphaug.
Brekstad kan by på alt av tjenester og servicetilbud. Nyere kulturhus med blant annet kino og bibliotek. Her har man tilbud for store og små. Døsvik småbåthavn og marina ligger som er et ypperlig utgangspunkt for båt - og sjøliv.
Kun en kort kjøretur unna har man Austrått som kan by på rekreasjonsmuligheter, kulturminner og en moderne 9-hulls golfbane. Her er det også småbåthavn, camping og en flott badestrand.
Nærmeste barnehage er Læringeverkstedet Barnehage (ca 1 km) for barn fra 0-6 år.
Opphaug skole (ca 1,5km) med 1 til 7. klasse. Ørland Ungdomsskole ligger på Brekstad ca 6 km unna. Og Fosen videregående Skole ligger i Bjugn ca 8 km unna. Skolebussen kjører like ved på fylkesvei 251.
Ørland er en kommune som virkelig er i medvind for tiden. Ørland er hovedbase for Luftforsvarets nye kampfly. I denne sammenheng skal det investeres betydelige beløp både på og utenfor flybasen. Ørland er en kommune hvor det investeres tungt med tanke på fremtidig tilflytning og vekst. I Ørland er det godt å bo, og det kommer bare til å bli enda bedre.
Parkering
Tomter
B14:
Pris kr 900 000,-
B13:
Pris kr 900 000,-
B 9/10:
Pris kr 990 000,-
Nyttige lenker
Nylander & Partners Fosen
Nærområdet
Annonseinformasjon
| FINN-kode | 400619132 |
|---|---|
| Sist endret | 10. okt. 2025 06:51 |
| Referanse | 69250029 |
Annonsene kan være mangelfulle i forhold til lovpålagt opplysningsplikt. Før bindende avtale inngås oppfordres interessenter til å innhente komplett informasjon fra meglerforetaket, selger eller utleier.












