Bildegalleri

SLEPENDEN: Tomt på over ett mål med rammetillatelse for oppføring av spektakulær enebolig
- Totalpris
- 2 288 500 kr
- Omkostninger
- 88 500 kr
Nøkkelinfo
Om eiendommen
Kort om eiendommen
Ubebygd utsiktstomt på Slependen med rammetillatelse for oppføring av en lekker enebolig.
- Spektakulær enebolig
- Heis direkte fra garasje
- Utsikt
- Takterrasse
- Gode solforhold
- Det er gitt igangsettelstillatelse 1 for grunnarbeider
Intro Ark har blitt engasjert som interiørarkitekt, og det er bare å ta opp tråen igjen med de for videre prosjektering av interiøret.
Beliggenhet
Eiendommen ligger i et attraktivt og barnevennlig boligområde på et høydedrag på Slependen.
Nærhet til et rikt mangfold av fritids- og rekreasjonstilbudet med fotballøkker, idrettshall, akebakker, sandvolleyballbane og skøytebane. Jardar idrettslag tilbyr allidrett, håndball, fotball, langrenn og hopp. Videre finnes det fine turmuligheter i Tanumskogen og det er kort vei til Vestmarka hvor det er milevis med tur- og skiløyper. Bjørnsvika med bade- og båtmuligheter samt Kalvøya og Kadettangen ligger i kort avstand fra boligen.
Dagligvarehandelen gjøres på Meny Slependen som ligger i gåavstand fra boligen eller Kiwi Slependen. Kort vei til Sandvika Storsenter som har et rikt utvalg av forretninger og servicetilbud.
Området gir mulighet for offentlig kommunikasjon via buss og tog. Nærmeste bussholdeplass ligger på Slependen, og toget har hyppige avganger fra Slependen stasjon. Ved å benytte bil tar det ca. 5 min til Sandvika, 12 min til Bærums verk, 11 min til Bekkestua, 18 min til Oslo S, samt 48 min til Oslo Lufthavn.
Beskrivelse av tomt
Tomten er veldig bratt mot nordvest. Huset er plassert noe lavere i terrenget enn anvist plassering i opprinnelig plankart. Tiltaket vil kreve inngrep i fjellgrunnen med uttak av masser spesielt for atkomst og garasje.
Interessenter må sette seg inn i rammetillatelsen og øvrige dokumenter knyttet til søknaden på kommunens nettside. Rammetillatelsen ligger vedlagt i salgsoppgaven.
Det er gitt Igangsettingstillatelse 07.03.24. Arbeidet må være igangsatt i løpet av to år. Det vil si innen 07.03.26 Eller så faller IG og ramme ut.
Bebyggelse
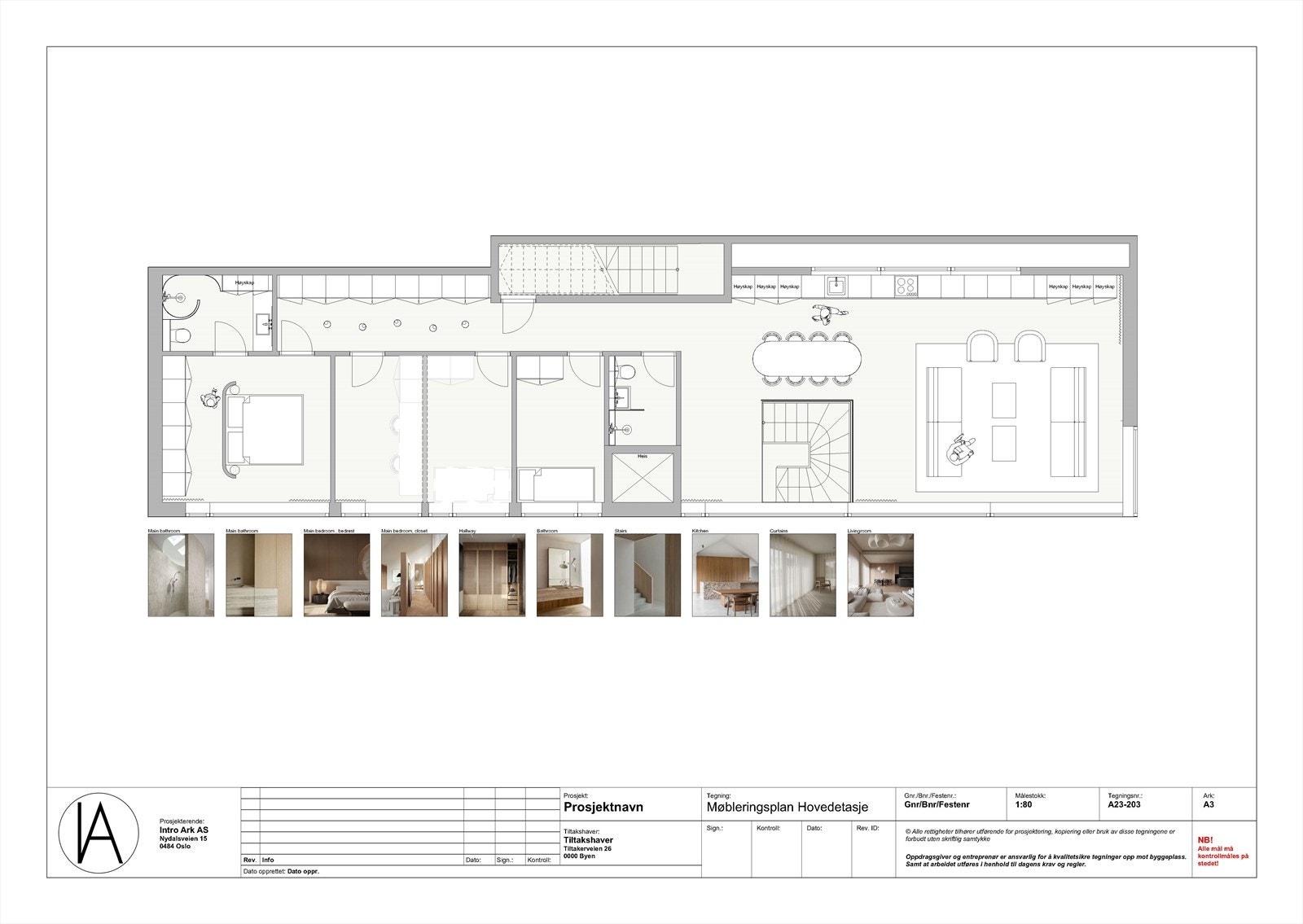
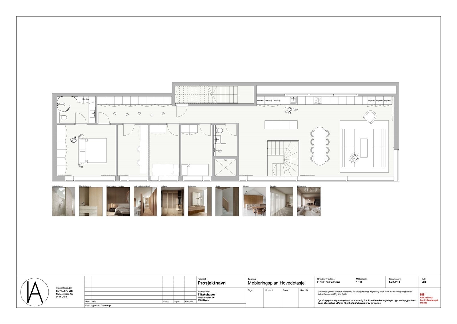
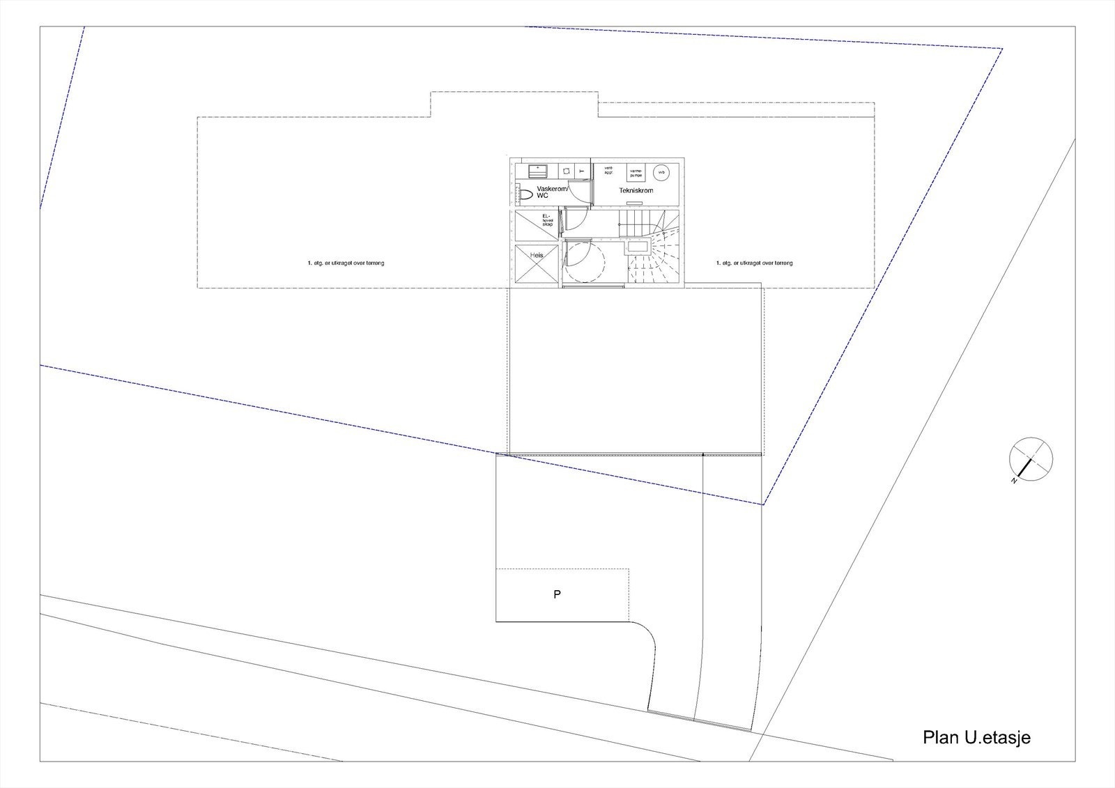
Det er gitt rammetillatelse for en enebolig og garasje.
Det som er godkjent er en enebolig med én boenhet med tilhørende dobbelgarasje og terrengarbeider. Nederst i skråningen bygges garasje og gangareal inn i terrenget. Trapp og heis går fra dette arealet opp til boligdelen. Bygget er tilpasset terrenget gjennom atkomst, bod og garasje i tilknytning til Bjerkoddveien. På plan 2 to er bad og teknisk rom mens boligdelen ligger på det tredje planet med alle nødvendige funksjoner. Takterrassen blir da sammenbundet med terrenget på oversiden og bidrar til uteoppholdsareal på den mest egnede delen av tomten. Det oppgis at %BYA er 14.94%.
Kjøper overtar de godkjente tegningene som ligger på sakksinnsyn hos Bærum kommune. Plantegninger av huset ligger vedlagt i salgsoppgaven.
Kjøper trenger ikke å benytte godkjent rammesøknad og kan selv få tegnet opp nytt hus og søke om det.
Adkomst
Eiendommen har adkomst fra Bjerkoddveien.
Overtakelse
Etter nærmere avtale. Angi ønsket overtakelse i Deres bud.
Lovanvendelse
Eiendommen selges etter reglene i avhendingsloven. Eiendommen skal overleveres kjøper i tråd med det som er avtalt. Det er viktig at kjøper setter seg grundig inn i alle salgsdokumentene, herunder salgsoppgave, tilstandsrapport og selgers egenerklæring. Kjøper anses kjent med forhold som er tydelig beskrevet i salgsdokumentene, og disse kan ikke påberopes som mangler. Forbehold om eiendommens tilstand som er tilstrekkelig spesifisert, anses som en del av avtalen. Disse vil derfor heller ikke kunne påberopes som en mangel. Dette gjelder uavhengig av om kjøper har lest dokumentene. Alle interessenter oppfordres til å undersøke eiendommen nøye, gjerne sammen med bygningssakkyndig før bud inngis. Kjøper som velger å kjøpe usett kan ikke gjøre gjeldende som mangel noe han burde blitt kjent med ved undersøkelsen. Det samme gjelder unnlatelse av å undersøke forhold på visning/før bud inngis. Dersom det er behov for avklaringer, anbefaler vi at kjøper rådfører seg med eiendomsmegler eller en bygningssakkyndig før det legges inn bud.
Hvis eiendommen ikke er i samsvar med det kjøperen må kunne forvente ut ifra alder, type og synlig tilstand, kan det utgjøre en mangel. Det samme gjelder hvis det er holdt tilbake eller gitt uriktige opplysninger om eiendommen, og dette har virket inn på avtalen. Det kan ikke forventes at en eldre bolig har samme tilstand som en ny eller nyere bolig. En bolig som har blitt brukt i en viss tid, har vanligvis blitt utsatt for slitasje og skader kan ha oppstått. Slik bruksslitasje må kjøper regne med, og det kan avdekkes enkelte forhold etter overtakelse som nødvendiggjør utbedringer. Normal slitasje og skader som nødvendiggjør utbedring, er innenfor hva kjøper må forvente og vil ikke utgjøre en mangel.
Boligen kan ha en mangel dersom det er avvik mellom opplyst og faktisk areal. Dette forutsatt at avviket er på 2 % eller mer, minimum 1 kvm, og kjøper la vekt på opplysningen.
Ved beregning av et eventuelt prisavslag eller erstatning må kjøper selv dekke tap/kostnader opptil et beløp på kr. 10 000 (egenandel). Dette beløpet har ikke betydning for vurderingen om det foreligger en mangel. Beløpet kommer imidlertid til fradrag i en eventuell utmåling av prisavslag eller erstatning, dersom det er mangel ved eiendommen som selger er ansvarlig for.
Dersom kjøper ikke er forbruker selges eiendommen som den er , og selgers ansvar er da begrenset jf. avhl. § 3-9, 2. pktm. Informasjon om kjøpers undersøkelsesplikt, herunder oppfordringen om å undersøke eiendommen nøye, gjelder også for kjøpere som ikke anses som forbrukere.
Budgivning
Bud kan legges inn på nettannonsen på "Gi bud knappen" eller via våre hjemmesider. Ved elektronisk budgivning så kan bud legges inn trygt og enkelt med bank-ID. Megler kan også kontaktes for tilsendelse av budskjema og budskjema finnes også i salgsoppgaven.
All budgivning må foregå ved skriftlighet, i tillegg må legitimasjon fremlegges. Forhøyelser bør også alltid inngis skriftlig, og vi oppfordrer alltid til at megler kontaktes pr. telefon i tillegg, ettersom det kan være forsinkelser på SMS-trafikk og e-post.
Skal budene bli behandlet og videreformidlet skriftlig til alle involverte parter, må alle bud ha en tilstrekkelig lang akseptfrist, jf. eiendomsmeglingsforskriften § 6-3.
Selger må skriftlig akseptere budet før aksept kan formidles til budgiver. Akseptfrist bør derfor være på minimum 30 minutter, og budforhøyelser må derfor skje i god tid før fristens utløp, helst 10 minutter før stående bud løper ut.
Bud kan ikke ha kortere frist enn kl. 12.00 første virkedag etter siste annonserte visning. Etter at eiendommen er solgt vil kjøper og selger få tilsendt budjournal. Øvrige budgivere kan få utlevert kopi av budjournalen i anonymisert form.
Ta kontakt dersom det er behov for bistand for å gi bud.
Vedlegg til Salgsoppgaven
Det forutsettes at interessenter gjør seg kjent med alle salgsoppgavens vedlegg før inngivelse av bud. Kontakt megler ved spørsmål.
Diverse
Forbehold
Interessenter oppfordres til å lese hele salgsoppgaven og alle bilag nøye. Salgsoppgaven er basert på selgers opplysninger gitt til bygningssakkyndig og megler, samt opplysninger innhentet fra kommunen, evt. forretningsfører og andre tilgjengelige kilder. Kontakt megler dersom du har spørsmål.
Interessenter oppfordres til å komme på visning og å undersøke eiendommen godt, før bud inngis.
Sem & Johnsens kjøpekontrakt vil bli benyttet som rammeverk for avtalen, og det vil ikke kunne gjøres i endringer i denne i etterkant av akseptert bud. Utkast kan fås ved henvendelse til megler før bud inngis.
Det forutsettes at kjøper gjør seg kjent med henviste dokumenter inkludert alle salgsoppgavens vedlegg før budgivning/kjøp.
Det gjøres oppmerksom på at megler ikke har innhentet særskilte opplysninger om det finnes pålegg fra E verk eller brann-/feiervesen på eiendommen.
Sikkerhetsstillelse
Alle eiendomsmeglerforetak har lovpålagt forsikring av klientmidler begrenset opptil kr 45 millioner. Enkeltsaker er forsikret inntil kr 15 millioner. Dersom kjøpers låneinstitusjon krever tilleggsforsikring ved omsetning over kr 15 millioner, må kjøper selv eller dennes låneinstitusjon dekke utgiftene forbundet med dette.
Løsøre
Dersom ikke annet er opplyst/særskilt avtalt, gjelder Norges Eiendomsmeglerforbunds liste over løsøre og tilbehør som angir hva som bør følge med boliger og fritidsboliger ved salg. Særskilte avtaler om tilbehør må avtales før bindende avtale inngås, dvs før budaksept. Listen kan fås ved henvendelse til megler og vil være et vedlegg til kontrakten mellom partene. Egen innboforsikring må tegnes av kjøper.
Meglerkontoret er tilknyttet Reklamasjonsnemda for Eiendomsmeglingstjenester, og eventuelle tvister kan forelegges for nemndas behandling.
Det økonomiske oppgjøret mellom partene utføres av:
Sem & Johnsen Oppgjør og Administrasjon AS, org.nr. 999 638 996
Pb. 1613 Vika, 0119 Oslo
Regulering
Nyttige lenker
Sem & Johnsen
Nærområdet
Annonseinformasjon
| FINN-kode | 397499901 |
|---|---|
| Sist endret | 19. jan. 2026 10:23 |
| Referanse | 20-25-0284 |
Annonsene kan være mangelfulle i forhold til lovpålagt opplysningsplikt. Før bindende avtale inngås oppfordres interessenter til å innhente komplett informasjon fra meglerforetaket, selger eller utleier.












