Bildegalleri

Bygg i naturskjønne Ingulstadskogen | 29 byggeklare tomter| 5 Solgt | Barnevennlig | Nærhet til fine turmuligheter
- Omkostninger
- 22 616 kr
Nøkkelinfo
Om eiendommen
Kort om eiendommen
Velkommen til Ingulstadskogen i Svinndal - et idyllisk område omgitt av vakker natur, perfekt for deg som ønsker å bygge ditt eget hjem i rolige og naturskjønne omgivelser. Her bor du i et familievennlig område med kort vei til barnehage, skole og dagligvarebutikk, samtidig som du har flotte tur- og rekreasjonsmuligheter rett utenfor døren. Med en fin kombinasjon av landlig ro og enkel adkomst til Kalnes, Sarpsborg, Moss og E6, får du det beste av to verdener - en fredelig hverdag i naturskjønne omgivelser, men likevel med alt du trenger innen rekkevidde.
Tomtene har varierende størrelser fra 626 til 901 kvm, med en utnyttelsesgrad på 30 %, noe som gir deg gode muligheter til å bygge en romslig bolig tilpasset dine behov. Med denne fleksibiliteten kan du skape et hjem med både funksjonelle innvendige løsninger og rikelig med uteplass til hage, terrasse eller andre ønskede uteområder.
Standard
Alle tomtene leveres grovplanert med vei, vann og avløp i tomtegrense.
Beliggenhet
Ingulstad Sør ligger i landlige omgivelser nær Svinndal sentrum i Våler kommune. Kort vei til bl.a. skole, idrettsanlegg, matvareforretning etc. Fine turområder i nærheten. Kort vei med bil til Kjerringåsen skisenter, og nærhet til Trøsken lysløype. Det er flotte naturområder rett utenfor døren og det er kort vei til Sæbyvannet med bademuligheter sommerstid.
Området ligger omtrent 25 min. fra Moss og Sarpsborg med gode pendlermuligheter til begge byene.
Dagligvarehandelen kan gjøres ved bl.a. Joker Svinndal. Ønsker du ytterligere servicetilbud har Mosseporten senter, Askimtorget kjøpesenter, Ski Storsenter og et rikholdig utvalg av butikker og fasiliteter.
Eiendommen har gangavstand til Svinndal barneskole. For elever i ungdomstrinnene er det skolebussordning til Kirkebygden barne- og ungdomsskole. Det finnes flere videregående skoler i nærliggende områder, samt et godt utvalg av både private og kommunale barnehager.
Adkomst
Se vedlagt kartskisse i FINN-annonsen. Ved å trykke på kartet får du enkelt tilgang til en spesifisert reiserute fra din startdestinasjon til området.
Regulering
Reguleringsplan: Ingulstad sør. Plan ID: 3018-63. Vedtatt: 16.06.2023.
For områdene BFS1 - BFS9 er det maksimal utnyttelsesgrad BYA 30 %.
Ved beregning av utnytting skal p-plasser på terreng medregnes med 18m2 BYA pr. plass. I BFS-områder skal det avsettes minimum 2 p-plasser pr boenhet.
Det skal avsettes 2 sykkelparkeringsplasser á 0,7 x 2,0m per boenhet.
Innenfor området tillates småhusbebyggelse i form av eneboliger med inntil 1
utleiedel på maksimalt 80m2 BRA.
Maksimal møne-/ byggehøyde er 8 meter målt til gjennomsnitt planert terreng rundt bygget.
Maksimal gjennomsnittlig gesimshøyde for bygg med møne er 5,5 meter.
Maksimal øvre gesimshøyde for bygg med flatt tak eller pulttak er 6,5 meter
Maksimal byggehøyde for frittstående boder/ garasjer/ carporter er 4 meter til
planert terreng. Formspråk skal være tilpasset tilhørende bolig. Garasje tillates ikke innredet til varig opphold eller beboelse.
Vei, vann og kloakk
For Våler kommune gjelder følgende satser på kommunale avgifter 2025.
Tilknytningsavgift avløp kr. 1.500,- (engangsbeløp).
Fast avgift kr. 3.785,- (pr. år).
Avløp pr. kubikk kr. 58,30.
Tilknytningsavgift vann kr. 1.500,- (engangsbeløp).
Fast avgift kr. 1.070,- (pr. år).
Vann pr. kubikk kr. 19.80.
Feieavgift kr. 620,- pr. pipeløp.
Standard renovasjon fra Movar
Restavfall (inkl.løsning for matavfall) 1x140 liter beholder
Papp, papir og drikkekartong 1x240 liter beholder
Glass- og metallemballasje fra mat- og drikkevare 1x140 liter beholder
Plastemballasje 1x240 liter beholder
Total sum pr. år for dette er kr 5 061,- inkl mva.
Generelle forhold
Tomtene fradeles MUF (matrikulering uten fullført oppmålingsforretning. Etter fradeling har Våler kommune 2 år på å fullføre oppmåling i terrenget.
Alle grensepunktene på de fradelte eiendommen er nå registrert med 10 cm nøyaktighet, målemetode 18 ( tatt fra plan ) og grensemerketype 56 ( umerket ). I henhold til matrikkelforskriften §25 er det satt en frist til 15.2.27 for måling og evt. merking i marka.
Merking kan hvis nødvendig utsettes i inntil 3 år til etter 15.2.27.
Konsesjon
Når tomten er ubebygget kreves det egenerklæring om konsesjonsfrihet.
Konsesjonsfriheten er betinget av at tomten blir bebygd innen fem år, og at unnlatelse av byggeplikten kan medføre at kommunen setter en frist for kjøper til å søke konsesjon. Det opplyses om at konsesjonsrisikoen i slike tilfeller vil ligge på kjøper.
Dvs. at kjøper må erklære på eget fastsatt skjema at eiendommen ikke er konsesjonspliktig, eller at bruken av eiendommen ikke vil utløse konsesjon. Det er en forutsetning for avtalen at egenerklæringsskjema om konsesjonsfrihet fylles ut av kjøper, og at denne godkjennes av kommunen før overtakelse av eiendommen finner sted.
Tinglyste heftelser
Følgende heftelser vil følge eiendommen og kopi kan fås av megler. Kjøpers bank får prioritet etter disse heftelsene:
Rettighet - Tinglyst dato 19.05.70
LEIEAVTALE
RETT TIL Å HA HOVEDVANNLEDNING OG BILEDNINGER
OVER DENNE EIENDOM
BEST OM EVT ERSTATNING
GJELDER DENNE REGISTERENHETEN MED FLERE
Utbyggingsavtale - Tinglyst dato 21.10.24
GJELDER DENNE REGISTERENHETEN MED FLERE
Erklæring/Avtale - Tinglyst dato 30.11.93
Grensegangssak
GJELDER DENNE REGISTERENHETEN MED FLERE
Erklæring/Avtale - Tinglyst dato 25.11.94
Grensegangssak
GJELDER DENNE REGISTERENHETEN MED FLERE
Jordskifte - Tinglyst dato 17.10.12
Sak: 0100-2011-0055 Onsaker
GJELDER DENNE REGISTERENHETEN MED FLERE
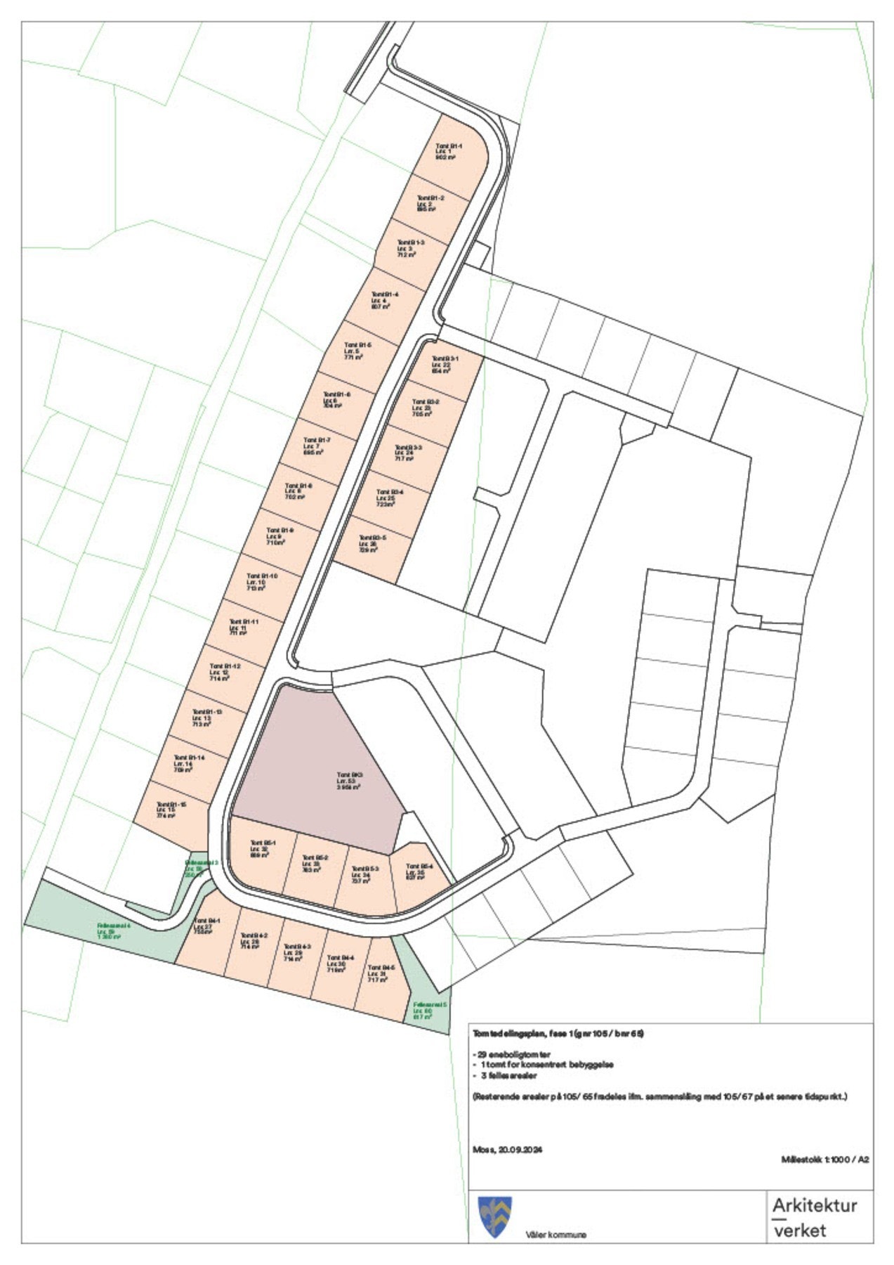
Tomter
B1-1 Ingulstadskogen 2:
Areal 901 m²
Pris kr 850 000,-
B1-2 Ingulstadskogen 4:
Areal 695 m²
Pris kr 850 000,-
B1-3 Ingulstadskogen 6:
Areal 711 m²
Pris kr 850 000,-
B1-4 Ingulstadskogen 8:
Areal 807 m²
Pris kr 950 000,-
B1-5 Ingulstadskogen 10:
Areal 771 m²
Pris kr 1 050 000,-
B1-6 Ingulstadskogen 12:
Areal 703 m²
Pris kr 1 100 000,-
B1-7 Ingulstadskogen 14:
Areal 695 m²
Pris kr 1 100 000,-
B1-8 Ingulstadskogen 16:
Areal 701 m²
Pris kr 1 100 000,-
B1-9 Ingulstadskogen 18:
Areal 710 m²
Pris kr 1 050 000,-
B1-10 Ingulstadskogen 20:
Areal 712 m²
Pris kr 1 050 000,-
B1-11 Ingulstadskogen 22:
Areal 710 m²
Pris kr 1 050 000,-
B1-12 Ingulstadskogen 24:
Areal 713 m²
Pris kr 1 100 000,-
B1-13 Ingulstadskogen 26:
Areal 712 m²
Pris kr 1 150 000,-
B1-14 Ingulstadskogen 28:
Areal 708 m²
Pris kr 1 250 000,-
B1-15 Ingulstadskogen 30:
Areal 774 m²
Pris kr 1 350 000,-
B3-1 Ingulstadskogen 1:
Areal 653 m²
Pris kr 950 000,-
B3-2 Ingulstadskogen 3:
Areal 705 m²
Pris kr 1 100 000,-
B3-3 Ingulstadskogen 5:
Areal 717 m²
Pris kr 1 100 000,-
B3-4 Ingulstadskogen 7:
Areal 722 m²
Pris kr 1 100 000,-
B3-5 Ingulstadskogen 9:
Areal 728 m²
Pris kr 1 100 000,-
B4-1 Ingulstadskogen 32:
Areal 755 m²
Pris kr 1 350 000,-
B4-2 Ingulstadskogen 34:
Areal 714 m²
Pris kr 1 150 000,-
B4-3 Ingulstadskogen 36:
Areal 714 m²
Pris kr 1 150 000,-
B4-4 Ingulstadskogen 38:
Areal 719 m²
Pris kr 1 150 000,-
B4-5 Ingulstadskogen 40:
Areal 717 m²
Pris kr 1 150 000,-
B5-1 Ingulstadskogen 21:
Areal 867 m²
Pris kr 1 150 000,-
B5-2 Ingulstadskogen 23:
Areal 762 m²
Pris kr 1 050 000,-
B5-3 Ingulstadskogen 25:
Areal 739 m²
Pris kr 1 050 000,-
B5-4 Ingulstadskogen 27:
Areal 626 m²
Pris kr 1 050 000,-
BK3:
Areal 3 950 m²
Nyttige lenker
ASK Meglergaarden
Nærområdet
Annonseinformasjon
| FINN-kode | 394610396 |
|---|---|
| Sist endret | 21. jan. 2026 10:10 |
| Referanse | 3-25-0018 |
Annonsene kan være mangelfulle i forhold til lovpålagt opplysningsplikt. Før bindende avtale inngås oppfordres interessenter til å innhente komplett informasjon fra meglerforetaket, selger eller utleier.

































