Bildegalleri

Velkommen til Sandsåsen
Sandsåsen - Meget stor og flott boligtomt med flott sjøutsikt!
Nøkkelinfo
Om eiendommen
Kort om eiendommen
Vi har en flott utsiktstomt for salg i Sandsåsen på Feda. Tomten er en råtomt på 1 440 kvm som må opparbeides. Her er nydelig utsikt ned mot Sande og utover Fedafjorden. Det er det kort avstand ned til Sande hvor det er et flott opparbeidet friluftsområde med sandstrand.
Sandsåsen er et nyere og attraktivt boligfelt under utvikling bestående hovedsakelig av eneboliger og villaer. Det er god avstand mellom boligene.
Denne tomten er en av de aller største i feltet.
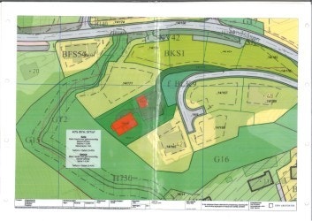
Det er mulig å utnytte 40 % BYA på tomten. Se reguleringskart og bestemmelser rundt alle detaljer på størrelser, materialvalg, garasje og bod m.m.
Det er nullkonsesjon på Feda, dvs. det er boplikt i området. Konf. megler.
Tomten kan fritt besiktiges.
Beliggenhet
Eiendommen ligger i Sandsåsen som er et nyere boligfelt som er under utvikling. Tomten har nydelig utsikt ned mot Sande og utover Fedafjorden. Rett i nærheten er det en gammel ferdselsvei som fører ned til Sande hvor det er et flott opparbeidet friluftsområde med sandstrand. Ellers er det en rekke spennende og merkede turmuligheter i området.
Adkomst
Fra Feda sentrum: Kjør over broa, og fortsett opp Lindlandsbakken. Ta til venstre ned Sandsåsen og ta fjerde avkjørsel til høyre. Tomten ligger til høyre. Se skilting fra Aktiv Eiendomsmegling.
Overtakelse
Overtakelse etter nærmere avtale med megler.
Dersom annet ikke avtales, sendes skjøte/hjemmelsdokument for tinglysing i etterkant av overtakelse.
Beskrivelse av tomt
Tomten er en råtomt som må opparbeides.
Budgivning
Budgivning i forbrukerforhold
Budgivere oppfordres til å legge inn bud elektronisk. Dette gjøres på eiendommens hjemmeside på aktiv.no, ved å bruke Gi bud -knappen. Ved elektronisk budgivning, samtykker budgiver til elektronisk kommunikasjon. Eiendomsmegler skal legge til rette for en forsvarlig avvikling av budrunden og kan ikke videreformidle bud med en kortere akseptfrist enn kl. 12.00 første virkedag etter siste annonserte visning. Etter klokken 11:30 anbefaler vi akseptfrist på minimum 30 minutter. Bud bør legges inn i god tid før konkurrerende buds akseptfrist utløper. For øvrig henvises til forbrukerinformasjon om budgivning i salgsoppgaven. Oppdragsgiver er oppfordret til å ikke ta imot bud direkte fra budgiver, men å henvise budgiver videre til megler. Som kjøper vil du få forelagt kopi av budjournal. Alle bud vil bli gjort kjent for kjøper og selger i handelen. Øvrige budgivere kan be om å få en kopi av budjournal i anonymisert form.
Budgivning utenfor forbrukerforhold
Budgivere oppfordres til å legge inn bud elektronisk. Dette gjøres på eiendommens hjemmeside på aktiv.no, ved å bruke Gi bud -knappen. Ved elektronisk budgivning, samtykker budgiver til elektronisk kommunikasjon. Det anbefales at hvert bud har en akseptfrist som muliggjør en forsvarlig avvikling av budrunden. Vi anbefaler minimum 30 minutter akseptfrist. Oppdragsgiver er oppfordret til å ikke ta imot bud direkte fra budgiver, men å henvise budgiver videre til megler.
Opplysningene i salgsoppgaven er godkjent av selger. Alle interessenter oppfordres imidlertid til grundig besiktigelse av eiendommen, gjerne sammen med fagmann før bud inngis.
Ansvarlig megler
Bjørn Skjæveland
Regulering
Aktiv Sørlandet
Nærområdet
Annonseinformasjon
| FINN-kode | 388202869 |
|---|---|
| Sist endret | 21. jan. 2026 08:26 |
| Referanse | 1408240257 |
Annonsene kan være mangelfulle i forhold til lovpålagt opplysningsplikt. Før bindende avtale inngås oppfordres interessenter til å innhente komplett informasjon fra meglerforetaket, selger eller utleier.






















