Bildegalleri

Din nye utsikt?
Smørås | Solrik tomt, godkjent enebolig med garasje og mulighet for hybel. Nydelig utsikt og flotte solnedganger.
Prisantydning2 490 000 kr
- Totalpris
- 2 552 250 kr
- Omkostninger
- 62 250 kr
Nøkkelinfo
Fasiliteter
Bilvei frem
Bredbåndstilknytning
Offentlig vann/kloakk
Utsikt
Turterreng
Visning
Visning etter avtale
Beskaffenhet
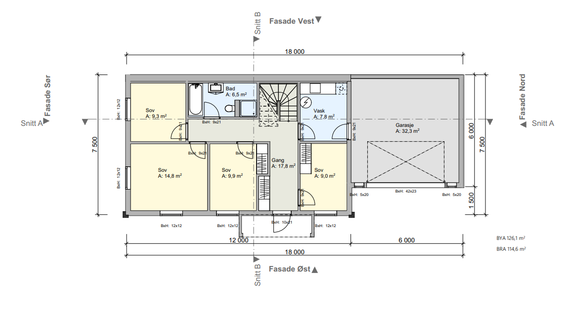
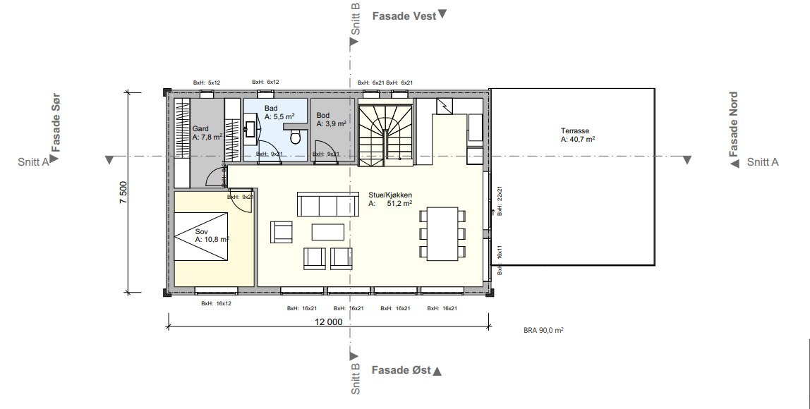
Solrik tomt med nydelig utsikt og solnedganger med godkjent enebolig og garasje. Boligen er godt plassert på tomten som gir muligheter for et flott uteområde. Godkjent bolig er på 204 m² BRA + terrasse på 40 m². Tomten vil få nytt bruksnummer når den er ferdig utskilt, denne prosessen er pågående. Offentlig vann og avløp ligger klart inn på tomten.
Dersom det er ønskelig kan godkjent hus bygges av leverandør. Dette vil si nøkkelferdig hus på tomten for kr. 10.700.000,-. Dokumentavgift er fortsatt lav da det kun regnes dokumentavgift på tomtepris ved kjøp av nybygg. Ta kontakt for nærmere beskrivelse av huset! Ta kontakt eller se egen annonse.
Adkomst:
Opp Apeltunvegen og ta av på Smøråsvegen ved Apeltun Skole. Følg Smøråsvegen oppover til Nøtteitvegen starter, ta her til venstre for å holde deg på Smøråsvegen.
Beliggenhet:
Tomten ligger i etablert og barnevennlig boligområde i flotte naturskjønne omgivelser. Nabolaget er barnevennlig og består primært av andre eneboliger, tomannsboliger og rekkehus. Det er flere skoler og barnehager i nærområdet, her kan nevnes Apeltun skole, Apeltun barnehage og Slåtthaug videregående skole.
Det er kort vei til de fleste fritidstilbud. Man har Apeltun kunstgressbane, Smøråsbanen med Slåtthaug Isbane og SATS på Nesttun. For den golfglade ligger Fana Golfklubb en kjøretur fra boligen.
Smøråsvegen er et utmerket utgangspunkt for den som er glad i tur og rekreasjon. Her er nærhet til flotte turforhold på Smøråsfjellet, andre turområder som kan nevnes er Stendafjellet og Appelsinbenken.
Nærmeste dagligvarebutikk er Extra Apeltun. Om man ønsker et utvidet utvalg av butikker ligger Lagunen storsenter ca. en 10 minutters kjøretur unna. Her kan du finne det meste du måtte trenge på ett sted. I tillegg til mange butikker, finner du treningssenter, kino og restauranter. Det er også gode bussforbindelser til sentrum, for de som måtte ønske seg en bytur. Fra Lagunen kan du eventuelt ta bybanen videre inn til Bergen sentrum eller sørover til Flesland.
Dersom det er ønskelig kan godkjent hus bygges av leverandør. Dette vil si nøkkelferdig hus på tomten for kr. 10.700.000,-. Dokumentavgift er fortsatt lav da det kun regnes dokumentavgift på tomtepris ved kjøp av nybygg. Ta kontakt for nærmere beskrivelse av huset! Ta kontakt eller se egen annonse.
Adkomst:
Opp Apeltunvegen og ta av på Smøråsvegen ved Apeltun Skole. Følg Smøråsvegen oppover til Nøtteitvegen starter, ta her til venstre for å holde deg på Smøråsvegen.
Beliggenhet:
Tomten ligger i etablert og barnevennlig boligområde i flotte naturskjønne omgivelser. Nabolaget er barnevennlig og består primært av andre eneboliger, tomannsboliger og rekkehus. Det er flere skoler og barnehager i nærområdet, her kan nevnes Apeltun skole, Apeltun barnehage og Slåtthaug videregående skole.
Det er kort vei til de fleste fritidstilbud. Man har Apeltun kunstgressbane, Smøråsbanen med Slåtthaug Isbane og SATS på Nesttun. For den golfglade ligger Fana Golfklubb en kjøretur fra boligen.
Smøråsvegen er et utmerket utgangspunkt for den som er glad i tur og rekreasjon. Her er nærhet til flotte turforhold på Smøråsfjellet, andre turområder som kan nevnes er Stendafjellet og Appelsinbenken.
Nærmeste dagligvarebutikk er Extra Apeltun. Om man ønsker et utvidet utvalg av butikker ligger Lagunen storsenter ca. en 10 minutters kjøretur unna. Her kan du finne det meste du måtte trenge på ett sted. I tillegg til mange butikker, finner du treningssenter, kino og restauranter. Det er også gode bussforbindelser til sentrum, for de som måtte ønske seg en bytur. Fra Lagunen kan du eventuelt ta bybanen videre inn til Bergen sentrum eller sørover til Flesland.
Regulering
Godkjent enebolig med hybel med igangsettingstillatelse
NB: Knappen for å vise hele beskrivelsen har kun en visuell effekt.
NB: Knappen for å vise hele beskrivelsen har kun en visuell effekt.
Nærområdet
Annonsene kan være mangelfulle i forhold til lovpålagt opplysningsplikt. Før bindende avtale inngås oppfordres interessenter til å innhente komplett informasjon fra meglerforetaket, selger eller utleier.









