Bildegalleri

Inaktiv
Enebolig m/utsiktstomt godkjent for 2 boenheter i Hommelvik – nær sentrum og buss. Mange muligheter
Prisantydning4 950 000 kr
Nøkkelinfo
Fasiliteter
Bilvei frem
Bredbåndstilknytning
Kabel-TV
Offentlig vann/kloakk
Utsikt
Turterreng
Visning
Visning etter avtale, pris kan evt diskuteres. GI BUD!
Adkomst
Egen innkjørsel
Beliggenhet
Utsiktstomt med kort veg til sentrum og buss.
Beskaffenhet
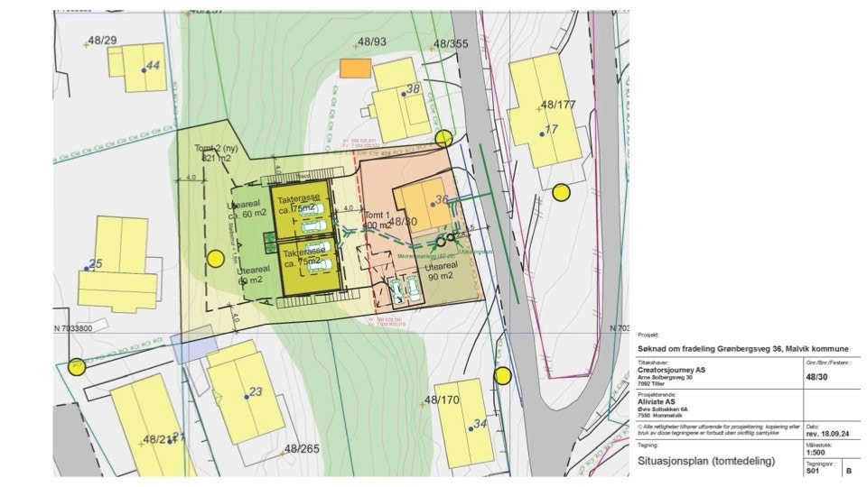
Eiendommen består av 2 separate parseller med samlet areal på 1218,5 m2.
48/30: Enebolig med tilhørende bod og utstyr, tomteareal 400m2
48/365: Boligtomt godkjent for enebolig eller 2-mannsbolig, tomteareal 818 m2 (kan selges separat etter nærmere avtale)
Her kan man evt. rive eksisterende enebolig og bod og videreutvikle begge tomtene samlet som har en fantastisk beliggenhet under Sveberg. Kan selges direkte fra firma. Gi bud!
48/30: Enebolig med tilhørende bod og utstyr, tomteareal 400m2
48/365: Boligtomt godkjent for enebolig eller 2-mannsbolig, tomteareal 818 m2 (kan selges separat etter nærmere avtale)
Her kan man evt. rive eksisterende enebolig og bod og videreutvikle begge tomtene samlet som har en fantastisk beliggenhet under Sveberg. Kan selges direkte fra firma. Gi bud!
Regulering
Godkjent for enebolig eller 2-mannsbolig
NB: Knappen for å vise hele beskrivelsen har kun en visuell effekt.
NB: Knappen for å vise hele beskrivelsen har kun en visuell effekt.
Nærområdet
Annonsene kan være mangelfulle i forhold til lovpålagt opplysningsplikt. Før bindende avtale inngås oppfordres interessenter til å innhente komplett informasjon fra meglerforetaket, selger eller utleier.






