Bildegalleri

Inngang
Boligtomt med Byggetillatelse, Kirkenær - Tjura
- Totalpris
- 316 240 kr
- Omkostninger
- 16 240 kr
Nøkkelinfo
Fasiliteter
Visning
Ta kontakt for å avtale visning.Adkomst
Beliggenhet
Kort om eiendommen
Vi har gleden av å presentere denne tomten beliggende ca. 10 min. fra Kirkenær sentrum.
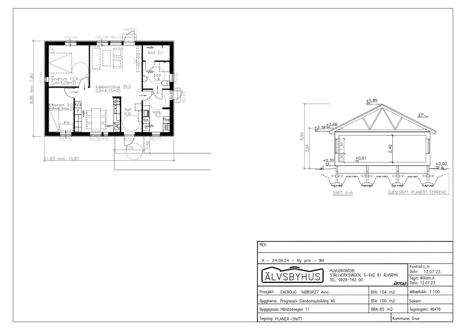
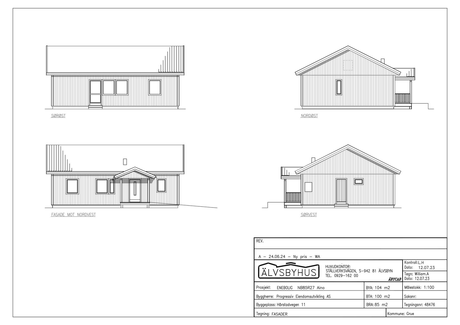
Flat tomt på 717 m². Tomten er i dag råtomt og er vegetasjonsdekket. Tomten har eget adresse Hårstadvegen 13, Kirkenær. Det foreligger godkjent byggetillatelse for enebolig typen Aino av Ælvsbyhus. Kjøper står fritt for valg av husleverandør, eller bygge selv ved å følge hustegninger som er godkjent i kommunen.
Beskaffenhet
Kjøper må påregne kostnader for opparbeidelse av adkomstvei frem til tomt, tilknytting av offentlig kommunalt vann, samt el punkt-kabler & privat avløpsanlegg er godkjent (anlegget ligger nærmest asfalt veien, graving fra huset til avløpsanlegget må påregnes).
Tjura er et veletablert boligfelt, kjent for sin nærhet til naturen og sin familievennlige atmosfære. Fra tomten har du fin utsikt i flere retninger og gode lysforhold. Tjura barnehage er innenfor gangavstand.
Tomten selges med byggetillatelse, huset kan bli levert av Ælvsbyhus, hustype Aino. Huset har god planløsning med 2 soverom. Det foreligger kontrakt for levering av Aino. Kontraktpisen er betydelig lavere enn dagens huspris. Kontratraktrisen øker hvert år dersom huset ikke blir bestilt iløpet av året fra signert kontraktdato. Kjøper er ikke pliktet for å velge Ælvsbyhus som leverandør av huset. Kjøper er selv ansvarlig at huset blir bygd etter godkjent planløsning i kommunen. Dette er dersom kjøper går bort ifra Ælvsbyhus som husleverandør.
Tomten har en svært god intern beliggenhet, nest ytterst på feltet, noe som sikrer både privatliv og lite forbipasserende trafikk. Dette gjør den spesielt velegnet for deg som ønsker et fredelig og tilbaketrukket hjem, samtidig som du er en del av et hyggelig nabolag.
Dagligvarehandelen kan gjøres ved en kort kjøretur til Kirkenær sentrum, hvor man finner Extra, Kiwi, Europris, Felleskjøpet ,Øss Kæra med Damer AS, Sport 1, BREDESEN OPSET AS Avd Byggtorget, Evensen's Bakeri & Conditori AS, Gartneri og Gruetorgetd. En liten kjøretur unna finner du Flisa med Flisa Stormarked og flere andre butikker, eller Kongsvinger med Kongssenteret og flere andre butikke. Dersom du ønsker ytterligere fasiliteter kan du ta turen til Charlottenberg senteret.
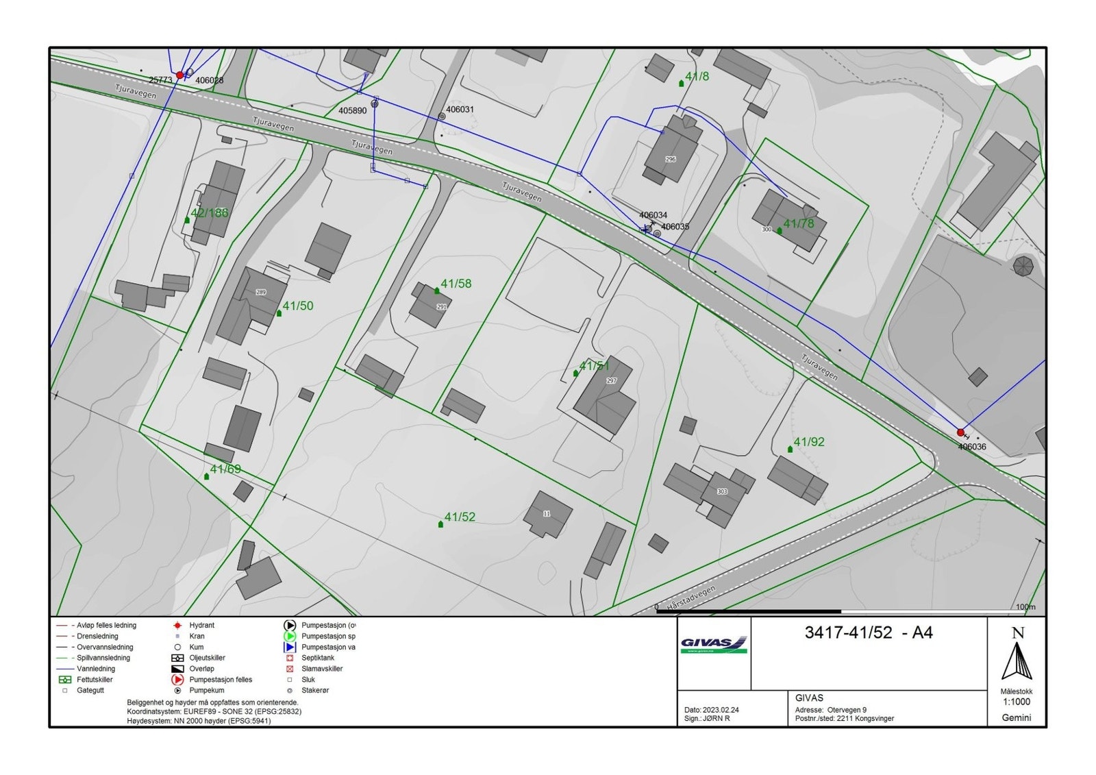
Nærmeste vannoppkoblingspunkt mellom naboeiendommene mot Tjuravegen, lengste over dyrketjord på naboeiendom. Se vedlagt kart for eiendommen.
Kommunalt vann (Vannabonemang tegnes med Givas)
Fibernett ligger langs tomten med ca 1 meters avstand fra tomtegrensen.
INNGÅR I PRISEN
Utarbeidelse innsending av søknader om byggetillatelse.
Saksbehandlingsgebyrer til kommunen.
Privatavløp.
IKKE INNGÅR I PRISEN
Graving fra tomten til kommunaltvann oppkoblingspunkt.
Gebyrer for kommunalt vannoppkobling.
Utarbeidelse av adkomstvei fra asfaltvein til tomten
Graving fra tomten til avløpsanlegget og alt som er forbundet med selve oppkoblingen og driften av anlegget.
Strøm oppkobling.
ENGASJERTE ENTREPRENØRER
Graver - TROND ARNSTEIN HOLTERUD
Rørlegger - ODAL RØR OG VARME AS v Simen Thorstensen
Byggeteknisk -
VECTOR TAKST OG BYGGTEKNIKK AS v Tor Kristiansen
Omkostninger
15 000 (Dokumentavgift)
240 ( Panteattest kjøper)
500 (Tinglysningsgebyr pantedokument)
500 (Tinglysningsgebyr skjøte)
Det tas forbehold om uforutsigbare utgifter.
For mer informasjon ta kontakt med selger.
Regulering
Nyttige lenker
ABAZA INVEST AS
Nærområdet
Annonseinformasjon
| FINN-kode | 378137589 |
|---|---|
| Sist endret | 11. nov. 2024 16:16 |
| Referanse | xKirkenærx |
Annonsene kan være mangelfulle i forhold til lovpålagt opplysningsplikt. Før bindende avtale inngås oppfordres interessenter til å innhente komplett informasjon fra meglerforetaket, selger eller utleier.








