Bildegalleri

Velkommen til Gyrihaugen!
Flotte boligtomter med fantastisk utsikt og idyllisk beliggenhet nært sjøen - Mulighet for kjøp av nausttomt
- Totalpris
- 974 990 kr
- Omkostninger
- 24 990 kr
Nøkkelinfo
Fasiliteter
Om eiendommen
Om boligen
Tomt
Denne tomten er eiet.
735,60 kvm.
Beskrivelse
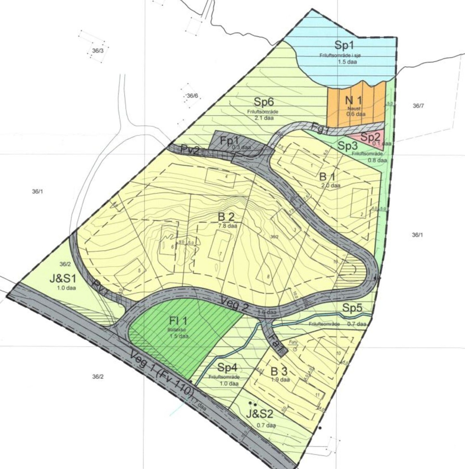
Flotte boligtomter og fritidstomter (naust) med nydelig beliggenhet på Gyrihaugen i Utvika. Tomtene ligger i et regulert område med fantastisk utsikt og umiddelbar nærhet til flott natur. Tomtene har varierende størrelser og ligger i et skrående terreng som gjør at det blir flott utsikt fra alle tomtene.
Tomtene har utnyttelsesgrad fra 20-25%. De 5 første kjøperne av boligtomter vil ha forkjøpsrett til fritidstomt (naust).
Tomteoversikt:
1, 900,2 kvm: 1 500 000,-
2: 1104,4 kvm: 1 600 000,-
3, 735,6 kvm: 1 350 000,-
4, 920,5 kvm: 1500 000,-
5, 1366,9 kvm: 1 450 000,-
6, 1284,8 kvm: 1 450 000,-
7, 1218,9 kvm: 1 450 000,-
8, 1018,2 kvm: 1 450 000,-
9, 872,7 kvm: 1 300 000,-
10, 840,3 kvm: 1 150 000,-
11, 1113 kvm: 950 000,-
1, 100-120 kvm: 500 000,-
2, 100-120 kvm: 450 000,-
3, 100-120 kvm: 450 000,-
4, 100-120 kvm: 450 000,-
5, 100-120 kvm: 500 000,-
Se vedlagte tomtekart for plassering av tomtene. Tomtene fradeles etter hvert som tomtene selges, og små avvik vil derfor kunne forekomme.
I tillegg til kjøpesum og omkostninger må det påregnes følgende kostnader:
Gebyr oppmålingsforretning/fradeling: cirka kr. 36 000,-
Beliggenhet
Området er beliggende i Utvika på skrående grunn som sikrer alle boligtomtene god utsikt. Fra tomtene har man fantastisk utsikt over Ellingsøyfjorden og fjellene rundt.
Boligfeltet har en fin plassering ca. 4,8km vest for Digernes og ca. 12,5km øst for Moa. På Digernes finner du blant annet en rekke butikker, bilforretninger, treningstilbud, spisesteder og vinmonopol. På AMFI Moa er det et bredt utvalg av butikker, kino og svømmehall m.m.
Umiddelbar nærhet til flotte bade- og fiskeområder, samt turmuligheter på Utvikfjellet etc. Landlig og rolig område samtidig som det tar ca. 13 minutter å kjøre til AMFI Moa. Nærmeste skole og barnehage er på Valle ca. 8,7km unna. Nærmeste busstopp ca. 600m bortenfor.
Adkomst
Se vedlagt nabolagsprofil for kart og oversikt over adkomst.
Diverse
Tomtene fradeles etter hvert som de selges og små avvik på areal kan derfor forekomme.
Møre Utvikling AS leverer teknisk anlegg og har graverettigheter for hele tomtefeltet.
Tekniske installasjoner og VVS
Ledningsnett for elektrisk og fiber vil etableres inn til tomtene.
Økonomi
Beregnet totalpris
Prisantydning kr 950 000,-
I tillegg til prisantydning og ev. fellesgjeld, påløper følgende omkostninger:
Dokumentavgift kr 23 750,00,-
Tingl.gebyr skjøte kr 500,00,-
Tingl.gebyr pantedokument kr 500,00,-
Pantattest kjøper kr 240,00,-
Totalpris inkl. omkostninger og fellesgjeld kr 974 990,-
I tillegg til kjøpesum og omkostninger må det påregnes følgende kostnader:
Gebyr oppmålingsforretning/fradeling: cirka kr. 36 000,-
Det ovenstående forutsetter at eiendommen selges til prisantydning og at det kun tinglyses ett pantedokument. Dokumentavgift 2,5% beregnes ut ifra salgspris på tomten. Det tas forbehold om endringer i offentlige gebyr.
Kommunale avgifter
Da tomten selges som ubebygd er ikke mulig å angi kommunale avgifter. De kommunale avgiftene beregnes og fastsettes av kommunen etter ferdigstillelse. For nærmere informasjon vises det til kommunens prisliste.
Løpende kostnader
Ingen kommunale avgifter eller eiendomsskatt på eiendommen i dag. Det må påregnes både kommunale avgifter og eiendomsskatt når eiendommen blir bebygd.
Eiendomsskatt
Grunnlag for beregning av kommunale avgifter og eiendomsskatt finnes ikke, ubebygd tomt.
Det er i kommunen vedtatt eiendomsskatt som på ubebygde tomter baseres på markedsverdien minus bunnfradrag multiplisert med promillesats (p.t 2 promille). Spørsmål om eiendomsskatt rettes til kommunen.
Formuesverdi
Ifølge Skatteetaten er det ikke beregnet formuesverdi for denne eiendommen, det må påregnes med beregnet formuesverdi ved eierskifte.
Offentlige forhold
Regulering
Området er regulert til frittliggende småhusbebyggelse og fritidsbebyggelse (naust) m.m. Se vedlagt reguleringsplan for Gyrihaugen boligfelt, Utvika med gjeldende reguleringsbestemmelser og plankart for mer detaljer.
Frittliggende småhusbebyggelse (B)
a. I områdene kan det bygges frittliggende småhus med inntil to (2) boenheter. Boligene bør fortrinnsvis oppføres med underetasje. Utformingen av bygningene i de ulike delområdene, B1, B2 og B3, bør samordnes og skal ha ei harmonisk utforming i forhold til hverandre. Takvinkel i boligområdet skal være mellom 34 og 42 grader. Gesimshøyde skal ikke overstige 6,5 m og største mønehøyde 8,5 m.
b. Bygningene skal tilpasses til terrenget i størst mulig grad. Der terrenget tilsier det, kan kommunen kreve dokumentasjon med terrengprofiler som viser hvordan bygningene innpasses i terrenget.
c. Grad av utnytting av tomtene er bestemt av tillate prosent utbygd areal (%-BYA). Innenfor område B2 settes til maksimum BYA=20%. I de øvrige områdene er maksimum BYA=25%.
d. I områda kan det oppføres garasjer i inntil 46 kvm grunnflate og da bare i en etasje. Gesimshøyde skal ikke overstige 2,5 m og største mønehøyde 4 m. Der terrenget tilsier det kan garasje føres opp med en gesimshøyde på 4,5 m og største mønehøyde på 6 m, men da med maksimal grunnflate på 36 kvm.
e. Fellesgarasjer mellom to tomter kan plasseres i nabogrense. Garasjer skal som hovedregel plasseres min. 5 m fra regulert trafikkareal. Kommunen kan, om utbyggingen på tomta gjør det nødvendig med innkjøring parallelt med veg, tillate garasjer oppført inntil 2,5 m fra regulert trafikkareal. Garasjer skal tilpasses hovedhuset med hensyn til materialvalg, form og farge.
Område for fritidsbygg - naust (N)
a. I N-området kan det oppføres frittliggende naust med grunnflate inntil 40 kvm og en minimums avstand mellom nausta på 1,5 m. Naustrekkas sjøfront skal brytes opp. Nausta skal ha mønetak med takvinkel på 38 grader. Største mønehøyde mot sjø skal ikke overstige 4,5 m. Nausta skal ha trekledning og ikke skinnende taktekke.
b. Ubebygde deler av naustområdet skal holdes ryddig. Innhegninger tillates ikke.
c. Den naturlige strandlinjen skal i størst mulig grad bevares. Det kan opparbeides støer som skal utføres i naturstein. Støer eller vorer i betong tillates ikke. Utfyllinger i sjøen, moloer eller flytebrygger tillates ikke. Det kan likevel opparbeides ei felles brygge for naustområdet, da fortrinnsvis i østkant av dette.
Uteareal
a. Ikke bebygd del av tomta skal utformes tiltalende. Det er ikke tillatt å ha skjemmende skjæringer og fyllinger. Skjæringer som følge av utgraving/planering av tomt skal tilplantes med stedegen vegetasjon.
b. Det bør i størst mulig utstrekning forsøkes å ta vare på og nytte eksisterende terreng og vegetasjon i området i forbindelse med utbygging. Der planering medfører forstøtningsmur mot nabotomt eller veg, kan kommunen påby at planeringshøyden blir senka eller heva slik at høyden på forstøtningsmuren blir redusert.
c. Terreng, gjerde og hekker langs gater og i kryss skal ikke være høyere enn 0,7 m over vegnivået. Ved avkjørsler gjelder krava ovenfor, men høyden skal ikke være over 0,5 m. Se ellers bestemmelsene vedrørende frisiktsone.
d. Innenfor hver tomt må utbygger sørge for nødvendige drenering for overvatn og grunnvatn, og føre dette til avløp til bekk/vassdrag eller kommunalt/privat ledningsnett etter godkjenning av kommunen.
e. Kommunen skal ha rett til å utnytte uteareal i samband med nødvendig vedlikehold av kommunaltekniske anlegg som krysser eller ligger inntil byggeområda.
f. I boligområda skal det opparbeides min. 20 kvm areal egnet til leik per boenhet som minste uteoppholdsareal (MUA). Arealet skal vises på situasjonsplan ved byggemelding.
Samtlige reguleringsbestemmelser inkl. reguleringskart følger som vedlegg til salgsoppgaven.
Vei, vann og avløp
Vei, vann og avløp vil etableres av Møre Utvikling AS. Vann fra borebrønner i fjell og privat avløp med stikkledninger og tilknytningspunkter for tomtene blir etablert. Se vedlagt kart med oversikt over vann- og avløpsledninger. Vei vil bli etablert fra FV110 ned til nausttomtene som vist på vedlagte kart/tegninger. Ledninger for vann og elektrisitet blir lagt ned til nausttomtene.
Tilknytningsgebyr for vann og avløp er kr. 8.500 x2.
Rettigheter og heftelser
Eiendommen overdras fri for pengeheftelser. Kommunen har lovbestemt legalpant i eiendom som sikkerhet for betaling av kommunale gebyr.
Ved fradeling av tomtene vil det bli tinglyst rettighet for Møre Utvikling AS til å utføre grave/grunnarbeid på tomtene.
Under følger et utdrag av tinglyste erklæringer på eiendommen. For komplett utskrift, ta kontakt med megler.
Servitutter i grunn:
1878/900036-1/58 24.10.1878
UTSKIFTING
GJELDER DENNE REGISTERENHETEN MED FLERE
Overført fra: KNR: 1508 GNR: 536 BNR: 2
1879/900095-1/58 23.10.1879
BESTEMMELSE OM VEG
GJELDER DENNE REGISTERENHETEN MED FLERE
Overført fra: KNR: 1508 GNR: 536 BNR: 2
1940/100737-3/58 07.08.1940
BESTEMMELSE OM VEG RETTIGHETSHAVER: KNR: 1508 GNR: 536 BNR: 4 Bestemmelse om vannrett
GJELDER DENNE REGISTERENHETEN MED FLERE
Overført fra: KNR: 1508 GNR: 536 BNR: 2
1946/101046-3/58 11.07.1946
BESTEMMELSE OM VANNRETT RETTIGHETSHAVER: KNR: 1508 GNR: 536 BNR: 5 Bestemmelse om beiterett
Bestemmelse om vannledning Med flere bestemmelser
GJELDER DENNE REGISTERENHETEN MED FLERE
Overført fra: KNR: 1508 GNR: 536 BNR: 2
1961/100831-1/58 22.02.1961
ERKLÆRING/AVTALE Rettighetshaver: Televerket Bestemmelser om telefonledninger/stolper/kabler/grøfter m.v.
GJELDER DENNE REGISTERENHETEN MED FLERE
Overført fra: KNR: 1508 GNR: 536 BNR: 2
1968/104444-1/58 28.11.1968
JORDSKIFTE
GJELDER DENNE REGISTERENHETEN MED FLERE
Overført fra: KNR: 1508 GNR: 536 BNR: 2
1973/101142-1/58 08.03.1973
SKJØNN
GJELDER DENNE REGISTERENHETEN MED FLERE
Overført fra: KNR: 1508 GNR: 536 BNR: 2
1973/101197-1/58 08.03.1973
SKJØNN
GJELDER DENNE REGISTERENHETEN MED FLERE
Overført fra: KNR: 1508 GNR: 536 BNR: 2
1978/103966-3/58 22.06.1978
BESTEMMELSE OM VEG RETTIGHETSHAVER: KNR: 1508 GNR: 536 BNR: 9 Bestemmelse om vannrett
GJELDER DENNE REGISTERENHETEN MED FLERE
Overført fra: KNR: 1508 GNR: 536 BNR: 2
1978/103967-2/58 22.06.1978
BESTEMMELSE OM VEG RETTIGHETSHAVER: KNR: 1508 GNR: 536 BNR: 10 Bestemmelse om vannrett
GJELDER DENNE REGISTERENHETEN MED FLERE
Overført fra: KNR: 1508 GNR: 536 BNR: 2
1978/103968-3/58 22.06.1978
BESTEMMELSE OM VEG RETTIGHETSHAVER: KNR: 1508 GNR: 536 BNR: 11 Bestemmelse om vannrett
GJELDER DENNE REGISTERENHETEN MED FLERE
Overført fra: KNR: 1508 GNR: 536 BNR: 2
1981/104155-3/58 02.06.1981
BESTEMMELSE OM VEG RETTIGHETSHAVER: KNR: 1508 GNR: 536 BNR: 12 Bestemmelse om vannrett
GJELDER DENNE REGISTERENHETEN MED FLERE
Overført fra: KNR: 1508 GNR: 536 BNR: 2
1982/103901-1/58 22.06.1982
ELEKTRISKE KRAFTLINJER
GJELDER DENNE REGISTERENHETEN MED FLERE
Overført fra: KNR: 1508 GNR: 536 BNR: 2
1986/107602-1/58 02.10.1986
BESTEMMELSE OM VEG RETTIGHETSHAVER: KNR: 1508 GNR: 536 BNR: 14 Bestemmelse om vann/kloakkledning Bestemmelse om gjerde
GJELDER DENNE REGISTERENHETEN MED FLERE
Overført fra: KNR: 1508 GNR: 536 BNR: 2
1986/108060-2/58 17.10.1986
BESTEMMELSE OM VEG RETTIGHETSHAVER: KNR: 1508 GNR: 536 BNR: 13 Bestemmelse om vann/kloakkledning
GJELDER DENNE REGISTERENHETEN MED FLERE
Overført fra: KNR: 1508 GNR: 536 BNR: 2
2014/916786-1/200 23.10.2014
JORDSKIFTE
Grensegangssak 1510-2011-0009 Utvik, gnr. 36 ved Sunnmøre jordskifterett
GJELDER DENNE REGISTERENHETEN MED FLERE
Overført fra: KNR: 1508 GNR: 536 BNR: 2
Det gjøres oppmerksom på at kjøpers bank vil få prioritet etter disse heftelsene.
For servitutter eldre enn fradelingsdato og eventuelle arealoppføringer som kan ha betydning for denne matrikkelenhet henvises det til avgivereiendommen. Ta kontakt med megler for mer informasjon.
Velforening
Konsesjon og odel
Erverv av ubebygd enkelttomt for bolig, fritidsbolig eller naust som er mindre enn 2 dekar, er i utgangspunktet konsesjonsfritt etter konsesjonsloven § 4 første ledd nr. 1 og 2. Konsesjonsfriheten er imidlertid betinget av at tomten blir bebygd innen fem år fra ervervstidspunktet, jf. konsesjonsloven § 4 andre ledd.
Dersom tomten ikke bebygges innen fristen, kan kommunen sette frist for kjøper til å søke konsesjon. Eventuell konsesjonsplikt og risiko knyttet til manglende oppfyllelse av byggeplikten påhviler kjøper.
Kjøper er kjent med at konsesjonsfriheten bekreftes overfor kommunen ved utfylling av egenerklæring om konsesjonsfrihet. Det er en forutsetning for handelen at kjøper signerer denne, og at erklæringen godkjennes av kommunen.
Diverse
Overtagelse
Overtagelse skjer etter nærmere avtale og avtales normalt senest i forbindelse med budaksept. Overtakelse kan først skje etter at eiendommen er fradelt og fått tildelt eget bruksnummer.
Om salgsoppgaven
Salgsoppgaven er basert på selgers opplysninger gitt til eiendomsmegler og opplysninger innhentet fra kommunen og evt. andre tilgjengelige kilder. Interessenter oppfordres til å undersøke eiendommen godt, gjerne sammen med sakkyndig, og til å lese gjennom fullstendig salgsoppgave med vedlegg før bud inngis. Det er ikke kontrollert om tomtegrensene stemmer med de grenser/gjerde som fysisk er satt. Salgsoppgaven er lest og godkjent av selger.
Kjøpsvilkår
Budgivning
Vi oppfordrer alle til å lese Forbrukerinformasjon om budgivning før bud inngis. Alle bud og budforhøyelser skal inngis skriftlig til megler. I tillegg er megler pålagt å innhente gyldig legitimasjon og signatur fra budgiver før bud kan formidles til selger. Det informeres om at det ikke er angrerett ved kjøp av eiendom og ved aksept av bud er bindende avtale mellom selger og kjøper inngått.
Kravet til legitimasjon og signatur er oppfylt for budgivere som benytter Bank-ID og vi oppfordrer derfor alle til å gi bud elektronisk ved å benytte GI BUD knappen på eiendommens hjemmeside. Eventuelle forhøyelser kan sendes ved å svare direkte på mottatt sms fra meglers system. Alle budforhøyelser skal bekreftes av megler.
For at budene skal kunne bli behandlet og videreformidlet skriftlig til alle involverte parter, må alle bud ha en tilstrekkelig lang akseptfrist, jf. Eiendomsmeglingsloven § 6-8 (3). Selger må også skriftlig akseptere budet før aksept kan formidles til budgiver. Akseptfrist på alle bud skal være minimum 30 minutter, og budforhøyelser må skje i god tid før fristens utløp. Bud som ikke er skriftlig, eller som har kortere akseptfrist enn til kl. 12.00 dagen etter siste annonserte visning, vil ikke bli formidlet til selger.
Eiendomsmegler har ikke lov til å formidle hemmelige bud eller bud med forbehold som hindrer megler i å formidle budet til andre enn selger, jf eml 6-8 (3). Slike bud vil derfor ikke bli formidlet til selger.
Eiendomsmegler er iht eml § 6-8(6) pålagt å gjennomføre kontroll av budgivernes finansiering. Dersom det ikke er mulig for megler å gjennomføre dette før aksept av bud plikter megler å advare selger om risiko knyttet til dette.
Selger står fritt til å akseptere eller forkaste et hvert bud og er således ikke forpliktet til å akseptere det høyeste budet på eiendommen. Etter at eiendommen er solgt vil kjøper og selger få tilsendt budjournal. Øvrige budgivere kan få utlevert kopi av budjournalen i anonymisert form.
Det gjøres oppmerksom på at budgiver også vil være den som vil stå som kjøper av eiendommen. Dersom man etter at bud er akseptert ønsker å endre hvem som skal stå som eier, forutsetter dette at selger godkjenner en slik endring. Alle involverte parter skal signere kjøpekontrakt og er solidarisk ansvarlig for kjøpet frem til oppgjør er gjennomført. For seksjon/andel/akjse-bolig vil forretningsfører normalt kreve ekstra eierskiftegebyr dersom de har mottatt eierskiftemelding og det i ettertid skal legges til/endre kjøper. Eierskiftemelding sendes normalt fra megler til forretningsfører samme dag som budaksept.
Lov om hvitvasking
Eiendomsmeglingsforetak plikter etter lov om hvitvasking å gjennomføre kontrollhandlinger knyttet til kjøper og selgers identitet og forhold knyttet til gjennomføringen av handelen. Dette omfatter også opplysninger om kundeforholdets formål og tilsikrede art. For kjøper må kontroll av legitimasjon skje senest ved inngåelse av kontrakt. Signering med bankID er regnet som gyldig legitimasjonskontroll. Ved oppdrag hvor juridiske personer (selskap) er part må eiendomsmegler også gjennomføre kontroll av hvilke fysiske personer som kontrollerer selskapet (reelle rettighetshavere). Dersom megler ikke klarer å gjennomføre pålagte kundetiltak må megler avvise kunden og oppdraget. Megler har også plikt å melde forhold som ikke er avklart og fremstår som mistenkelige til Økokrim. Megler kan også i enkelte tilfeller ha plikt til å stanse gjennomføringen av handelen.
Eiendomsmegler plikter å gjennomføre undersøkelser av kjøpers egenkapital og eventuelt andre forhold knyttet til kjøper. Den delen av kjøpesummen som er egenkapital skal innbetales fra kjøpers konto i norsk finansinstitusjon.
Salgsbetingelser
Eiendommen skal overleveres kjøper i tråd med det som er avtalt. Det er viktig at kjøper setter seg grundig inn i alle salgsdokumentene, herunder salgsoppgave, tilstandsrapport og selgers egenerklæring. Kjøper anses kjent med forhold som er tydelig beskrevet i salgsdokumentene. Forhold som er beskrevet i salgsdokumentene kan ikke påberopes som mangler. Dette gjelder uavhengig av om kjøper har lest dokumentene. Alle interessenter oppfordres til å undersøke eiendommen nøye, gjerne sammen med fagkyndig før bud inngis. Kjøper som velger å kjøpe usett kan ikke gjøre gjeldende som mangel noe han burde blitt kjent med ved undersøkelsen.
Dersom det er behov for avklaringer, anbefaler vi at kjøper rådfører seg med eiendomsmegler eller en bygningssakyndig før det legges inn bud.
Hvis eiendommen ikke er i samsvar med det kjøperen må kunne forvente ut ifra alder, type og synlig tilstand, kan det være en mangel. Det samme gjelder hvis det er holdt tilbake eller gitt uriktige opplysninger om eiendommen og dette har virket inn på avtalen.
Eiendommen kan ha en mangel dersom det er avvik mellom opplyst og faktisk areal. For tomt vil det kunne være en mangel dersom arealet er vesentlig mindre enn opplyst, jf avhl § 3-3.
Ved beregning av et eventuelt prisavslag eller erstatning må kjøper selv dekke tap/kostnader opptil et beløp på kr 10 000 (egenandel).
Dersom kjøper ikke er forbruker selges eiendommen som den er , og selgers ansvar er da begrenset jf. avhl. § 3-9, 2. pktm. Informasjon om kjøpers undersøkelsesplikt, herunder oppfordringen om å undersøke eiendommen nøye, gjelder også for kjøpere som ikke anses som forbrukere.
Eiendomsmegler sin standardkontrakt inneholder bl.a. bestemmelser om at hvis det foreligger vesentlig mislighold som bl.a. gir selger rett til å heve når det er gått 30 dager fra avtalt betalingstid, kjøper aksepterer dette som bindende for seg.
Det forutsettes at hjemmel til eiendommen overføres til kjøper. Dersom dette ikke er ønskelig må det tas forbehold i budet.
Lov om avhending av fast eigedom (avhendingslova)
Frivillig salg av fast eiendom reguleres av Lov om avhending av fast eiendom av 3. juli 1992 nr. 93.
Vedlegg til salgsoppgave og kjøpekontrakt
Vedlagt i salgsoppgaven følger kommunale opplysninger (f. eks reguleringskart med bestemmelser) mm. Alle interessenter forutsettes å ha satt seg inn i salgsoppgave med vedlegg før bud inngis. Ta gjerne kontakt med megler dersom du ønsker utlevert dine egne kopier av dokumentene.
Det gjøres oppmerksom på at Partners Eiendomsmegling Storfjord sine standard kjøpekontrakter blir benyttet i handelen, dersom det ikke avtales noe annet før handel har kommet i stand.
Behandling av personopplysninger
Det gjøres oppmerksom på at foretaket behandler personopplysninger og all behandling skjer iht. personvernregelverket. Meglerforetaket behandler kun personopplysninger som er nødvendig for å gjennomføre oppdraget. Det gjøres oppmerksom på at vi deler dine personopplysninger med offentlige myndigheter i den utstrekning det er nødvendig og med virksomheter som tilbyr tjenester for gjennomføring av oppdraget. For mer informasjon se personvernerklæring på foretakets hjemmeside.
Om oppdraget
Eier
Eier er Gyrihaugen Eiendom AS.
Adresse, matrikkel og oppdragsnummer
Eiendommens adresse er Gyrihaugen.
Matrikkel tilhørende eiendommen: gnr. 536, bnr. 18 i Ålesund. Tomtene vil bli fradelt med eget bnr, etter hvert som det foreligger avtale om kjøp.
Vårt oppdragsnummer er 21240200.
Megler og meglers vederlag
Følgende er avtalt om meglers vederlag per solgte enhet, og skal betales av selger:
Oppgjørshonorar : 3 200,00
Provisjon per enhet: 21 800,00
I tillegg dekker oppdragsgiver kostnader knyttet til markedsføring, kommunale opplysninger og tilretteleggingsgebyr.
Dersom handel ikke kommer i stand eller oppdraget sies opp, har oppdragstaker krav på rimelig vederlag for medgått tid/utført arbeid og avtalte utgifter (utgifter til påløpte visninger, innhenting av opplysninger, markedspakke og tilrettelegging), samt eventuelle utlegg. Alle priser er inkl. mva.
Ansvarlig megler er Vegard Solem Lianes / +47 92 81 18 28/ lianes@partners.no.
Partners Eiendomsmegling Storfjord
Nærområdet
Annonseinformasjon
| FINN-kode | 369363193 |
|---|---|
| Sist endret | 12. feb. 2026 10:18 |
| Referanse | 21240200 |
Annonsene kan være mangelfulle i forhold til lovpålagt opplysningsplikt. Før bindende avtale inngås oppfordres interessenter til å innhente komplett informasjon fra meglerforetaket, selger eller utleier.














