Bildegalleri

Langgårdslia er et nytt og vellykket boligområde - ett av svært få områder i kommunen med nye boligtomter. Området er som adressen antyder høytliggende, med gode solforhold og ikke minst utsyn
Tomt på 957 kvm med fantastisk utsikt og solforhold - Arkitekten tegner din drømmebolig* - inkl. i prisen (!!!)
- Totalpris
- 3 588 500 kr
- Omkostninger
- 88 500 kr
Nøkkelinfo
Om eiendommen
Kort om eiendommen
Kjøper kan velge å bruke tegningene av boligen som vist i illustrasjoner, eller få tegnet sitt eget drømmehjem av høy kvalitet i samarbeid med arkitekt Erling Berg.
*Fullstendig søknad til kommunen og godkjent rammetillatelse inngår i tilbudet med arkitekt som ansvarlig søker, så lenge søknad/utforming av ønsket bolig følger normer og regler i reguleringsplanen og kommuneplanen.
Langgårdslia er et nytt og vellykket boligområde - ett av svært få områder i kommunen med nye boligtomter.
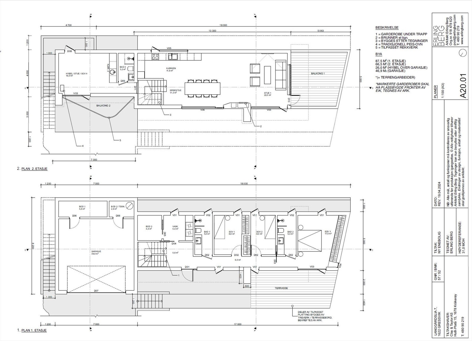
Det er gitt igangsettelsestillatelse til oppføring av en enebolig datert 21.02.2024 tegnet av arkitekt Erling Berg (www.erlingberg.com) . Boligen oppføres over 2 etasjer med et samlet bruksareal (BRA) på 204kvm. Boligen er tegnet i en moderne arkitektur med en familievennlig og praktisk romløsning.
Beliggenhet
Langgårdslia er et nytt og vellykket boligområde - ett av svært få områder i kommunen med nye boligtomter. Området er som adressen antyder høytliggende, med gode solforhold og ikke minst utsyn. Adkomstveien leder kun hit og gjør nabolaget tilbaketrukket og fredfylt, uten noen form for gjennomgangstrafikk.
For en familie med barn i skolealder vil det oppleves som praktisk i hverdagen at barneskolen er en kort rusletur unna, til dels på en trafikksikker gang- og sykkelvei som leder frem til skolegården langs hovedveien.
I sommerhalvåret er nærheten til sjøen et stort pluss; flere fine badesteder er innenfor sykkelavstand, deriblant Foten med kafé, stupetårn og volleyballbane. Det finnes i tillegg flere småbåthavner i området, nærmest er Slevik brygge der det også er mulig å sette ut kajakk. Skaffer man seg båtplass i en av havnene, får man også et meget godt utgangspunkt for å utnytte den omfangsrike og vakre skjærgården utenfor Fredrikstad og Hvaler.
Til sentrumsområdet av Fredrikstad tar det knappe kvarteret med bil, det er imidlertid også mulig å parkere ved Ålekilene og ta gratis byferge inn til sentrum. Slik unngår du også bomringen rundt sentrum. Fergen har hyppige avganger fra grytidlig morgen til sen kveld. Skal du med toget, kan det være vel verdt å benytte Råde stasjon som har meget gode parkeringsmuligheter og er kun like over kvarteret unna med bil.
Adkomst
Veibeskrivelse Se Google maps - det er enkelt å finne frem i kartet.
Det vil bli skiltet med Krogsveen visningsskilt ved fellesvisninger.
Diverse opplysninger
Selger har ikke forsøkt å bebygge eiendommen og har derfor ikke kunnskap om eiendommens tilstand. Kjøper må derfor kunne påregne at det kan være flere feil og mangler som normalt ville vært oppdaget ved grave-, og bygningsarbeider, men som selger ikke har mulighet å viteSelger har ikke forsøkt å bebygge eiendommen og har derfor ikke kunnskap om eiendommens tilstand. Kjøper må derfor kunne påregne at det kan være flere feil og mangler som normalt ville vært oppdaget ved grave-, og bygningsarbeider, men som selger ikke har mulighet å vite
Tomten
Eiertomt på 958 kvm. Solrik vestvendt tomt beliggende på et høydedrag i et nyere og moderne strøk. Det er gitt igangsettelsestillatelse til oppføring av en enebolig datert 21.02.2024 tegnet av arkitekt Erling Berg (www.erlingberg.com) . Boligen oppføres over 2 etasjer med et samlet bruksareal (BRA) på 204 kvm.
Vei, vann og avløp
Eiendommen har adkomst via kommunal vei.
Eiendommen kan tilknyttes det kommunale ledningsnettet via private stikkledninger. Kjøper er ansvarlig for opparbeidelse frem til kommunalt nett.
Ved tilkobling til ledningsnettet påløper tilkoblingsavgift se punkt kommunale avgifter for gebyrer
Eiendommens utgifter
Det er ikke registrert noen kommunale avgifter på eiendommen pr. i dag og det vil komme kommunale avgifter.
Vann- og avløpsgebyrer for Fredrikstad kommune:
Satsene nedenfor gjelder fra 1. januar 2024.
Alle priser er inkludert merverdiavgift.
Abonnementsgebyr og forbruksgebyr
Abonnementsgebyr vann (fast del): kr. 1 510,-
Forbruksgebyr vann (variabel del): kr. 17,78 pr m³
Abonnementsgebyr avløp (fast del): kr. 2 415,-
Forbruksgebyr avløp (variabel del): kr. 35,29 pr m³
Engangsgebyr for tilknytning
Tilknytning til vann per boenhet: kr. 1143,-
Tilknytning til avløp per boenhet: kr. 1143,-
For nærmer informasjon gå inn på kommunens hjemmeside : https://www.fredrikstad.kommune.no/tjenester/vannogavlop/gebyrer/
Renovasjonsgebyr husholdningsrenovasjon
Bolig, 80 liter, uten hjemmekompostering: kr. 2 650,-
Bolig, 140 liter, uten hjemmekompostering: kr. 3 683,-
Bolig, 240 liter, uten hjemmekompostering: kr. 5 083,-
Feiing
Feie- og tilsynsavgift 1 (ettløps pipe) kr. 471,-
Feie- og tilsynsavgift 2 (toløps pipe) kr. 941,-
Tinglyste heftelser og rettigheter
Eiendommen overdras fri for pengeheftelser
Det er tinglyst 7 servitutter på eiendommen i forbindelse med gjennomføringen av det nye boligfeltet.
Disse servituttene omhandler: en del bestemmelser om vann/kloakk ledninger, jordskifte , bestemmelse om bebyggelser fra andre tomter på feltet mm.
Tinglyste servitutter på eiendommen.
3107/57/52:
21.02.1911 - Dokumentnr: 916481 - Bestemmelse om veg
Overført fra: Knr:3107 Gnr:57 Bnr:34
Gjelder denne registerenheten med flere
29.11.1982 - Dokumentnr: 11690 - Best. om vann/kloakkledn.
Rett for kommunen til å anlegge og vedlikeholde ledninger m.m.
Overført fra: Knr:3107 Gnr:57 Bnr:34
Gjelder denne registerenheten med flere
30.03.1987 - Dokumentnr: 3093 - Erklæring/avtale
Grensegangssak
Overført fra: Knr:3107 Gnr:57 Bnr:34
Gjelder denne registerenheten med flere
12.01.2004 - Dokumentnr: 435 - Jordskifte
Grensegangssak, sak nr. 4/2003.
Overført fra: Knr:3107 Gnr:57 Bnr:34
Gjelder denne registerenheten med flere
25.02.2005 - Dokumentnr: 2609 - Bestemmelse om veg
Rettighetshaver: Knr:3107 Gnr:67 Bnr:18
Med flere bestemmelser
Overført fra: Knr:3107 Gnr:57 Bnr:34
Gjelder denne registerenheten med flere
07.03.2005 - Dokumentnr: 3067 - Jordskifte
Grensegangssak nr 13/2004
Overført fra: Knr:3107 Gnr:57 Bnr:34
Gjelder denne registerenheten med flere
01.07.2005 - Dokumentnr: 8697 - Bestemmelse om bebyggelse
Rettighetshaver: Knr:3107 Gnr:67 Bnr:18
Med flere bestemmelser
Overført fra: Knr:3107 Gnr:57 Bnr:34
Gjelder denne registerenheten med flere
Servituttene vil følge eiendommen og kopi av servituttene kan fås av megler.
Reguleringsbestemmelser
Eiendommen er regulert til frittliggende småhusbebyggelse - Gul Sone T - 1442 i henhold til reguleringsplan for Langgård Søndre datert 25.6.2020 med tilhørende reguleringsbestemmelser
Eiendommen omfattes også av kommuneplan Fredrikstad 2023- 2035 med formål bebyggelse og anlegg men hensyn friluftsliv.
Utsnitt av plan med tilhørende bestemmelser kan fås ved henvendelse til megler.
Dette er et nyetablert villaområdet og det må forventes at at det et vi bli oppført leiligheter og / eller eneboliger i kjede på områdene BK 1 og BK 2. I område VS 1 skal trær bevares i best mulig grad. Interessenter oppfordres til selv å undersøke reguleringsmessige forhold hos kommunen.
Det er gitt igangsettelsestillatelse til oppføring av enebolig datert 21.02.2024
Utdrag fra igangsettelsestillatelsen:
Tiltaket innehar etter plan- og bygningsmyndighetens skjønn, gode visuelle kvaliteter både i seg selv og i forhold til dets funksjon og dets bygde og naturgitte omgivelser og plassering, jf. plan og bygningsloven § 29-2.
Innsendt dokumentasjon viser en plassering av boligen og adkomst til eiendommen som er godt tilpasset området slik det er i dag.
Boligen oppføres over 2 etasjer med et samlet bruksareal (BRA) på 204kvm. Boligen har ett flatt tak med en øvre gesimshøyde fra gjennomsnittlig planert terreng på 6.57m. Adkomst til eneboligen og parkering følger terrengets situasjon på eiendommen. Bebygd areal (BYA) er 157kvm som
utgjør 16% av tomtens areal.
Vann og avløp:
Fredrikstad kommune har vedtatt Standard abonnementsvilkår for vann og avløp og alle arbeider skal utføres i henhold til dette. Det er ansvarlig søkers plikt å gjøre seg kjent med bestemmelser og regler i vilkårene. Vi vil minne om noen saker og viktige bestemmelser.
Eventuelt forlengelse av va-stikkledninger skal etableres med frostfri dybde, eller sikres med isolasjon/varmekabel.
Høydeforskjellen mellom laveste sluk bolig og innvendig topp hovedledning, skal ikke være mindre enn 900 mm.
Det er for boligfeltet/eiendommen ikke avsatt overvann stikkledning for drenering. Takvann/eventuelt drenering skal tas hånd om innenfor bygge området gjennom infiltrasjon, fordrøyning i grunnen og åpne vannveier, uten sjenanse for annen part.
Avrenningsintensiteten fra eiendommen må ikke være større etter utbygging enn det var før utbygging.
Innmålingsdokumentasjon av Va- stikkledninger (som bygget). Kan leveres som va- kart målsatt fra 2 fastpunkt: Inntak i vegg/sokkel bygg, tilkoblingspunkt, trase (plassering av ledninger i terreng), vinkling, VA-utstyr. Stikkledninger skal være påført dimensjon/materiale. Eventuelt i digitalt filformat (sosi, kof, dwg eller dxf) i henhold til gjeldende sosi-standard, med x-, y-, og z-koordinater. Samt va- situasjonsplan med informasjon om tilkoblingspunkt, trasé
(plassering av ledninger i terreng), vinkling, dimensjon, materiale og va-utstyr.
Det skal søkes sanitærabonnement gjennom entreprenørsportalen til Virksomhet Vann og avløp. Denne skal være behandlet og godkjent før boligen tilkoples, og vann og avløp tas i bruk
Tillatelsens varighet:
Er tiltaket ikke lovlig satt i gang senest 3 år etter at tillatelse er gitt, faller tillatelsen din bort. Det samme gjelder hvis tiltaket innstilles i mer enn 2 år. Disse bestemmelser gjelder tilsvarende for dispensasjon. Dersom det klages på vedtaket regnes fristen 3 år fra det endelige vedtaket i klagesaken. Fristene kan ikke forlenges.
Dersom man ikke ønsker å benytte seg av ovennevnte igangsettelse, er kjøper selv ansvarlig for å skaffe alle nødvendige tillatelser fra kommunen for å bebygge eiendommen, og må selv avklare med kommunen hva som eventuelt vil bli godkjent på eiendommen.
Lovanvendelse
Generelle bestemmelser
Salgsoppgaven er basert på de opplysningene selger har gitt til megler, den bygningssakyndiges tilstandsrapport, samt opplysninger innhentet fra kommunen, Kartverket og andre tilgjengelige kilder. Det er viktig at kjøper setter seg grundig inn i alle salgsdokumentene, herunder salgsoppgave, tilstandsrapport og selgers egenerklæring. Kjøper anses kjent med forhold som er tydelig beskrevet i salgsdokumentene, og slike forhold kan ikke påberopes som mangler. Dette gjelder uavhengig av om kjøper har lest dokumentene. Alle interessenter oppfordres til å undersøke eiendommen nøye, gjerne sammen med fagkyndig før bud inngis. Kjøper som velger å kjøpe usett kan ikke gjøre gjeldende som mangel noe han burde blitt kjent med ved undersøkelsen.
Dersom det er behov for avklaringer, anbefaler vi at interessenter rådfører seg med eiendomsmegler eller egne rådgivere før det legges inn bud.
En bolig som har blitt brukt i en viss tid, har vanligvis blitt utsatt for slitasje og skader kan ha oppstått. Slik bruksslitasje må kjøper regne med, og det kan avdekkes enkelte forhold etter overtakelse som nødvendiggjør utbedringer. Normal slitasje og skader som nødvendiggjør utbedring, er innenfor hva kjøper må forvente og vil ikke utgjøre en mangel.
Kjøper og selgers rettigheter og plikter reguleres av avtalen mellom partene, samt informasjonen som har vært tilgjengelig for kjøperen i forbindelse med handelen. Avtalen utfylles av avhendingsloven, og det gjelder ulike avtalevilkår avhengig av om kjøper er forbrukerkjøper eller ikke. Dette er nærmere beskrevet nedenfor.
På grunn av ulike avtalevilkår kan selger vurdere bud fra en som ikke er forbruker, ulikt fra en forbrukers bud. Dersom kjøper ikke er forbruker, er selger sitt mulige mangelsansvar begrenset fordi eiendommen selges "som den er". Selger kan ikke ta som den er - forbehold overfor en forbrukerkjøper. Selv et lavere bud fra en som ikke er forbruker kan foretrekkes fordi begrensningen i mulig mangelsansvar kan ha egenverdi for selger. Selger står fritt til å forkaste eller akseptere ethvert bud, og er for eksempel ikke forpliktet til å akseptere høyeste bud.
Budgiver skal i budskjema avgi egenerklæring om budgiver er forbruker eller næringsdrivende/ person som hovedsakelig handler som ledd i næringsvirksomhet. Budgivere får informasjon dersom andre bud er inngitt av en som ikke er forbruker.
Forbrukerkjøp - definisjon
Med forbrukerkjøp menes kjøp av eiendom når kjøperen er en fysisk person som ikke hovedsakelig handler som ledd i næringsvirksomhet.
Forbruker avtalevilkår
Eiendommen har en mangel dersom den ikke er i samsvar med kravene som følger av avtalen, eller det foreligger brudd på bestemmelsene i avhendingsloven §§ 3-2 til 3-8. Hvis eiendommen ikke er i samsvar med det kjøperen må kunne forvente ut ifra alder, type og synlig tilstand, kan det være grunnlag for mangelskrav. Det samme gjelder hvis det er holdt tilbake eller gitt uriktige opplysninger om eiendommen. Dette gjelder likevel bare dersom man kan gå ut ifra at det virket inn på avtalen at opplysningen ikke ble gitt eller at mangelskravet ikke blir rettet i tide på en tydelig måte.
Boligen kan ha en mangel etter avhendingsloven § 3-3 andre ledd, dersom det er avvik mellom opplyst og faktisk innvendig areal, forutsatt at avviket er på 2% eller mer og minimum 1 kvm.
Ved beregning av et eventuelt prisavslag eller erstatning må kjøper selv dekke tap/kostnader opptil et beløp på kr 10 000 (egenandel).
Ikke-forbruker (næringsdrivende) definisjon
Hvis kjøper er en juridisk person, eller en fysisk person som hovedsakelig handler som ledd i næringsvirksomhet, vil kjøpet ikke anses som et forbrukerkjøp.
Ikke-forbruker avtalevilkår
Eiendommen har en mangel dersom den ikke er i samsvar med kravene som følger av avtalen.
Eiendommen selges som den er , og selgers ansvar utover det konkret avtalte er da begrenset etter avhendingsloven § 3-9, første ledd andre setning.
Avhendingsloven § 3-3 andre ledd fravikes, og hvorvidt boligens arealsvikt utgjør en mangel vurderes etter avhendingsloven § 3-8.
Informasjon om kjøpers undersøkelsesplikt, herunder oppfordringen om å undersøke eiendommen nøye, gjelder også for kjøpere som ikke anses som forbrukere.
Det forutsettes at hjemmel overføres til kjøper. Hvis kjøper ikke ønsker hjemmelsoverføring av eiendommen, må det tas forbehold om dette i budet.
Rett til fritt å velge megler
Valg av eiendomsmeglingsforetak skal være frivillig. Eiendomsmeglingsforetak kan ikke inngå oppdrag om eiendomsmegling dersom inngåelsen av oppdraget er satt som vilkår i avtale om annet enn eiendomsmegling, f.eks. tilbud om lån eller andre banktjenester, jf. Lov om eiendomsmegling § 6-3 (3)
Ansvarlig megler
Kenneth Graarud Olsen
Daglig Leder / Eiendomsmegler / Partner
Nyttige lenker
Krogsveen Fredrikstad og Sarpsborg
Nærområdet
Annonseinformasjon
| FINN-kode | 369230347 |
|---|---|
| Sist endret | 05. jan. 2026 09:00 |
| Referanse | KR67.24307 |
Annonsene kan være mangelfulle i forhold til lovpålagt opplysningsplikt. Før bindende avtale inngås oppfordres interessenter til å innhente komplett informasjon fra meglerforetaket, selger eller utleier.





