Bildegalleri

Velkommen til denne flotte, sentrumsnære eneboligtomten på Hammonds veg!
Sentrumsnær boligtomt med rammegodkjent bolig | Nydelig utsikt |Attraktivt område ved barnehager, skoler & idrettsanlegg
- Totalpris
- 1 384 840 kr
- Omkostninger
- 34 840 kr
- Formuesverdi
- 272 000 kr
Nøkkelinfo
Visning
Om eiendommen
Kort om eiendommen
I Hammonds veg kan du nå sikre deg en flott utsiktstomt på ca. 560 kvm - et attraktivt område like utenfor Melhus sentrum.
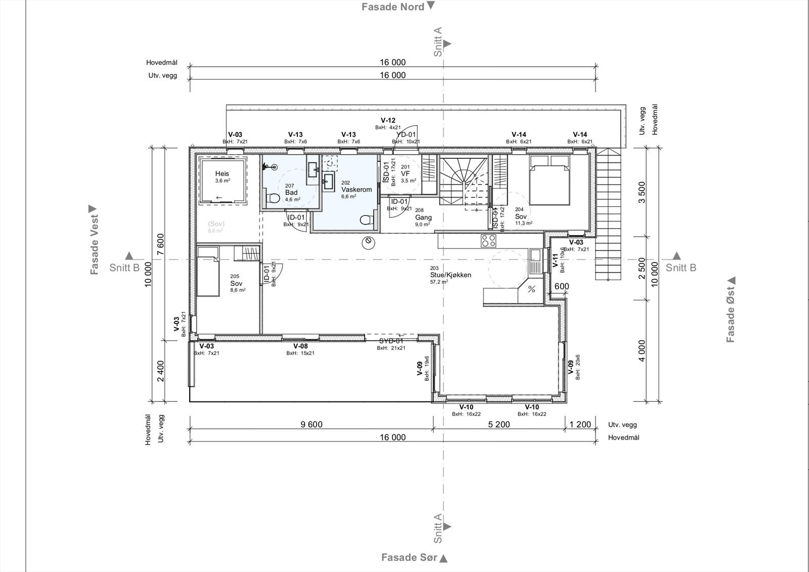
Det er gitt rammetillatelse for oppføring av en enebolig over tre etasjer, med garasje i sokkel og egen boenhet i deler av første etasje.
Utsikten er slående vakker, og den gode beliggenheten gir lett tilgang til alle hverdagsfasiliteter, noe som må sies å være optimalt for aktive familier.
Verdt å merke seg:
- Flott utsikt
- Rammegodkjent enebolig med utleiedel og integrert garasje
- Tegninger på boligen og alle andre søknadsdokumenter følger med til ny eier
- Gangavstand til skoler, barnehager og idrettsanlegg
- Kort vei til Melhus sentrum, med gode kollektivtilbud
- Flotte turområder i umiddelbar nærhet
Ta kontakt om du ønsker visning!
Bebyggelse
Hvorfor bygge nytt?
- Du får tilpasset boligen etter eget behov
- Boligen er i forskriftsmessig stand med mange års reklamasjonsfrist
- Energiøkonomiske og klimavennlige løsninger
- Innflyttingsklar uten tanke på å måtte pusse opp først
- Det er svært lite vedlikeholdskostnader i nær framtid
Beliggenhet
Tomten ligger i et naturskjønt og solrikt boligområde like utenfor Melhus sentrum. Melhus ligger rett sør for Trondheim og er en attraktiv kommune i vekst, og fra tomten er det kort vei til skoler, barnehager, butikker og kollektivtilbud.
Rema 1000 og Coop Extra er nærmeste dagligvare. Melhustorget er nylig utvidet og modernisert, og fyllt med mye spennende innenfor store kjedebutikker, mindre, lokale forhandlere, kafeer og andre servicetilbud.
Senteret har p-hus i kjelleren og rett utenfor ligger torget selve kjernen i det nye sentrum. Torget er sørvestvendt og gjør at du kan nyte nydelig mat og drikke mens solen går ned i vest. City Syd og Trondheim sentrum ligger også godt innen rekkevidde.
Offentlig kommunikasjon
Kollektivtilbudet på Melhus består av buss og tog, med gode bussforbindelser fra sentrum. Nærmeste bussholdeplass er Varmbu og det er ca. 4 min med bil, eller 11 min på sykkel, til Melhus stasjon. Med bil tar det ca. 12 min til Øysanden, 14 min til Heimdal, 16 min til Tiller, 25 min til Trondheim og 44 min til Trondheim Lufthavn, Værnes.
Adkomst
Se vedlagt kartskisse på høyre side i annonsen. Ved å trykke på kartet får du enkelt tilgang til en spesifisert reiserute fra din destinasjon til boligen. På visningsdagen vil det bli skiltet med visningsskilter fra Heimdal Eiendomsmegling. Velkommen til visning!
Overtakelse
Etter avtale med selger.
Boligselgerforsikring
Selger har ikke tegnet boligselgerforsikring, men har likevel utarbeidet egenerklæring i forbindelse med salget. Kjøper plikter seg til å gjøre seg kjent med denne før budgivning/kjøp. Egenerklæringen er lagt ved salgsoppgaven.
Budgivning
Alle bud skal inngis skriftlig til megler. Bud kan legges inn på nettannonsen på "gi bud knappen" eller via hjemmesiden. Ved elektronisk budgivning kan bud legges inn trygt og enkelt med bank-ID. Megler kan også kontaktes for tilsendelse av budkjema. Budskjema finnes også i salgsoppgaven. Kravet til skriftlighet gjelder også budforhøyelser, motbud og aksept.
Et bud er bindende for budgiver når budet er kommet til selgers kunnskap. Selger står fritt til å akseptere eller forkaste ethvert bud, og er således ikke forpliktet til å akseptere det høyeste budet på eiendommen. Megler skal, i den grad det er nødvendig og mulig, informere de involverte i budrunden skriftlig om status i budgivningen.
Megler prøver så langt det er mulig å holde interessenter orientert om bud på eiendommen. Budvarsel krever skriftlig samtykke fra mottaker. Megler skal så snart som mulig bekrefte skriftlig ovenfor budgiver at bud er mottatt. Bud som ikke er skriftlig, eller som har kortere akseptfrist enn til kl. 12.00 dagen etter siste annonserte visning, vil ikke bli formidlet til selger. Unntak fra dette kan gjelde dersom selger er å anse som næringsdrivende.
Vi oppfordrer til å legge inn bud på eiendommen i god tid før budfristen. Dersom du mot formodning ikke mottar informasjon om bud på eiendommen, oppfordrer vi til å selv ta direkte kontakt med megleren.
Selger og kjøper har krav på å få utlevert kopi av budjournalen straks etter at handel er kommet i stand. Alle som har inngitt bud på eiendommen kan på forespørsel få en kopi av anonymisert budjournal etter at budrunden er avsluttet. For øvrig vises til det Forbrukerinformasjon om budgivning , som er vedlagt i salgsoppgaven.
Prospektet er gjennomlest og godkjent av selger.
Lovanvendelse
Eiendommen selges etter reglene i avhendingsloven.
Eiendommen skal overleveres kjøper i tråd med det som er avtalt. Det er viktig at kjøper setter seg grundig inn i alle salgsdokumentene, herunder salgsoppgave, tilstandsrapport og selgers egenerklæring. Kjøper anses kjent med forhold som er tydelig beskrevet i salgsdokumentene. Forhold som er beskrevet i salgsdokumentene kan ikke påberopes som mangler. Dette gjelder uavhengig av om kjøper har lest dokumentene. Alle interessenter oppfordres til å undersøke eiendommen nøye, gjerne sammen med fagkyndig før bud inngis. Kjøper som velger å kjøpe usett kan ikke gjøre gjeldende som mangel noe han burde blitt kjent med ved undersøkelsen.
Dersom det er behov for avklaringer, anbefaler vi at kjøper rådfører seg med eiendomsmegler eller en bygningssakyndig før det legges inn bud.
Hvis eiendommen ikke er i samsvar med det kjøperen må kunne forvente ut ifra alder, type og synlig tilstand, kan det være en mangel. Det samme gjelder hvis det er holdt tilbake eller gitt uriktige opplysninger om eiendommen. Dette gjelder likevel bare dersom man kan gå ut i fra at det virket inn på avtalen at opplysningen ikke ble gitt eller at feil opplysninger ikke ble rettet i tide på en tydelig måte. En bolig som har blitt brukt i en viss tid, har vanligvis blitt utsatt for slitasje og skader kan ha oppstått. Slik bruksslitasje må kjøper regne med, og det kan avdekkes enkelte forhold etter overtakelse som nødvendiggjør utbedringer. Normal slitasje og skader som nødvendiggjør utbedring, er innenfor hva kjøper må forvente og vil ikke utgjøre en mangel.
Boligen kan ha en mangel dersom det er avvik mellom opplyst og faktisk areal, forutsatt at avviket er på 2% eller mer og minimum 1 kvm.
Ved beregning av et eventuelt prisavslag eller erstatning må kjøper selv dekke tap/kostnader opptil et beløp på kr 10 000 (egenandel).
Dersom kjøper ikke er forbruker selges eiendommen som den er , og selgers ansvar er da begrenset jf. avhl. § 3-9, 1. ledd 2. pktm. Avhendingsloven § 3-3 (2) fravikes, og hvorvidt en innendørs arealsvikt karakteriseres som en mangel vurderes etter avhendingsloven § 3-8. Informasjon om kjøpers undersøkelsesplikt, herunder oppfordringen om å undersøke eiendommen nøye, gjelder også for kjøpere som ikke anses som forbrukere. Med forbrukerkjøper menes kjøp av eiendom når kjøperen er en fysisk person som ikke hovedsakelig handler som ledd i næringsvirksomhet.
Kjøpers undersøkelsesplikt
Du som kjøper oppfordres til nøye å gjennomgå eiendommen og salgsprospektet før budgivning. Du kan ikke gjøre mangel gjeldende for forhold du kjente eller burde kjenne til da avtalen om kjøp av eiendommen ble inngått. Før du legger inn bud på eiendommen anbefaler vi at du undersøker eiendommen grundig, gjerne i samråd med en autorisert takstmann eller annen sakkyndig.
Heimdal Eiendomsmegling AS anbefaler ikke å legge inn bud på en eiendom usett, dvs. at du inngir bud på en eiendom uten å ha besiktiget eiendommen. Dersom du likevel ønsker å gjøre dette vil dine muligheter for å reklamere mangler overfor selger kunne bli redusert. Når du har overtatt eiendommen plikter du som kjøper å foreta en grundig undersøkelse av eiendommen.
Hvitvaskingsloven
Eiendomsmeglerforetaket er underlagt Lov om tiltak mot hvitvasking og terrorfinansiering (Hvitvaskingsloven). Dette medfører at megler har en plikt til å gjennomføre kundetiltak ovenfor både selger og kjøper. Både selger og kjøper, herunder de selger og/eller kjøper opptrer på vegne av, må fremlegge gyldig legitimasjon som følge av meglers kundekontroll. Der selger eller kjøper er en juridisk person omfatter kundekontrollen blant annet verifisering av identitet til reelle rettighetshavere, hvor egenerklæring for selskapsstruktur, firmaattester og gyldig legitimasjon må fremlegges og kontrolleres.
Dersom kontrolltiltak ikke lar seg gjennomføre kan ikke eiendomsmegler medvirke til gjennomføring av transaksjonen, og handelen kan dermed stanses. Dersom kjøper ikke bidrar til gjennomføring av kontrolltiltak vil kjøper være ansvarlig for eventuelle forsinkelser av oppgjør til selger, og videre kostnader/tap ved dekningssalg. Kontrolltiltak for selger gjennomføres ved oppdragsinngåelse, men i de tilfeller forhold ved selgersiden utløser krav til ny kundekontroll i løpet av oppdragsgjennomføringen, kan selger ved å ikke bidra til gjennomføring av kundetiltak misligholde sine forpliktelser ovenfor kjøper.
Eiendomsmeglerforetaket har også ytterlige prosedyrer og kontrollpunkter knyttet til hvitvaskingsregelverket, herunder blant annet kontroll av midlenes opprinnelse ved bruk av egenkapital. Partene plikter å opplyse om de forhold meglerforetaket etterspør i forbindelse med kontrolltiltak.
Eiendomsmeglerforetaket har plikt til å innrapportere mistenkelige transaksjoner til Økokrim dersom det avdekkes mistanke om at midler har tilknytning til utbytte fra en straffbar handling, og/eller har tilknytning til terrorfinansiering. Partene varsles ikke dersom transaksjonen rapporteres til Økokrim.
Ansvarlig megler
Kim Roger Laugsand
Regulering
Nyttige lenker
Heimdal Eiendomsmegling avd. Melhus
Nærområdet
Annonseinformasjon
| FINN-kode | 369132201 |
|---|---|
| Sist endret | 30. jan. 2026 14:18 |
| Referanse | 3-24-0205 |
Annonsene kan være mangelfulle i forhold til lovpålagt opplysningsplikt. Før bindende avtale inngås oppfordres interessenter til å innhente komplett informasjon fra meglerforetaket, selger eller utleier.

















