Bildegalleri

Velkommen til Øvre Lauvlia, boligtomter med luftig beliggenhet og fenomenal utsikt.
Hadeland er et fantastisk sted å bo! Vestvendte boligtomter med en formidabel utsikt ligger nå for salg.
Nøkkelinfo
Visning
Om eiendommen
Om Prosjektet
Vi fortsetter suksessen i Lauvlia.
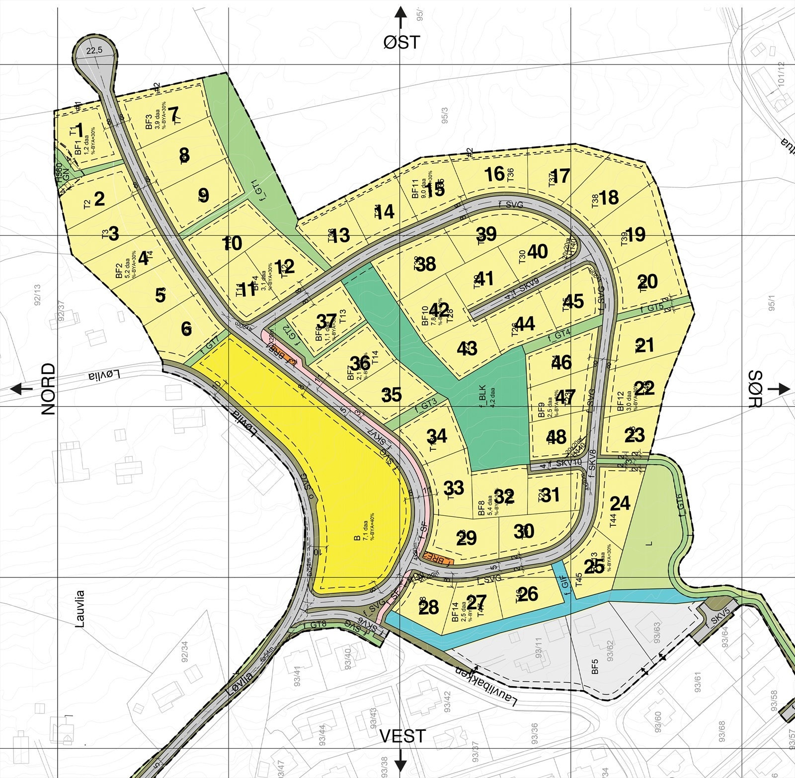
Øvre Lauvlia er et større tomteprosjekt i Moen med 48 boligtomter fra ca 741 - 1405 kvm.
Her har du fritt boligvalg, som gir deg flere muligheter og frihet til å velge hus etter eget ønske.
Ønsker du å skape ditt eget i et trygt og godt bomiljø? Her får du en landlig og familievennlig beliggenhet med kort vei til både skoler og barnehager, og ikke minst flotte turområder rett utenfor døren. Hadeland er med sitt flotte landskap, voksende handelsstand og brede kulturliv et godt utgangspunkt for en nyetablering. Hovedstaden finner man kun en time unna, det samme med Gardermoen.
Her vil du garantert trives!
For mer informasjon om Hadeland, se:
https://regionhadeland.no/
prospekt-hadeland.594924.no.html
https://heihadeland.no/
For mer info om prosjektet, kontakt megler eller Trond Alm tlf. 90137994.
Beliggenhet
Lauvlia ligger i landlige omgivelser ca. 400 m.o.h. på vakre Hadeland med utsikt over Randsfjorden, Gaustatoppen og Viggadalen med Sølvsberget, Brandbukampen og Norefjell.
Lauvlia byr på flotte solforhold hele året fra morgen til kveld. Gled deg til vakre solnedganger på terrassen. Når tåka kommer snikende i lavlandet, bader Lauvlia fortsatt i sol!
I nærområdet ligger Moen Barneskole i trygg gangavstand til hjemmet. I tillegg finnes en rekke barnehager i omegn. Fine friluftsmuligheter hele året med flott turterreng på Øståsen enten du velger å bruke beina, sykkel eller ski. Det er kort vei til snøsikre Lygna med 220 km oppkjørte skiløyper.
Det er ca. 4 km til Brandbu og ca. 9 km til Gran. Til Jaren stasjon med hyppige togavganger til Oslo er det kun 4 km. Til Gjøvik og Gardermoen er det ca 45 min med bil og Oslo er en time unna.
Velkommen til et hyggelig nabolag!
Lovanvendelse
Generelle bestemmelser
Salgsoppgaven er basert på de opplysningene selger har gitt til megler, den bygningssakyndiges tilstandsrapport, samt opplysninger innhentet fra kommunen, Kartverket og andre tilgjengelige kilder. Det er viktig at kjøper setter seg grundig inn i alle salgsdokumentene, herunder salgsoppgave, tilstandsrapport og selgers egenerklæring. Kjøper anses kjent med forhold som er tydelig beskrevet i salgsdokumentene, og slike forhold kan ikke påberopes som mangler. Dette gjelder uavhengig av om kjøper har lest dokumentene. Alle interessenter oppfordres til å undersøke eiendommen nøye, gjerne sammen med fagkyndig før bud inngis. Kjøper som velger å kjøpe usett kan ikke gjøre gjeldende som mangel noe han burde blitt kjent med ved undersøkelsen.
Dersom det er behov for avklaringer, anbefaler vi at interessenter rådfører seg med eiendomsmegler eller egne rådgivere før det legges inn bud.
Kjøper og selgers rettigheter og plikter reguleres av avtalen mellom partene, samt informasjonen som har vært tilgjengelig for kjøperen i forbindelse med handelen. Avtalen utfylles av avhendingsloven, og det gjelder ulike avtalevilkår avhengig av om kjøper er forbrukerkjøper eller ikke. Dette er nærmere beskrevet nedenfor.
På grunn av ulike avtalevilkår kan selger vurdere bud fra en som ikke er forbruker, ulikt fra en forbrukers bud. Dersom kjøper ikke er forbruker, er selger sitt mulige mangelsansvar begrenset fordi eiendommen selges "som den er". Selger kan ikke ta som den er forbehold ovenfor en forbrukerkjøper. Selv et lavere bud fra en som ikke er forbruker kan foretrekkes fordi begrensningen i mulig mangelsansvar kan ha egenverdi for selger. Selger står fritt til å forkaste eller akseptere ethvert bud, og er for eksempel ikke forpliktet til å akseptere høyeste bud.
Budgiver skal i budskjema avgi egenerklæring om budgiver er forbruker eller næringsdrivende/ person som hovedsakelig handler som ledd i næringsvirksomhet. Budgivere får informasjon dersom andre bud er inngitt av en som ikke er forbruker.
Forbrukerkjøp - definisjon
Med forbrukerkjøp menes kjøp av eiendom når kjøperen er en fysisk person som ikke hovedsakelig handler som ledd i næringsvirksomhet.
Forbruker avtalevilkår
Eiendommen har en mangel dersom den ikke er i samsvar med kravene som følger av avtalen, eller det foreligger brudd på bestemmelsene i avhendingsloven §§ 3-2 til 3-8. Hvis eiendommen ikke er i samsvar med det kjøperen må kunne forvente ut ifra alder, type og synlig tilstand, kan det være grunnlag for mangelskrav. Det samme gjelder hvis det er holdt tilbake eller gitt uriktige opplysninger om eiendommen. Dette gjelder likevel bare dersom man kan gå ut ifra at det virket inn på avtalen at opplysningen ikke ble gitt eller at uriktige opplysninger ikke blir rettet i tide på en tydelig måte.
Dersom eiendommen har et mindre grunnareal (tomt) enn kjøperen har regnet med, er det likevel ikke en mangel hvis ikke arealet er vesentlig mindre enn det som fremkommer av salgsdokumentene, jf. avhl-3-3.
Ved beregning av et eventuelt prisavslag eller erstatning må kjøper selv dekke tap/kostnader opptil et beløp på kr 10 000 (egenandel).
Ikke-forbruker (næringsdrivende) definisjon
Hvis kjøper er en juridisk person, eller en fysisk person som hovedsakelig handler som ledd i næringsvirksomhet, vil kjøpet ikke anses som et forbrukerkjøp.
Ikke-forbruker avtalevilkår
Eiendommen har en mangel dersom den ikke er i samsvar med kravene som følger av avtalen. Eiendommen selges som den er , og selgers ansvar utover det konkret avtalte er da begrenset etter avhendingsloven § 3-9, første ledd andre setning.
Informasjon om kjøpers undersøkelsesplikt, herunder oppfordringen om å undersøke eiendommen nøye, gjelder også for kjøpere som ikke anses som forbrukere.
Budgivning
Bud kan legges inn på nettannonsen via "gi bud"- lenken. Ved elektronisk budgivning kan bud legges inn trygt og enkelt med Bank-ID. Megler kan også kontaktes for tilsendelse av budskjema. Budskjema finnes også i salgsoppgaven.
All budgivning må foregå skriftlig. Kontakt megler dersom det er behov for bistand for å gi bud.
Tomt
Vei, vann, avløp og bredbånd vil bli lagt inn til den enkelte tomtegrense. Tomtene har en utnyttelsesgrad på 30% BYA.
Tomtestørrelser fra ca. 741 kvm til ca. 1405 kvm. De fleste tomtene er på ca 1.000 kvm eller større.
Her er det rikelig med plass til et drivhus eller en vinterhage for de som drømmer om det!
Pris fra kr 1 250 000,- til kr 2 200 000,- pr. tomt.
Det tilkommer tilkoblingsutgifter til Gran Kommune for vann- og avløp.
Kontakt megler for prisliste, salgsoppgave m.m.
Ansvarlig megler
Monica Hoff
Regulering
Nyttige lenker
Nærområdet
Annonseinformasjon
| FINN-kode | 368999738 |
|---|---|
| Sist endret | 02. sep. 2024 20:11 |
| Referanse | 518235056 |
Annonsene kan være mangelfulle i forhold til lovpålagt opplysningsplikt. Før bindende avtale inngås oppfordres interessenter til å innhente komplett informasjon fra meglerforetaket, selger eller utleier.















