Bildegalleri

grenser
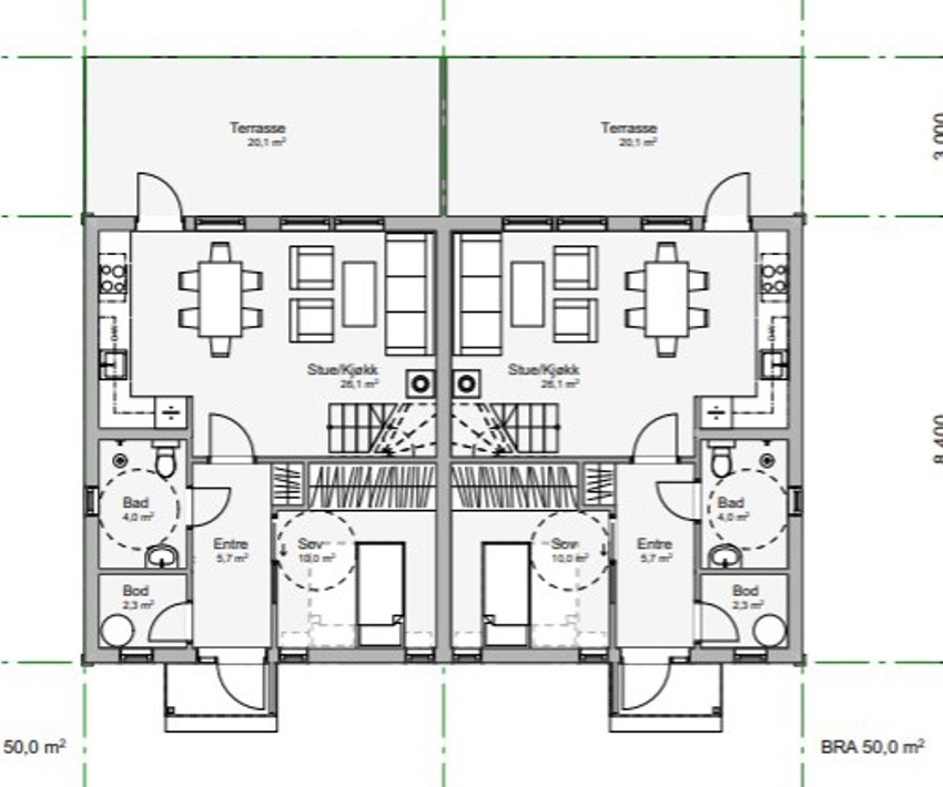
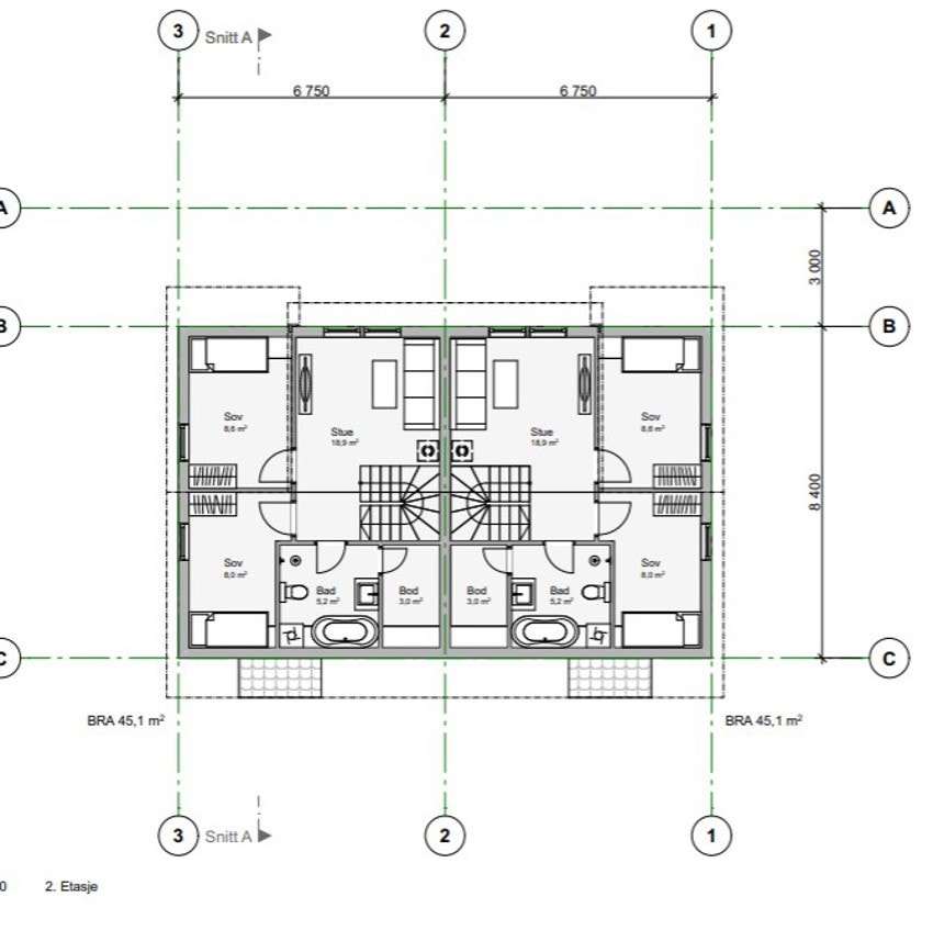
Boligtomt på 927kvm på sentrale Bergenhus - Godkjent vertikaldelt tomannsbolig - Regulert til småhusbebyggelse
- Totalpris
- 974 750 kr
- Omkostninger
- 24 750 kr
Nøkkelinfo
Visning
Om eiendommen
Oppdragsnummer
192-24-0085
Eier
Sarunas Pilibaitis
Eiendomstype
Boligtomt
Eierform
Selveier
Betegnelse
Gnr. 5 Bnr. 400 i Rakkestad kommune
Tomtetype/areal
Eiet tomt / 927 kvm
Beliggenhet
Griniveien ligger i et eldre etablert boligområde i nærheten av Bergenhuskrysset, like syd for Rakkestad sentrum. Ved Bergenhus, som ligger rett ved, er det dagligvarebutikk, samt Brdr. Ringstad Kjøtt har utsalg i samme lokale. Bergenhus er ett knutepunkt i Østfold, og her er det bensinstasjon, møbelbutikk og gatekjøkken.
Fra Griniveien kan man nå flere stier til fots. Ikke langt unna går det en sti langs bekken bort til Rakkestadelva. Der er det er fin plass for fiske, eller bare slappe av med nistepakken.
Området som boligen ligger i sokner til Bergenhus barneskole.. Skolen har ca. 350 elever, og ble bygget i 2005-2006. Skolen har store fine utearealer, med god plass til lek og spill.
Ca. gåavstander:
Bergenhus med dagligvare etc: 300m
Byggeklossen barnehage: 400m
Bergenhus Barnehage: 700m
Musikktrollet Barnehage: 700m
Bergenhus Barneskole: 800m
Rakkestad Ungdomsskole: 1700m
Rakkestadhallen: 1700m
Rakkestad sentrum: 1,5 km
Bygdetunet: 2 km
Rådhuset med bibliotek og kino: 1,7 km
Estimerte tidsavstander i bil:
2 minutter - Rakkestad sentrum med mange butikker.
1 minutt - Bergenhus barneskole.
25 minutter - Sarpsborg sentrum
35 minutter - Det nye Sykehuset Østfold på Kalnes i Sarpsborg
45 minutter - Riksgrensen ved Svinesund
60 minutter - Oslo
Beskrivelse av nærområdet / fasiliteter
Rakkestad kommune er en av de store landbrukskommunene i Norge. Rakkestad sentrum er omkranset av store skoger og flere fiskevann for de store naturopplevelsene. Sentrum inneholder flere butikker, bl. a vinmonopol, skobutikk og sportsbutikk.
Rakkestad kommune ligger midt i Østfold med kort avstand til nærliggende byer. Avstanden til Oslo er ca. 8 mil og til Fredrikstad ca. 4 mil. Sarpsborg er ca. 2,5 mil ifra
Ved Rakkestad ungdomsskole ligger Rakkestadhallen. Rakkestadhallen er ny flerbrukshall med to håndballbaner med mye aktivitet for flere idretter.
Kommunen har tre barneskoler: Bergenhus i sentrum, Kirkeng skole i Degernes og Os. I sentrum finnes også Rakkestad Ungdomsskole. Det går i underkant av 1000 elever i grunnskolen i Rakkestad. For videregående utdanning må ungdommen til en av nabokommunene, mange går på Mysen videregående skole. Det er tre barnehager innenfor en km radius fra Griniveien.
Servicetilbud:
Dagligvarehandelen kan gjøres ved bl.a. Kiwi og Rema 1000. Mysen, Askim og Sarpsborg ligger også godt innen rekkevidde via offentlig kommunikasjon og bil med et rikt utvalg av servicetilbud. Det er ellers relativt kort vei til Töcksfors med store kjøpesentre for hyggelig grensehandel.
Rakkestadfjella:
Rakkestadfjella er Rakkestads største sammenhengende turområde som henger sammen med tilsvarende skogområder inn i Marker og Eidsberg. Det er drøye 80 km med merkede sommerløyper og ca. 70 km skiløyper i Rakkestadfjella ( og tilsvarende i nabokommunene.) Det er furuskog som dominerer landskapet i veksling med vann, tjern og myrer. I mange vann kan man forsøke fiskelykken
Beskaffenhet og reguleringsforhold
Eiendommen er på 927kvm opparbeidet med gressplen.
Det er gitt tillatelse til oppføring av en vertikaldelt tomannsbolig den 27.07.2023.
Eiendommen er regulert til frittliggende småhusbebyggelse FS38 iht. reguleringsplan med ID Bergenhus datert 07.10.2015
FRITTLIGGENDE SMÅHUSBEBYGGELSE: I områder merket FS1-75 kan det oppføres eneboliger i inntil to etasjer (maksimalt 6m til gesims). Garasjer, uthus og boder kan oppføres i maksimalt 1 etasje. Parkering kan også løses som integrert del av bygning med boligformål. Maksimalt antall bygninger: 3. Det tillates innredet hybel på inntil 50 m2 Områdereguleringsplan for BERGENHUS, Rakkestad kommune bruksareal. Maksimal grad av utnytting BYA=25%. Parkeringsdekning skal løses på egen grunn.
Servitutter / rettigheter
Eiendommen overdras fri for pengeheftelser, med unntak av eventuelle erklæringer, avtaler, servitutter og panteheftelser som fremgår av salgsoppgaven og skal følge med eiendommen ved salg. Kjøpers bank vil få prioritet etter disse.
Vei / Vann / Avløp
Det er offentlig vann og avløp.
Det er privat vei fra Griniveien.
Verdi ved skattefastsetting
Formuesverdien på eiendommen er p.t. ikke fastsatt. Formuesverdien fastsettes med utgangspunkt i en kvadratmeterpris som beregnes av Statistisk Sentralbyrå (SSB). Kvadratmeterprisen skal gi uttrykk for en estimert markedsverdi pr. kvadratmeter og bygger på statistiske opplysninger om omsatte boliger (boligtype, areal, geografisk beliggenhet og alder). Ut fra kvadratmeterprisene til SSB fastsetter Skatteetaten årlige kvadratmetersatser. Formuesverdien er ulik for primærbolig og sekundærbolig. For primærbolig (der boligeier er folkeregistrert pr 1. januar) utgjør formuesverdien 25% av kvadratmeterprisene og 90 % for sekundærboliger (alle andre boliger).
Oppgjør
Kjøpesum med tillegg av omkostninger skal være disponibelt på meglers klientkonto innen overtagelse. Normalt innebærer dette at fullt oppgjør må være innbetalt på meglers klientkonto senest to virkedager før avtalt overtagelsesdato.
Eventuelle vilkår knyttet til innbetalingen, eksempelvis pantedokument som skal tinglyses til fordel for kjøpers bank, må være megler i hende i god tid før overtagelse kan finne sted.
Finansiering
Kontakt megler for avklaring av finansielle forhold, herunder lån til kjøp av eiendom. Privatmegleren har avtale med Nordea om formidling av lån og andre finansielle tjenester. Privatmegleren mottar godtgjørelse for dette.
Annen nyttig informasjon
Alle utvendige arealangivelser er hentet fra Rakkestad kommune
Det gjøres oppmerksom på at megler ikke har innhentet særskilte opplysninger om det finnes pålegg fra brann/feiervesen på eiendommen. Det er ikke foretatt undersøkelse av det elektriske anlegget.
Med mindre annet er uttrykkelig avtalt gjelder NEFs normgivende liste over løsøre og tilbehør.
Konsesjon / Odel
Siden eiendommen er over 2 000 kvm må det avgis egenerklæring om konsesjonsfrihet
Sikkerhetsstillelse
Alle eiendomsmeglingsforetak har lovpålagt forsikring av klientmidler begrenset oppad til kr 45 mill. Enkeltsaker er forsikret inntil kr 15 mill. Dersom kjøpers låneinstitusjon krever tilleggsforsikring ved omsetning over 15 millioner, må kjøper selv eller dennes låneinstitusjon dekke utgiftene forbundet med dette.
Kjøpsforsikring
Vedlagt i salgsoppgaven følger informasjon om Kjøpsforsikring fra If. Produktet inneholder boligkjøperforsikring, hus-/hytteforsikring med superdekning og innboforsikring med superdekning. Les mer om Kjøpsforsikring i vedlagte materiell.
Overtagelse
Etter nærmere avtale.
Boligselgerforsikring
Selger har ikke tegnet boligselgerforsikring, og interessenter oppfordres til å sette seg inn i selgers egenerklæring før det inngis bud på eiendommen.
Budgiving
Bud kan legges inn via Privatmeglerens "gi bud-knapp" som finnes på Privatmegleren.no/eiendommens hjemmeside og i nettannonsen. Bud legges inn trygt og enkelt med bank-ID.
For mer informasjon om budgivning, se "Viktig informasjon" i salgsoppgaven.
Lovanvendelse
Eiendommen selges etter reglene i avhendingsloven (avhl.).
Eiendommen skal overleveres kjøper i tråd med det som er avtalt. Det er viktig at kjøper setter seg grundig inn i alle salgsdokumentene, herunder salgsoppgave, tilstandsrapport og selgers egenerklæring. Kjøper anses kjent med forhold som er tydelig beskrevet i salgsdokumentene. Forhold som er beskrevet i salgsdokumentene kan ikke påberopes som mangler. Dette gjelder uavhengig av om kjøper har lest dokumentene. Alle interessenter oppfordres til å undersøke eiendommen nøye, gjerne sammen med fagkyndig før bud inngis. Kjøper som velger å kjøpe usett kan ikke gjøre gjeldende som mangel noe han burde blitt kjent med ved undersøkelsen.
Dersom det er behov for avklaringer, anbefaler vi at kjøper rådfører seg med eiendomsmegler eller en bygningssakyndig før det legges inn bud.
Eiendommen selges etter reglene i avhendingsloven (avhl.).
Eiendommen skal overleveres kjøper i tråd med det som er avtalt. Det er viktig at kjøper setter seg grundig inn i alle salgsdokumentene, herunder salgsoppgave, tilstandsrapport og selgers egenerklæring. Kjøper anses kjent med forhold som er tydelig beskrevet i salgsdokumentene. Forhold som er beskrevet i salgsdokumentene kan ikke påberopes som mangler. Dette gjelder uavhengig av om kjøper har lest dokumentene. Alle interessenter oppfordres til å undersøke eiendommen nøye, gjerne sammen med fagkyndig før bud inngis. Kjøper som velger å kjøpe usett kan ikke gjøre gjeldende som mangel noe han burde blitt kjent med ved undersøkelsen.
Dersom det er behov for avklaringer, anbefaler vi at kjøper rådfører seg med eiendomsmegler eller en bygningssakyndig før det legges inn bud.
Dersom kjøper ikke er forbruker selges eiendommen som den er , og selgers ansvar er da begrenset, jf. avhl. § 3-9, første ledd 2. punktum. Informasjon om kjøpers undersøkelsesplikt, herunder oppfordringen om å undersøke eiendommen nøye, gjelder også for kjøpere som ikke anses som forbrukere. Med forbrukerkjøp menes kjøp av eiendom når kjøperen er en fysisk person som ikke hovedsakelig handler som ledd i næringsvirksomhet.
Lov om hvitvasking
Megler er underlagt lov om hvitvasking som innebærer plikt til å melde ifra til Økokrim om mistenkelige transaksjoner
Meglers vederlag og utlegg
Provisjon (forutsatt salgssum: 950 000,-) (Kr.50 000)
Panterett med urådighet - Statens Kartverk (Kr.500)
Totalt kr. (Kr.50 500)
Dersom eiendommen ikke omsettes, faktureres selger kr 19.900,-
Vedlegg til salgsoppgaven
Budskjema
Egenerklæringsskjema selger
Energiattest
Ferdigattest / midlertidig brukstillatelse
Reguleringsplaner og bestemmelser
Informasjon og eventuelle vedtekter fra velforening eller liknende
Viktig informasjon til kjøper og selger
Nyttige lenker

PrivatMegleren Rakkestad
Nærområdet
Annonseinformasjon
| FINN-kode | 368427472 |
|---|---|
| Sist endret | 13. mars 2025 01:11 |
| Referanse | 192240085 |
Annonsene kan være mangelfulle i forhold til lovpålagt opplysningsplikt. Før bindende avtale inngås oppfordres interessenter til å innhente komplett informasjon fra meglerforetaket, selger eller utleier.













