Bildegalleri

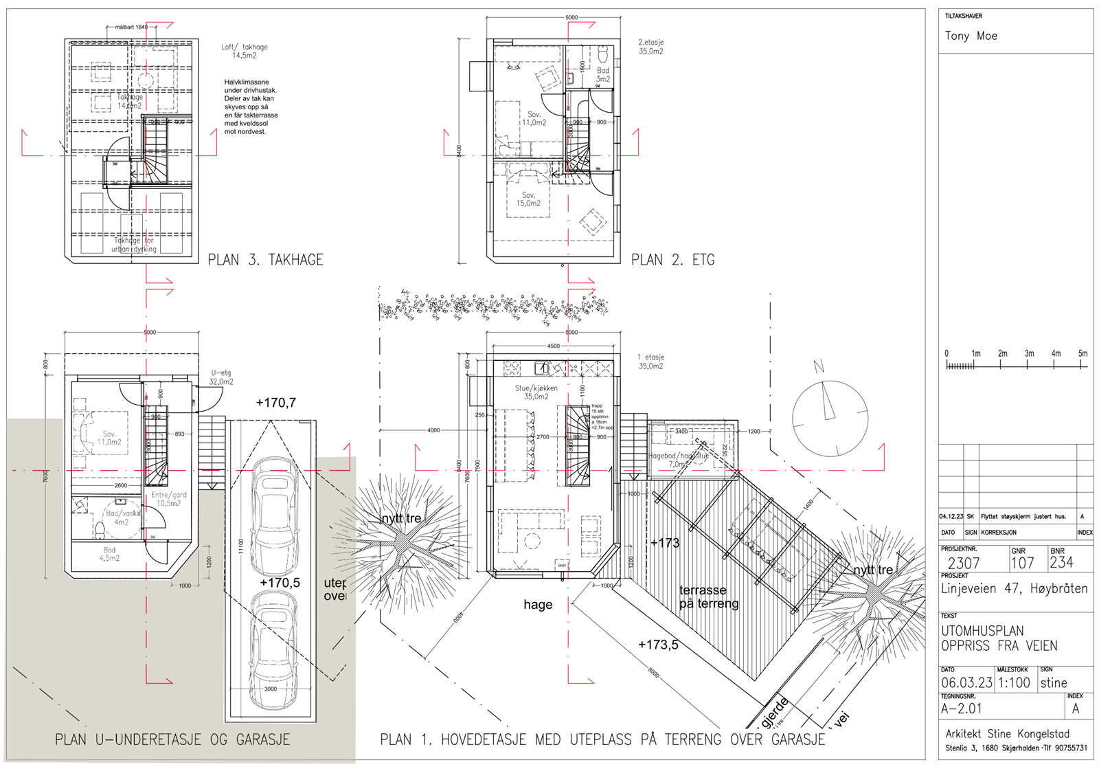
Velkommen til Linjeveien 47! Dette er en tomt med rammetillatelse for bygging av en arkitekttegnet enebolig på 116,5 m², samt en underjordisk garasje med bod på 40 m².
HØYBRÅTEN / TOMT M/ RAMME FOR ENEBOLIG PÅ 116 m², 3. ETG OG GARASJE MED PLASS TIL 2 BILER / UNDER SEKSJONERING
- Totalpris
- 3 608 240 kr
- Omkostninger
- 108 240 kr
- Formuesverdi
- 2 089 153 kr
Nøkkelinfo
Om eiendommen
Kort om eiendommen
Linjeveien 47 er en tomt med innvilget rammetillatelse for oppføring av en ny arkitekttegnet enebolig over tre plan på 116,5 m², samt tillatelse til å bygge en frittstående underjordisk garasje med overliggende bod på totalt 40 m².
Eiendommen ligger i et rolig og veletablert villaområde på Høybråten, med kort avstand til Høybråten stasjon. Her går toget fire ganger i timen, noe som gjør beliggenheten svært sentral, med en reisetid til Oslo S på under 20 minutter fra dør til dør.
Kvaliteter:
Beliggenhet
Boligen ligger i et veletablert og rolig villaområde på Høybråten. Nabolaget er svært sentralt med kort vei til både Høybråten barneskole og Stasjonsfjellet ungdomsskole. I nærområdet finnes det også flere barnehager, god offentlig kommunikasjon til Oslo og Lillestrøm, samt diverse servicetilbud.
Dagligvarer kan handles på Rema 1000, Kiwi, eller den søndagsåpne Joker-butikken, alle i nærheten av tomten. For et bredere utvalg er det kort vei til Stovner senter eller til Lørenskog, hvor både Metro og Triaden kjøpesenter ligger. Strømmen Storsenter, med over 200 butikker, samt Oslo sentrum, er også lett tilgjengelig via bil eller offentlig transport.
Området har gode kollektivmuligheter, med både tog og buss i nærheten. Høybråten togstasjon ligger kun en kort spasertur unna, hvor toget går hvert 15. minutt og tar deg til Oslo S på bare 13 minutter. Nærmeste bussholdeplass ligger ved Høybråten kirke og Høybråten park, med buss 64.
Med bil tar det omtrent 10 minutter til Stovner, 15 minutter til Økern, 15 minutter til Oslo S, og 30 minutter til Oslo lufthavn.
Boligen ligger også nær flotte friluftsområder, med kort vei til marka, som byr på gode rekreasjonsmuligheter året rundt. Både Østmarka og Lillomarka har godt preparerte lysløyper om vinteren, og i nærheten finnes flere bade- og fiskevann. Området har et bredt utvalg av aktivitetstilbud, inkludert lekeplasser, tennisbaner, golfbaner (Stovner og Losby), fotballbaner, svømmehall og ridesenter. Verdensparken, en del av Groruddalssatsingen, er også innen gangavstand. Høybråten og Stovner IL tilbyr idrettsaktiviteter for barn og unge innen fotball, håndball, basketball, langrenn, friidrett, alpint, innebandy, orientering og turn.
Verdens største innendørs skianlegg, SNØ, ligger en kort kjøretur unna. Anlegget har to kilometer med langrennsløyper fordelt på tre nivåer, samt en 505 meter lang alpinbakke med en helning på opp til 38 prosent. Terrengparken har rails, blåparkhopp og en bigjump. I tillegg finner du Thon Hotels Restaurant, Thon Hotels møte- og konferansefasiliteter, Evo fitness, samt flere spennende aktivitetssentre som Høyt og Lavt, Jumpyard og Hoppeloppeland i nærheten.
Tomt
Rammetillatelsen innvilger en tomt på 716,40 m², den aktuelle seksjonen har en tomt på 377 m². Tomten har pent oppbygde grøntarealer.
Parkering
I rammetillatelsen er det innvilget to parkeringsplasser i underjordisk garasje. Totalt er det fire parkeringsplasser på tomten.
Regulerings og arealplaner
Eiendommen er omfattet av reguleringsplan for småhusområder i Oslos ytre by (S-4220), også kalt småhusplanen . Småhusplanen styrer hvordan det kan bygges og fortettes på eiendommer som er omfattet av planen. Den legger også begrensninger for hvor mye det er lov å bygge på eiendommene.
Plan- og bygningsetaten har igangsatt revidering av småhusplanen, den reviderte planen skal bidra til å skjerme småhusområdene for ytterligere fortetting, og sørge for et sterkere vern av de grønne verdiene når det bygges innenfor småhusplanen.
Oslo kommune har vedtatt midlertidig forbud mot tiltak i de områdene småhusplanen gjelder. Vedtaket forbyr alle tiltak etter plan- og bygningsloven § 1-6, og gir blant annet sterke begrensninger i muligheten for rivning, oppføring og bygningsmessige endringer. Det er gjort enkelte unntak fra forbudet. Det er for eksempel tillat å gjøre innvendige tiltak, som bruksendring, så lenge det ikke innebærer opprettelse av en ny boenhet. For mer informasjon se https://innsyn.pbe.oslo.kommune.no/saksinnsyn/showfile.asp?jno=2022072153&fileid=10231629.
Pågående byggesaker:
Bergtunveien 9 B - Bruksendring fra tilleggsdel til hoveddel i kjeller
Saksnummer: 202015471
Fredheimveien 2 A-B - Oppføring av tomannsbolig - Hus A-B
Saksnummer: 202207274
Fredheimveien 2 C - Oppføring av enebolig - Hus C
Saksnummer: 202205906
Linjebakken - Utvidelse av gang- og sykkelvei - Høybråten stasjon
Saksnummer: 201211434
Det er ingen pågående plansaker i området.
Ligningsverdi / formuesverdi
Formuesverdien for ubebygget tomt skal ved førstegangs verdsetting verken overstige 80% av eiendommens kostpris eller 80% av eiendommens markedsverdi. Ved senere år skal denne formuesverdien videreføres, men med en eventuell årlig fastsatt oppjustering.
Når bygg på eiendommen er påbegynt fastsettes formuesverdien etter andre regler. Se mer på Skatteetatens nettside.
Heftelser / servitutter
På eiendommen er det tinglyst følgende heftelser og rettigheter som følger eiendommens matrikkel ved overskjøting til ny hjemmelshaver:
301/107/234:
03.08.1923 - Dokumentnr: 920211 - Bestemmelse om gjerde
27.06.1955 - Dokumentnr: 8528 - Best. om vann/kloakkledn.
Kan ikke slettes uten samtykke fra kommunen
02.07.1955 - Dokumentnr: 8842 - Erklæring/avtale
Vedtak av Oslo kommunes vann- og kloakkreglement
Kan ikke slettes uten samtykke fra kommunen
03.05.1978 - Dokumentnr: 9618 - Erklæring/avtale
Vedtak av visse vilkår vedr. utskillelse/bebyggelse
av denne eiendom
08.09.1978 - Dokumentnr: 19121 - Erklæring/avtale
Vedtak av visse vilkår vedr. utskillelse/bebyggelse
av denne eiendom
22.12.1922 - Dokumentnr: 900887 - Registrering av grunn
Denne matrikkelenhet opprettet fra:
Knr:0301 Gnr:107 Bnr:135
15.01.1960 - Dokumentnr: 569 - Registrering av grunn
Utskilt fra denne matrikkelenhet:
Knr:0301 Gnr:107 Bnr:551
11.05.1979 - Dokumentnr: 12689 - Registrering av grunn
Utskilt fra denne matrikkelenhet:
Knr:0301 Gnr:107 Bnr:1002
27.06.1955 - Dokumentnr: 8528 - Best. om vann/kloakkledn.
Rettighet hefter i: Knr:0301 Gnr:107 Bnr:488
Kan ikke slettes uten samtykke fra kommunen
Ferdigattest / brukstillatelse
Det foreligger rammetillatelse for eiendommen datert 19.06.2024.
Bebyggelse
Høybråten i Oslo er preget av en variert arkitektur, dominert av eneboliger og tomannsboliger. Mange av husene stammer fra 1900-tallet og gjenspeiler en tradisjonell norsk byggestil.
Diverse
Ettersom eiendommen ikke er seksjonert for endelige eiendomsgrenser, må det tas forbehold om at det kan forekomme mindre endringer i dokumentene. Dersom det i ettertid skulle vise seg å være behov, forplikter kjøper seg til å bidra til å signere nødvendige dokumenter og akseptere mindre, påkrevde endringer. Sameiet er ikke etablert og det foreligger dermed ingen felleskostnader eller andre faste løpende kostnader per tid.
Kjøper må påregne at det kan komme til å bli en fast måned kostnad til sameiet for å dekke sameiets kostnader til div. løpende kostnader i henhold til vedtekter. Kjøper må påregne kostnader til felles infrastruktur, f.eks. vann og avløp. Kommunale avgifter og eiendomsskatt må også påregnes.
Kjøper og selger er forpliktet til å undertegne standard kjøpekontrakt utarbeidet av Nordvik i forbindelse med eiendomstransaksjonen. Kjøpekontrakt kan besiktiges hos eiendomsmegler før bud inngis. Kontakt eiendomsmegler for spørsmål.
Selger leverer eiendommen i ryddig og rengjort stand.
Adkomst
Det vil bli skiltet med Nordvik-visningsskilt i forbindelse med fellesvisningen.
Overtakelse
Overtakelse skjer etter avtale med selger.
Før boligen overleveres kjøper, skal fullt oppgjør og omkostninger være mottatt på meglers klientkonto.
Boligselgerforsikring
Selger har ikke tegnet boligselgerforsikring.
Sentrale lover
Generelle bestemmelser
Salgsoppgaven er basert på de opplysningene selger har gitt til megler, samt opplysninger innhentet fra kommunen, Kartverket og andre tilgjengelige kilder. Det er viktig at kjøper setter seg grundig inn i alle salgsdokumentene, herunder salgsoppgave, tilstandsrapport og selgers egenerklæring. Kjøper anses kjent med forhold som er tydelig beskrevet i salgsdokumentene, og slike forhold kan ikke påberopes som mangler. Dette gjelder uavhengig av om kjøper har lest dokumentene.
Alle interessenter oppfordres til å undersøke eiendommen nøye, gjerne sammen med fagkyndig før bud inngis. Kjøper som velger å kjøpe usett kan ikke gjøre gjeldende som mangel noe han burde blitt kjent med ved undersøkelsen.
Dersom det er behov for avklaringer, anbefaler vi at interessenter rådfører seg med eiendomsmegler eller egne rådgivere før det legges inn bud.
Kjøper og selgers rettigheter og plikter reguleres av avtalen mellom partene, samt informasjonen som har vært tilgjengelig for kjøperen i forbindelse med handelen. Avtalen utfylles av avhendingsloven, og det gjelder ulike avtalevilkår avhengig av om kjøper er forbrukerkjøper eller ikke. Dette er nærmere beskrevet nedenfor.
På grunn av ulike avtalevilkår kan selger vurdere bud fra en som ikke er forbruker, ulikt fra en forbrukers bud. Dersom kjøper ikke er forbruker, er selger sitt mulige mangelsansvar begrenset fordi eiendommen selges "som den er". Selger kan ikke ta som den er forbehold ovenfor en forbrukerkjøper. Selv et lavere bud fra en som ikke er forbruker kan foretrekkes fordi begrensningen i mulig mangelsansvar kan ha egenverdi for selger. Selger står fritt til å forkaste eller akseptere ethvert bud, og er for eksempel ikke forpliktet til å akseptere høyeste bud.
Budgiver skal i budskjema avgi egenerklæring om budgiver er forbruker eller næringsdrivende/ person som hovedsakelig handler som ledd i næringsvirksomhet. Budgivere får informasjon dersom andre bud er inngitt av en som ikke er forbruker.
Forbrukerkjøp - definisjon
Med forbrukerkjøp menes kjøp av eiendom når kjøperen er en fysisk person som ikke hovedsakelig handler som ledd i næringsvirksomhet.
Forbruker avtalevilkår
Eiendommen har en mangel dersom den ikke er i samsvar med kravene som følger av avtalen, eller det foreligger brudd på bestemmelsene i avhendingsloven §§ 3-2 til 3-8. Det samme gjelder hvis det er holdt tilbake eller gitt uriktige opplysninger om eiendommen. Dette gjelder likevel bare dersom man kan gå ut ifra at det virket inn på avtalen at opplysningen ikke ble gitt eller at feil uriktige opplysninger ikke blir rettet i tide på en tydelig måte.
Eiendommen kan ha en mangel etter avhendingsloven § 3-3 dersom det er avvik mellom opplyst og faktisk areal, forutsatt at arealet er vesentlig mindre enn opplyst. Ved beregning av et eventuelt prisavslag eller erstatning må kjøper selv dekke tap/kostnader opptil et beløp på kr 10 000 (egenandel).
Ikke-forbruker (næringsdrivende) definisjon
Hvis kjøper er en juridisk person, eller en fysisk person som hovedsakelig handler som ledd i næringsvirksomhet, vil kjøpet ikke anses som et forbrukerkjøp.
Ikke-forbruker avtalevilkår
Eiendommen har en mangel dersom den ikke er i samsvar med kravene som følger av avtalen. Eiendommen selges som den er , og selgers ansvar utover det konkret avtalte er da begrenset etter avhendingsloven § 3-9, første ledd andre setning.
Informasjon om kjøpers undersøkelsesplikt, herunder oppfordringen om å undersøke eiendommen nøye, gjelder også for kjøpere som ikke anses som forbrukere.
Hvitvaskingsregelverk
Eiendomsmeglere er underlagt lov om hvitvasking og tilhørende forskrift. Hvis kjøper ikke bidrar til at megler får gjennomført kundekontroll og dette fører til at transaksjonen ikke kan gjennomføres eller blir forsinket, misligholder kjøper avtalen. Etter 30 dager er misligholdet vesentlig. Dette gir selger rett til å heve og gjennomføre dekningssalg for kjøpers regning.
Hvis kundekontroll ikke lar seg gjennomføre, vil Nordvik Eiendomsmegling ikke kunne bistå med handelen eller foreta oppgjør.
Budgivning
Alle bud skal inngis skriftlig til megler, som formidler disse videre til selger. Kravet til skriftlighet gjelder også budforhøyelser og motbud, aksept eller avslag fra selger.
Bud kan legges inn på eiendommens finn-annonse ved å trykke på knappen gi bud eller via vår hjemmeside. Ved elektronisk budgivning legges bud inn ved å benytte BankID. Bud kan også inngis på budskjema vedlagt i salgsoppgaven.
Før megler formidler bud til selger, skal megler innhente gyldig legitimasjon og signatur fra budgiver. Kravet til legitimasjon og signatur er oppfylt for budgivere som benytter e-signatur, eksempelvis BankID eller MinID. Senere bud kan inngis per e-post eller SMS til megler.
Et bud bør inneholde eiendommens adresse (eventuelt gnr/bnr), kjøpesum, budgivers kontaktinformasjon, finansieringsplan, akseptfrist, overtakelsesdato og eventuelle forbehold som for eksempel usikker finansiering, salg av nåværende bolig ol. Normalt vil ikke et bud med forbehold bli akseptert før forbeholdet er avklart. Konferer gjerne med megler før bud avgis.
Megler skal legge til rette for en forsvarlig avvikling av budrunden. I forbrukerforhold (dvs. der selger er forbruker) skal megleren ikke formidle bud med kortere akseptfrist enn kl. 12.00 første virkedag etter siste annonserte visning. Senere bud må ha en tilstrekkelig lang akseptfrist til at megler, så langt det er nødvendig og mulig, kan videreformidle budet og eventuelle forbehold til alle involverte parter og legge til rette for at disse får tid til å områ seg, jf. forskrift om eiendomsmegling § 6-3. Akseptfrist bør derfor være på minimum 30 minutter, og budforhøyelser bør skje senest 10 minutter før fristens utløp. Dersom bud inngis med en frist som åpenbart er for kort til at megleren kan avvikle budrunden på en forsvarlig måte, vil megler fraråde budgiver å stille slik frist. Megleren vil uoppfordret gi sin vurdering av det enkelte bud overfor selgeren, når budet er gitt innenfor akseptfristene ovenfor.
Megler skal så snart som mulig bekrefte skriftlig overfor budgivere at budene deres er mottatt.
Etter at handel har kommet i stand, eller dersom en budrunde avsluttes uten at handel er kommet i stand, kan en budgiver kreve kopi av budjournalen i anonymisert form.
Kopi av budjournal skal gis til kjøper og selger uten ugrunnet opphold etter at handel er kommet i stand. Dersom det er viktig for budgiver å bevare sin anonymitet, bør budet fremmes gjennom fullmektig.
For mer informasjon om budgivningsprosessen, se Forbrukerinformasjon om budgivning , som er vedlagt salgsoppgaven, eller ta kontakt med megler.
Vedlegg til Salgsoppgaven
Vedleggene er en del av den komplette salgsoppgaven. Det er viktig at interessenter setter seg godt inn i vedleggene og kontakter megler med eventuelle spørsmål før bud inngis.
Ansvarlig megler
Paal Henning Molvær Jørgensen
Nyttige lenker
Nordvik Nydalen
Nærområdet
Annonseinformasjon
| FINN-kode | 368338693 |
|---|---|
| Sist endret | 14. jan. 2026 11:56 |
| Referanse | 20-0161/24 |
Annonsene kan være mangelfulle i forhold til lovpålagt opplysningsplikt. Før bindende avtale inngås oppfordres interessenter til å innhente komplett informasjon fra meglerforetaket, selger eller utleier.

















