Bildegalleri

Tomten i Våkkroken 9B presenteres av Kenneth Graarud Olsen i Krogsveen. Rammetillatelse er gitt for oppføring av tomannsbolig.
Tomt på 987 kvm. med rammetillatelse for oppføring av moderne tomannsbolig og carport. Skole og barnehage i nabolaget.
- Totalpris
- 1 384 750 kr
- Omkostninger
- 34 750 kr
Pris på lån: fra 5 818 kr/mnd
Eff.rente 5,67 %. 945 000 o/25 år. Kostnad: 800 400 kr. Totalt 1 745 400 kr.
LånekalkulatorNøkkelinfo
Om eiendommen
Kort om eiendommen
Tomten er den siste gjenværende og ubebyggede i det ellers etablerte villastrøket ved Dammyr i Våler.
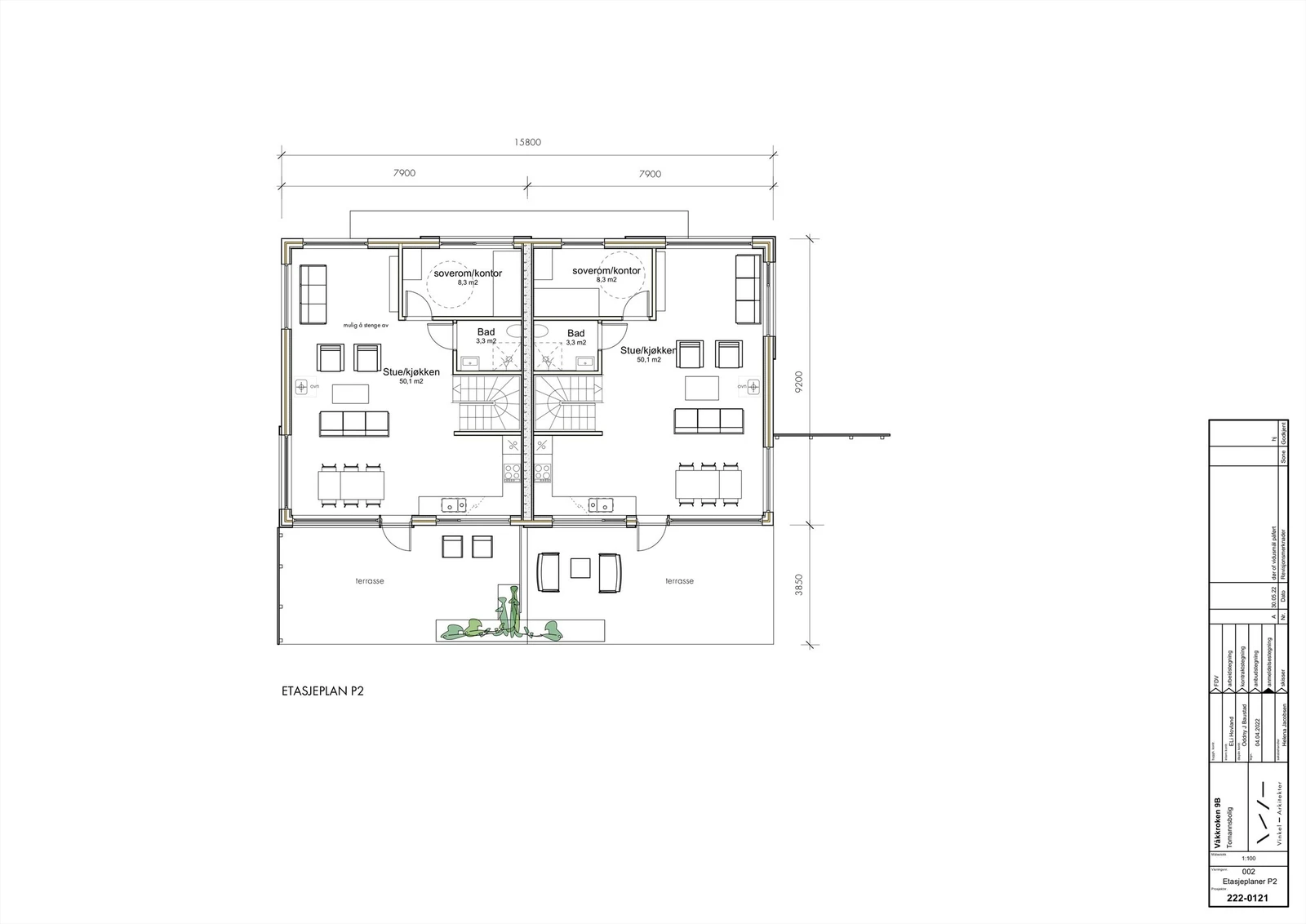
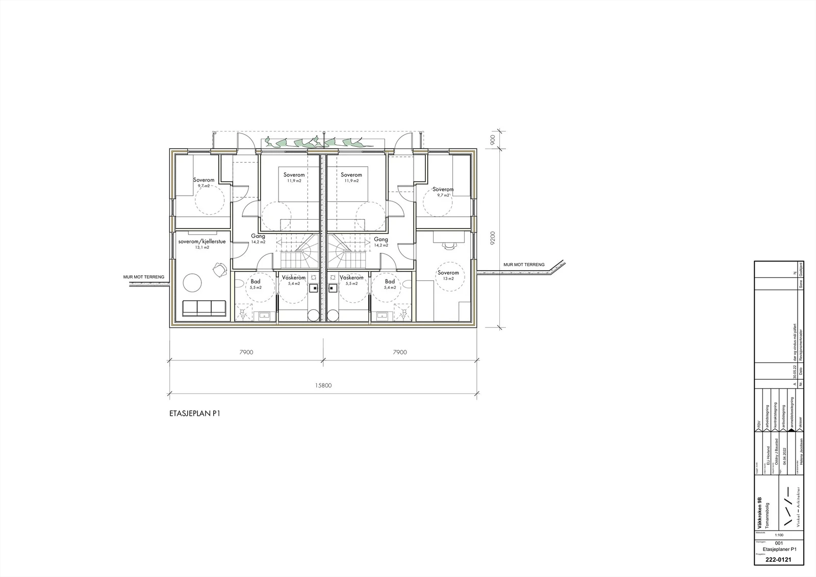
Det er gitt dispensasjon fra reguleringsbestemmelser for oppføring av tomannsbolig og carport på tomten. Tomannsboligen er tegnet i moderne, funkis-inspirert arkitektur med en familievennlig og praktisk romløsning som blant annet inkluderer fire soverom og bad i begge etasjer.
Kort vei til skoler og barnehager.
Beliggenhet
Tomten er en del av et ellers etablert villastrøk like ved kommunegrensen mellom Våler og Moss. Nabolaget er uten gjennomgangstrafikk og utpreget familievennlig med praktisk nærhet til både barnehage og barneskole. Begge sistnevnte er innenfor gangavstand eller to minutter på sykkel. Praktisk er det også at nærbutikk er lett tilgjengelig langs adkomstveien og enkel å svinge innom på vei hjem i hverdagen.
De landlige omgivelsene i Våler gir deg nærmest umiddelbar tilgang til store friområder med mangfoldige turmuligheter. Legg gjerne ut på tur på nærliggende Vansjø der du kan padle kano eller kajakk i et landskap fullt av fjorder, øyer, holmer og sund.
Det er heller ikke lang vei til Mossemarka med lysløype og skianlegg med kunstsnø. For mer fartsfylte opplevelser er den nærliggende Middagsåsen slalåmbakke et godt alternativ, bakken ligger omtrent fem minutters kjøring videre nordover på RV120.
E6 ved Mosseporten er kun fem minutter unna, kjøretiden videre til Oslo er ca. 45 minutter utenom rushtid. Velger du toget, er den pendlervennlige Sonsveien stasjon er godt alternativ til stasjonen i Moss. Reisetiden fra Sonsveien stasjon til Oslo S er kun 30 minutter.
Adkomst
Veibeskrivelse Se Google maps - det er enkelt å finne frem i kartet.
Det vil bli skiltet med Krogsveen visningsskilt ved fellesvisninger.
Diverse opplysninger
Selger har ikke forsøkt å bebygge eiendommen og har derfor ikke kunnskap om eiendommens tilstand. Kjøper må derfor kunne påregne at det kan være flere feil og mangler som normalt ville vært oppdaget ved grave-, og bygningsarbeider, men som selger ikke har mulighet å vite.
Tomten
Eiertomt på 987 kvm. Solrik beliggende tomt i et etablert villastrøk. Det er gitt dispensasjon fra reguleringsbestemmelser med tillatelse i ett trinn til oppføring av tomannsbolig, carport og støttemurer 246,4 m2 BYA/ 303,1 m2 .Inkludert i beregning av arealet er carport med boder 47, 3 m2 BYA og parkeringsareal 54,0 m2 BYA.
Vei, vann og avløp
Eiendommen har adkomst via kommunal vei og inn til privat vei.
Eiendommen kan tilknyttes det kommunale ledningsnettet via private stikkledninger. Kjøper er ansvarlig for opparbeidelse frem til kommunalt nett. For avstand til kommunalt nett, se vedlagte kart.
Ved tilkobling til ledningsnettet påløper tilkoblingsavgift Se punkt kommunale avgifter for satser.
Eiendommens utgifter
Det er ikke registrert noen kommunale avgifter på eiendommen pr i dag og det vil komme kommunale avgifter på eiendommen når tomten blir bebygd.
Satser for kommunale avgifter hos Våler kommune:
Offentlige avløpsgebyrer
Avløpsgebyr, variabelt pr. kubikkmeter42,10
Vanngebyr, variabelt pr. kubikkmeter17,40
Avløpsgebyr, fast avgift2.641,-
Vanngebyr, fastavgift1.060,-
Tilknyttingsavgift, avløp1.500,-
Tilknyttingsavgift, vann1.500,-
Kontrollavgift spredt avløp1.380,-
Renovasjon- og slamtømmingsavgift:
Restavfall 140L3.525,-
Restavfall 240L4.946,-
Papp/papir 140-600L400,-
Glass/metall 140-660L372,-
Plast 140-660L400,-
Henteavstand 8-20 meter2.367,-
Henteavstand 21-30 meter2.973,-
Henteavstand 31-40 meter3.753,-
Slamtømming pr gang3450,-
Tillegg for tømming innen 24 timer1.750,-
Feiing og tilsyn
Feie- og tilsynsavgift helårsbolig pr. pipeløp kr. 556,-
Feie- og tilsynsavgift fritidsbolig pr. pipeløp kr. 243,-
Formuesverdi
Det er eiendomsskatt i Våler kommune.
Eiendomskattetaksten er grunnlaget for eiendomsskatten, og man betaler vedtatte promillesats i eiendomsskatt hvert år.
Satsen for i år er:
4 promille for bolig- og fritidseiendommer
4 promille for næringseiendommer
Eiendomskattetaksten settes på grunnlag av taksering gjennomført av takstmenn, og fastsettes deretter av sakkyndig nemd som er oppnevnt av kommunestyret. Vedtatt eiendomsskattetakst blir deretter redusert med 30% og det er denne summen som danner grunnlaget for beregning av eiendomsskatten. Eks: takst kr. 3.000.000,- gir et grunnlag for eiendomsskatt på kr. 2.100.000,-, og dette vil gi en årlig eiendomsskatt på kr. 8.400,-.
Eiendomsskattetaksten gir et grovt anslag på verdien basert på utvendig oppmåling, og skal tilsvare antatt salgsverdi av eiendommen i markedet. Takstene skal stå i 10 år og kan i spesielle tilfeller stå i inntil 13 år. Alternativt kan det foretas en kontorjustering (en prosentvis økning av taksten) etter 10 år.
Tinglyste heftelser og rettigheter
Eiendommen overdras fri for pengeheftelser
Det er tinglyst følgende servitutter på eiendommen.
Dagboknr 885074 , tinglyst 28.9.2016, type heftelse: Bestemmelse om adkomstrett. Denne omhandler om at nabo bnr. 9 (som tomten er utskilt i fra) har adomstrett over denne tomten som anvist på kart som ligger ved salgsoppgaven.
Servituttene vil følge eiendommen. Kjøpers bank vil få pant etter ovennevnte heftelser og servitutter.
Reguleringsbestemmelser
Eiendommen ligger i et uregulert område som er avsatt til boligformål i kommunens arealplan.
Det er gitt tillatelse til tiltak - Dispensasjon fra reguleringsbestemmelser - Oppføring av tomannsbolig datert 17.3.2023
Utdrag fra tillatelsen:
Det ble ved fradeling av tomten godkjent en mindre vesentlig reguleringsendring av utvalget for plansaker 06.03.2002; Reguleringsendring og fradeling GNR. 25 BNR. 9 i Våler kommune . Utnyttelsesgraden for eiendommen er %- BYA 25. Omsøkte tiltak medfører at eiendommen får en grad av utnytting på 24,96 %-BYA
Det omsøkte tiltaket er prosjektert over to etasjer, med vertikalt skille mellom boligene. Boligen plasseres inn i terreng for å ta hensyn til høydeforskjellen på tomten, og eksisterende veiforbindelse til tomt. Boligen får flatt tak med tak-utstikk og pussede fasader med utenpåliggende raster i partier. Boligen har terrasse på terreng ut fra 2.etg. Det benyttes plassbyggende murer for å ta opp terrengforskjell mellom ferdig gulvhøyder i boligen. Carport med bod får samme uttrykk som bolig med pussede vegger på bod del, flatt tak med tak-utstikk. Volumet og utrykket er enkelt og rent og godt tilpasset inn i boligområdet.
Carport plasseres sørøst på tomten med hensyn til siktlinje for å ivareta sikker avkjøring. Tiltakets utforming er vurdert i forhold til plan- og bygningsloven § 29-2. Det er ikke funnet forhold som tilsier at tiltaket ikke kan godkjennes
Tiltaket tillates nå igangsatt.
Er ikke arbeidet igangsatt innen 3 år etter at dispensasjon er gitt, faller tillatelsen bort. Det samme gjelder hvis arbeidet innstilles i lengre tid enn 2 år, jf. plan- og bygningsloven § 21 9.
Utsnitt av plan med tilhørende bestemmelser kan fås ved henvendelse til megler.
Lovanvendelse
Generelle bestemmelser
Salgsoppgaven er basert på de opplysningene selger har gitt til megler, den bygningssakyndiges tilstandsrapport, samt opplysninger innhentet fra kommunen, Kartverket og andre tilgjengelige kilder. Det er viktig at kjøper setter seg grundig inn i alle salgsdokumentene, herunder salgsoppgave, tilstandsrapport og selgers egenerklæring. Kjøper anses kjent med forhold som er tydelig beskrevet i salgsdokumentene, og slike forhold kan ikke påberopes som mangler. Dette gjelder uavhengig av om kjøper har lest dokumentene. Alle interessenter oppfordres til å undersøke eiendommen nøye, gjerne sammen med fagkyndig før bud inngis. Kjøper som velger å kjøpe usett kan ikke gjøre gjeldende som mangel noe han burde blitt kjent med ved undersøkelsen.
Dersom det er behov for avklaringer, anbefaler vi at interessenter rådfører seg med eiendomsmegler eller egne rådgivere før det legges inn bud.
En bolig som har blitt brukt i en viss tid, har vanligvis blitt utsatt for slitasje og skader kan ha oppstått. Slik bruksslitasje må kjøper regne med, og det kan avdekkes enkelte forhold etter overtakelse som nødvendiggjør utbedringer. Normal slitasje og skader som nødvendiggjør utbedring, er innenfor hva kjøper må forvente og vil ikke utgjøre en mangel.
Kjøper og selgers rettigheter og plikter reguleres av avtalen mellom partene, samt informasjonen som har vært tilgjengelig for kjøperen i forbindelse med handelen. Avtalen utfylles av avhendingsloven, og det gjelder ulike avtalevilkår avhengig av om kjøper er forbrukerkjøper eller ikke. Dette er nærmere beskrevet nedenfor.
På grunn av ulike avtalevilkår kan selger vurdere bud fra en som ikke er forbruker, ulikt fra en forbrukers bud. Dersom kjøper ikke er forbruker, er selger sitt mulige mangelsansvar begrenset fordi eiendommen selges "som den er". Selger kan ikke ta som den er - forbehold overfor en forbrukerkjøper. Selv et lavere bud fra en som ikke er forbruker kan foretrekkes fordi begrensningen i mulig mangelsansvar kan ha egenverdi for selger. Selger står fritt til å forkaste eller akseptere ethvert bud, og er for eksempel ikke forpliktet til å akseptere høyeste bud.
Budgiver skal i budskjema avgi egenerklæring om budgiver er forbruker eller næringsdrivende/ person som hovedsakelig handler som ledd i næringsvirksomhet. Budgivere får informasjon dersom andre bud er inngitt av en som ikke er forbruker.
Forbrukerkjøp - definisjon
Med forbrukerkjøp menes kjøp av eiendom når kjøperen er en fysisk person som ikke hovedsakelig handler som ledd i næringsvirksomhet.
Forbruker avtalevilkår
Eiendommen har en mangel dersom den ikke er i samsvar med kravene som følger av avtalen, eller det foreligger brudd på bestemmelsene i avhendingsloven §§ 3-2 til 3-8. Hvis eiendommen ikke er i samsvar med det kjøperen må kunne forvente ut ifra alder, type og synlig tilstand, kan det være grunnlag for mangelskrav. Det samme gjelder hvis det er holdt tilbake eller gitt uriktige opplysninger om eiendommen. Dette gjelder likevel bare dersom man kan gå ut ifra at det virket inn på avtalen at opplysningen ikke ble gitt eller at mangelskravet ikke blir rettet i tide på en tydelig måte.
Boligen kan ha en mangel etter avhendingsloven § 3-3 andre ledd, dersom det er avvik mellom opplyst og faktisk innvendig areal, forutsatt at avviket er på 2% eller mer og minimum 1 kvm.
Ved beregning av et eventuelt prisavslag eller erstatning må kjøper selv dekke tap/kostnader opptil et beløp på kr 10 000 (egenandel).
Ikke-forbruker (næringsdrivende) definisjon
Hvis kjøper er en juridisk person, eller en fysisk person som hovedsakelig handler som ledd i næringsvirksomhet, vil kjøpet ikke anses som et forbrukerkjøp.
Ikke-forbruker avtalevilkår
Eiendommen har en mangel dersom den ikke er i samsvar med kravene som følger av avtalen.
Eiendommen selges som den er , og selgers ansvar utover det konkret avtalte er da begrenset etter avhendingsloven § 3-9, første ledd andre setning.
Avhendingsloven § 3-3 andre ledd fravikes, og hvorvidt boligens arealsvikt utgjør en mangel vurderes etter avhendingsloven § 3-8.
Informasjon om kjøpers undersøkelsesplikt, herunder oppfordringen om å undersøke eiendommen nøye, gjelder også for kjøpere som ikke anses som forbrukere.
Det forutsettes at hjemmel overføres til kjøper. Hvis kjøper ikke ønsker hjemmelsoverføring av eiendommen, må det tas forbehold om dette i budet.
Rett til fritt å velge megler
Valg av eiendomsmeglingsforetak skal være frivillig. Eiendomsmeglingsforetak kan ikke inngå oppdrag om eiendomsmegling dersom inngåelsen av oppdraget er satt som vilkår i avtale om annet enn eiendomsmegling, f.eks. tilbud om lån eller andre banktjenester, jf. Lov om eiendomsmegling § 6-3 (3)
Nyttige lenker
Krogsveen Fredrikstad og Sarpsborg
Nærområdet
Annonseinformasjon
| FINN-kode | 364929057 |
|---|---|
| Sist endret | 18. aug. 2025 10:40 |
| Referanse | KR67.24236 |
Annonsene kan være mangelfulle i forhold til lovpålagt opplysningsplikt. Før bindende avtale inngås oppfordres interessenter til å innhente komplett informasjon fra meglerforetaket, selger eller utleier.












