Bildegalleri

EiendomsMegler 1 v/ Sunniva Østigård har gleden av å presentere denne eiendommen!
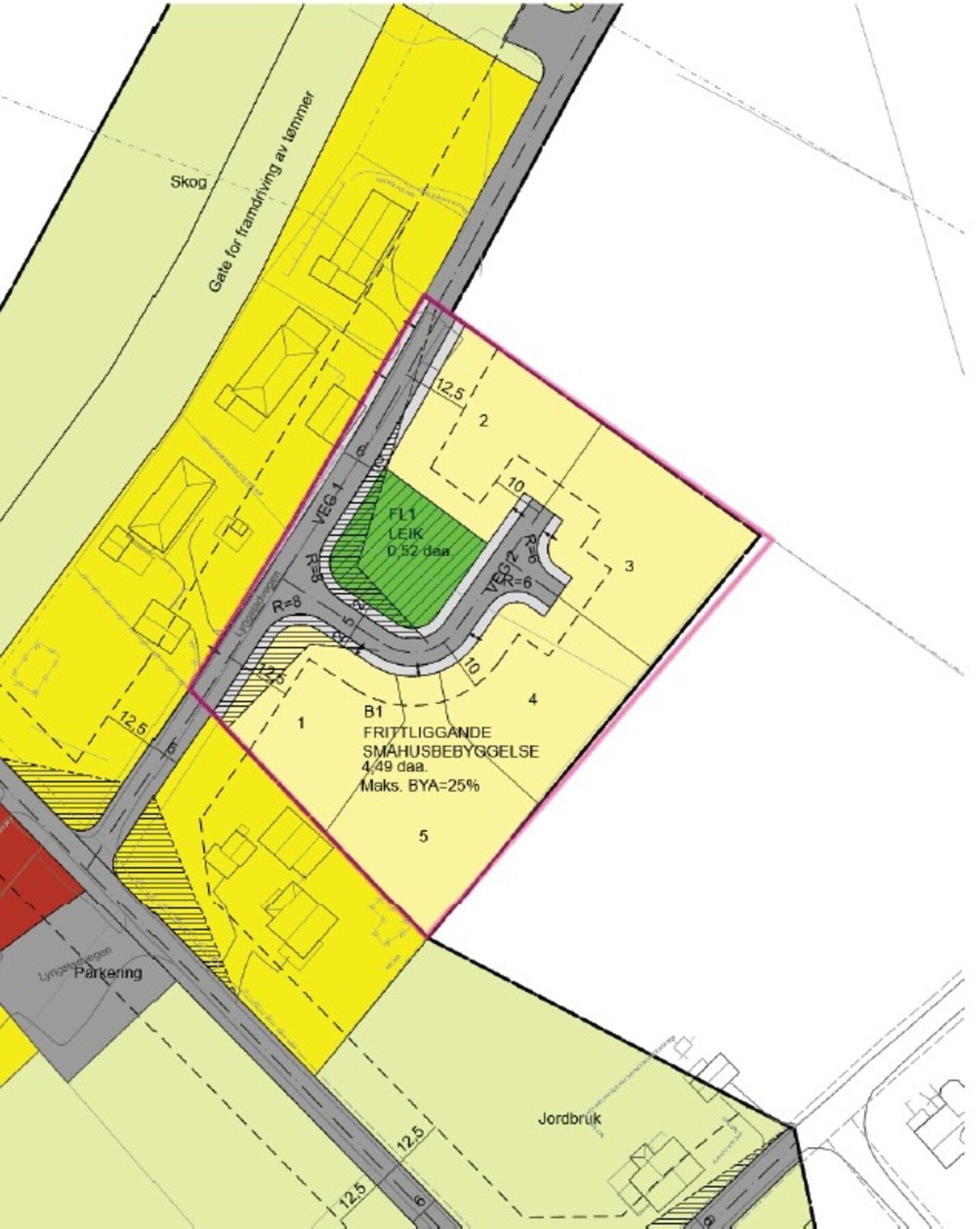
Stor tomt med gode sol- og utsiktsforhold | Attraktiv beliggenhet ved Lyngstadvegen nord | Innregulert til 5 eneboliger
- Verditakst
- 1 800 000 kr per år
- Totalpris
- 1 948 590 kr
- Omkostninger
- 48 590 kr
- Formuesverdi
- 40 000 kr
Nøkkelinfo
Fasiliteter
Om eiendommen
Kort om eiendommen
EiendomsMegler 1 v/ Cecilie Clausen har gleden av å presentere denne eiendommen!
Sørøstvendt tomt beliggende ved Lyngstadvegen nordvest på Lepsøya. Tomten er regulert til boligbebyggelse. Gode sol- og utsiktsforhold!
Beskaffenhet
Naturtomt på ca. 6550 m2 , sørøst vendt, for det meste flat, naturlig vegetasjon, ikke ryddet. Tomten er regulert til frittliggende småhusbebyggelse. Maks BYA = 25%.
Beliggenhet
Tomt beliggende ved Lyngstadvegen nordvest på Lepsøya i Haram kommune. Tomten er regulert til boligbebyggelse. Tomten er sørøst vendt og har gode sol og utsiktsforhold. Barnehage, barneskole og dagligvarebutikk på øya. Det er kort vei til den nye brua over til fastlandet. Det er fine muligheter for fritidsaktiviteter både i organisert idrettslag og utallige muligheter for turer. Populære Goalden som er høyeste punktet på øya er en flott fjelltur hvor 490 moh. gir deg en fantastisk utsikt i alle himmelretninger. For de mindre er den populære Eventyrskogen alltid verdt et besøk.
Adkomst
På finn.no kan du se vedlagt kartskisse på høyre side i annonsen. Ved å trykke på kartet får du enkelt tilgang til en spesifisert reiserute fra din startdestinasjon til boligen. Det vil bli skiltet med EiendomsMegler1 skilt.
Regulering
Eiendommen ligger i et regulert område regulert til frittliggande småhusbebyggelse med plan-id og plan-navn: 1534130 - Farstad - Bustadområde på gnr. 18 bnr. 9 (27.8.2007).
Maks BYA = 25%
Reguleringsformål:
- Annen veigrunn
- Felles lekeareal
- Frisiktsone
- Frittliggende småhusbebyggelse
- Kjørevei
Eiendommen ligger i et område som i kommunedelplanen er avsatt til:
- Boligbebyggelse, nåværende
- LNRF areal for nødvendige tiltak for landbruk og reindrift og gårdstilknyttet næringsvirksomhet basert på gårdens ressursgrunnlag - Nåværende
- Ras- og skredfare
- Reguleringsplan skal fortsatt gjelde
Gjeldende plan er Kommunedelplan for Haram 2019-2031 (18.6.2020).
Kopi av situasjonskart, målebrev, reguleringsplaner m/bestemmelser etc. kan fås ved henvendelse til megler. Vi oppfordrer interessenter til å gjøre seg kjent med disse.
Treff i analysedata:
- Radon aktsomhet - Moderat til lav
- Løsmasser - Marin strandavsetning
- Dyrkbar jord
- Dyrkbar jord - Ikke endret
- Bebygd
- Samferdsel
- Skog
- Åpen fastmark
- Artsforekomster
- Vassdragsområde
- Kystlandskap
- Grundig kartlagt med funn (Flom aktsomhetsdekning)
- Snøskred - Utløpsområde
Eiendommen ligger i et område avsatt til LNFR-areal(landbruks-, natur- og friluftsformål samt reindrift) for spredt bolig-, fritids- eller næringsbebyggelse mv i kommuneplanens arealdel.
Dette kan medføre begrensninger knyttet til bruk av ulik karakter og utvikling av eiendommen. Nærmere bestemmelser om at spredt bolig-, fritids- eller næringsbebyggelse og annen bebyggelse kan tillates gjennom behandling av enkeltvise søknader eller reguleringsplan når formålet, bebyggelsens omfang og lokalisering med mere kan finnes i kommuneplanens arealdel. Kopi av planen finnes på kommunens hjemmeside eller kan fås ved henvendelse til megler.
Diverse
Boligen selges ved fullmektig. Fullmektig har derfor ikke førstehåndskunnskap om boligen, og har i begrenset grad kunnet supplere og/eller kontrollere opplysningene.
Faste løpende utgifter
Vei, vann og avløp
Tomten ligger til offentlig vei. . Ikke tilknyttet vann og avløp.
Vær oppmerksom på at det kan påløpe en refusjonsavgift fra kommunen vedrørende utbygging av teknisk anlegg.
Ligningsverdi (formuesverdi)
Primær formuesverdi kr 40 000,-
Sekundær formuesverdi kr 0,-
Formuesverdi årstall 2022
Skattemessig formuesverdi er oppgitt av Altinn. Verdien gjelder som primærbolig.
Boligselgerforsikring
Selger har ikke kjøpt boligselgerforsikring, men har fylt ut egenerklæringsskjema. Kjøper oppfordres til å gjennomgå innholdet i skjemaet i forkant av budgivning.
Selger har opplyst om følgende i egenerklæringsskjemaet som ligger vedlagt salgsoppgaven:
2. Selges tomten med fullmakt?
- Ja.
3. Har du kjennskap til tomten?
- Ja.
23. Er det er noe annet ved tomten som det kan være viktig for kjøperen å vite om? - Vet ikke om noe.
Boligkjøperforsikring
EiendomsMegler 1 formidler Boligkjøperforsikring fra HELP Forsikring AS. Det er en rettshjelpsforsikring som gir trygghet og profesjonell juridisk hjelp dersom det oppdages uventede feil eller mangler de neste fem årene. Du kan ta kontakt med megler for å få informasjon om boligkjøperforsikring eller lese mer på help.no. Forsikringen tilbys kun til privatpersoner som kjøper eiendom til eget eller nærmeste families bruk, og det er en forutsetning at kjøpsavtalen reguleres av avhendingsloven. Ved kjøp av landbrukseiendom/ småbruk, er det kun forhold tilknyttet til våningshuset som omfattes av forsikringen. For nærmere detaljer henvises det til forsikringsvilkårene. Megler mottar tegningsprovisjon fra HELP.
Egenerklæring konsesjonsfrihet
Egenerklæring om konsesjonsfrihet må undertegnes av kjøper og bekreftes av kommunen.
Nyttige lenker
EiendomsMegler 1 Ålesund, St Olavs Plass
Nærområdet
Annonseinformasjon
| FINN-kode | 345644125 |
|---|---|
| Sist endret | 24. mars 2026 09:05 |
| Referanse | 16240054 |
Annonsene kan være mangelfulle i forhold til lovpålagt opplysningsplikt. Før bindende avtale inngås oppfordres interessenter til å innhente komplett informasjon fra meglerforetaket, selger eller utleier.














