Bildegalleri

Flotte, romslige & byggeklare utsiktstomter på Sundet. Med rammetillatelse på arkitekttegnede eneboliger.
- Omkostninger
- 21 750 kr
Nøkkelinfo
Om eiendommen
Kort om eiendommen
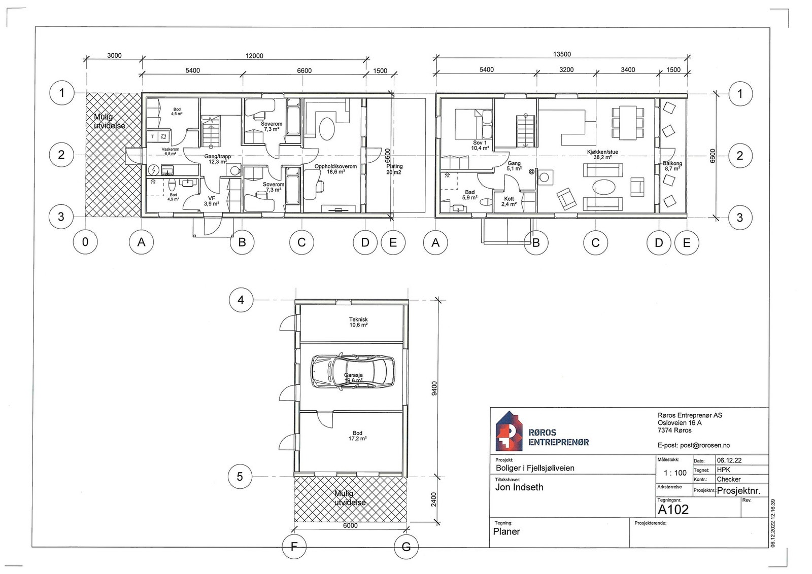
Tomtene er byggeklare med godkjente tegninger. Rammegodkjenning foreligger og igangsettelse av grunnarbeidet er gitt for oppføring av 3 bolighus og garasje med bod på hver av disse, på gårdsnummer 38 og bruksnummer 3.
Tomtene ligger med et variert, vakkert fjellterreng høyt oppe ca. 3 km fra Røros sentrum. Tomtene romslige samt at det er et fellesareal fordelt på tre eiendommer med felles kloakkanlegg.
Frem til nå så har selger hatt kostnader med arkitekt, prosjektering og søknadsprosess. Detter er inkludert i prisen. Evt kostnader ifm endringssøknader etc. må bekostes av kjøper selv.
Tomtene:
Ca. størrelse på hver tomt:
Fjellsjøliveien 24(tomt 1) har et areal på 2607 kvm
Pris kr 870 000,- + kjøpsomkostninger
Fjellsjøliveien 22(tomt 2) har et areal på 1750 kvm
Pris kr 830 000,- + kjøpsomkostninger
Fjellsjøliveien 20(tomt 3) har et areal på 2080 kvm
Pris kr 850 000,- + kjøpsomkostninger
Beliggenhet
Tomtene ligger ca 3 km utenfor Røros sentrum med vill natur, skiløyper, et levende grendemiljø
og badeplass i nærheten. Fantastiske turmuligheter året rundt. Her er du freden og stillheten, men titter bort på både flyplass og en livlig, spennende småby. Det tar ca 12 minutter å sykle inn til Røros sentrum, en by som har utrolig mye å by på. I tillegg til jobbmuligheter, skoler, barnehager, et spennende utvalg butikker og spisesteder har Røros både musikkfestivaler, hundeløp, Rørosmartnan, klassisk musikkfestival, kino, uteteater, rik historie, museer, et kunnskapsrikt kunst- og håndverksmiljø og et levende lokalmatmiljø og mye mer. Les mer om Røros på www.roros.no
Adkomst
Fra Røros jernbanestasjon: Kjør RV30 nordover ca. 200 m til skilt mot Sundet til venstre, deretter første vei til høyre. Følg veien forbi enden avflyplassen og over Sundbrua. Ta til venstre der veien deler seg rett etter brua, og kjør ca. 100 m opp bakken. Ta til høyre inn på Fjellsjøliveien.
Regulering
Eiendommen ligger i et område som er regulert av KOMMUNEPLANENS AREALDEL, PLANBESTEMMELSER 2019- 2029. Kommunedelsplanen kan fås ved henvendelse til megler.
Kommuneplaner
Id: 201801
Navn: Kommuneplanens arealdel 2019-2029
Plantype: Kommuneplanens arealdel
Status: Endelig vedtatt arealplan
Ikrafttredelse: 27.05.2021
Bestemmelser: - http://webhotel2.gisline.no/GisLinePlanarkiv/5025/201801/Dokumenter/Planbestemmelser-%20vedlegg%20til%20sluttbehandling.pdf
Tiltaksområdet er avsatt til arealformål boligbebyggelse og LNFR, planid. 201801, vedtatt 27.05.2021.
Vei, vann og kloakk
Det foreligger avtale datert 05.12.2022 for bruk av Fjellsjøliveien frem til offentlig vei for eiendommene.
Veiavgift Fjellsjøliveien kr 500, dekker hele veien (7 km).
Felles opplegg med brøyting av den 1. km av veien
Eiendommene skal kobles til offentlig vann.
Eiendommene skal kobles til felles privat avløpsanlegg. ihht til krav stilt i utslippstillatelse datert 20.10.2023 skal følges.
Fiberkabel og strøm er fremført til hver tomtegrense.
Tilkoblingsavgift til vann betales av kjøper.
Tomter
Fjellsjøliveien 20:
Areal 2 079 m²
Pris kr 850 000,-
Fjellsjøliveien 22:
Areal 1 749 m²
Pris kr 830 000,-
Fjellsjøliveien 24:
Areal 2 607 m²
Pris kr 870 000,-
Nyttige lenker
Nylander &Partners, Røros
Nærområdet
Annonseinformasjon
| FINN-kode | 344669511 |
|---|---|
| Sist endret | 15. des. 2025 09:15 |
| Referanse | 13240018 |
Annonsene kan være mangelfulle i forhold til lovpålagt opplysningsplikt. Før bindende avtale inngås oppfordres interessenter til å innhente komplett informasjon fra meglerforetaket, selger eller utleier.


















