Bildegalleri

Boligtomt med rammetillatelse til oppføring av en meget spennende enebolig på ca 263 kvm BRA. Gode solforhold og utsikt. Illustrasjon - avvik vil forekomme - Tomten vil bli seksjonert
Unik tomt på Fjellknatten med rammetillatelse til en spennende enebolig på ca 263 kvm. Gode solforhold og utsikt.
- Totalpris
- 12 320 900 kr
- Omkostninger
- 320 900 kr
Nøkkelinfo
Visning
Om eiendommen
Kort om eiendommen
Unik mulighet i rolig blindvei rett ved Langsetløkka, Maridalsvannet og marka.
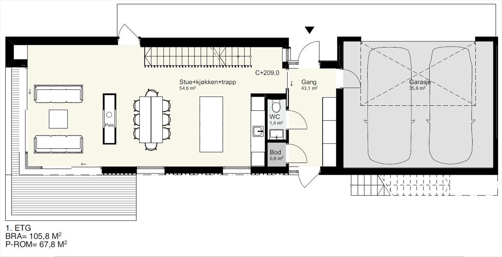
Tomt med rammetillatelse for oppføring av en arkitekttegnet enebolig vurderes solgt. Den godkjente eneboligen er på totalt ca 263 kvm BRA inkludert en dobbeltgarasje på ca 36,5 kvm. I tillegg er det godkjent en vestvendt takterrasse på ca 29 kvm.
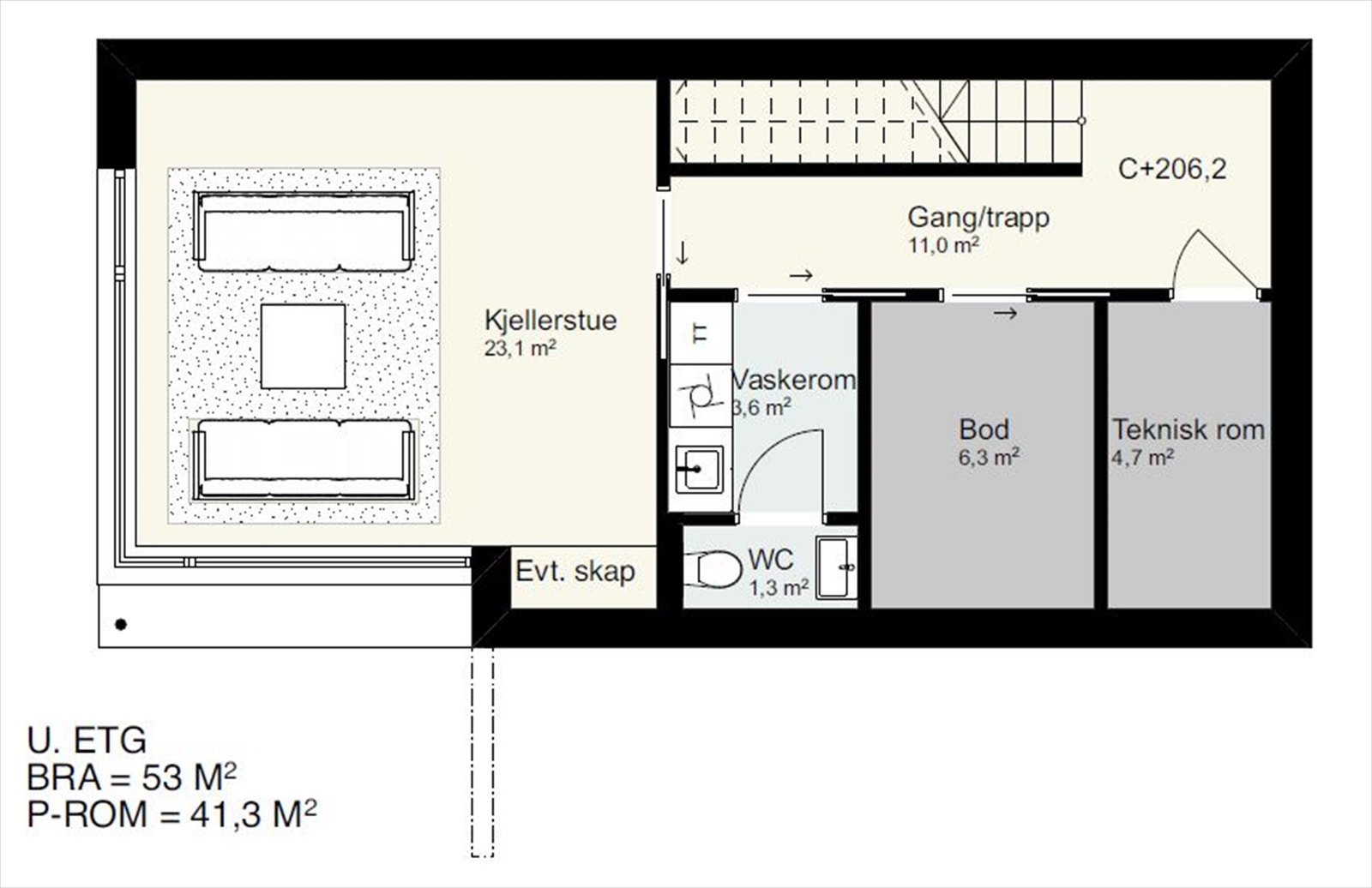
Boligen har en meget spennende planløsning med blant annet 2 bad og 4 soverom på ett plan i tillegg til en egen "ungdomsavdeling/utleiedel" med eget bad og inngang. Moderne uttrykk med store glassflater og hovedetasjen har et stor, åpen kjøkken/stueløsning på ca 55 kvm. Underetasjen består av kjellerstue, vaskerom, bod og teknisk rom.
Boligen vil ligge på "åskammen" med flott utsikt mot vest og gode solforhold.
Tomten vil bli seksjonert
Ta kontakt for informasjon
Beliggenhet
Eiendommen har en meget flott og fredelig beliggenhet med gode solforhold og flott utsikt mot vest. Eiendommen har en skjermet beliggenhet i en stille og rolig blindvei med nærhet til noen av de flotteste tur/ski/sykkel/løpe-løypene byen vår har å by på. På snørike vintre vil du kunne du ta skiene i hendene og gå et par minutter til Langsetløkka der løypene starter. Her har du milevis med løypealternativer som vil passe mosjonisten og også de mer erfarne skiløperne. I tillegg til den markanære beliggenheten ligger eiendommen også med kort avstand til flere barnehager, Kjelsås barneskole, matbutikk og holdeplass for både buss, trikk og tog. Om sommeren kan du gå ned eller trille på sykkelen til de flotte badeplassene langs Akerselva. Her er det gode alternativer for både de minste barna som trenger langgrunne forhold og for de mer svømmedyktige. Det er forøvrig kort vei til flere idrettsanlegg og Kjelsås IL har et bredt tilbud til de fleste aldersgrupper.
Eiendommen vil ha rett til å benytte veibommen som er ført opp i Lachmanns vei mot Langsetløkka.
Adkomst
Det vil bli skiltet med Krogsveen visningsskilt ved fellesvisninger.
Diverse opplysninger
Kjøper overtar eiendommen Fjellknattveien 5B, som er under seksjonering og vil få tildelt snr senere, med medfølgende rammetillatelse for oppføring av en enebolig.
Kjøper overtar alt ansvar og risiko for oppføring og gjennomføring av byggingen og bærer alle kostnader forbundet med dette. Dette inkluderer blant annet prosjektering, søknad om IG, kommunale saksbehandlingsgebyrer, tiltak som kreves internt på egen tomt, slik som beplanting, kostnader til tilkobling av el-, vann- og avløp, osv.
Selger bekoster og gjennomfører søknad om delvis IG for grunnarbeider og bekoster og utfører utsprengning av den del av fjell som trengs for å bygge boligen ihht godkjente rammetillatelse med seneste endring. Dette vil bli utført samtidig med at det sprenges ifbm bygging av eneboligen som skal oppføres på avgivereiendommen (Fjellknattveien 5A.)
Selger har ved hjelp av arkitekt igangsatt seksjonering av eiendommen. Selger har ansvar for å gjennomføre eventuelle endringer i seksjoneringen som kommunen krever i forbindelse med saksbehandlingen for å få denne godkjent. Kjøper vil ikke kunne motsette seg eventuelle endringer som kommunen krever og vil ikke kunne ha noen økonomiske krav ovenfor selger på bakgrunn av dette
Det er ikke foretatt grunnundersøkelser på tomten og selger tar forbehold om at må utføres tiltak under oppføring av boligen basert på forhold i grunnen som selger ikke har kjennskap til.
Selger forbeholder seg retten til at kun mindre endringer ift rammetillatelsen vil bli akseptert. Byggets plassering høyde og lengde skal beholdes og alle endringer skal godkjennes av selger før det søkes om endringer til kommunen.
Arkitekt for tiltaket er Skaara Arkitekter AS.
For ytterligere informasjon om tiltaket, samt evt. videre prosess frem mot realisering av tiltaket, kan arkitekt kontaktes:
Kontaktinfo:
Skaara Arkitekter AS
v/ Geirmund Barsnes
E-post: geirmund@skaara.no
Tlf: 90995878
Drammensveien 130C
0277 Oslo
Tomten
Boligtomt under seksjonering. I følge informasjon fra arkitekt vil denne seksjon sin del av tomt være på ca 613 kvm og det foreligger en godkjent rammetillatelse på oppføring av en enebolig på ca 263 kvm inkludert en dobbeltgarasje på ca 36,5 kvm. Det er i tillegg godkjent en takterrasse på ca 29 kvm. Ny eier opparbeider tomten slik de ønsker i forbindelse med byggingen av boligen, men må opparbeides med permeable flater og forrøyning av overvann på egen grunn i henhold til prosjektert prinsipp for overvannshåndtering.
Vei, vann og avløp
Eiendommen har adkomst via privat vei med felles vedlikeholdsansvar for veilaget. Lachmanns vei fra Midtoddveien og Fjellknattveien er privat og driftet gjennom Osebakken veilag som også har ansvar for bommen i Lachmanns vei mot Langsetløkka.
Årsavgift for veilaget i 2023 var kr 3.500,-. Årsavgiften inkluderer tilgang til å åpne bommen for førerkortinnehavere i husstanden.
I forbindelse med søknad om oppføring av de to eneboligene på Fjellknattveien 5, samt de tre tomannsboligene på Fjellknattveien 6 og 7 samt tomt uten veinr, er det inngått avtale mellom tiltakshaverne bak søknadene og veilaget om utbedring/opparbeidelse av den private veien. Det er innhentet tilbud på denne jobben og det er satt en grense på kr. 1,6 millioner i avtalen som dekkes av utbyggerne. Dersom det påløper ytterligere kostnader vil dette bli fordelt på medlemmene av veilaget. Dagens eier av Fjellknattveien 5 vil dekke denne eiendommens andel av utbedring/opparbeidelse som ligger i avtalen med veilaget. Ny eier vil måtte være med å å dekke et eventuelt overskytende ut over det som foreligger i avtalen. Avtalen mellom tiltakshaverne og veilaget ligger vedlagt salgsoppgaven.
Eiendommen kan tilknyttes det kommunale ledningsnettet via private stikkledninger. Kjøper er ansvarlig for opparbeidelse frem til kommunalt nett. For avstand til kommunalt nett, se vedlagte kart.
Ved tilkobling til ledningsnettet påløper tilkoblingsavgift på kr 138,84 pr kvm tomt for vann og kr. 138,84 pr kvm tomt for avløp. (Tall for 2024).
Det ligger fiber og strøm i området og ny eier overtar ansvar med å legge dette til egen bolig. Ifølge muntlig informasjon fra Elvia er det kapasitet på el-anlegget og de har anslått kostnad til tilkobling på ca kr. 30-40.000,- + gravekostnader.
Tinglyste heftelser og rettigheter
Eiendommen overdras fri for pengeheftelser
Eiendommen er under seksjonering og det er tinglyst følgende servitutter på avgivereiendommen . Servituttene vil være gjeldende for denne seksjonen også.
Dagboknr 25036, tinglyst 20.04.1990, type heftelse: Bestemmelse om bebyggelse - eier av Fjellknattveien 5 (gnr. 75, bnr. 1379) samtykker i at naboeiendom, Fjellknattveien 7 (gnr. 75, bnr. 1380), bebygges inntil 2,5 meter fra nabogrense. Eier av Fjellknattveien 5 forplikter seg også til å ikke bebygge egen eiendom nærmere enn hva lovgivningen bestemmelser sier.
Dagboknr 22877, tinglyst 09.05.1990, type heftelse: Bestemmelse om adkomstrett - Fjellknattveien 7 (gnr. 75, bnr. 1380), Fjellknattveien 6 (gnr. 75, bnr. 155), samt gnr. 75, bnr. 1381 skal ha rett til kjørbar adkomstvei (4 meter bred) fra Fjellknattveien til sine eiendommer, over FJellknattveien 5 sin østre grense.
Dagboknr 1285, tinglyst 09.01.1995, type heftelse: Bruksrett - Fjellknattveien 7 (gnr. 75, bnr. 1380) skal ha rett til bruk av grunn på Fjellknattveien 5 sin grunn for reparasjon og vedlikehold.
Dagboknr 2910396, tinglyst 24.08.2020, type heftelse: Bestemmelse om veg - Fjellknattveien 6 (gnr. 75, bnr. 155) og Fjellknattveien 7 (gnr. 75, bnr. 1380) har veirett over Fjellknattveien 5.
Dagboknr 1368616, tinglyst 06.12.2023, type heftelse: "Standarderklæring" med midlertidig dispensasjon fra Plan og bygningsloven. Lachmanns vei godkjennes inntil videre og eier er kjent med at kommunen når som helst kan trekke dispensasjonen tilbake og får plikt til å opparbeide veien i regulert veibredde (inntil 10 meter bredde, men ikke bredere enn regulert) med nødvendig tillegg for fylling og skjæring. frem til og langs den siden av tomten hvor den har sin atkomst. Evt plikt til å opparbeide veien til effektiv veibredde på inntil 6 meter. Hvis eier ikke sørger for å få utført arbeidet om pålagt kan kommunen opparbeide eller la andre opparbeide veien. Plikt til å overdra nødvendig veigrunn til kommunen. Servitutten ligger vedlagt salgsoppgaven.
Servituttene vil følge eiendommen. Kjøpers bank vil få pant etter ovennevnte heftelser og servitutter.
Reguleringsbestemmelser
Eiendommen er regulert til boligformål i henhold til reguleringsplan S-4220 med tilhørende reguleringsbestemmelser datert 15.03.2006, rev. 12.06.2013 og 17.3.2015. I forbindelse med revisjon av denne planen foreligger det midlertidig forbud mot tiltak og forslag til revidert plan innenfor planens områder. Konferer gjerne med megler.
Rammetillatelse for oppføring av en enebolig på denne eiendom ble gitt 21.07.2023. Det ble så søkt om en endring av tillatelsen 05.12.2023. Langs boligens sydfasade ble det søkt om å legge til en utkraget trapp fra terreng opp til boligens 2. etasje. Tillatelse ble gitt 08.12.2023. Rammetillatelse og endringssøknad/tillatelse ligger vedlagt salgsoppgaven.
Det er i etterkant omprosjektert noe på underetasjen av boligen, der vestveggen er trukket noe inn. Det betyr at underetasjen er ca 2,2kvm mindre i areal i underetasjen enn det som foreligger i rammetillatelsen.
Det foreligger rammetillatelse på oppføring av 3 tomannsboliger på tomtene som ligger bakenfor og innenfor denne tomten i Fjellknattveien (Fjellknattveien 6 og 7, samt ubebygget tomt gnr 75, bnr 1381). Disse er vist i hvitt på illustrasjoner i annonsen.
Det foreligger rammetillatelse for oppføring av en enebolig på avgivereiendommen (Fjellknattveien 5A).
Kontakt megler for mer informasjon, eller se saksinnsyn hos Plan og bygningsetaten.
Lovanvendelse
Generelle bestemmelser
Salgsoppgaven er basert på de opplysningene selger har gitt til megler, den bygningssakyndiges tilstandsrapport, samt opplysninger innhentet fra kommunen, Kartverket og andre tilgjengelige kilder. Det er viktig at kjøper setter seg grundig inn i alle salgsdokumentene, herunder salgsoppgave, tilstandsrapport og selgers egenerklæring. Kjøper anses kjent med forhold som er tydelig beskrevet i salgsdokumentene, og slike forhold kan ikke påberopes som mangler. Dette gjelder uavhengig av om kjøper har lest dokumentene. Alle interessenter oppfordres til å undersøke eiendommen nøye, gjerne sammen med fagkyndig før bud inngis. Kjøper som velger å kjøpe usett kan ikke gjøre gjeldende som mangel noe han burde blitt kjent med ved undersøkelsen.
Dersom det er behov for avklaringer, anbefaler vi at interessenter rådfører seg med eiendomsmegler eller egne rådgivere før det legges inn bud.
En bolig som har blitt brukt i en viss tid, har vanligvis blitt utsatt for slitasje og skader kan ha oppstått. Slik bruksslitasje må kjøper regne med, og det kan avdekkes enkelte forhold etter overtakelse som nødvendiggjør utbedringer. Normal slitasje og skader som nødvendiggjør utbedring, er innenfor hva kjøper må forvente og vil ikke utgjøre en mangel.
Kjøper og selgers rettigheter og plikter reguleres av avtalen mellom partene, samt informasjonen som har vært tilgjengelig for kjøperen i forbindelse med handelen. Avtalen utfylles av avhendingsloven, og det gjelder ulike avtalevilkår avhengig av om kjøper er forbrukerkjøper eller ikke. Dette er nærmere beskrevet nedenfor.
På grunn av ulike avtalevilkår kan selger vurdere bud fra en som ikke er forbruker, ulikt fra en forbrukers bud. Dersom kjøper ikke er forbruker, er selger sitt mulige mangelsansvar begrenset fordi eiendommen selges "som den er". Selger kan ikke ta som den er - forbehold overfor en forbrukerkjøper. Selv et lavere bud fra en som ikke er forbruker kan foretrekkes fordi begrensningen i mulig mangelsansvar kan ha egenverdi for selger. Selger står fritt til å forkaste eller akseptere ethvert bud, og er for eksempel ikke forpliktet til å akseptere høyeste bud.
Budgiver skal i budskjema avgi egenerklæring om budgiver er forbruker eller næringsdrivende/ person som hovedsakelig handler som ledd i næringsvirksomhet. Budgivere får informasjon dersom andre bud er inngitt av en som ikke er forbruker.
Forbrukerkjøp - definisjon
Med forbrukerkjøp menes kjøp av eiendom når kjøperen er en fysisk person som ikke hovedsakelig handler som ledd i næringsvirksomhet.
Forbruker avtalevilkår
Eiendommen har en mangel dersom den ikke er i samsvar med kravene som følger av avtalen, eller det foreligger brudd på bestemmelsene i avhendingsloven §§ 3-2 til 3-8. Hvis eiendommen ikke er i samsvar med det kjøperen må kunne forvente ut ifra alder, type og synlig tilstand, kan det være grunnlag for mangelskrav. Det samme gjelder hvis det er holdt tilbake eller gitt uriktige opplysninger om eiendommen. Dette gjelder likevel bare dersom man kan gå ut ifra at det virket inn på avtalen at opplysningen ikke ble gitt eller at mangelskravet ikke blir rettet i tide på en tydelig måte.
Boligen kan ha en mangel etter avhendingsloven § 3-3 andre ledd, dersom det er avvik mellom opplyst og faktisk innvendig areal, forutsatt at avviket er på 2% eller mer og minimum 1 kvm.
Ved beregning av et eventuelt prisavslag eller erstatning må kjøper selv dekke tap/kostnader opptil et beløp på kr 10 000 (egenandel).
Ikke-forbruker (næringsdrivende) definisjon
Hvis kjøper er en juridisk person, eller en fysisk person som hovedsakelig handler som ledd i næringsvirksomhet, vil kjøpet ikke anses som et forbrukerkjøp.
Ikke-forbruker avtalevilkår
Eiendommen har en mangel dersom den ikke er i samsvar med kravene som følger av avtalen.
Eiendommen selges som den er , og selgers ansvar utover det konkret avtalte er da begrenset etter avhendingsloven § 3-9, første ledd andre setning.
Avhendingsloven § 3-3 andre ledd fravikes, og hvorvidt boligens arealsvikt utgjør en mangel vurderes etter avhendingsloven § 3-8.
Informasjon om kjøpers undersøkelsesplikt, herunder oppfordringen om å undersøke eiendommen nøye, gjelder også for kjøpere som ikke anses som forbrukere.
Det forutsettes at hjemmel overføres til kjøper. Hvis kjøper ikke ønsker hjemmelsoverføring av eiendommen, må det tas forbehold om dette i budet.
Rett til fritt å velge megler
Valg av eiendomsmeglingsforetak skal være frivillig. Eiendomsmeglingsforetak kan ikke inngå oppdrag om eiendomsmegling dersom inngåelsen av oppdraget er satt som vilkår i avtale om annet enn eiendomsmegling, f.eks. tilbud om lån eller andre banktjenester, jf. Lov om eiendomsmegling § 6-3 (3)
Nyttige lenker
Krogsveen Grefsen
Nærområdet
Annonseinformasjon
| FINN-kode | 329976816 |
|---|---|
| Sist endret | 31. mars 2025 06:23 |
| Referanse | KR41.23126 |
Annonsene kan være mangelfulle i forhold til lovpålagt opplysningsplikt. Før bindende avtale inngås oppfordres interessenter til å innhente komplett informasjon fra meglerforetaket, selger eller utleier.



















