Bildegalleri

1 231 kvm boligtomt i trafikkstille blindvei på Tanum / Rammetillatelse for arkitekttegnet enebolig med 272 kvm bra
TANUM /Stor solrikt tomt i blindvei /Rammetillatelse for enebolig m/272 kvm BRA
- Totalpris
- 7 995 585 kr
- Omkostninger
- 195 585 kr
Nøkkelinfo
Fasiliteter
Visning
Adkomst
Beliggenhet
Beskaffenhet
1 231 kvm selveiet tomt. Se situasjonskart som ligger sammen med bildene, der tomtens areal og grenser vises.
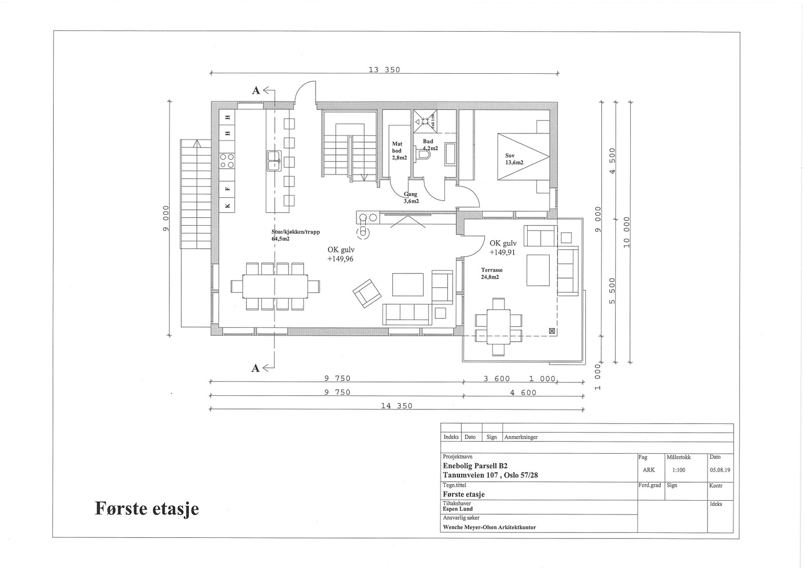
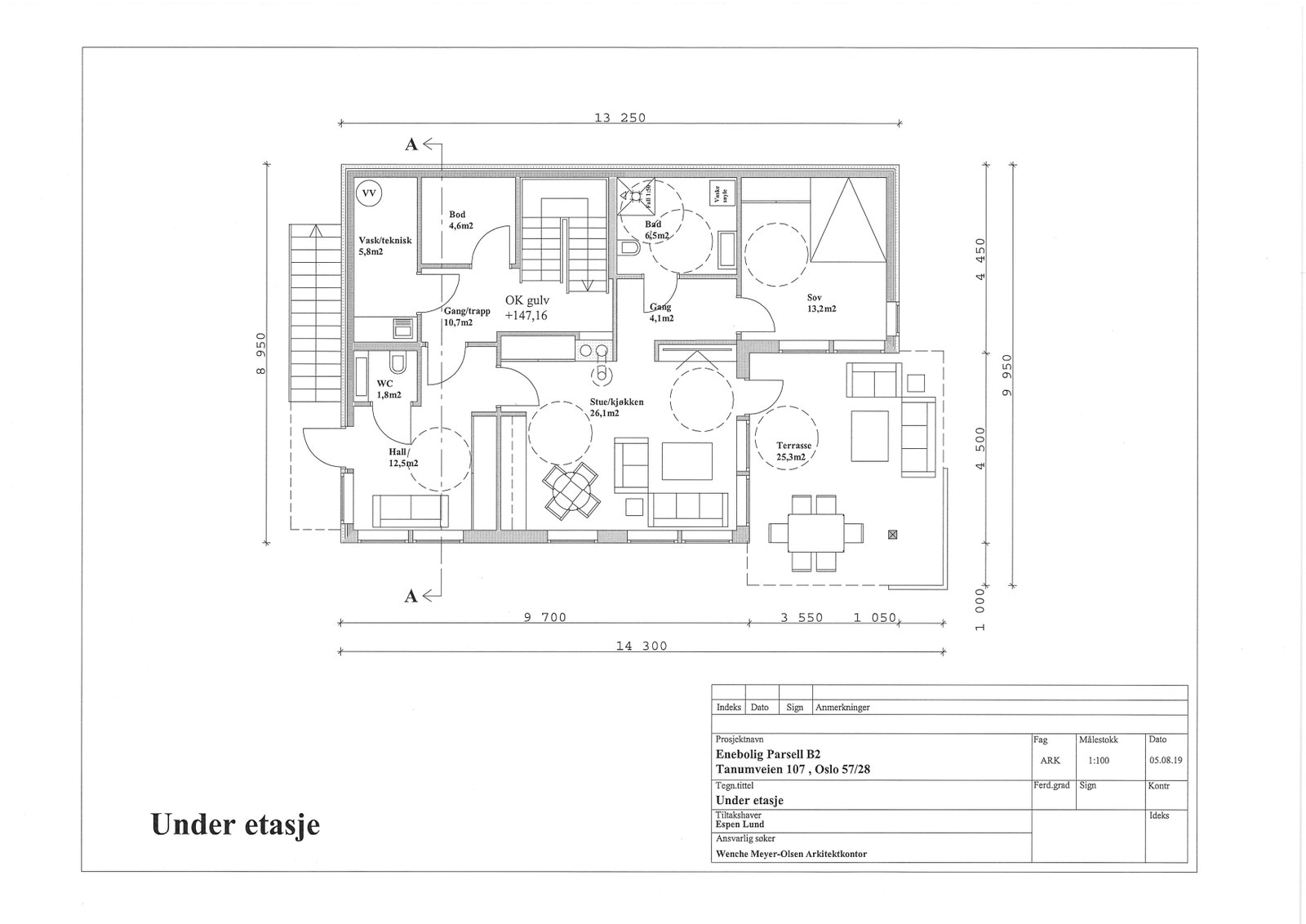
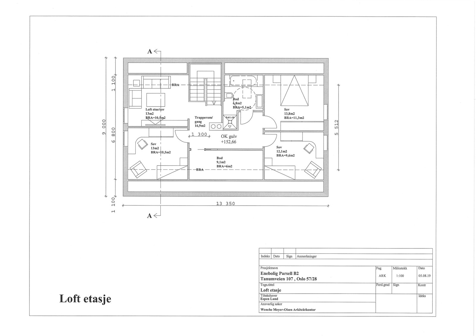
Det foreligger rammetillatelse for en stor og arealeffektiv arkitekttegnet enebolig. Tegninger er inntatt sammen med bildene i annonsen. Boligen ligger i felt B2 i reguleringsplan og har et arkitektonisk utrykk som er harmonisert med to eneboliger som vil bli oppført på to tilgrensende nabotomter i felt B3 og B4, slik som forutsatt i reguleringsplanen. De godkjente tegningene må følges. Det vil være mulig med endringer i planløsning og eventuelt mindre justeringer på fasader.
Selger besørger og bekoster nytt offentlig hovedledningsnett for vann, avløp og overvann, forbi eiendommen, samt vannkum med brannuttak, og at det legges private stikkledninger og strøm inn på tomten, dvs. til rett innenfor tomtegrensen.
Salgsoppgave med ytterligere opplysninger og salgsbetingelser kan bestilles oppe til høyre i det blå feltet, klikk på "Send melding" eller send en e-post til: of@sandvikaadvokat.no (Hvis du leser denne annonsen på din mobiltelefon, se evt. kontaktinformasjon nederst i annonsen). Salgsoppgave er under utarbeidelse og ventes å bli klar for utsending onsdag 4/10 2023.
Tomten kan besiktiges på egenhånd, eller sammen med megler, etter avtale, adv. Olav Føllesdal: of@sandvikaadvokat.no /sms/tlf. 977 14007
Lov om hvitvasking: Eiendomsmegling er underlagt lov om hvitvasking og er rapporteringspliktig. Megler plikter ved salg av eiendom å gjennomføre identitetskontroll av alle involverte parter. Videre plikter megler å avklare hvordan kjøper har skaffet til veie sin egenkapital og eventuelle andre forhold knyttet til kjøpers finansiering. Hvis megler får mistanke om brudd på hvitvaskingsloven har megler plikt til å rapportere dette til Økokrim.
Personopplysninger: I henhold til personopplysningsloven gjøres det oppmerksom på at interessenter som henvender seg til megler, uten å reserver seg, vil bli registrert for videre oppfølging av dette salget med informasjon om bl.a. visninger, budgivning mv..

Advokat Olav Føllesdal
Nærområdet
Annonseinformasjon
| FINN-kode | 321781198 |
|---|---|
| Sist endret | 05. okt. 2025 13:37 |
| Referanse | Tanumveien 107 gnr. 45 bnr. 213 |
Annonsene kan være mangelfulle i forhold til lovpålagt opplysningsplikt. Før bindende avtale inngås oppfordres interessenter til å innhente komplett informasjon fra meglerforetaket, selger eller utleier.


























