Bildegalleri

Velkommen til Smedhaugen! Her har du muligheten til å anskaffe deg sammenlagt 8 boligtomter.
STOR INVESTERINGSMULIGHET - 8 boligtomter selges samlet| Nydelig utsikt og flott turterreng| 25,2 mål tomt med 30% BYA
- Totalpris
- 1 015 920 kr
- Omkostninger
- 25 920 kr
Nøkkelinfo
Fasiliteter
Om eiendommen
Kort om eiendommen
Velkommen til Smedhaugen og Vemyrtoppen!
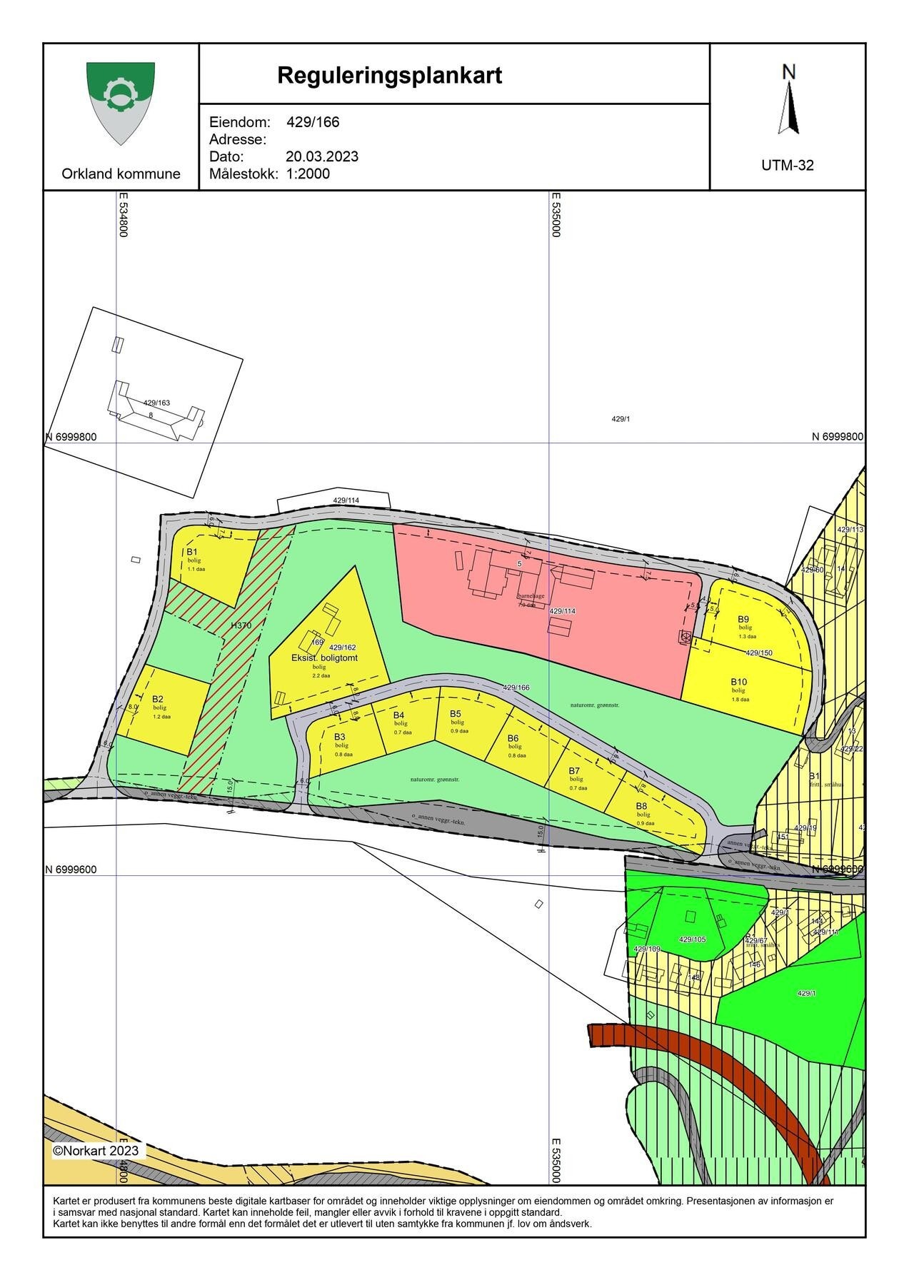
Nå har du muligheten til å anskaffe deg et tomteområde på 25,2 mål beliggende en drøy kilometer fra sentrum av Løkken Verk med en maksimal utnyttelsesgrad på 30% BYA.
Det er i alt regulert 8 boligtomter med varierende størrelse fra ca 0.7 mål til 1.2 mål (tomt B1 til B8)
Kvaliteter:
Samlet pris for 8 boligtomter
Ingen byggeklausul
Nært kollektivtransport og barnehage
Gode utsikt og solforhold
Over 25 mål tomt med 30% BYA- Ca 1 km fra sentrum
6 prøvepunkter med TG 1, 2 prøvepunkter med TG 2 og 2 prøvepunkter med TG 3
På Smedhaugen finner du Løkken barnehage og like ved har du også Bjørnli og Fagerlivatnet.
Regulering
Området er ikke detaljregulert og reguleres derav gjennom kommuneplanens arealdel. Dette innebærer at det kan hvile restriksjoner på eiendommen vedr. bygging, riving m.m.
For denne eiendom er det fra kommunen gitt dispensasjon fra kommuneplanens arealdel for endring av formålet for eiendommen til boligformål.
Arealplan kan fåes ved henvendelse til megler.
I alle bebygde boligområder settes utnyttelsesgraden til maks 30 % BYA.
Garasjer/uthus kan føres opp med BYA inntil 50 m2. På tomter med tomannsbolig kan
felles garasje være inntil 70 m2 BYA. Gesimshøyde skal være inntil 3,0m og mønehøyde
inntil 4,0 m for enkeltgarasje og mønehøyde inntil 6,0 m for dobbel- eller fellesgarasje, og
de skal tilpasses bolighuset når det gjelder materialvalg, form og farge.
Diverse
Fellesbestemmelser
Før tomtene kan fradeles må det utarbeides en teknisk plan som viser løsninger for Vann, avløp og strømforsyning. Denne planen skal omfatte alle tomtene innenfor planområdet. Alle inngrep skal planlegges og utføres slik at skadevirkningene blir så små som mulig. Eventuelle overskuddsmasser etter inngrep henlegges på steder der de ikke virker skjemmende.
Faste løpende utgifter
Kommunale avgifter
Det må påregnes å betale kommunale avgifter ved bygging av bolig.
Vei, vann og avløp
Det er ikke etablert vann og avløp på eiendommen.
Se reguleringsbestemmelser ang. muligheter og begrensninger for avløp.
Adkomst fra offentlig vei må opprettes og bekostes av kjøper.
Eiendommen er ikke tilknyttet offentlig vann eller offentlig kloakk. Private stikkledninger og vei til off. nett må kjøper selv etablere og bekoste.
Etablering av el. og andre nødvendige ledningsnett besørges og bekostes av kjøper. Tilknytningsgebyret for vann og avløp beregnes og faktureres av Byggesakskontoret.
Ligningsverdi (formuesverdi)
Formuesverdien for den ubebygde tomt er søkt innhentet, men foreligger ikke i offentlige register/Altinn. Kjøper vil derfor være pliktig å søke denne fastsatt. ?
Iht. skatteetatens offentlige sider pr. 2022, fastsettes formuesverdien slik at denne verken skal overstige 80 prosent av eiendommens kostpris eller 80 prosent av eiendommens markedsverdi. Ved senere år skal denne formuesverdien videreføres, men med en eventuell årlig fastsatt oppjustering.
Når tomten blir bebygget vi Skatteetaten beregner en boligverdi (beregnet markedsverdi for bolig) basert på SSBs statistiske opplysninger om omsatte boliger. I beregningen tas det hensyn til din boligs beliggenhet, areal, byggeår og type bolig. Boligens boligverdi er lik boligens areal multiplisert med kvadratmeterpris basert på statistikk over omsatte boliger. Beregningen bygger på opplysninger om boligens areal, beliggenhet, alder og type. Formuesverdien er en gitt prosentandel av denne boligverdien. Formuesverdien av primærboliger settes til 25 prosent av boligverdien (90 prosent for sekundærboliger).
Skulle tomten etter bebyggelse av denne, være større enn bebyggelse krever og arealmessig overstiger hva anses som naturlig arrondert tomt for bebyggelsen, vil den overskytende del av tomten kunne bli formues beregnet på eget grunnlag. Skulle det være spørsmål utover ovennevnte anbefales direkte kontakt med stedlig skatteetat.
For ytterligere informasjon, sjekk skatteetatens nettsider.?
Sentrale lover
Eiendommen selges etter reglene i avhendingsloven. Selgers eventuelle mangelsansvar og kjøpers undersøkelsesplikt reguleres av bestemmelsene i avhendingsloven kapittel 3.
Dersom avtale om salg (aksept av bud) inngås i forbrukerforhold*:
For å få et best mulig beslutningsgrunnlag er det viktig å lese salgsdokumentene grundig før visning, og uansett før budgivning. Salgsoppgaven inneholder sentrale opplysninger fra eiendomsmegleren, tilstandsrapport fra bygningssakkyndig, egenerklæring fra selger og andre dokumenter med relevant innhold. Uavhengig av om det er lest eller ikke, regnes Kjøper for å kjenne til det som går tydelig fram av salgsdokumentene.
I tillegg til å sette seg grundig inn i dokumentene, oppfordres interessenter til å undersøke eiendommen nøye.
Eiendommen kan ha en mangel dersom den ikke samsvarer med kravene til kvalitet, utrustning og annet som følger av avtalen, jf. avhendingsloven § 3-1. Videre vil eiendommen ha mangel dersom det er holdt tilbake eller gitt uriktige opplysninger om eiendommen som har virket inn på avtalen, jf. avhendingsloven §§ 3-7 og 3-8.
Ved salg til forbrukerkjøper er det ikke anledning til å ta forbehold om at eiendommen selges som den er eller med lignende generelle forbehold. Forbehold om eiendommens tilstand som er spesifisert nok til å kunne innvirke på kjøpsvurderingen, anses likevel som en del av avtalen, og vil derfor ikke kunne påberopes som mangel jf. avhendingsloven § 3-9 (2) andre setning.
Hvis det ikke er avtalt noe særskilt, gjelder bestemmelsene i avhendingsloven §§ 3-2 til 3-6 om generelle krav til eiendommen, arealavvik og tilbehør. Disse bestemmelsene supplerer altså det som følger av avtalen.
Boligens alder, type og synlige tilstand har betydning for hvilken kvalitet og stand som kan forventes. For eksempel kan det ikke forventes at en eldre bolig har samme tilstand som en ny eller nyere bolig. Eldre boliger er vanligvis bygget etter andre krav og med andre materialer, og vil i tillegg ha varierende grad av slitasje og skader som følge av blant annet bruk, værpåkjenninger og annen aldersforringelse. Skader og forringelser som er naturlige følger av dette vil normalt ikke bli ansett som kjøpsrettslige mangler.
Kjøper kan ikke gjøre gjeldende som en mangel noe kjøperen kjente eller måtte kjenne til da avtalen ble inngått. Dersom kjøperen før avtaleinngåelsen har undersøkt eiendommen, eller uten rimelig grunn unnlatt å følge oppfordringen om undersøkelse, kan kjøperen ikke gjøre gjeldende som mangel noe han burde blitt kjent med ved undersøkelsen.
Det gjøres oppmerksom på at selv om det skulle være mangel ved eiendommen, må kjøperen selv dekke tap og kostnader opp til et beløp på 10 000 kroner (kjøpers egenandel / egenrisiko ), om ikke annet er sagt i loven.
Kjøpers egenrisiko har ikke betydning for spørsmålet om det foreligger en mangel. Beløpet kommer imidlertid til fradrag i en eventuell utmåling av prisavslag eller erstatning dersom det er en mangel ved eiendommen som selger er ansvarlig for.
* Med forbrukerforhold menes kjøp av eiendom når kjøperen er en fysisk person som ikke hovedsakelig handler som ledd i næringsvirksomhet.
Dersom avtale om salg (aksept av bud) inngås av kjøper som ikke anses som forbruker selges eiendommen som den er :
Eiendommen overdras slik den fremstår ved besiktigelse. Selger fraskriver seg ansvar ut over det som følger av avhendingsloven § 3-9, dog slik at forhold dekket av avhendingslovens § 3-9, andre punktum ikke kan utgjøre en mangel. § 3-9 fravikes videre slik at forsømte opplysninger fra selgers side bare skal ansees som mangel dersom disse er vesentlige for kjøper og er dokumentert kjent av selger. Videre kan ikke kjøper gjøre gjeldende som mangel forhold etter avhendingslovens § 3-8 (1), andre setning hvor opplysningene er gitt av andre enn selger. Avhendingslovens § 4-19, andre ledd fravikes slik at reklamasjon senest kan skje 1 år etter overtagelse av eiendommen.
Interessenter oppfordres til å undersøke eiendommen nøye, gjerne med fagmann før bud inngis. Se også teknisk beskrivelse av boligen, som framkommer i takst/ tilstandsrapport/boligsalgsrapport. Det forutsettes at skjøtet tinglyses på ny eier. Hvis kjøper ikke ønsker en hjemmelsoverføring av eiendommen til seg må det tas forbehold om dette i budet.
Informasjonen ovenfor om kjøpers undersøkelsesplikt, herunder oppfordringen om å undersøke eiendommen nøye, gjelder også for kjøpere som ikke anses som forbrukere. Ved spørsmål, kontakt megler for mer informasjon.
I alle tilfeller forutsettes det, med mindre annet er avtalt, at hjemmel overføres til kjøper ved overtakelse.
Informasjon vedr. lovendring finnes også her: https://nylander.no/informasjon-til-vare-kunder-vdr-lovendring-2022/
KJØPERS UNDERSØKELSESPLIKT
Kjøperen kan ikke gjøre gjeldende som en mangel noe kjøperen kjente eller måtte kjenne til da avtalen ble inngått. Kjøperen skal regnes for å kjenne til forhold som går tydelig fram av en godkjent tilstandsrapport jfr. ny forskrift, (tryggere bolighandel) eller andre salgsdokument som kjøperen er gitt anledning til å sette seg inn i.
Har kjøperen før avtalen ble inngått undersøkt eiendommen eller uten rimelig grunn latt være å følge en anmodning fra selgeren om å undersøke eiendommen, kan kjøperen heller ikke gjøre gjeldende som en mangel noe kjøperen burde blitt kjent med ved undersøkelsen. Dette gjelder likevel ikke dersom selgeren har vært grovt uaktsom, uærlig eller for- øvrig handlet i strid med god tro.
Kjøpers undersøkelsesplikt er utvidet i nytt lovverk av 2022. Nytt lovverk har nå reguleringer hvor kjøper er underlagt en egenandel når eiendommen har en kjøpsrettslig mangel jfr. § 3-1, fjerde ledd. Egenandelen kommer først på tale når det er påvist at eiendommen har en kjøpsrettslig mangel, (avvik fra hvordan eiendommen er beskrevet i salgsdokumentene vurdert ut fra de konkrete forholdene i saken). Er det konstatert en kjøpsrettslig mangel som nevnt ovenfor, skal det trekkes kr 10 000,- fra utbedringskostnadene ved oppgjøret.
Boligselgerforsikring
Kjøper er gjort kjent med at selger ikke har tegnet boligselgerforsikring.
Selger har utarbeidet et egenerklæringsskjema og innhentet en tilstandsrapport som er vedlagt salgsoppgaven. I henhold til avhendingsloven anses kjøper kjent med de opplysninger som framgår av et salgsdokument. Kjøper oppfordres derfor til å gjøre seg kjent med denne.
Boligkjøperforsikring
Kjøper har anledning til å tegne Boligkjøperforsikring. Det er en rettshjelpsforsikring som gir trygghet og profesjonell juridisk hjelp dersom det oppdages uventede feil eller mangler ved boligen de neste fem årene.
Boligkjøperforsikring tegnes senest på kontraktsmøtet.
Forbehold
Det tas forbehold om trykkfeil i salgsoppgaven.
Salgsoppgaven er ufullstendig uten alle vedlegg.
Egenerklæring konsesjonsfrihet
Ved overdragelse av ubebygd eiendom/tomt kreves det egenerklæring om konsesjonsfrihet. Det er en forutsetning for denne handelen at kjøper signerer denne, og at erklæringen godkjennes av kommunen før overdragelsen.
Erklæringen skal vedlegges skjøtet for tinglysing og oppgjøret kan ikke foretas før skjøtet er tinglyst. Konsesjonsfriheten er betinget av at tomta ikke er større enn 2 dekar og er godkjent fradelt etter plan- og bygningsloven og jordlova, eller ikke trenger slik godkjenning etter jordlova og at man ikke foretar bruksendring i strid med plan.
Konsesjon
UBEBYGD TOMT
Ved overdragelse av ubebygd eiendom/tomt kreves det egenerklæring om konsesjonsfrihet. Det er en forutsetning for denne handelen at kjøper signerer denne, og at erklæringen godkjennes av kommunen før overdragelsen.
Erklæringen skal vedlegges skjøtet for tinglysing og oppgjøret kan ikke foretas før skjøtet er tinglyst. Konsesjonsfriheten er betinget tomta er ikke større enn 2 dekar og er godkjent fradelt etter plan- og bygningsloven og jordlova, eller ikke trenger slik godkjenning etter jordlova og at man ikke foretar bruksendring i strid med plan.
Overtakelse
Etter nærmere avtale med selger. Angi ønske i budskjema.
Nylander &Partners, Heimdal
Nærområdet
Annonseinformasjon
| FINN-kode | 314243226 |
|---|---|
| Sist endret | 21. apr. 2026 07:33 |
| Referanse | 82230036 |
Annonsene kan være mangelfulle i forhold til lovpålagt opplysningsplikt. Før bindende avtale inngås oppfordres interessenter til å innhente komplett informasjon fra meglerforetaket, selger eller utleier.
















