Bildegalleri

Eneboligtomt på Årosfjellet med flott utsikt over Oslofjorden.
Byggeklar eneboligtomt med sjøutsikt på Årosfjellet
- Totalpris
- 3 960 140 kr
- Omkostninger
- 110 140 kr
Nøkkelinfo
Visning
Om eiendommen
Beliggenhet
Åros ligger ved Oslofjorden med mange flotte bade og turmuligheter i nærmiljø blant annet en flott kyststi både mot Sætre og Slemmestad. Flere lekeplasser inne på boligområdet. Det er turløyper/skiløyper i skogsterreng. Badestrand nede ved sjøen, samt båthavn (Lagahølet). Åroselva er kjent for sitt lakse/ørretfiske. Nye Frydenlund barneskole og barnehage. NÅIF idrettsforening har mange forskjellige fritidsaktiviteter for både barn og voksne. Ca. 10 min kjøring til Trento treningssenter i Åsveien-Sætre. Ca. 15 min kjøring til nye Røyken badet med svømmehall/klatrevegg/treningssenter. Åros sentrum kan tilby blant annet matbutikk, lege, tannlege, frisør, kafe mv. Bussforbindelse til både Drammen og Oslo. Ca. 25 minutters kjøring til Asker og Drammen.
Tomt
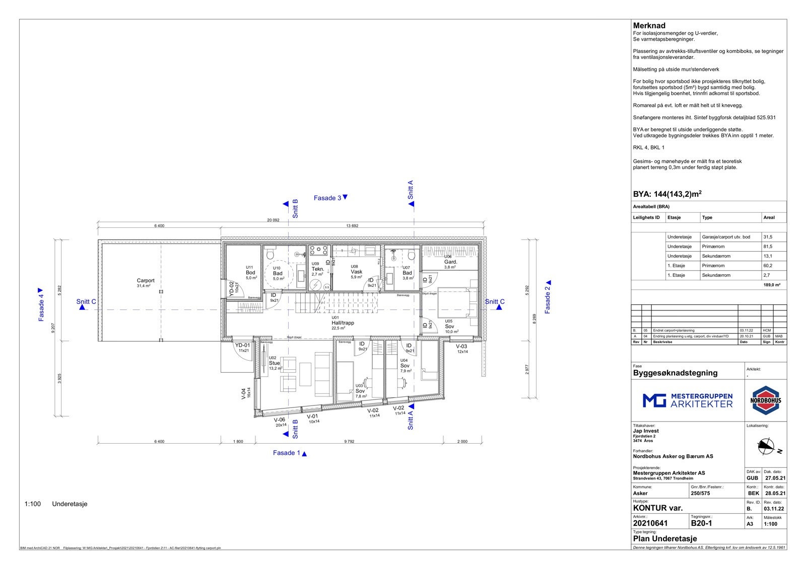
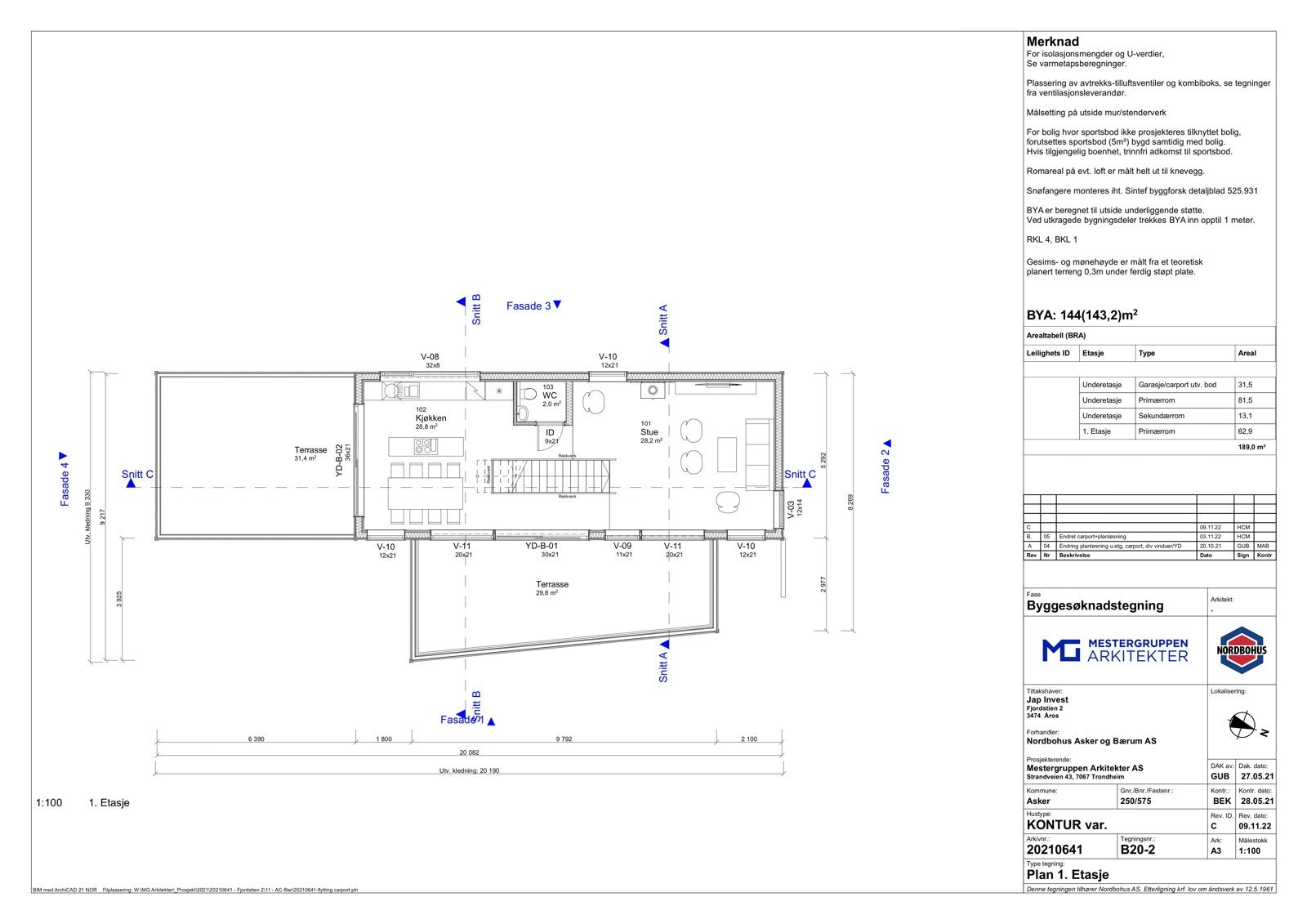
Pr i dag en ubebygget tomt, det er gitt igangsettingstillatelse og rammetillatelse til oppføring av enebolig med carport. Huset det er gitt igangsettingstillatelse og rammetillatelse på er tegnet av Nordbohus og er over 2 plan med 3 eller 4 soverom, stue og kjøkken i 1 etg, soverom ligger i U-etg. Godkjente byggetegninger ligger vedlagt. Huset vil ha 2 store terrasser mot utsikten. Tidligere byggetillatelse er utgått da det fristen på igangsettelse er utløpt (3 år).
Areal primærrom 144 kvm , 189 kvm brutto
Areal og eierform
Areal: 912 kvm, Eierform: Eiet tomt
Opplysninger om festeforhold
Selveiertomt
Adkomst
Fra Åros sentrum, kjør over broen opp Astrid Skares vei, forbi barneskolen, ta deretter første til venstre Fjellstien, ta deretter første til høyre, du er nå i Fjordstien, kjør ned bakke og nesten til enden av veien, tomten ligger på høyre side av veien.
Se forøvrig vedlagt kartutsnitt.
Parkering
Det er tegnet inn dobbelcarport , samt at det vil være oppstillingsplass på egen eiendom.
Konsesjon / Odel
Denne eiendommen er ikke konsesjonspliktig, men det kreves signert egenerklæring om konsesjonsfrihet.
Vei/Vann/Avløp
Vann og avløp er lagt inn på eiendommen og tilknyttningsavgift er betalt av selger.
Offentlig vei, via privat stikkvei til eiendommen. Offentlig vann og avløp via private stikkledninger.
Vei Vann og avløp er organisert via Ringveien sør vann og avløpslag, årlig avgift kr 2000,- inkl. brøyting og strøing.
Kommunale avgifter
Vil påløpe når eiendommen er bebygd.
Andre løpende avgifter
Det må påregnes kostnader til strøm, oppvarming, forsikring, kommunale avgifter, kabel -TV osv, når boligen er oppført.
Regulering
Tomten er boligregulert.
Reguleringsbestemmelser for Tivoliåsen og Årosfjellet , vedtatt den 16.06.1994, gjelder for eiendommen, samt omregulering 12.03.2009
Brukstillatelse / Ferdigattest
Brukstillatelse, ferdigattest vil bli utstedt av kommunen når tomten er bebygget som godkjent av kommunen.
Heftelser / Rettigheter
Følgende heftelser er tinglyst og vil påhvile eiendommens grunnboksblad videre:
Fjordstien 2 bnr 278 har rett til å ha liggende vann,avløp og kabler over denne eiendommen som vist på vedlagt kart. Pliktig medlemskap i områdets velforening.
Annen nyttig informasjon
En kjøper står fritt til å gå videre med byggeprosess med Nordbohus, og kan da trolig gjøre enkle endringer med huset ( dette må sjekkes ut med Nordbohus) eller man kan prosjektere/tegne og bygge søke et helt annet hus.
Kjøper står fritt.
Formuesverdi
Formuesverdi som primærbolig kr per
Formuesverdi som sekundærbolig kr per
Overtagelse
Avklares i forbindelse med budgivning
Forsikring
Eiendommen/tomten er ikke forsikret pr. idag.
Boligselgerforsikring
Selger har IKKE tegnet boligselgerforsikring.
Boligkjøperforsikring
Det gjøres oppmerksom på at kjøper har anledning til å tegne Boligkjøperforsikring via If.
Forsikringen gjelder i ett år etter overtakelse og inneholder også hus-, innbo og flytteforsikring samt renteforsikring.
Finansiering
Frem Eiendomsmegling samarbeider med Sparebanken Øst, og kunder som ønsker det kan raskt bli satt i kontakt med en kundebehandler for et uforpliktende lånetilbud. Frem Eiendomsmegling mottar markedsstøtte fra Sparebanken Øst, men det mottas ikke noen form for formidlingsprovisjon for formidling av lånekunder.
Viktig informasjon
Eiendommen selges etter reglene i avhendingsloven.
Eiendommen skal overleveres kjøper i tråd med det som er avtalt. Det er viktig at kjøper setter seg grundig inn i alle salgsdokumentene, herunder salgsoppgave, tilstandsrapport og selgers egenerklæring. Kjøper anses kjent med forhold som er tydelig beskrevet i salgsdokumentene. Forhold som er beskrevet i salgsdokumentene kan ikke påberopes som mangler. Dette gjelder uavhengig av om kjøper har lest dokumentene. Alle interessenter oppfordres til å undersøke eiendommen nøye, gjerne sammen med fagkyndig før bud inngis. Kjøper som velger å kjøpe usett kan ikke gjøre gjeldende som mangel noe han burde blitt kjent med ved undersøkelsen.
Dersom det er behov for avklaringer, anbefaler vi at kjøper rådfører seg med eiendomsmegler eller en bygningssakyndig før det legges inn bud.
Hvis eiendommen ikke er i samsvar med det kjøperen må kunne forvente ut ifra alder, type og synlig tilstand, kan det være en mangel. Det samme gjelder hvis det er holdt tilbake eller gitt uriktige opplysninger om eiendommen. Dette gjelder likevel bare dersom man kan gå ut i fra at det virket inn på avtalen at opplysningen ikke ble gitt eller at feil opplysninger ikke ble rettet i tide på en tydelig måte. En bolig som har blitt brukt i en viss tid, har vanligvis blitt utsatt for slitasje og skader kan ha oppstått. Slik bruksslitasje må kjøper regne med, og det kan avdekkes enkelte forhold etter overtakelse som nødvendiggjør utbedringer. Normal slitasje og skader som nødvendiggjør utbedring, er innenfor hva kjøper må forvente og vil ikke utgjøre en mangel.
Boligen kan ha en mangel dersom det er avvik mellom opplyst og faktisk areal, forutsatt at avviket er på 2% eller mer og minimum 1 kvm.
Ved beregning av et eventuelt prisavslag eller erstatning må kjøper selv dekke tap/kostnader opptil et beløp på kr 10 000 (egenandel).
Dersom kjøper ikke er forbruker selges eiendommen som den er , og selgers ansvar er da begrenset jf. avhl. § 3-9, 1. ledd 2. pktm. Avhendingsloven § 3-3 (2) fravikes, og hvorvidt en innendørs arealsvikt karakteriseres som en mangel vurderes etter avhendingsloven § 3-8. Informasjon om kjøpers undersøkelsesplikt, herunder oppfordringen om å undersøke eiendommen nøye, gjelder også for kjøpere som ikke anses som forbrukere. Med forbrukerkjøp menes kjøp av eiendom når kjøperen er en fysisk person som ikke hovedsakelig handler som ledd i næringsvirksomhet.
Gjennomføring av oppgjør/transaksjoner
Kjøpesum inkl. omkostninger skal være innbetalt til meglers klientkonto før overtagelse. Innbetalingene skal skje fra kjøpers konto i norsk finansinstitusjon. Det forutsettes at skjøtet skal tinglyses på ny eier og at megler får oversendt pantedokumenter som skal tinglyses snarest mulig etter kontraktsunderskrift.
Etter hvitvaskingsloven er megler forpliktet til å gjennomføre identitetskontroll av partene i en eiendomshandel. Dersom partene ikke oppfyller lovens krav til legitimasjon eller megler har mistanke om en mistenkelig transaksjon, kan megler stanse gjennomføring av transaksjonen. Megler er pliktig til evt. å sende melding til Økokrim uten orientering til partene.
Salgsoppgave
Ansvarlig megler:
Mob: 99 54 77 00
E-post: preben@fremeiendomsmegling.no
Frem Eiendomsmegling AS (Org.nr: 979915772)
Besøksadresse Spikkestadveien 92 B, 3441 Røyken
Tlf: 31 29 74 00
Innholdet i salgsoppgaven er godkjent av selger.
Nyttige lenker

FREM EIENDOMSMEGLING
Nærområdet
Annonsene kan være mangelfulle i forhold til lovpålagt opplysningsplikt. Før bindende avtale inngås oppfordres interessenter til å innhente komplett informasjon fra meglerforetaket, selger eller utleier.
















