Bildegalleri

Søker partner:65-70 leiligheter|Sarpsborg sentr.|+4000 BRA |Sjelden mulighet
- Totalpris
- 6 000 001 kr
- Omkostninger
- 1 kr
Nøkkelinfo
Fasiliteter
Visning
Ta kontakt for å avtale visning.Adkomst
Beliggenhet
Eiendommen ligger praktisk til med tanke på handel og pendling.
Beskaffenhet
Byggeprosjekt: Vi utvider boligprosjektet og søker nå partner(e) for å forlenge bebyggelsen mot nabotomten som i dag består av næringsbygg. Vi eier allerede Astrids gate 26, ble kjøpt i 2021/2022. Astrids gate 26 er revet og klargjort for utbygging.
Kort om caset
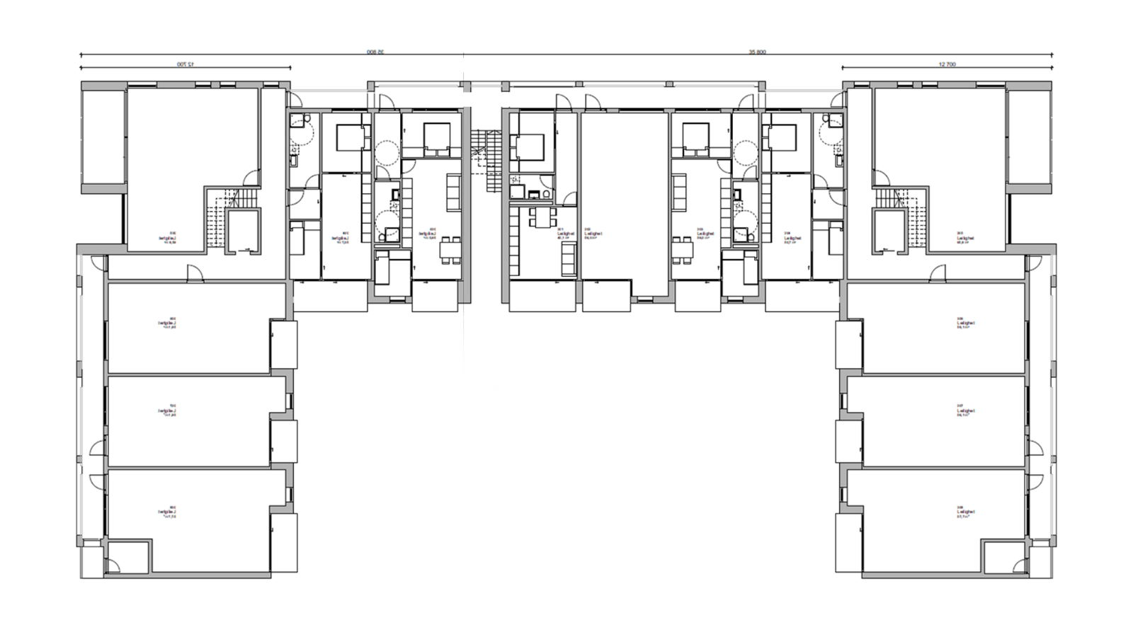
- Totalt opptil 65-70 leiligheter
- Ca. 4 250 m² salgbart areal
- Kapitalbehov: inntil 6 MNOK innbetalt i transjer
- Estimert eierandel for ny kapital: opptil 50 % (endelig prising vil avhenge av deal struktur og EK-størrelse)
- Emisjonen gjøres til en rabatt på 52.11% fra forrige runde i 2021/2022.
- Estimert avkastning: over 190 % på egenkapital over investeringsperioden
- Anslått tidsperiode: 2,5 - 3 år
- Formål: egenkapital til kjøp av naboeiendom, reguleringsarbeid og driftskostnader
- Sikkerhet: Aksjer i prosjektselskapet (eierskap).
- Tomtekreditt fra Pareto siden kjøp av eksisterende tomt. Indikativt tilbud på videre finansiering foreligger.
Hvorfor nå?
Vi mener at konjunkturbunnen nå er nådd. Med de rette prosjektene og god gjennomføring vil boligbygging fremover kunne bli svært lønnsomt, for dem som griper mulighetene i dag. Siden 2022 har boligbyggingen i Norge ligget på et historisk lavt nivå. Nå ser vi klare tegn til at markedet snur: rentene er på vei ned, arbeidsledigheten er lav, og inflasjonen er stabil. Folk trenger et sted å bo, og alt tilsier at etterspørselen vil overstige tilbudet av nye boliger i årene som kommer.
For å oppsummere: Dette er en mulighet som sjelden byr seg. Med 6 mill. i egenkapital, innbetalt i transjer, kan den rette investor sikre seg 50 % eierskap i et prosjekt hvor de fleste risikomomentene er avklart. Det er kort tid fra investeringsbeslutning til detaljregulering og byggestart. Ta kontakt for å få oversendt mer detaljer.
Regulering
LAGOM EIENDOM AS
Sofian Mehmood
Nærområdet
Annonsene kan være mangelfulle i forhold til lovpålagt opplysningsplikt. Før bindende avtale inngås oppfordres interessenter til å innhente komplett informasjon fra meglerforetaket, selger eller utleier.





